Bản vẽ nhà cấp 4 có sân vườn Nhỏ Xinh, với mẫu bản vẽ này kết cấu rất đơn giản, không quá cầu kỳ như những căn nhà phố, biệt thự…Bởi đây là tính năng khả dụng nên đối với “Kiến Trúc Sư” thì không quá khó khăn, nhưng 1 điều quan trọng ở đây đó là để làm hài lòng và phù hợp với nhu cầu của khách hàng là một chuyện khác.

Mẫu nhà cấp 4 đơn giản có sân vườn (Ảnh minh họa)
Để sở hữu được mẫu bản vẽ hoàn chỉnh đòi hỏi sự hợp tác của khách hàng, nhằm nêu ra nhu cầu sinh sống, số lượng thành viên trong gia đình, chức năng của các phòng….Do đó thì mỗi người một ý thích, người thích cái này – người thích cái kia. Vì vây, hôm nay chúng tôi có sưu tầm ra bản vẽ nhà cấp 4 đơn giản có khoản sân vườn đẹp, hy vọng rằng sẽ giúp ích cho các bạn được phần nào!

Góc view từ trên xuống

Bản vẽ mặt đứng 1-7

Bản vẽ mặt cắt A-A

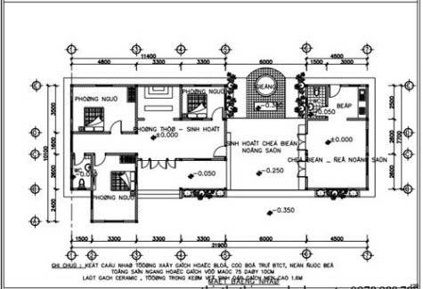
Bản vẽ mặt bằng

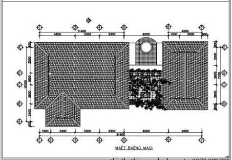
Mặt bằng mái
Quay lại chủ để nhà cấp 4 đơn giản này được xây dựng trên lô đất 10,1 x 21,9m. Nhìn qua sơ lượt về hình ảnh phát thảo này bạn sẽ thấy được cách tính diện tích của từng phần như: Phòng ngủ – phòng sinh hoạt chung – phòng khách – nhà bếp….
Tùy theo nhu cầu và sở thích của khác hàng, theo chúng tôi được biết thì giá của mẫu bản vẽ nhà cấp 4 chỉ tầm 3 – 5 triệu. Qua chủ đề bản vẽ autocad nhà cấp 4 đơn giản có sân vườn Nhỏ Xinh, mẫu thiết kế nhà giá rẻ dành cho người có nhu cầu xây dựng nhà ở trong năm nay. Hãy tìm kiếm cho mình 1 bản vẽ ưng ý với tiêu chuẩn đưa ra nhé!



















