Mẫu nhà 1 trệt 1 lầu 50m2 rất phổ biến tại khu vực thành phố hiện nay chính bởi đặc trưng hẹp ngang, sâu dài. Với diện tích đặc thù này yêu cầu kiến trúc sư bố trí không gian nhà hợp lý để có thể tối đa được diện tích ở cho gia chủ, đồng thời đảm bảo độ thẩm mỹ cho ngôi nhà.
Xây dựng mẫu nhà 1 trệt 1 lầu 50m2 cần chú ý điểm gì?
Với mẫu nhà 1 trệt 1 lầu 50m2, gia chủ sử dụng thiết kế nhà ống để đáp ứng được yêu cầu từ phía gia chủ, mang đến một không gian sinh hoạt cho thành viên trong gia đình, đảm bảo thẩm mỹ mang đến sự hiện đại, tiện nghi trong một không gian khá hạn chế.

Để có thể đảm bảo được yêu cầu trên, gia chủ cần chú ý một số điểm khi xây dựng mẫu nhà 1 trệt 1 lầu 50m2 như sau:
Trong một không gian nhỏ nên lựa chọn nội thất nhỏ gọn, đa tính năng. Ví dụ chiếc giường có kết hợp thêm tủ kéo đặt ở dưới gầm giường vừa tiết kiệm được diện tích lại tích hợp thêm chức năng sử dụng.

Ở không gian phòng khách – đây là không gian gia chủ cần đầu tư kỹ càng về mặt thẩm mỹ bởi đây là khu vực để gia chủ tiếp đón bạn bè, người thân, đồng nghiệp ghé thăm nên cần lựa chọn nội thất nhỏ, gọn, màu sắc trung tính, mang đến cảm giác thoải mái, dễ chịu, cảm nhận về không gian này rộng hơn so với diện tích thực tế của căn phòng.
Đối với mẫu nhà 1 trệt 1 lầu 50m2, gia chủ thường nối liền không gian phòng khách với không gian bếp ăn để tạo cảm giác không gian có chiều dài sâu. Cầu thang thông tầng đặt ở vị trí giữa hai không gian này giống như không gian phân cách.
Lựa chọn đồ trang trí cho ngôi nhà cũng là đồ vật gọn gàng, ví dụ như chậu cây xanh, hay lọ hoa để bàn nhỏ, bức tranh phong cách kích thước nhỏ,…
Sử dụng thảm trang trí để tạo điểm nhấn cho căn phòng.
Tone màu chủ đạo trung tính, không sắc sỡ gây rối mắt, khó chịu, cảm giác bí bách.

Hạn chế những thiết bị không cần thiết. Đặc biệt trong không gian ngủ để gia chủ nghỉ ngơi, hạn chế tối đa nhất các thiết bị điện tử. Đồng thời, gia chủ có thể tham khảo mẫu thiết kế không gian nhà 1 trệt 1 lầu 50m2 dưới đây:

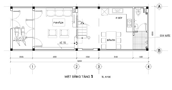
Mặt bằng tầng trệt bố trí sân trước để gia chủ để xe máy, tiền vào 1 phòng khách, 1 khu vục bếp và bàn ăn, 1 nhà vệ sinh và sân sau được bố trí phía cuối nhà. Cầu thang bố trí giữa hai không gian.

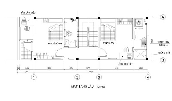
Khu vực tầng lầu với ban công nhỏ mặt tiền, 2 phòng ngủ, 1 nhà vệ sinh chung, khu vực giặt phơi phía sau nhà. Khu vực cầu thang được bố trí giữa hai phòng ngủ để ngăn cách hai không gian này với nhau.

Ở không gian này có thể được bố trí với không 1 ban công công tương tự, không gian phòng thờ, 2 phòng ngủ, 1 nhà vệ sinh và 1 sân phơi ở phía sau nhà. Với bố trí như vậy gia chủ thờ cúng tâm linh theo phong tục của người Việt từ xa xưa.
Cách bố trí như trên, mẫu nhà 1 trệt 1 lầu 50m2 phù hợp với gia đình cơ bản 4 thành viên cùng nhau sinh hoạt.
Mẫu nhà 1 trệt 1 lầu 50m2 – Top thiết kế nhà ở đơn giản, đẹp, chi phí thấp
Mẫu nhà 1 trệt 1 lầu 50m2 theo phong cách hiện đại mái bằng có gara oto chính là mẫu thiết kế được gia chủ lựa chọn nhiều nhất hiện nay bởi chi phí phù hợp với ngân sách gia đình, thiết kế hiện đại, tiện nghi.

Kiến trúc đối xứng giữa hai tầng nhà, tuy nhiên mỗi tầng lại mang đến cái nhìn khác nhau về mặt thẩm mỹ. Khu vực tầng 1 được gia chủ ốp gạch sáng màu toàn bộ mặt tiền điều này mang lại hiệu ứng khá lấp lánh khi có ánh sáng chiếu vào nhà vào buổi sáng. Khu vực tầng lầu, gia chủ sử dụng sơn tường màu trắng kết hợp với đá ốp giả tườn gạch ở ban công. Cửa sổ ở lầu hai sử dụng kích thước lớn hơn thông thường, 3 cánh, bên trong bố trí thêm rem cửa chất liệu vải dày một chút để mang đến ánh sáng dịu nhẹ cho căn phòng, không gây chói mắt cho gia chủ vào mỗi sáng sớm.
Bên trên cửa sổ là hệ thống thanh sắt với mục đích biến thành một vườn treo nhỏ xinh, kéo dài từ cửa sổ đến khu vực ban công. Ngay tại khu vực ban công, phía dưới vườn treo ấy là bộ bàn trà nhỏ, không gian này giống như một quán café mini ngay tại gia, với không gian vô cùng yên tĩnh, rất thích hợp để nghỉ ngơi thư giãn. Chú ý đến tiểu cây cảnh ở khu vực ban công tầng lầu, thay vì sử dụng loại cây có kích thước nhỏ nhắn thường thấy, gia chủ lựa chọn cây thân gỗ. Nhìn từ bên ngoài vào giống như một tum nhỏ thường được đặt ở vị trí sân thượng của những ngôi nhà theo thiết kế hiện nay.

Sử dụng phong cách thiết kế hiện đại trong thiết kế, có gara oto nhưng được gia chủ bố trí ngay phía trước mặt tiền của ngôi nhà, thay vì mái bằng gia chủ sử dụng mái Thái.
Khu vực tầng trệt, gia chủ sử dụng hệ thống cửa kính lớn, chiếm hết diện tích mặt tiền để từ ngoài nhìn vào có thể thấy được toàn bộ nội thất phòng khách hiện đại, tiên nghi, và cảm nhận về không gian rộng phía trong nhà. Với hệ thống cửa kính lớn như vậy, lượng ánh sáng cũng như lượng nhiệt nhận được rất lớn, gia chủ bố trí hệ thống lam che nắng phía trước khu vực phòng khách để giảm thiểu bớt lượng nhiệt.
Tầng hai gây ấn tượng với ốp gỗ ở khu vực mặt tiền vô cùng sang trọng kết hợp cửa kính 3 cánh hiện đại. Ban công bằng sắt thông thoáng, tiểu cây cảnh được đặt bên ngoài ốp giả ảnh tạo điểm nhấn. Mái Thái cao nổi bật, tạo bề thế cho căn nhà 50m2. Hệ thống ống khói giả được bố trí bên cạnh nhà là điểm nhấn trong ngôi nhà.

Cũng sử dụng việc ốp gỗ ở mặt tiền nhưng mẫu thiết kế nhà 1 trệt 1 lầu 50m2 này lại đơn giản hơn rất nhiều. Lầu trệt thay vì một hệ thống cửa kính 4 cánh với kích thước gần bằng mặt tiền thì gia chủ lại giảm bớt một cách, để chừa vị trí ấy cho một mảng tưởng ốp gỗ. Khu vực tầng lầu, ốp gỗ toàn bề mặt, ban công được tiết chế nhỏ lại vừa với diện tích cửa kính một cánh, bố trí ban công 1 chậu cây xanh.

Gia chủ thích sự đơn giản trong thiết kế thì lựa chọn một mặt tiền đơn giản cùng với mái xéo như trên cho mẫu nhà 1 trệt 1 lầu 50m2 sẽ mang đến sự hài lòng. Khu vực lầu trệt được bố trí với hệ thống cửa song sắt 4 cánh chắc chắn, ốp đá xung quanh. Lên đến khu vực tầng lầu là khối hộp được đặt lại với nhau, sơn trắng cùng hệ thống cửa, bên nhoài là ban công nhỏ được làm bằng thanh sắt đơn giản, đặt chậu cây nhỏ. Phần mái có thiết kế đặc biệt hơn một chút khi được xây cao hơn thông thường có phần xéo, với tác dụng tránh nóng hiệu quả cho ngôi nhà và không gây đọng nước ảnh hưởng trần nhà và đồ vật ở khu vực tầng lầu.

Mái xéo được tiếp tục sử dụng nhưng với mẫu nhà 1 trệt 1 lầu 50m2 với phần mặt tiền được cầu kỳ hơn rất nhiều. Tầng trệt với hệ thống cửa kính 4 cánh, bên trong bố trí hệ thống rèm mỏng giúp gia chủ hạn chế ánh sáng, lại vừa có thể mang đến độ riêng tư cần thiết. Ngoài ra bố trí thêm một cửa kính bên canh, với lam che nắng. Mặt tiền lầu trệt ốp đá, trần ốp gỗ mang vẻ đẹp sang trọng. Khu vực tầng hai với sự khối hình học vô cùng ấn tượng giữa một bên không gian sinh hoạt, và một bên là tiểu cây cảnh. Tầng lầu bố trí mặt tiền toàn bộ bằng kính, ốp gỗ phía trên khu vực cửa, cùng với ban công tràn ngập cây xanh.

Tương tự với kiến trúc đơn giản ở phía trên, gia chủ sẽ có mẫu nhà 1 trệt 1 lầu 50m2, không sử dụng mái bằng cũng không sử dụng mái chéo hay mái Thái, ở thiết kế thiết kế thành tum nỏ ở vị trí tầng thường. Gia chủ sử dụng không gian này cho việc trồng cây xanh, hay có thể vườn rau nhỏ phục vụ đời sống sinh hoạt của cả gia đình.

Mẫu nhà 1 trệt 1 lầu 50m2 phong cách tân cổ điển không thể thiếu trong kiến trúc này, dành cho gia chủ yêu thích phong cách châu Âu trong ngôi nhà 50m2.

Mặt tiền lược hết chi tiết cầu kỳ nhưng cái gì đăc trưng của tân cổ điển không thể bỏ qua. Hệ thống cột trụ tròn kép được bố trí ở khu vực mặt tiền tầng lầu. Mái vòm bán nguyệt xuất hiện được sơn nâu đậm nét cổ điển kết hợp mái Thái giật cấp là cặp thiết kế không thể thiếu để làm nên một mẫu nhà 1 trệt 1 lầu tân cổ điển thu hút. Khu vực giữa hai tầng của ngôi nhà sử dụng hệ thống mái tạo ên điểm nhấn khác lạ cho ngôi nhà.

Có kiến trúc tương tự nhưng mẫu nhà 1 trệt 1 lầu 50m2 này lại sử dụng mái Thái đơn mang đến sự nhẹ nhàng hơn trong thiết kế. Khu vực tầng trệt hệ thống cửa kính 4 cánh lớn, bên trong bố trí rèm cửa trắng mỏng nhẹ, ốp gạch trắng sang trọng. Tầng lầu sử dụng khối trụ lớn, cửa vòm kính, đèn pha lê ở khu vực ban công, cây xanh bố trí ban công và khu vực cửa sổ mang đến hiện đại hòa lẫn vẻ đẹp cổ điển, sang trọng. Nhìn tổng thể căn nhà là tone màu trắng mang đến sự thanh lịch, nhẹ nhàng.


































