Những mẫu nhà 2 tầng 3 phòng ngủ đang được lựa chọn rất nhiều trong thời gian hiện nay bởi chính những tiện ích về không gian sống mang lại cho gia chủ. Cùng theo dõi bài viết dưới đây để thấy được rõ hơn về ưu điểm của mẫu nhà, tìm hiểu những mẫu thiết kế dành riêng cho nhà 2 tầng 3 phòng ngủ và biết đâu sẽ là mẫu thiết kế trong tương lai của ngôi nhà của bạn.
Bạn có biết ưu nhược điểm mẫu nhà 2 tầng 3 phòng ngủ?
Nói về mặt ưu điểm của những mẫu nhà 2 tầng 3 phòng ngủ hiện nay điều đầu tiên chính là tính phù hợp. Phù hợp ở đây được nhắc đến khi được áp dụng ở cả khu vực thành thị và nông thôn, dù diện tích lớn hay nhỏ thì mẫu nhà 2 tầng 3 phòng ngủ đểu được gia chủ lựa chọn cho gia đình của mình.

Phù hợp ở đây chính là việc đáp ứng được diện tích chung và diện tích riêng của từng cá nhân trong gia đình. Việc có 3 phòng ngủ rất phù hợp với gia đình có nhiều thế hệ sinh sống từ 3 đến 5 người, hoặc nếu có ý định nâng tầng thì những mẫu nhà 2 tầng 3 phòng ngủ cũng rất dễ để thực hiện, tăng diện tích cho gia chủ.

Phù hợp cũng chính là điều kiện kinh tế của gia đình khi những mẫu nhà này cũng dễ dàng thiết kế, không có bố trí quá phức tạp nên khi tiến hành thi công, chi phí cũng không quá lớn, dự trù cho những mẫu nhà này 400 triệu đồng đến 750 triệu đồng tùy theo từng nguyên vật liệu mà gia chủ sử dụng cũng như yêu cầu khác nhau của từng gia chủ.

Với 3 tiêu chí về mặt phù hợp mà có lẽ những mẫu nhà 2 tầng 3 phòng ngủ trở thành mẫu thiết kế được lựa chọn, phù hợp với mọi loại diện tích cũng như nguồn ngân sách của gia chủ.
Ưu điểm ngôi nhà 2 tầng 3 phòng ngủ chính là sẽ thông thoáng, nhiều ánh sáng vào nhà hơn so với mẫu nhà cấp 4. Nếu như bạn đã tìm hiểu thì đa phần những mẫu nhà này sử dụng mẫu nhà ống, được đánh giá bí bách, thiếu sự thông thoáng. Chính vì vậy kiến trúc sư khi thiêt kế mẫu nhà này thường sẽ bố trí rất nhiều cửa sổ hay khu vực cây xanh xung quanh nhà, từ trong ra ngoài ngôi nhà để tạo được luồng không khí lưu thông trong chính căn nhà này.

Với thiết kế hiện đại, tiện nghi, những mẫu nhà 2 tầng 3 phòng ngủ sẽ không bị lỗi mốt với thời gian vì vậy gia chủ không lo lắng sợ ngôi nhà của mình sẽ cũ sau vài năm xây dựng. Hơn hết, đa phần nội thất sẽ thường có kích thước nhỏ gọn, thông minh, nên khi bước vào căn nhà này sẽ cảm nhận được sự gọn gàng, ngăn nắp, cảm giác không gian vô cùng rộng rãi và thoáng mát.
Tuy nhiên, bất kỳ căn nhà nào cũng có những khuyết điểm, nhưng phần khuyết điểm này rất nhỏ, gia chủ cần chú ý, khắc phục để tạo nên một căn nhà hoàn thiện hơn.

Vì cách bố trí 3 phòng ngủ trong không gian 2 tầng nên không gian cầu thang của những ngôi nhà thường rất hạn chế vì thế đây di chuyển dành cho người già hoặc trẻ nhỏ sẽ gặp khó khăn hơn đôi chút. Vì vậy, những gia chủ sở hữu những ngôi nhà 2 tầng 3 phòng ngủ cần chú ý khi thiết kế phần không gian này để có thể có vừa đáp ứng đủ không gian phòng ngủ cũng như vừa có thể có đảm bảo không gian cầu thang để dễ dàng di chuyển.
Những mẫu nhà 2 tầng 3 phòng ngủ khi được áp dụng tại khu vực thành thị, phố xá sẽ gặp phải tình trạng bí bách. Lý do gây ra việc này chính là bởi diện tích xây dựng khá nhỏ. Lý do thứ hai bởi không gian xung quanh nhà đã bị bao quanh bởi những ngôi nhà liền kề, tứ phía nên gần như không có một khoảng không gian hở giữa hai ngôi nhà gần kề với nhau. Chính bởi sự hạn chế diện tích nhưng gia chủ lại có nhu cầu sử dụng lớn nên thường sẽ xây dựng ngôi nhà cao tầng, từ 3 tầng trở lên. Vậy thử tưởng tượng mà xem không gian nhà bạn chỉ có 2 tầng mà thôi thì sẽ bị che chắn xung quanh, gây ra cảm giác bí bách, khó chịu. Đây chính là khuyết điểm cần được gia chủ chú ý, bàn bạc với kiến trúc sư để ngôi nhà này tương lại của bạn không xảy ra hiện tượng này.
Cách bố trí không gian nhà 2 tầng 3 phòng ngủ

Với những không gian nhà 2 tầng 3 phòng ngủ sẽ được gia chủ bố trí như sau:
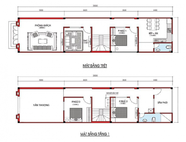
- Với không gian tầng 1 là phòng khách lớn, hoặc có thể thêm 1 không gian nhỏ xinh của phòng sách nhỏ, tiếp đến là khu vực cầu thang thông tầng – đây cũng chính là nơi để ngăn cách giữa hai phần không gian phòng khách và khu vực phía sau. Khu vực phía sau của tầng 1 chính là 1 ngủ, 1 bếp kết hợp với bàn ăn và 1 nhà vệ sinh.
- Tiến lên không gian tầng 2 ban công nhỏ, không gian thờ, 2 phòng ngủ master cùng với khu vực nhà vệ sinh nhỏ chung và một sân phơi. Khu vực cầu thang sẽ được bố trí giữa 2 phòng ngủ master để ngăn cách, cũng như tạo nên sự thông thoáng khí giữa 2 tầng cho không gian nhà.
Trên đây là cách bố trí tham khảo cho mẫu nhà 2 tầng 3 phòng ngủ, gia chủ tùy theo nhu cầu sử dụng của nhà mình mà bố trí cho phù hợp với nhu cầu sử dụng của từng thành viên.
Top 5 mẫu thiết kế nhà 2 tầng 3 phòng ngủ hiện nay
Nhà 2 tầng 3 phòng ngủ, 1 phòng thờ đây là mẫu thiết kế rất phù hợp với đại đa số người dân Việt Nam vì vừa đáp ứng được nhu cầu sinh hoạt nhưng cũng vừa bố trí không gian về tâm linh trong ngôi nhà.

Mẫu nhà này sẽ được thiết kế đơn giản, theo phong cách hiện đại, không chú trọng quá nhiều tới tiểu tiết hoa văn trang trí. Tone màu chủ đạo của căn nhà sẽ là những gam màu sáng, trắng, tạo nên cảm giảm hiện đại, sang trọng, và có cảm giác về độ lớn so với diện tích thực tế.
Mẫu nhà 2 tầng 3 phòng ngủ có 1 phòng thờ được bố trí trên không gian tầng thượng. Không gian này là không gian cao nhất trong nhà, đặt phòng thờ tại vị trí cao nhất cũng chính là hợp với phong thủy, tâm linh của người Việt. Tại không gian này cũng có thể bố trí thêm một phòng ngủ nhỏ để phục vụ vị khách đến chơi nhà.

Không gian này vẫn được gia chủ chú trọng đến những không gian xanh khi bố trí tại các tầng. Đặc biệt tại khu vực sân thượng bố trí thêm khoảng không gian xanh giống như tiểu cảnh cây xanh trước nhà – đây chính là không gian để nghỉ ngơi cho gia chủ sau giờ làm. Thiết kế này được áp dụng rất nhiều tại khu vực thành phố.

Bố trí không gian trong nhà đối với mẫu thiết kế này tương tự như mục bố trí căn nhà 2 tầng 3 phòng ngủ. Ở phần tầng thượng sẽ được bố trí với sân thượng phía trước mặt tiền, kế tiếp là phòng thờ, rồi sẽ đến phòng ngủ và 1 nhà vệ sinh được bố trí trong phòng. Khu vực cầu thang sẽ được bố trí song song với không gian thờ.
Nhà 2 tầng 3 phòng ngủ có ban công rất được ưu chuộng, đặc biệt rất phù hợp với những căn nhà ở khu vực thành phố.

Khu vực ban công chính là khu vực để gia chủ có thể sử dụng biến thành một không gian xanh trong chính căn nhà nhỏ của mình. Tùy theo sở thích, mỗi gia chủ sẽ bố trí không gian này với những tiểu cảnh cây được bố trí phù hợp với tổng thể của ngôi nhà.
Nhà 2 tầng 3 phòng ngủ có sân vườn đây là mẫu thiết kế áp dụng ở khu vực ngoại ô thành phố hay những vùng nông thôn khi diện tích xung quanh nhà lớn.

Những mẫu nhà ở khu vực ngoại ô thành phố sẽ sử dụng thiết kế sân vườn để mang đến cảm giác nghỉ ngơi, thư giãn sau một tuần làm việc của gia chủ. Bao quanh ngôi nhà là cây cối xanh mát, kết hợp với không gian mở, bố trí bởi những cửa kính cỡ lớn, đón gió, đón ánh sáng tự nhiên.

Những mẫu nhà 2 tầng 3 phòng ngủ có sân vườn ở quê sẽ được tối giản hóa đáp ứng nhu cầu chủ yếu của gia chủ về không gian ở nên thiết kế sẽ có sự riêng tư hơn, bố trí thêm vườn cây xung quanh nhà, tạo nên không gian gia đình sinh sống nhiều thế hệ với nhau.
Nhà 2 tầng 3 phòng ngủ có gara ô tô là mẫu nhà được áp dụng rất nhiều tại khu vực thành phố khi đáp ứng được không gian sinh hoạt, và không gian cho mục đích để phương tiện ngay trong chính căn nhà của mình.

Với mẫu thiết kế này, gia chủ có thể bố trí gara oto tùy theo diện tích mình đang sở hữu. Có thể bố trí gara ngay trước phòng khách nếu như diện tích có chiều sâu lớn, đảm bảo được diện tích phía bên trong gia đình sử dụng lại vừa để được oto ngay tại nhà.

Hoặc nếu chiều ngang của ngôi nhà rộng hơn thì bố trí gara ngay cạnh phòng khách của căn nhà cũng là ý tưởng không tồi. Dù bố trí như thế nào thì được đánh giá là mẫu thiết kế chuẩn top thiết kế xu hướng 2021 hiện nay, hiện đại tiện nghi.
Nhà 2 tầng 3 phòng ngủ có tum là mẫu thiết kế xu hướng xuất hiện gần đây khi nhu cầu gia chủ không chỉ đơn giản là không gian sinh hoạt mà còn là không gian xanh ngay trong ngôi nhà.

Không gian tum được bố trí mẫu nhà 2 tầng 3 phòng ngủ này ngay tại khu vực mặt tiền của ngôi nhà hay ở khu vực phía sau, hoặc được bố trí ở khu vực sân thượng. Đây chính là thiết kế xanh được chuyên gia đánh giá rất cao trong thiết kế nhà ở hiện nay.
Xem thêm:


































