“ An cư lạc nghiệp” thành ngữ để chỉ sự quan trọng trong việc ổn định cuộc sống rồi mới tính toán công việc làm ăn lâu dài. Ngày nay những đôi vợ chồng trẻ được bố mẹ cho ra ở riêng sớm để tự lập và có trách nhiệm với cuộc sống của mình. Họ cần có một ngôi nhà làm mái ấm. Tuy nhiên để xây dựng được ngôi nhà mới khang trang không phait điều dễ dàng. Chúng tôi xin đưa đến cho quý độc giả mẫu nhà 3 tầng 4x10m tiết kiệm chi phí mà vẫn chất lượng và thẩm mĩ.
Tìm đến phối cảnh đẹp nhất cho mẫu nhà 3 tầng 4x10m
Trong tất cả các lĩnh vực có lẽ ngành xây dựng là “giàu” nhất khi có cho mình những “ nghệ sĩ” tài hoa và khéo léo bậc nhất để làm nên các công trình vĩ đại phục vụ cho đời. Gần gũi với chúng ta nhất có lẽ là công trình nhà ở. Để xây dựng nên nó là cả một quá trình gian nan vất vả đầy sự cố gắng của cả gia chủ lẫn kiến trúc sư và những người thợ xây dựng. và mọi sự cố gắng nỗ lực sẽ luôn mang lại thành quả ngọt ngào đó là những công trình đẹp đẽ và sự bền bỉ vượt thời gian.

Trước mắt quý độc giả đang chiêm ngưỡng chính là ngôi nhà 3 tầng 4x10m với kiến trúc độc đáo hiện đại phá cách theo kiểu 3,5 tầng vì tầng 2 và tầng 3 không có sự phân chia rõ rang, không có lan can ban công. Một điểm đặc biệt nữa tầng trên không có cửa chính nhìn ra bên ngoài mà chỉ có hệ thống cửa sổ mở rộng 4 cánh nên vẫn đảm bảo sự mát mẻ và thoáng đãng cho cả không gian. Thêm vào đó là cây cối xung quanh tươi tốt nên dù là nhà ống khép kín nhưng vẫn đảm bảo sự thoải mái nhất cho gia đình.

Trước mắt quý độc giả đang thấy dường như là một bức tranh cho sự sáng tạo vượt bậc của ngành kiến trúc xây dựng. Một ngôi nhà đẹp như mơ, hình dung như cổ tích giữa đời thường với những tán cây xanh mướt hoa cỏ dịu dàng. Thêm vào đó là thiết kế mái dốc của mẫu nhà cấp 4 gần gũi, thân thuộc sẽ mang lại cảm giác bình yên cho gia chủ. Có thể nói đây là đỉnh cao của lối kiến trúc hài hòa giữa hiện đại và truyền thống.

Một ngôi nhà bề thế khang trang 3 tầng hiện hữu trước mắt chúng ta được đội ngũ kiến trúc sư tài năng nhất thiết kế. Ngôi nhà có một cửa chính 4 cánh rộng để đón khách và một cánh cửa phụ chuyên dùng cho người nhà đi lại. cả tầng 2 và tầng 3 đều ưu tiên trồng các loại thân cây dây leo để rủ bóng mát và làm đẹp cho ngôi nhà. Giữa lòng phố thị ồn ào tấp nập mà được sống giữa không gian xanh hòa hợp cùng thiên nhiên là điều tuyệt vời nhất mà mẫu nhà này mang lại.

Thêm một cơ ngơi khang trang nữa khiến quý bạn đọc không thể rời mắt chính là ngôi nhà 3 tầng sơn trắng tinh khôi và điểm vào kiến trúc này là những bức tường, ô cửa trang trí xếp li màu nâu nổi bật. Phía ban công rộng rãi trồng thêm cây xanh để gia chủ và các thành viên trong gia đình có thể thư giãn và vui chơi.

Gửi tặng các bạn thêm một mẫu nhà 3 tầng diện tích 4x10m đẹp. Vô cùng tráng lệ, vô cùng huy hoàng, ngôi là khang trang lộng lẫy này là sản phẩm của trí tuệ cao của ngành xây dựng. Mái thái hai tầng kiên cố vững chắc đảm bảo luôn hiên ngang trước những giông bão mạnh mẽ của thời tiết. Tuy nhiên kiến trúc sư đã khéo léo mang lại sự mềm mại duyên dáng ngôi nhà khi thiết kế lan can bann công theo lối tân cổ điển mềm mại. Hơn thế nữa chủ nhà còn rất đầu tư khi bố trí thêm nhứng ánh đèn vàng trang trí lung linh đồng điệu với màu sơn vân vàng nổi lạ mắt.

Có thể nói cái đẹp hiện hữu ngay trên khối bê tông thô ráp sần sùi khi được chau chuốt và mài giũa qua đôi bàn tay nghệ thuật của “người nghệ sĩ” xây dựng. Những công trình kiên cố và mang đậm giá trị thẩm mĩ như thế này luôn là kiểu mẫu của mọi thời đại.
Tham khảo bản vẽ mẫu nhà 3 tầng 4x10m chi tiết nhất
Bản vẽ thiết kế có vai trò rất quan trọng trước khi thi công công trình bởi nó là sự mô phỏng kiến trúc đầy đủ nhất của ngôi nhà và cũng là cơ sở để vận dụng từ lí thuyết vào thực tiễn xây dựng. Cả chủ nhà và thợ thi công cần phải có bản vẽ trong tay thì mới nắm rõ được những bước đi của mình. Và để có được bản vẽ hoàn hảo nhất phải cần đến đội ngũ kiến trúc sư có sự am hiểu về kết cấu ngôi nhà để chỉ ra những điều cần thiết khi thi công để làm sao gia chủ và các bác thợ nề sẽ hình dung được toàn cảnh ngôi nhà một cách chi tiết đến từng bộ phận tránh tình trạng chỉnh sửa, chắp vá thừa thiếu làm mất thẩm mĩ của ngôi nhà mà còn tăng chi phí phát sinh.

Tại sao kiến trúc nhà ở theo kiểu thiết kế mẫu nhà ống 3 tầng lại được ưa chuộng nhiều đến vậy? Có lẽ chính là nhờ tính phù hợp cao cả về kinh tế lẫn công năng. Sau đây mời các bạn chúng ta hãy cùng tham khảo bàn vẽ chính xác nhất của mẫu nhà 3 tầng đẹp diện tích 4x10m dưới đây.
Mặt bằng 3 tầng phân khu, phân phòng rõ ràng mà trong đó từ nội thất cho đến các phòng đều có sự tính toán sao cho phù hợp nhất với từng không gian sử dụng của các thành viên trong gia đình. Mẫu nhà ống 3 tầng 4x10m này chính là sản phẩm có sự góp mặt của mẫu thiết kế mới trong xây dựng đó là kiểu nhà lệch tầng. Ưu điểm củ nó là có thể “ăn gian” diện tích nhà bạn và mở rộng không gian lớn nhất trong cùng một diện tích.

Mặt bằng tầng 1 gồm hai gian chính là phòng khách rộng rãi, thiết kế hiện đại và tối giản được tính toán phù hợp với hướng nhà, hướng cửa. Tiếp theo bên trong là nhà bếp, khu này chiếm diện tích lớn nhất vì nó còn được chia thành các phòng nhỏ hơn như: phòng ăn, nhà vệ sinh phụ, bếp nấu.

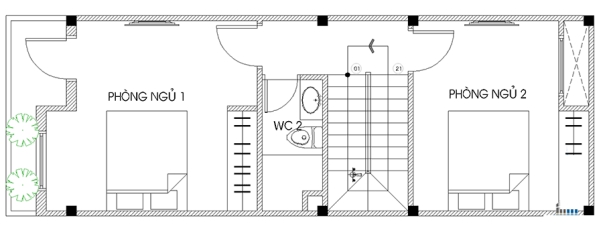
Vì là sàn lệch tầng nên các phòng sẽ không đảm bảo cân đối và thẳng nhau kể cả tầng 2 và tầng 3 cũng vậy. Lên đến mặt bằng tầng 2 gia chủ tập trung bố trí làm khu vực phòng ngủ của các thành viên. Phần sàn thấp được chia làm hai phòng ngủ của con cái và một phòng vệ sinh sử dụng chung ở cuối dãy tầng. Còn phần sàn cao được thiết kế làm phòng ngủ của bố mẹ với nhà vệ sinh khép kín bên trong tiện lợi.

Trên tầng 3 cũng được chia làm hai khu vực chính. Phần hướng ra ngoài được làm phòng thờ trang trọng, thoáng sáng và là phòng cao nhất trong nhà. Ngoài ra phần diện tích còn lại để làm một phòng ngủ vừa và một sân phơi nhỏ.
Nội thất dành cho mẫu nhà 3 tầng 4x10m bạn không thể bỏ qua
Phòng khách được thiết kế sang trọng theo lối cổ điển hoàng gia châu Âu nổi bật với gam màu trắng sữa dưới ánh đèn trùm lung linh mang lại cảm giác vô cùng ấm áp. Với những ai yêu thích mẫu phòng khách này thì tuyệt đối đừng bỏ qua bộ ghế sofa cổ điển này.

Còn đây là phòng bếp kết hợp với phòng ăn ngay tại tầng 1 của ngôi nhà. Tiêu chí của gia đình là thiết kế nội thất phòng bếp làm sao để luôn gọn gàng và ngăn nắp nhất. Vị trí để đặt đồ dùng cũng rất phù hợp. Màu xanh lá cây tươi mát của lớp men gạch ốp tường cao cấp chắc hẳn sẽ làm giảm đi rất nhiều cái nóng nực nơi đây. Những bức tranh trang trí cũng đảm bảo phù hợp với mục đích sử dụng của gian bếp.

Và đây là một phòng ngủ theo phong cách Nhật Bản. Bàn làm việc, bàn thưởng trà được đặt ngay cạnh giường ngủ. Bức tranh thủy mặc vẽ hoa anh đào treo trước đầu giường mang dậm văn hóa xứ sở mặt trời mọc dành cho chủ nhà nào yêu thích quốc gia này

Còn đây là maauc nội thất đồng bộ trong cùng một ngôi nhà. Nếu ngoại thất được trang trí bởi gạch ốp màu nâu trầm thì nội thất bên trong lại nổi bật với gam màu trắng ghi hiện đại của phòng khách và màu hồng trẻ trung của phòng ngủ. sự bày trí nội thất luôn tuân theo nguyên tắc tôn trọng người sử dụng nên các sản phẩm mang đến ngôi nhà của bạn luôn được đánh giá tốt nhất.
Trên đây là nhưng cụ thể về phố cảnh, bản vẽ và nội thất của mẫu nhà 3 tầng 4x10m phổ biến nhất hiện nay mà chúng tôi muốn gửi đến các bạn. Một lần nữa xin thưa rằng xaydungso đang ngày càng vươn xa hơn nữa để tiếp cận mục tiêu của mọi quý khách hàng. Hãy cho chúng tôi cơ hội để biến ước mơ của bạn trở thành hiện thực.
Xem thêm:































