Những ý tưởng xây nhà với diện tích 200m2 sáng tạo, tiện ích và phù hợp đang là nỗi băn khoăn của nhiều hộ gia đình. Kiểu nhà cấp 4 hiện nay dường như đang lên ngôi với nhiều tiện ích, công năng và hiện đại hơn mà vẫn đảm bảo tiết kiệm chi phí. Với diện tích 200m2, chúng tôi tin rằng sẽ có nhiều lựa chọn về kiểu dáng, phong cách hoàn hảo đem đến cho bạn sự ưng ý nhất. Hãy cùng Xây Dựng Số tham khảo những mẫu nhà cấp 4 diện tích 200m2 thông qua bài viết dưới đây.
Mẫu nhà cấp 4 diện tích 200m2 có gác lửng sang trọng

Mẫu thiết kế nhà cấp 4 đẹp có không gian ngoài trời sang trọng và khá đẹp. Thay đổi không gian bằng cách sử dụng mái chéo là một ý tưởng rất hay. Không gian sử dụng được tối ưu hóa công năng sử dụng và tầng lửng thông thoáng nhờ sử dụng hệ thống kính cường lực. Mặt tiền rộng rãi tối ưu, giúp ngôi nhà thanh thoát không bị xô bồ.
Mẫu nhà cấp 4 diện tích 200m2 kiểu xưa

Xây nhà cấp 4 diện tích 200m2 có tốn kém và không nhận được nhiều sự quan tâm của gia chủ. Với mẫu nhà dưới đây chi phí xây dựng khoảng 600 triệu rẻ cho một gia đình trẻ. Thiết kế nội thất căn hộ chung cư khoảng 3 phòng ngủ sang trọng theo phong cách hiện đại. Có một mô hình cột nhỏ từ tân cổ tạo kiến trúc sắc nét và tỉ mỉ. Với sự kết hợp màu sơn ấn tượng, hài hòa tạo nên sự kết hợp gọn gàng, tiện nghi.
Mẫu nhà cấp 4 diện tích200m2 kinh phí xây dựng thấp

Căn nhà cấp 4 rộng 200m2 có kinh phí xây dựng thấp. Sử dụng tông màu nhã nhặn kết hợp với tông xanh xám tạo nên sự hài hòa và bắt mắt cho ngôi nhà. Sử dụng toàn bộ hệ thống cửa kính viền nâu khiến ngôi nhà trở nên tinh tế hơn.
Kiến trúc cân đối với mặt tiền gọn gàng giúp thu hút người nhìn. Cách bố trí nội thất nhà cấp 4 này khá hợp lý và khéo léo đảm bảo thi công nội thất mang đến không gian rộng rãi và thoáng mát nhất cho gia chủ.
Mẫu nhà cấp 4 mái thái diện tích 200m2 sang trọng

Ngôi nhà được thiết kế hiện đại với mái thái đen kết hợp với sơn tường màu trắng sang trọng. Bản vẽ thiết kế nhà cấp 4 mái thái thể hiện giải pháp thiết kế hiện đại, rộng rãi và thoáng mát. Ngôi nhà được thiết kế phòng khách đối diện phòng thờ và 3 phòng ngủ, phòng bếp và phòng ăn được lấy xây dựng kiểu âm tường tạo không gian sinh hoạt chung thoải mái và cuối cùng là khu vệ sinh.
Mẫu nhà cấp 4 diện tích 200m2 kết hợp sân vườn

Mẫu nhà cấp 4 đẹp 200m2 này mang phong cách nhà vườn độc đáo. Gia chủ sẽ cảm nhận được sự thoải mái, nhẹ nhàng và yên bình, ngay cả trong một khu phố bị lãng quên hoặc một thành phố lớn. Bên ngoài sân được trồng nhiều cây xanh mang đến không khí trong lành, tươi mát vào bên trong ngôi nhà để gia chủ luôn cảm thấy mát mẻ khi về nhà, thêm vào đó là cảm giác thiên nhiên gần gũi với con người làm cho cuộc sống thêm phần giá trị và sống động.
Mẫu nhà cấp 4 diện tích 200m2 ấn tượng

Việc sử dụng mái thái không còn xa lạ với người Việt Nam bởi những ưu điểm của nó. Điều quan trọng, những ngôi nhà mái thái này còn được thiết kế với độ dốc thoát nước tốt và phong cách xây dựng độc đáo. Từ màu sơn trắng hiện đại đến cửa kính cách âm sang trọng. Bị xúc phạm,
Nhà cấp 4 có sân vườn bắt mắt, rộng rãi, thoáng mát tạo không gian xanh cho gia chủ, công năng sử dụng gồm: phòng khách, phòng bếp + ăn, phòng ngủ, phòng tắm + wc.
Mẫu nhà cấp 4 diện tích 200m2 phong các cổ điển

Ngôi nhà được thiết kế với sự kết hợp khéo léo giữa phong cách cổ điển và đồng quê. Ngoại thất sang trọng và đáp ứng tối ưu công năng sử dụng của ngôi nhà. Ngôi nhà nông thôn đơn giản sử dụng tông màu trắng xám trang nhã hài hòa với màu sắc sang trọng và tinh tế của mái nhiều cấp, bắt mắt người nhìn. Công năng của bản vẽ CAD nhà cấp 4 nông thôn sử dụng từng phòng được thiết kế thông minh và hợp lý, không gian mỗi phòng đều rộng rãi, thoáng mát mang đến sự thoải mái nhất cho gia chủ.
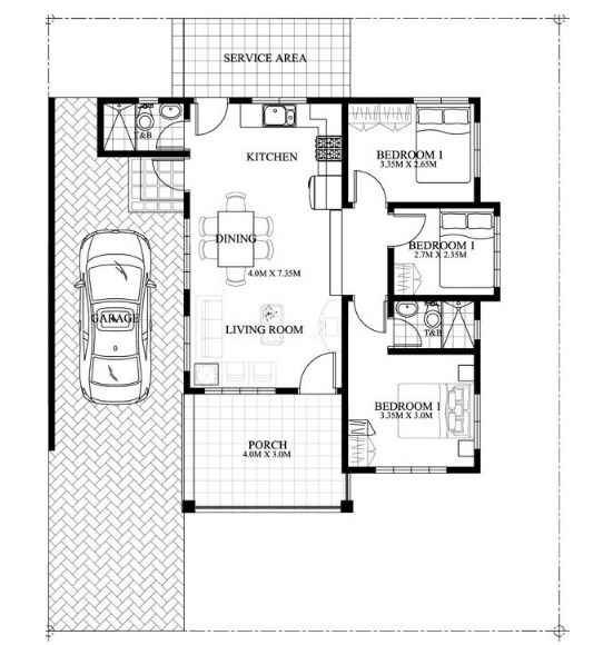
Mẫu nhà cấp 4 diện tích 200m2 có 3 phòng ngủ hiện đại nhất

Tuy là một mẫu thiết kế nhà đẹp đơn giản nhưng với sự sáng tạo tinh tế trong cách tạo hình, các kiến trúc sư đã vẽ nên một ngôi nhà đẹp như những mẫu biệt thự 1 tầng đẹp. Ngôi nhà kết hợp tiểu cảnh sân vườn đẹp như mơ với sân vườn trang trí nhỏ nhưng đã giúp ngôi nhà trở nên lung linh và ấn tượng hơn rất nhiều. Sự kết hợp sáng tạo giữa màu vàng của phào chỉ kết hợp với màu cà phê nhạt của tường chính và phía trên là điểm nhấn xanh của mái - và mảng tường ốp đá tinh tế tạo nên một tổng thể. và thống nhất, với một sự hài hòa đầy cá tính. Nhìn từ mọi góc độ, công trình nhà cấp 4 vẫn toát lên vẻ đẹp riêng.

Không gian công năng của mẫu nhà cấp 4 này gồm 1 phòng khách + phòng ăn + bếp + 1 wc sử dụng chung và 2 phòng ngủ, phòng vệ sinh lớn có phòng vệ sinh. Cách bố trí không gian tòa nhà rất linh hoạt, phù hợp với nhu cầu của người sử dụng. Tòa nhà sử dụng 2 lối vào, một là lối đi phụ từ nhà để xe đến bếp và gần nhà vào phòng vệ sinh - giúp mọi người khi ra về có thể rửa tay chân sạch sẽ trước khi đi vào các khu vực khác của gia đình. Đi từ ngoài vào trong công trình theo lối đi chính, chúng ta sẽ băng qua một sảnh lớn để vào phòng khách + phòng ăn + bếp xuyên suốt ngôi nhà. Qua không gian phòng khách cách bố trí tốt là một không gian độc lập với 3 phòng ngủ như trong tiêu đề của bài viết.
Như vậy với việc đọc mẫu nhà cấp 4 đẹp đơn giản diện tích 200m2 có 3 phòng ngủ mà công ty chúng tôi giới thiệu đến toàn thể bạn đọc có nhu cầu xây nhà hoặc đang tìm kiếm tài liệu tham khảo trong thiết kế nhà vườn 1 tầng đẹp như bạn mong muốn. Chúng tôi hy vọng bạn có thêm những lựa chọn mới cho việc thiết kế ngôi nhà mơ ước của mình.
Mẫu nhà cấp 4 diện tích 200m2 đơn giản, hiện đại

Kiến trúc được thiết kế hiện đại, đơn giản ở mức tối thiểu, mang phong cách thuần Việt, mang đến không gian sống khoa học và mang đậm dấu ấn của phong cách truyền thống hiện đại. Không gian kiến trúc của mẫu nhà vườn cấp 4 200m2 khá quen thuộc với dấu ấn văn hóa của mái ngói đỏ, hệ thống cột vuông mang lực phân bố đều tạo hiệu ứng tinh tế về mặt cảm quan. Mặt tiền của mẫu thiết kế nhà được ốp gạch, dầm cũng như sơn tường để tạo nên sự đồng bộ cũng như đồng bộ và thống nhất. Hệ thống phào chỉ được thiết kế xuyên suốt mặt tiền của mẫu nhà, cũng như thiết kế ngói bên trái của mẫu nhà tạo nên hiệu quả thẩm mỹ cao và vô cùng cuốn hút của mẫu nhà vườn. Tầng 4 200m2. Hệ thống phào chỉ cũng như bậc tam cấp được thiết kế giả gỗ sang trọng và tinh tế, hệ thống tường rào cùng cửa sổ, cửa nhôm kính tạo nên nét ấn tượng cho mẫu nhà.

Khung cảnh thiên nhiên hút tầm mắt bên khung cửa sổ cũng là linh hồn của ngôi nhà vườn đẹp cấp 4 này. Không gian cần được làm đẹp và gợi lên những ý nghĩa đặc biệt và sự khác biệt trong thiết kế của ngôi nhà. Một cảm giác bình yên đến khó quên khi bạn đứng trước những đồ trang trí trong nhà. Ví dụ nhà vườn cấp 4.200m2 với gam màu sáng trung tính, tạo hiệu ứng màu sắc tốt cho thị giác và dễ gây cảm tình cho người đối diện. Chủ đầu tư là một đại gia đã nghỉ hưu, ông muốn có một chốn yên bình để nghỉ ngơi, an hưởng tuổi già sau một thời gian ngược xuôi. Khi bước qua hầu hết cuộc đời con người, giá trị tinh thần cũng như sự bình yên mới cảm nhận hết được sự quý giá của nó. Mẫu biệt thự nhà vườn cấp 4 có tiến độ thiết kế và thi công khá dài, kiến trúc sư khá cẩn thận và xem xét kỹ lưỡng phương án thiết kế, thi công từng mảng cũng như vật liệu xây dựng.
Mẫu nhà cấp 4 mái bằng diện tích 200m2
Mẫu biệt thự cấp 4 theo phong cách kiến trúc hiện đại được thiết kế theo nhu cầu thực tế cũng như kích thước khu đất. Với tông màu trắng - xám đen làm tông màu chủ đạo, không gian trở nên vô cùng gần gũi trong không gian xanh rộng lớn bao quanh khuôn viên. Với cách xử lý đơn giản nhưng hiệu quả, không gian ngoại thất của mẫu nhà cấp 4 hiện đại trở nên vô cùng bắt mắt.

Với kết cấu gồm các hình khối độc đáo được xử lý nét, giật cấp và màu sắc, không gian bên ngoài của mô hình tạo nên điểm nhấn nổi bật. Vật liệu tạo nên không gian ngoài trời khá đơn giản và ít hoa văn trang trí như đã thổi hồn vào từng mẫu thiết kế nhà cấp 4. cũng quan tâm. Phong cách kiến trúc trẻ trung, hiện đại này vừa cho phép gia chủ tiết kiệm tối đa chi phí xây dựng vừa hướng đến xu hướng mà nhiều chủ đầu tư đang muốn hướng tới là mang không gian xanh vào chính gia đình mình.
Trên đây là những mẫu nhà cấp 4 diện tích 200m2 đẹp, tiện ích và hiện đại mà Xây Dựng Số gửi đến bạn. Hy vọng bạn sẽ tìm được nhiều ý tưởng mới mẻ cho ngôi nhà sắp tới của mình nhé!







