Ngày nay, mẫu nhà cấp 4 diện tích 6x18m đang thu hút sự quan tâm của nhiều gia đình trẻ bởi sự tiện ích, hiện đại, đảm bảo yêu cầu công năng sử dụng của hộ gia đình đông người mà chi phí xây dựng vô cùng hấp dẫn, phù hợp với túi tiền của gia chủ. Hãy cùng Xây Dựng Số tham khảo mẫu nhà cấp 4 diện tích 6x18m qua bài viết dưới đây nhé
Mẫu nhà cấp 4 diện tích 6x18m mái bằng đẹp

Mẫu nhà cấp 4 diện tích 6x18m được giới thiệu đầu tiên là mẫu nhà mái bằng. Đây là mẫu nhà phổ biến và được nhiều gia chủ lựa chọn. Phần sân trước của ngôi nhà khá rộng rãi được các kiến trúc sư đã sử dụng cỏ nhân tạo mang đến sự dễ chịu và không gian khá sáng cho toàn bộ ngôi nhà. Hệ thống cửa kính khung nhôm màu đen ấn tượng kết hợp bức tường sơn trắng ghi ngăn cách giữa cửa phòng khách và cửa để xe máy của gia chủ tạo nên kiến trúc mặt tiền gây ấn tượng mạnh cho khách đến thăm. Hình chữ nhật sọc trắng khá ấn tượng kếp hợp đèn led trắng giúp ngôi nhà của bạn nổi bật khi trời nối đất. Được bao bọc bởi hệ khung chắc chắn, góc cạnh đặc trưng của kiến trúc hiện đại, giúp ngôi nhà hạn chế ánh nắng và tạo thành sảnh trước khi vào nhà.

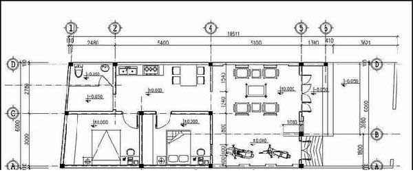
Bản vẽ thiết kế của mẫu nhà cấp 4 diện tích 6x18m này được kiến trúc sư chừa một khoảng sân nhỏ trước khi bước vào không gian chính bên trong. Khoảng không gian nhỏ này giúp gia chủ có thể đặt thêm một vài chậu cây xanh trước nhà tạo không gian xanh mát giúp ngôi nhà của mình mát mẻ hơn vào mùa hè. Đây cũng là không gian vô cùng hữu ích để những đứa trẻ trong nhà bạn có một sân chơi an toàn. Kiến trúc sư đã đặt một bậc cầu thang ở gian giữa để hai sân trong nhà và khu sinh hoạt được ngăn cách. Bước này cũng giúp không gian bên trong không bị bụi bẩn từ bên ngoài vào hay từ những đôi giày bạn di chuyển hàng ngày. Một phần nhỏ diện tích phòng khách được tách ra để tạo thành chỗ để xe máy cho gia chủ. Chỗ để xe của chủ nhà được bố trí thành cửa hai cánh riêng biệt không sử dụng cầu thang, giúp chủ nhà có thể di chuyển xe vào nhà một cách dễ dàng.
Khu vực phòng khách sẽ được đặt khá đơn giản với một bộ bàn ghế sofa hoặc thiết kế nội thất gỗ hiện đại không sử dụng nhiều hoa văn kiểu cách để phù hợp với không gian và diện tích, mặt tiền chỉ 6m. Khu bếp ăn liên thông với khu sinh hoạt chung này và kết hợp với bàn ăn rất tiện lợi. Cụ thể, khu vực bếp này giúp gia chủ có thể tổ chức những bữa tiệc nhỏ cùng gia đình hoặc bạn bè vào cuối tuần. Cuối nhà có khu vệ sinh đầy đủ tiện nghi cho các thành viên sử dụng. Không gian nhà vệ sinh sẽ bao gồm thêm không gian để cung cấp chỗ giặt và phơi đồ cho gia chủ. Hai phòng ngủ liền kề nhau và song song là khu bếp và khu vệ sinh. Hai không gian phòng ngủ của mẫu nhà cấp 4 diện tích 6x18m này có diện tích bằng nhau cho gia đình từ 3 đến 4 người sử dụng.
Mẫu nhà cấp 4 diện tích 6x18m mái lệch ấn tượng

Mẫu nhà cấp 4 diện tích 6x18m thứ 2 mái dốc trông rất ấn tượng cho những gia chủ yêu thích sự độc đáo. Ấn tượng phía trước ngôi nhà của mẫu nhà này là sân vườn với những khoảng không gian tạo sự thư thái. Phần sân trong sử dụng gạch giả đá ấn tượng mang vẻ đẹp đương đại làm nổi bật phong cách kiến trúc đương đại ngày nay. Khu vực cửa chính dẫn vào khu vực phòng khách sử dụng cửa kính khung nhôm 2 cánh và hình hộp chữ nhật bên cạnh sơn đen tạo điểm nhấn nổi bật trên nền trắng kết hợp bậc 3 làm nổi bật mặt tiền ngôi nhà.
Điểm đặc biệt của mẫu nhà cấp 4 diện tích 6x18m mà các gia chủ tương lai sẽ chú ý đó chính là gác lửng, phần gác lửng này thu hút phong cách trẻ trung hơn gia chủ có thể thêm một phòng ngủ với thiết kế nội thất ấn tượng. Phần mái của ngôi nhà cũng là một điểm không thể bỏ qua. Thiết kế tạo ấn tượng với kích thước khổng lồ giúp che nắng và không bị dột nước khi trời mưa.
Mẫu nhà cấp 4 diện tích 6x18m mái thái hiện đại

Mẫu nhà cấp 4 diện tích 6x18m mái thái kết hợp với phong cách tân cổ điển sang trọng, cổ điển nhưng không kém phần hiện đại và tiện nghi. Phần cổ điển được thể hiện qua hệ thống cột, cột bằng đá kiên cố. Một số bức tường có các đường kẻ nhấn mạnh ánh nhìn của người khác. Phần tường được sơn màu trắng pha chút vàng theo lối kiến trúc cổ điển thường được sử dụng. Kết cấu mái với những đường nét kiểu cách với đường nét uyển chuyển.
Đường nét kiến trúc hiện đại với khung nhôm trắng tạo điểm nhấn cho ngoại thất. Nét hiện đại thể hiện những chi tiết rườm rà, thay vào đó là những đường nét hiện đại nhưng không kém phần tinh tế cho tổng thể thiết kế của ngôi nhà. Cây xanh đặt xung quanh nhà là những cây nhỏ, phù hợp với tổng thể thiết kế. Sự kết hợp giữa các gam màu trắng, nâu và ghi cũng được coi là một nét kiến trúc hiện đại của ngôi nhà.

Để có được bản vẽ thiết kế nhà cấp 4 đẹp diện tích 6x18 m cần sự đầu tư thời gian và công sức của chính gia chủ và kiến trúc sư. Cả hai bên cần trao đổi trung thực về các vấn đề liên quan, chẳng hạn như: Gia chủ cần thể hiện rõ các vấn đề liên quan đến nhu cầu sử dụng hoặc phong thủy. Tôi nên đặt cửa trước ở đâu? Đặt vị trí của căn phòng: phòng ngủ, phòng khách, khu vực bếp, v.v. Kiến trúc sư phải đưa ra quan điểm và chỉnh sửa các yêu cầu của khách hàng để mẫu nhà có tính thẩm mỹ, đạt tiêu chuẩn của khách hàng và đảm bảo các thông số kỹ thuật.
Với thiết kế này, kiến trúc sư lược bỏ phần diện tích sân trước và tiến hành thi công gara tại đây để đảm bảo diện tích bên trong. Phòng khách và gara được bố trí cạnh nhau, phòng khách và gara ô tô hai bên là 6m, mặt tiền 3m. Hầm để xe được thiết kế thông thoáng, không thông thoáng nhằm ngăn mùi xe vào phòng khách của gia chủ. Khu vực sinh hoạt chung được bài trí đơn giản với bộ bàn ghế sofa nhỏ, bàn và kệ tivi, bạn có thể sử dụng tivi treo tường để tiết kiệm diện tích tối đa. Phần cửa chính thường sử dụng hệ thống cửa kính khung nhôm, bên trong kết hợp hệ rèm tạo không gian riêng tư bên trong, hạn chế ánh sáng gay gắt vào mùa hè. Bên ngoài, bạn có thể sử dụng thêm hệ thống cửa cuốn để tăng tính bảo mật và an toàn cho ngôi nhà của bạn.
Khu bếp ăn liên thông với khu sinh hoạt chung là không gian mở với bàn ăn làm nổi bật chiều sâu 18m của mẫu nhà cấp 4 diện tích 6x18m. Dưới đây là một số không gian vệ sinh tiện lợi cho gia chủ và khách đến chơi nhà. Hai phòng ngủ được đặt ở những vị trí sau: Đặc biệt, phòng ngủ thứ 2 nằm cuối nhà và có diện tích rộng hơn các phòng ngủ khác, hai phòng ngủ đáp ứng nhu cầu của một gia đình có từ 3 đến 4 thành viên sinh sống đem đến sự tiện ích cho gia chủ.
Trên đây là top 3 mẫu nhà cấp 4 diện tích 6x18m đẹp và hiện đại nhất mà Xây Dựng Số gửi đến bạn. Hy vọng bạn sẽ tìm được nhiều ý tưởng mới mẻ cho ngôi nhà sắp tới của mình nhé!

































