Mẫu nhà cấp 4 diện tích 80m2 đẹp sẽ là một lựa chọn lý tưởng cho các cặp vợ chồng trẻ do kinh phí xây dựng khá rẻ. Mẫu nhà này phù hợp với những công trình xây dựng nhà ở nông thôn, ngoại thành hoặc những khu đất có diện tích rộng, đây là kiểu nhà truyền thống nhưng được các kiến trúc sư thiết kế xây dựng theo phong cách hiện đại. Hãy cùng Xây Dựng Số tham khảo bài viết dưới đây để có thêm nhiều ý tưởng nhé
Mẫu nhà cấp 4 mái lệch diện tích 80m2

Như mọi người đã biết, những ngôi nhà truyền thống luôn có mái hiên để che mưa nắng và tránh ánh nắng chiếu trực tiếp vào bên trong nhà. Tại đây, kiến trúc sư đã để lại một phần nhỏ phía trước nhà và tận dụng để làm hiên nhà. Mẫu nhà cấp 4 đẹp 80m2 có cửa sổ lắp kính giúp ngôi nhà trông hiện đại và sang trọng hơn. Nền nhà được lát bằng đá hoa cương nên có khả năng chống thấm, chống ẩm chân tường và tăng độ vững chắc cho ngôi nhà. Phần mái được thiết kế đặc biệt nửa chéo và nửa ngang để tạo thêm sự thú vị cho ngoại thất ngôi nhà của bạn. Kiến trúc sư sử dụng nhiều đường kẻ ngang để trang trí và nhấn mạnh chiều rộng của ngôi nhà. Phần mái bên trái với đường kẻ ngang còn giúp chắn nước mưa tránh ẩm mốc hay rơi vãi sau một thời gian sử dụng.

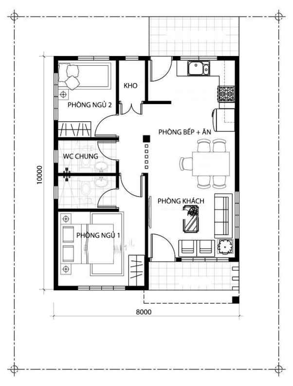
Mặt bằng mẫu nhà cấp 4 đẹp 80m2 được thiết kế đơn giản. Ngay lối vào có phòng khách và phòng ăn + bếp. Có hai phòng ngủ, phòng rộng rãi có phòng tắm riêng và phòng ngủ nhỏ. Có một nhà kho nhỏ, nơi bạn có thể lưu trữ và bảo quản đồ đạc của mình.
Mẫu nhà này có ưu điểm là được xây dựng trên diện tích đất rộng, bốn phía đều thông thoáng, giúp lấy ánh sáng tự nhiên và thông gió từ mọi phía. Xung quanh nhà có sân vườn giao hòa với thiên nhiên, không khí dễ chịu.
Mẫu nhà cấp 4 diện tích 80m2 mái thái nổi bật

Lựa chọn phong cách thiết kế kiến trúc nhà cấp 4 đẹp mái thái 80m2 luôn là sự lựa chọn thông minh và phù hợp nhất cho ngôi nhà có diện tích nhỏ hẹp. Với những hộ gia đình nào sở hữu mảnh đất từ 80m2 đến 100m2 hoặc xác định mức kinh phí xây dựng từ 300 đến 400 triệu thì hãy xem những mẫu nhà cấp 4 mái thái cực lý tưởng sau đây:
Ngôi nhà cấp 4 đẹp diện tích 80m2 được thiết kế sân trước và sau rất thoáng. Tông màu trắng xám của chỉ vàng tạo điểm nhấn và phù hợp với diện tích nhỏ khoảng 80m2 đến 100m2. Phòng khách được đặt cuối cùng, cuối cùng là phòng bếp, ở giữa là hai phòng ngủ.
Mẫu nhà cấp 4 diện tích 80m2 có hai phòng ngủ.

Cùng chiêm ngưỡng mẫu nhà rộng 80m2 có 2 phòng ngủ vô cùng hiện đại phù hợp cho các cặp vợ chồng trẻ hiện nay. Một trong những mẫu nhà mơ ước dành cho các cặp vợ chồng có 1 hoặc 2 con. Xu hướng nội thất hiện đại nổi bật với lối thiết kế kiến trúc đơn giản. Sân trước ngôi nhà được thiết kế mái tôn che nắng tạo không gian thưởng trà, thư giãn tuyệt vời, mặt tiền rộng rãi thoáng mát, thiết kế tone màu trắng sáng, cửa trước bằng nhôm kính rất hiện đại và đẹp.

Thiết kế phòng khách đơn giản, hiện đại với chiếc kệ tivi nhỏ để tiết kiệm diện tích.

Thiết kế phòng bếp nhỏ xinh với tủ bếp nhựa có tính thẩm mỹ cao.

Nội thất phòng ngủ đơn giản, hiện đại tạo không gian riêng tư, gần gũi và thân mật.
Mẫu nhà cấp 4 diện tích 80m2 hiện đại

Bên cạnh những ngôi nhà cao tầng hiện đại thì nhà cấp 4 vẫn là lựa chọn của nhiều người. Chỉ với diện tích 80m2, ngôi nhà này đã để lại dấu ấn đặc biệt không chỉ với mọi người, mà còn cả những nhà thiết kế trẻ. Thiết kế toàn bộ ngôi nhà theo phong cách hiện đại, thoáng mát hoàn toàn phù hợp với khí hậu nhiệt đới như nước ta.
Thiết kế ngoại thất rộng rãi tạo nên điểm nhấn cho mẫu nhà cấp 4 diện tích 80m2 hiện đại. Mẫu thiết kế nhà cấp 4 này có sân thượng rất rộng và sẽ rất tuyệt khi kết hợp với ban công rộng. Ý tưởng này đã tạo ra một không gian nghỉ ngơi bên ngoài, nhưng nó cũng đóng vai trò như một tấm đệm giúp lưu thông không khí.
Sân vườn được bố trí ngay bên cạnh ngôi nhà cấp 4 này nên sẽ là một nơi tuyệt vời. Tất cả các thành viên trong gia đình có thể ngắm nhìn chúng khi thư giãn trên ban công rộng rãi và không còn phải lo lắng về nắng hay mưa. Nhìn từ mặt tiền, ngôi nhà cấp 4 này có giá trị thẩm mỹ khá cao, ngôi nhà nhô lên khỏi mặt đất không chỉ để đón nắng gió mà còn ngăn côn trùng, động vật nguy hiểm. nhà ở
Hệ thống cửa đi và cửa sổ đơn giản hơn với cửa sơn trắng và kính đen. Không nhất thiết phải quá hào nhoáng, yếu tố này sẽ giúp ngôi nhà của bạn trở nên hiện đại hơn bao giờ hết. Với kính, ánh sáng mặt trời có thể cung cấp đủ cho không gian nội thất này.
Mẫu nhà cấp 4 diện tích 80m2 có 3 phòng ngủ ấn tượng

Mẫu thiết kế nhà cấp 4 có 3 phòng ngủ diện tích 80m2 đang gây được nhiều sự chú ý trong các gia đình hiện nay. Mẫu nhà cấp 4 mái thái nông thôn đẹp luôn là lựa chọn hàng đầu khi xây nhà 1 tầng diện tích nhỏ cho gia đình có đủ đất và vốn. Mẫu nhà cấp 4 có 3 phòng ngủ phù hợp với diện tích nhà nhỏ 80 m2, gia chủ có thể lựa chọn thiết kế truyền thống hoặc hiện đại, nhà ống hoặc nhà hình chữ L. Mẫu thiết kế nhà cấp 4 diện tích 80m2 có 3 phòng ngủ này không quá rộng so với diện tích đất dài nhưng có thể phù hợp để xây nhà ở thành phố vì đảm bảo công năng, số lượng phòng ngủ và sân để xe.
Mẫu nhà cấp 4 diện tích 80m2 kết hợp sân vườn

Mẫu biệt thự nhà vườn 80m2 phong cách hiện đại này được đánh giá là một trong những mẫu kiến trúc ấn tượng, tinh tế và hài hòa nhất năm qua. Thiết kế của công trình không quá cầu kỳ nhưng vẫn thể hiện được thế mạnh, sự tinh tế và khá khoa học. Thiết kế rất độc đáo, từ phong cách kiến trúc đến thiết kế phối cảnh sân vườn và thiết kế trang trí ngoại thất. Về thiết kế ngôi nhà dự kiến đầu tư trọn gói 960 triệu đồng, thời gian hoàn thành xây dựng trong 5 tháng.
Mẫu nhà cấp 4 diện tích 80m2 hình chữ L

Mẫu thiết kế nhà vườn cấp 4 hiện đại và khoa học với lối thiết kế ấn tượng theo gam màu đương đại kết hợp với tông màu xám nhạt bắt mắt. Chân tường và mặt tiền được thiết kế bằng gạch nghệ thuật, tạo hiệu ứng thị giác quan trọng, cũng như cảm nhận tích cực về hiệu quả thẩm mỹ của thiết kế nhà hiện đại.
Mẫu nhà cấp 4 nông thôn diện tích 80m2

Mẫu thiết kế nhà 80m2 mặt tiền 8m hiện đại và khoa học. Quan điểm kiến trúc đơn giản, phần chân tường được thiết kế từ đá tự nhiên đẹp thể hiện sự vững chãi, bề thế và hiện đại cho thiết kế ngôi nhà. Mái nhà màu xám với độ dốc vừa phải và thiết kế các khối viền rộng tạo nên sự cân đối trong thiết kế nhà của bạn.
Trên đây là mẫu nhà cấp 4 diện tích 80m2 đẹp,hiện đại mà Xây Dựng Số gửi đến bạn. Hy vọng bạn sẽ tìm được nhiều ý tưởng hay cho ngôi nhà trong mơ của mình nhé!


































