Để tìm kiếm một căn nhà lí tưởng ngay giữa lòng thành thị chật hẹp có lẽ đang là nỗi băn khoăn của nhiều người và nhiều gia đình. Nhưng nếu ai khéo léo và biết cách chọn lựa cho mình một căn nhà ống 5x12 thì mọi vấn đề này sẽ được giải quyết. Bởi mẫu nhà ống 5x12m đẹp này không chỉ mang lại một không gian sống rộng rãi, thoáng mát mà còn đem tới các công năng hữu ích và tiết kiệm cho chủ hộ một số tiền trong quá trình đầu tư xây dựng. Bài viết này nhằm cung cấp, hỗ trợ đến độc giả một số thông tin về mẫu nhà ống 5x12 hiện đại
Tìm hiểu thông tin công trình nhà phố 5x12

Chủ đầu tư: anh Nguyễn Văn Trung
Diện tích xây dựng: rộng 5m x dài 12m
Kiến trúc: nhà phố
Quy mô: 3 tầng (1 trệt, 3 lầu)
Phong cách: hiện đại, tối giản
Kinh phí xây dựng: 1.5 tỷ đồng
Mặt bằng công năng:
- Tầng 1: phòng khách, phòng bếp, toilet
- Tầng 2: 2 phòng ngủ, 1 phòng học, toilet
- Tầng 3: 1 phòng ngủ, phòng thờ, toilet, sân phơi

Gia đình anh Trung có 4 người, gồm 2 vợ chồng, 2 người con. Với diện tích lô đất 5x12 căn nhà được thiết kế theo phong cách nhà ống 3 tầng, với tất cả 3 phòng ngủ cho 1 gia đình. Ngoài những yêu cầu cơ bản như phải có sân thượng, phòng thờ, thì anh Trung muốn căn nhà phải có ban công rộng để có một không gian sinh sống thoải mái, đón nắng, đón gió vào bên trong căn nhà.
Được thiết kế theo phong cách chú trọng sự tối giản nhưng hiện đại. Căn nhà được xây dựng với kiến trúc hình khối hình học khỏe khoắn cho tới màu sắc và vật liệu xây dựng cũng rất đẹp và chất lượng. Việc hạn chế tối đa các mảng khối bằng bê tông và thay vào đó bằng cách sử dụng các vật liệu kính cường lực dùng làm ban công, cầu thang, hệ thống cửa nhựa lõi thép giúp tăng tính thẫm mỹ và bắt được nguồn ánh sáng từ bên ngoài vào trong căn nhà.
Điểm nhấn của mẫu nhà phố 5x12 chính là hệ thống cổng chính và mặt tiền tầng 1 được áp đá hoa cương màu nâu rất đẹp mắt, sang trọng, tôn lên sự mới mẻ trong lối thiết kế cũng như xua tan đi vốn diện tích ít ỏi của căn nhà. Mặt bằng của mái được đổ bê tông nhưng lại không đổ kín sàn mà chừa lại một khoảng trống để có thể lắp kính vào và lấy sáng cho không gian tầng 3, từ tầng 3 hệ thống giếng trời sẽ phân bổ nguồn ánh sáng hợp lí đến các không gian còn lại trong ngôi nhà.
Bản thiết kế mặt bằng mẫu nhà phố 5x12

Tuy diện tích mặt tiền của căn nhà không quá lớn, nhưng vẫn được các kiến trúc sư thiết kế sảnh để có thể để xe và phương tiện đi lại hàng ngày khá thuận tiện. Không gian tầng 1 bao gồm 1 phòng khách, tiếp theo là phòng bếp và chỗ ăn được thiết kế nội thất cũng như hướng đi rất gọn gàng và thoải mái, đảm bảo không gian sinh hoạt rộng rãi tiện ích cho các thành viên trong nhà. Ngoài ra còn có 1 phòng vệ sinh nhỏ trong bếp rất tiện cho gia đình anh Trung sinh hoạt.

Tầng 2 gồm có 2 phòng ngủ cho vợ chồng anh Trung và phòng còn lại là của con gái. Việc bố trí 1 góc học tập riêng 1 phòng giúp cho việc học của con gái anh Trung được thoải mái và tập trung hơn. Và vì gần với phòng ngủ của vợ chồng anh Trung nên anh có thể dễ dàng kèm cặp cũng như kiểm soát việc học của con mình. Toilet được xây ở giữa 2 phòng để thuận tiện cho việc sinh hoạt thoải mái. Ban công rộng rãi, thoáng mát. Nhìn chung, tầng 2 được thiết kế rất đơn giản mà đảm bảo được đầy đủ các công năng cho gia đình anh Trung.

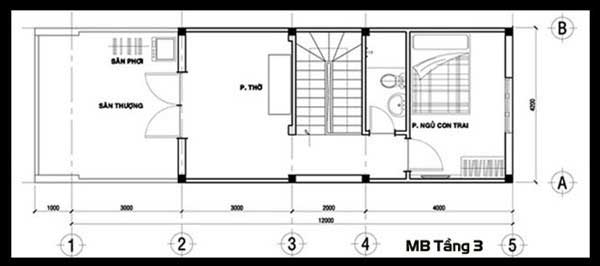
Tầng 3 bao gồm sân thượng, phòng thờ, toilet và phòng ngủ của con trai anh Trung. Nhìn chung, cách bố trí và xây dựng không gian ở tầng 3 khá rộng rãi và thoải mái. Sân thượng phía trước có thể dùng để phơi đồ, phù hợp trồng và chăm sóc cây cảnh. Phòng thờ rộng, thuận tiện cho việc thờ cúng và dọn dẹp dễ dàng. Bên cạnh phòng ngủ là 1 toilet, vì tầng này chỉ có 1 người con trai anh Trung ở nên diện tích phòng ngủ cũng khá rộng, mang tới một không gian sinh hoạt thoải mái cho con trai của anh Trung.
Các mẫu nhà ống 5x12m đẹp phong cách hiện đại

Mẫu nhà phố 5x12 được xây dựng theo kiểu nhà ống nhỏ gọn. Tầng 2 được ốp bằng các tấm gạch màu vân gỗ kết hợp cùng lam chắn song song bao trùm lên tạo nên một sự mới mẻ và bức phá trong lối thiết kế. Gam màu trắng nổi bật hòa quyện cùng màu đen và màu vân gỗ tạo nên sự hài hòa về màu sắc, người ngoài nhìn vào cũng khá dễ chịu. Công năng được bố trí đầy đủ và tiện ích, là mẫu nhà phố hiện đại được ưa chuộng và đầu tư rất nhiều ngày nay.

Sỡ hữu thiết kế theo phong cách hiện đại, sang trọng. Cách xây dựng kiến trúc với những mảng tường vuông vức, khỏe khoắn và sự tối giản trong cách bố trí họa tiết, màu sắc đã làm ngôi nhà trở nên vô cùng độc đáo và mới lạ. Những vòm lam nhỏ nhắn tạo điểm nhấn nổi bật và cá tính riêng cho ngôi nhà. Gam màu trắng chủ đạo kết hợp cùng màu gỗ sáng tạo nên sự ấm áp, mộc mạc mà vô cùng giản dị. Các khoảng chết được tận dụng để trồng cây xanh giúp căn nhà thêm đẹp và yên bình, cho những người sinh sống không cảm thấy quá khô khan. Việc phối hợp cửa kính giúp luồn ánh sáng đi vào căn nhà và soi sáng cho những không gian còn lại.

Được thiết kế với lối kiến trúc hiện đại và đơn giản, mẫu nhà phố 5x12 rất phù hợp với xu hướng trẻ trung, hiện đại của các hộ gia đình hiện nay. Với phong cách nhẹ nhàng, thanh lịch, không phào chỉ, không rườm rà. Căn nhà mang lại hơi thở mộc mạc, mang đến trải nghiệm sống lí thú và thoải mái khi sinh sống, học tập cũng như làm việc.

Mẫu nhà phố 5x12 nổi bật bởi gam màu trắng nhã nhặn, nhẹ nhàng kết hợp cùng các chi tiết màu tối trên ngoại thất tạo nên sự tương phản, mới mẻ cho căn nhà. Mặt tiền có sân khá rộng nên thuận tiện cho việc để xe cũng như các phương tiện đi lại hàng ngày được bảo đảm an toàn, an ninh. Thiết kế lam chắn ở ban công và sân giúp lượng ánh nắng không hắt quá nhiều vào nhà mà vẫn hấp thụ được nguồn sáng đi vào phía bên trong. Cách bố trí 2 cổng cũng rất tiện, vì cổng lớn để di chuyển xe ô tô vào nhà và cổng phụ thuận tiện cho việc đi ra vào bên trong căn nhà. Nhìn chung, căn nhà mang tới đầy đủ các công năng hữu ích mà các hộ gia đình ngày nay rất cần thiết trong cuộc sống hàng ngày.

Nổi bật bởi gam màu ghi xám làm chủ đạo và các gam màu trung tính khác. Căn nhà trở nên năng động và hiện đại, thu hút được sự chú ý của người nhìn. Những nét đẹp hài hòa trong ngoại thất được thiết kế và xây dựng rất tinh tế, uyển chuyển giúp căn nhà trở nên sang trọng, đầy tính thẫm mỹ và khoa học.

Khoác lên mình màu áo trắng tinh khôi, tươi mới, mẫu nhà phố 5x12 nhanh chóng thu hút được đông đảo giới đầu tư xây dựng. Ngoài việc mang lại những công năng hữu ích, căn nhà kết hợp sử dụng các chi tiết thiết kế thanh sắt song song như lan can và lam chắn rất mới mẻ và hiện đại. Tường rào sử dụng gạch thông gió xếp chồng họa tiết màu trắng tạo nên sự thông thoáng cho căn nhà mà còn mang tính thẫm mỹ cao. Là mẫu nhà mang hơi hướng thời đại mới mẻ, rất được ưa chuộng hiện nay.

Với thiết kế mái xéo mới mẻ, căn nhà phố 5x12 được thiết kế nổi bật bởi gam màu trắng chủ đạo kết hợp cùng màu nâu sang trọng tạo nên một chỉnh thể màu sắc hoàn hảo và hài hòa. Tạo điểm nhấn cho ngôi nhà bằng việc xây dựng các rãnh mái song song khép kín, căn nhà trở nên nổi bật và mới lạ. Hệ thống cửa sử dụng kính cường lực trong suốt chắc chắn giúp luồn ánh sáng bên ngoài có thể đi vào và chiếu sáng cho các không gian khác trong nhà. Là phong cách mới mẻ hiện đại được các chủ đầu tư quan tâm khá nhiều ngày nay.

Mẫu nhà phố 5x12 được thiết kế với phong cách hiện đại, trẻ trung và sự kết hợp độc đáo trong việc bố trí lam sắt đã tạo nên sự sang trọng, mới lạ. Cánh cửa cổng được sử dụng sắt chống gỉ chắc chắn khoác lên mình họa tiết sắc xảo góp phần làm cho căn nhà trở nên nổi bật và năng động. Tiểu cảnh xanh xen kẽ ở các không gian trong căn nhà tạo nên sự gần gũi với thiên nhiên, góp phần tạo ra bầu không khí trong lành, xanh sạch cho căn nhà nơi gia đình bạn sinh sống.

Mẫu nhà phố 2 tầng 1 tum với diện tích 5x12 được thiết kế dựa theo sự tối giản nhằm mục đích tiết kiệm chi phí nhưng vẫn mang tới sự hiện đại, chỉnh chu trong phong cách kiến trúc.

Thiết kế nhà sử dụng không gian phía trước tầng trệt làm gara để xe ô tô, cửa chính sử dụng hệ thống cửa cuốn. Mẫu nhà phố 5x12 không bày trí quá nhiều chi tiết trang trí cầu kì nhưng vẫn rất nổi bật trong phong cách thiết kế bởi các khối kiến trúc đều thể hiện được tính chỉnh chu, vuông vức.
Với những thông tin hữu ích về mẫu nhà phố 5x12 trên đây, chắc có lẽ các bạn cũng hiểu được một phần nào công năng và các lợi ích khác khi xây dựng mẫu nhà này. Hi vọng rằng, thông qua bài viết các bạn sẽ tìm cho mình một mẫu nhà ưng ý để góp phần xây dựng một tổ ấm trọn vẹn trong tương lai.


































