Từ trước đến nay khi nhắc đến Đà Nẵng người ta thường nhắc đến một thành phố biển xinh đẹp cùng những kiến trúc độc đáo. Kiến trúc nhà ở nơi đây cũng có một vẻ đẹp lạ, đó là vẻ đẹp theo phong cách Châu Âu đầy quyến rũ. Hãy cùng chúng tôi chiêm ngưỡng mẫu nhà phố 3 tầng 1 tum 4.5x16m mềm mại trên từng góc nhìn tại quận Hải Châu thành phố Đà Nẵng.

Thông tin mẫu thiết kế:
- Chủ đầu tư xây dựng ngôi nhà phố đẹp này là anh Hiến, trú quán tại quận Hải Châu thành phố Đà Nẵng, anh mong muốn xây dựng một mẫu thiết kế nhà đẹp 3 tầng 4.5x16m mềm mại trên từng góc nhìn mang phong cách hiện đại.
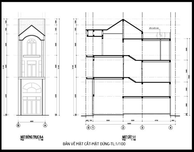
- Diện tích lô đất là 90m2, diện tích thiết kế và xây dựng là 72m2 với đầy đủ các công năng như sau: Tầng 1 là phòng khách, phòng ăn, phòng bếp, wc chung,kho. Tầng lửng là nơi sinh hoạt chung. Tầng 2 là khu vực 2 phòng ngủ. Tầng 3 là phòng thờ, phòng ngủ, giặt phơi kèm sân thượng.

Là một gia đình sinh sống và làm việc lâu năm tại Đà Nẵng thế nhưng những nét đẹp truyền thống của một ngôi nhà Việt vẫn được gia đình anh ưu ái. Tại sao chúng tôi lại nói vậy, bởi lẽ tại khu phố nhà anh, những ngôi nhà cao tầng mang dáng dấp Châu Âu mọc lên như nấm. Anh không muốn thiết kế theo hướng đó, muốn ngôi nhà phải hiện đại nhưng vẫn phải giữ nét sinh hoạt của gia đình Việt.




Các mặt bằng và công năng trong gia đình được thiết kế khá hợp lý và logic, mọi thứ dừng lại ở hoàn hảo. Điểm thu hút nhất đó là sự thoáng khí trong các phòng sinh hoạt của gia đình khi chúng tôi để một khu vườn nhỏ đằng sau ngôi nhà, vừa giúp tuần hoàn không khí vừa mang lại cảnh sắc thiên nhiên tươi mát cho ngôi nhà.


Chiều cao giữa các tầng lầu cũng được chúng tôi đặc biệt quan tâm, bởi nó ảnh hưởng trực tiếp đến dáng dấp của ngôi nhà. Làm sao để nó hài hòa giữa các phòng cũng như các công năng trong gia đình cũng là một bài toán khó. Không đơn giản chỉ là thẩm mỹ nó còn là vẻ đẹp trí óc của các nhà thiết kế.
Đỉnh cao của nghệ thuật hiện đại đã được chúng tôi ưu ái trong mẫu nhà đẹp này. Từ trang trí không gian phòng ngủ cho đến phòng khách mang dáng dấp của nét tân cổ điển, không vì thế khiến cảm giác khô cứng mà ngược lại, nó lại vô cùng mềm mại như những bức họa đậm nét tại các không gian.




Nếu tầng 1 là nơi cả gia đình đoàn tụ tại phòng khách, phòng ăn chung với một không gian ấm cúng thì tại tầng 2 và tầng 3 lại đề cao vai trò cá nhân của từng người khi thiết kế các phòng ngủ khép kín. Mỗi căn phòng đều được trang trí một cách độc đáo khác nhau, tựu chung lại vẫn là toát lên những nét hiện đại pha lẫn truyền thống trong gia đình.



Ngôi nhà xây dựng ở giữa một không gian đông đúc dân cư, các biệt thự cao tầng không xuể, chúng tôi đã thành công khi tạo ra điểm khác biệt cho ngôi nhà. Tuy không quá cầu kỳ trong thiết kế, nhưng mọi tiện ích và công năng đầy đủ đã tạo nên điểm nhấn của không gian biệt thự sang trọng này.
Với phương châm làm việc “khách hàng là ông chủ duy nhất”, chắc chắn sẽ có những bản thiết kế đẹp khiến các bạn hài lòng. Để được tư vấn chi tiết hơn về những mẫu thiết kế nhà đẹp 3 tầng 4.5x16m mềm mại trên từng góc nhìn, quý khách hàng vui lòng liên hệ trực tiếp với chúng tôi để được tư vấn tốt nhất.
Nguồn tin: https://maunhadepmoi.com/
Tin liên quan:
- Mẫu nhà phố 3 tầng mặt tiền 5m
- Mẫu nhà phố 1 trệt 2 lầu sân thượng
- Mẫu nhà phố 3 tầng mái thái đẹp mặt tiền 4,5 mét


































