Bản vẽ HD mẫu nhà phố 3 tầng mái thái đẹp mang đến kiến trúc Độc Đáo. Sự phát triển đô thị hóa đã làm nên cớn sóng về kiến trúc ở Việt Nam, hiện nay tình hình thi công – xây dựng nhà ở giá rẻ đáp ứng nhu cầu của nhiều người đang được gia tăng một cách đáng kể. Trong năm 2021 nhiều chủ đầu tư – kiến trúc sư đã cho ra đời rất nhiều kiến trúc đẹp với mẫu mã và kiểu dáng khác nhau phù hợp với nhiều hộ gia đình.
Đến với chủ đề ngày hôm nay, chúng tôi xin được tới thiệu mẫu nhà phố 3 tầng mái thái mang dáng vẽ truyền thống quen thuộc, pha trộn nét hiện đại tạo nên kiến trúc hoàn thảo từ khâu thiết kế đến bố trí nội thất. Căn nhà sử dụng gam màu chủ đạo là tông trắng kết hợp với màu lam nhạt giúp cho không gian hài hòa, tươi mới hơn. Kiểu mái thái lợp tôn màu xanh ghi với mái dốc chữ A, giúp tiết kiệm chi phí vật liệu.

Phối cảnh mẫu nhà phố 3 tầng mái thái
♣ Thông tin chung:
- Kiến trúc: Mẫu nhà 3 tầng mái thái đẹp
- Diện tích: 66m2
- Chủ nhà: Anh Bạch ở Đồng Nai
- Kinh phí xây dựng: Trên 1 tỷ
Mẫu nhà phố đẹp hiện đại 3 tầng này được tại tạo không gian nhờ vào sự phối hợp giữa bố trí nội thất, màu sắc, khu tiểu cảnh…tạo nên kiến trúc hiện đại mà không bị lỗi thời theo năm tháng.

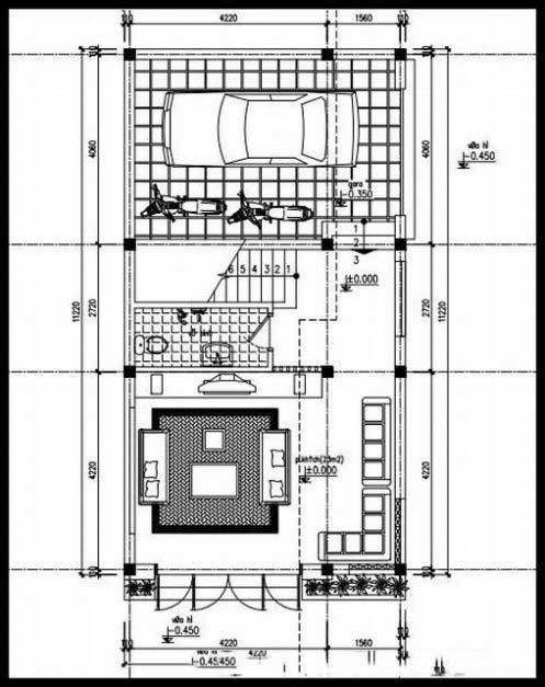
Mặt bằng tầng 1
Tầng 1: Không gian tầng này có gara để xe, từ gara có cầu thang đi lên phòng khách, trong có có nhà vệ sinh chung dành cho gia đình tiện sử dụng.

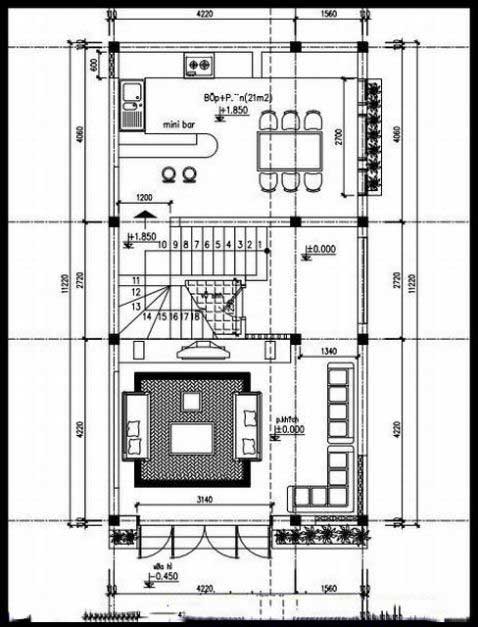
Mặt bằng tầng lửng
Tầng lửng: Với khoảng không gian tầng lửng có bố trí nhà bếp + phòng ăn, một góc view cửa sổ 2 bên tạo cho không gian luôn được thoáng mát. Ngoài ra còn giúp lấy ánh sáng và không khí vào nhà, nhà bếp thiết kế hình chữ L nhằm tiết kiệm diện tích được kết hợp với quầy bar nhỏ, tạo nên tính thẩm mỹ.

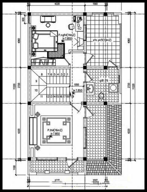
Mặt bằng tầng 2
Tầng 2: Tầng này gồm 3 phòng ngủ – 1 phòng sinh hoạt chung – nhà vệ sinh kết hợp phòng tắm hiện đại. Phía bên ngoài là khu vực ban công, có thể trồng cây, bố trí bộ bàn ghế ngồi uống nước cũng rất hợp lý.

Mặt bằng tầng 3
Tầng 3: Có không gian để nghĩ ngơi, hống mát, bố trí 1 phòng ngủ và phòng thờ, trong đó phòng thờ là nơi linh thiên nên được thiết kế với không gian riêng biệt, yên tĩnh. Phía ngoài ban diện tích rộng có thể thiết kế thêm tiểu cảnh sân vườn rất phù hợp.
Xem thêm:





















