Mỗi công trình là một kiệt tác hoàn hảo được kết tinh từ tâm huyết và mồ hôi của kiến trúc sư cùng đội ngũ công nhân, nhà đầu tư xây dựng. Vì vậy, mà những căn nhà phố mới được đồng bộ hóa và trở nên đa dạng, đa phong cách, và được ưa chuộng như hiện nay. Mẫu nhà phố 4 tầng chính là một trong số những kiệt tác được các nhà đầu tư và các kiến trúc sư cho ra đời. Bởi căn nhà không chỉ mang giá trị thẩm mỹ mà còn đem tới cho những người chủ sở hữu một không gian sống thoải mái mà vô cùng hiện đại. Bài viết này nhằm cung cấp đến độc giả một số thông tin về các mẫu nhà phố 4 tầng sang trọng.

Thông tin công trình:
- Chủ đầu tư: anh Hoàng Ngọc Minh
- Diện tích: 5x12m
- Kiến trúc: nhà phố 4 tầng
- Công năng: bao gồm phòng khách, phòng bếp + ăn, 4 phòng ngủ, 3 toilet và 1 phòng thờ.

Nhằm hướng đến một không gian sống thoải mái, tiện lợi. Mẫu nhà phố 4 tầng được thiết kế dành riêng cho gia đình anh Hoàng là một căn nhà nổi bật bởi sự mộc mạc trong từng chi tiết từ những mảng tường cho đến vật liệu và hệ thống cửa cũng như lam chắn. Gam màu ghi kết hợp cùng sắc nâu của gỗ tạo nên sự hòa quyện hài hòa mà vô cùng đặc sắc. Việc trang trí những cây xanh trong ngôi nhà vừa làm giảm bớt không gian chết, lại giúp điều hòa không khí và mang lại niềm thư giản cho những ai sinh sống, đặc biệt là gia đình anh Hoàng.
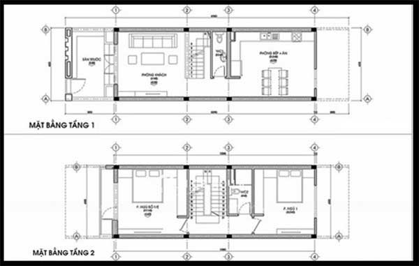
Bản cắt mặt bằng của công trình:

Tầng 1: bao gồm sân trước, phòng khách, ở giữa căn nhà được bố trí dãy cầu thang thông lên tầng trên, tiếp theo là toilet và phòng bếp + ăn. Việc xây dựng và sắp đặt khá đơn giản nên khiến căn nhà trở nên rộng rãi, không hề bị gò bó và chật hẹp theo yêu cầu của anh Hoàng.
Tầng 2 được bố trí 1 phòng ngủ cho vợ chồng anh Hoàng và phòng còn lại dành cho con gái. Ở tầng này có 1 toilet chung đặt ngay sảnh bên cạnh cầu thang, rất dễ dàng sinh hoạt cho mọi ngươi trong gia đình.

Vì nhà của anh Hoàng có khá đôn thành viên cho nên ở tầng 3 được xây dựng thêm 2 phòng ngủ theo yêu cầu của anh Hoàng. Về mặt bằng nhìn chung khá rộng rãi và thoải mái, cũng được bố trí tương tự nhu tầng 2, có toilet chính giữa và cầu thang thông lên tầng 4.
Tầng 4 hay còn được gọi là tầng tum, là nơi để bố trí tủ thờ tự ông bà trong nhà. Phía trước có 1 sân phơi và 1 phòng chứa đồ nhỏ. Khá rộng và đầy đủ công năng, phù hợp cho hộ gia đình từ 4 – 6 người như nhà anh Hoàng.
Tuyển chọn các mẫu nhà phố 4 tầng sang trọng

Mẫu nhà phố 4 tầng được thiết kế theo phong cách hiện đại và đầy đủ công năng. Mặt bằng tầng 1 khá rộng rãi và thoáng nhờ lắp đặt hệ thống kính cường lực trong suốt và sân phía trước có diện tích vừa đủ để bỏ các phương tiện đi lại hàng ngày. Tầng 2 được xây dựng có khối đua nhô ra hơn so với tầng 1, để có thể chắn bớt nắng và mưa hắt trực tiếp vào nhà. Với cách xây dựng kiên trúc của căn nhà khá mới mẻ, được chia thành nhiều vách ngăn và trồng thêm cây xanh trang trí khiến căn nhà vừa năng động, lại vô cùng hiện đại và nổi bật. Sân thượng có lam chắn phía trên và được bố trí khá rộng rãi, thông thoáng. Đồng thời gam màu trắng kết hợp cùngcác mảng màu tối của ngoại thất tạo nên nét đẹp tươi mới, sang trọng cho căn nhà. Là mẫu nhà phố 4 tầng được rất nhiều chủ hộ đầu tư hiện nay.
Nổi bật với kiến trúc lệch tầng, cùng cách trang trí đưa không gian xanh tươi mới vào không gian sống, mẫunhà phố 4 tầng trở nên năng động và hiện đại hơn. Mặt tiền rộng rãi, được lắp đặt 2 hệ thống cửa, 1 cửa kéo phía ngoài và cửa kính phía bên trong, vừa đảm bảo an toàn an ninh cho căn nhà, lại còn thông thoáng. Tầng 2 và 3 xây dựng ban công khá nhỏ, nhưng không hề làm giảm đi sự tiện nghi của căn nhà mà nhìn lên, ta có thể thấy cách thiết kế này khiến kiến trúc của căn nhà trở nên thật mới mẻ và năng động. Phần bên cạnh được ốp đá và được trồng thêm dàn dây leo khá đẹp. Sân thượng có thêm lam chắn, thiết kế các rãnh khe để ánh nắng có thể chiếu vào giúp cho hệ sinh thái cây trồng ở sân thượng được hấp thụ tự nhiên mà còn có thể tận dụng để treo cây cảnh, phong lan… là mẫu nhà phố tiêu chuẩn được rất nhiều hộ gia đình săn đón ngày nay.

Mẫu nhà phố 4 tầng nổi bật với tấm lam hình chữ L úp xuống được thiết kế có khe hở giúp căn nhà hạn chế được bớt bụi bẩn ở đường bám vào mà còn giúp căn nhà thông thoáng, đưa ánh sáng và gió luồn vào trong. Gam màu trắng kết hợp cùng màu nâu của lam chắn và các chi tiết ngoại thất giúp căn nhà trở nên nổi bật và hiện đại. Sân thượng được xây dựng có khoảng thông tầng và giếng trời giúp cho căn nhà được sáng sủa và mát mẻ hơn.

Kết hợp hài hòa giữa ngoại thất và kiến trúc, mẫu nhà phố 4 tầng vẫn trở nên nổi bật và tỏa sáng trong khung cảnh buổi xế chiều. Mặt tiền được sử dụng làm garage để xe nên có thể dễ dàng đưa xe và các phương tiện đi lại hàng ngày di chuyển vào trong nhờ hệ thống cửa khá rộng. Tầng 2 có khối đua rộng hơn so với mặt tiền, cách lắp đặt hệ thống ban công và cửa bằng kính cường lực vừa giúp căn nhà đón được ánhsáng và gió, đồng thời thể hiện nét đẹp thẩm mỹ làm căn nhà trở nên thông thoáng và rộng rãi hơn.

Mẫu nhà phố 4 tầng được thiết kế theo phong cách hiện đại, nổi bật nhờ các khung cửa 5 cánh mỏng và thoáng, bên cạnh là hệ thống cửa sổ rộng được xây dựng thêm bồn hoa phía trước mang đến nét đẹp sang trọng mà vô cùng trẻ trung. Tầng 1 được xây dựng tường rào đổ khối bê tông chắc chắn, ban công có lam chắn và được thiết kế cả kẻ hở thông nắng cũng như gió khiến sân thượng thêm phần thông thoáng và mát mẻ hơn. Gam màu trắng kết hợp cùng màu xam và nâu tạo nên một bức tranh đẹp sống động mà không hề cảm thấy thô cứng. Là mẫu nhà phố đẹp, đang trở thành xu hướng trong thời đại số hiện nay.

Các lỗ hổng hình chữ nhật được thiết kế trên căn nhà đã trở thành điểm nhấn nổi bật giúp thể hiện được nét đẹp hiện đại mà vô cùng sang trọng. Hệ thống cửa cổng được lắp đặt thêm mái che để tránh bị mưa và nắng hắt vào trong. Gam màu trắng nổi bật kết hợp với màu đen và nâu khiến căn nhà trở nên tươi mới và năng động. Là mẫu nhà phố hứa hẹn sẽ mang tới cho những ai sở hữu một không gian sống vô cùng thoải mái và tiện nghi.

Với kiểu kiến trúc hiện đại kết hợp với cách trang trí đơn giản, căn nhà phố 4 tầng mang tới cho người nhìn một cảm giác yên bình, thoải mái mà không có căn nhà nào có thể có được. Gam màu trung tính khá trầm kết hợp lại với nhau không làm căn nhà tối tăm, mà lại nổi bậtvà lung linh dưới ánh đèn led được bố trí bên ngoài. Kiểu thiết kế kiến trúc cắt và lồng vào nhau tạo cho căn nhà một hơi thở ấm cúng, giản dị. Giống với những kiểu nhà ở Nhật Bản vào đầu thập niên cũ, mang đến cho chủ hộ một không gian sống lí tưởng.

Nổi bật nhờ các mảng tường được xây dựng gạch thông gió màu trắng, giúp căn nhà lấy được ánh sáng và mang lại phong cách rất trẻ trung, hiện đại. Cách sắp xếp ngoại thất cũng như bố cục tạo cho căn nhà sự ấm áp giống như 1 cái tổ kén. Là mẫu nhà phố mang phongcách nghệ thuật mới.

Mẫu nhà phố 4 tầng mang phong cách hiện đại với tầng 1 được sử dụng đá granite ốp tường và hệ thống cửa kính cường lực trong suốt, mang tới cho căn nhà một vẻ đẹp năng động và vô cùng sang trọng. Tầng 2 được ốp đá giả gỗ đua rộng ra bên ngoài, tầng 3 và 4 được thiết kế hệ vách trang trí, vừa có tác dụng ngăn cách không gian, còn có thể đón ánh sáng và gió. Trồng và bố trí thêm cây xanh giúp căn nhà trở nên tươi mới và hiện đại, giúp điều hòa không khí bên trong căn nhà.

Cũng giống như các mẫu nhà phố 4 tầng khác, căn nhà này đem lại không gian sống thoải mái và vô cùng tiện nghi cho chủ hộ nhờ các công năng được bố trí rải đều ở các tầng. Mặt tiền rộng rãi, kết hợp với ngoại thất và cách bố trí ở mỗi tầng khiến căn nhà trở nên đẹp và ưa nhìn. Gam màu trắng kết hợp với những màu tối của ngoại thất tạo nên sự tương phản cho căn nhà. Ban công rộng rãi, có lam chắn che bớt nắng hắt vào căn nhà, có thể làm nơi tụ họp, xum vầy với nhau và thả tầm ngắm từ trên cao nhìn xuống.

Nổi bật bởi vẻ ngoài tươi mới và năng động nhờ gam màu trắng thanh thoát. Căn nhà phố mang tới một sức sống mới mẻ trong thời đại số, phần kiến trúc nhà ở được thiết kế nổi bật bởi những nét cắt có khoảng hở hiện đại, vừa giúp căn nhà thêm phần thông thoáng lại trở nên vô cùng đẹp mắt. Là mẫu nhà phố sang trọng, không thể nào bỏ qua.
Bài viết này nhằm cập nhật và cung cấp một số thông tin về mẫu nhà phố 4 tầng sang trọng. Với chi phí vừa đủ, bạn đã có thể sở hữu 1 căn nhà phố với đầy đủ công năng cũng như tiện nghi thoải mái. Còn chần chờ gì nữa, mà không mau xây dựng một ngôi nhà mới để có một không gian sống và những phút giây hạnh phúc bên gia đình mình.
































