Giai đoạn đầu tiên luôn được cho là phần quan trọng nhất trong quá trình hình thành dự án nhà ở từ phần thiết kế bởi các chi tiết từ bản phác thảo, trong đó thì khả năng trong lĩnh vực xây dựng và nguồn cảm hứng của các kiến trúc sư có thể xem như một phần không thể thiếu nhằm thể hiện ước mơ của bạn thành hình dạng thực tế của ngôi nhà tương lai. Để ý tưởng của các kiến trúc sư trở thành hiện thực, cần phải có một dự án kỹ thuật. Ở giai đoạn này, các kiến trúc sư luôn phải tính toán tỉ mỉ các cấu trúc, phát triển các bản vẽ và kế hoạch cần thiết để xây dựng

Đó có thể là những bước để hình thành một ngôi nhà mà tầm quan trọng nằm ở đơn vị thiết kế. Xaydungso.vn trong năm mới 2024 đang nhận được rất nhiều phản hồi tích cực từ phía khách hàng mà trong đó các mẫu nhà vườn đẹp 2 tầng được rất nhiều gia đình và chủ đầu tư yêu cầu và hy vọng được giới thiệu nhiều hơn. Để giải đáp cho những yêu cầu đó, chúng tôi đã tổng hợp và tham khảo các tư liệu khác nhau để mang đến cho mọi người trong bài viết hôm nay về kiến trúc nhà vườn 2 tầng kiểu Nhật Bản. Mong rằng chúng sẽ mang đến cho bạn nguồn thông tin bổ ích !
Tham khảo qua các thiết kế từ mẫu nhà vườn 2 tầng từ kiến trúc Nhật Bản mới nhất trong năm 2024 :

Nếu bạn là người yêu thích nền văn hóa từ Nhật Bản thì kiến trúc nhà Nhật là điều nhất định bạn không thể bỏ qua với các giá trị nghệ thuật mà chúng mang đến nhằm khẳng định từ sở thích đó mà ngôi nhà là phần thiết thực nhất mà rất nhiều gia đình đã chọn cho mình phong cách thiết kế này. “Người Nhật Bản luôn yêu mến tự nhiên và tôn trọng vẻ đẹp của tự nhiên khi luôn tạo ra sự hài hòa từ công trình nhà ở với chúng kể cả trong những điều kiện khắc nghiệt nhất”. Hướng về tự nhiên và không gian tự nhiên là xu hướng chủ đạo trong kiến trúc nhà ở Nhật Bản suốt chiều dài lịch sử mà mẫu nhà vườn 2 tầng mà chúng tôi giới thiệu ngay phía dưới sẽ minh chứng cho những giá trị đó.
Thiết kế số 1 :
Thông tin sơ bộ về mẫu nhà vườn 2 tầng kiểu Nhật Bản
- Dự án thiết kế : mẫu nhà vườn 2 tầng
- Chủ đầu tư : Châu Đăng Minh sinh năm 1982
- Phong cách xây dựng : “Phong cách từ Nhật Bản thực sự khiến tôi phải ngưỡng mộ bởi những giá trị tài năng và cả văn hóa của họ. Công trình nhà vườn mà gia đình tôi đang dự định khởi công rất mong muốn có được những giá trị đó bên trong và cả mặt tiền ngôi nhà. Mong rằng kiến trúc sư sẽ giúp chúng tôi hoàn thiện điều đó, xin chân thành cảm ơn !” Theo yêu cầu từ chủ đầu tư.
- Địa chỉ : Quận Bình Thạnh – thành phố Hồ Chí Minh
- Thời gian thi công : 3 tháng
Phối cảnh xung quanh ngôi nhà vườn 2 tầng kiểu nhật mới nhất năm 2024:
Các yếu tố như thiện nhiên không thể tách rời với kiến trúc từ kiểu nhật và chúng được cho rằng phần quan trọng để hình thành nên giá trị từ phong cách này. Các chi tiết không quá rườm rà như phong cách xây dựng hay trang trí từ phương tây nhưng đủ để tạo nên từ tầm ảnh hưởng của chúng như những giá trị cốt lõi mà kiến trúc Nhật Bản mang đến với mọi người thông qua một cách chân thực nhất.

Chi tiết đầu tiên mà mọi người có thể dễ dàng nhận thấy chính là phần mái nhật được kết hợp với kiến trúc thông qua phối cảnh đầu tiên mà bạn có thể nhận diện chúng. Khi vật liệu sử dụng từ ngói như bổ trợ hiệu quả cho khả năng cách nhiệt hay chống chọi với mọi điều kiện thời tiết của gia đình bạn, mà giá trị cũng được năng cao hơn rất nhiều so với hệ thống mái thông thường vốn không có quá nhiều điểm nhấn.

Kết cấu từ gara bên trong kiến trúc bám sát theo những yêu cầu từ chủ đầu tư để ngôi nhà trở nên gọn gàng mà thể hiện được kết cấu hiệu quả mà kiến trúc sư mang đến cho gia đình. Hệ thống gỗ như được thay thế bằng các gạch dán tường phía bên ngoài vừa giúp tiết kiệm chi phí xây dựng mà hiệu quả và độ bền cũng là một lợi thế để tạo nên công trình nhà 2 tầng kết hợp sân vườn mà chúng tôi muốn giới thiệu.

Phía sau ngôi nhà là khoảng không sân vườn khá bắt mắt và với sự sắp xếp thông minh này diện tích xây dựng sẽ được nới rộng ra rất nhiều từ vị trí 2 bên của ngôi nhà. Không gian sân vườn tạo nên một sự thành công nhất định cho công trình mà khi bạn đang xem qua thiết kế có thể kịp ghi chú lại với những điểm sáng này để có thêm kinh nghiệm trong việc xây dựng cho ngôi nhà của mình trong tương lai rất phù hợp.
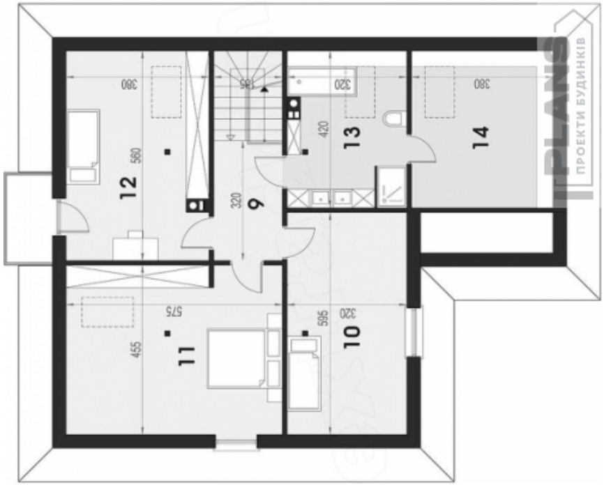
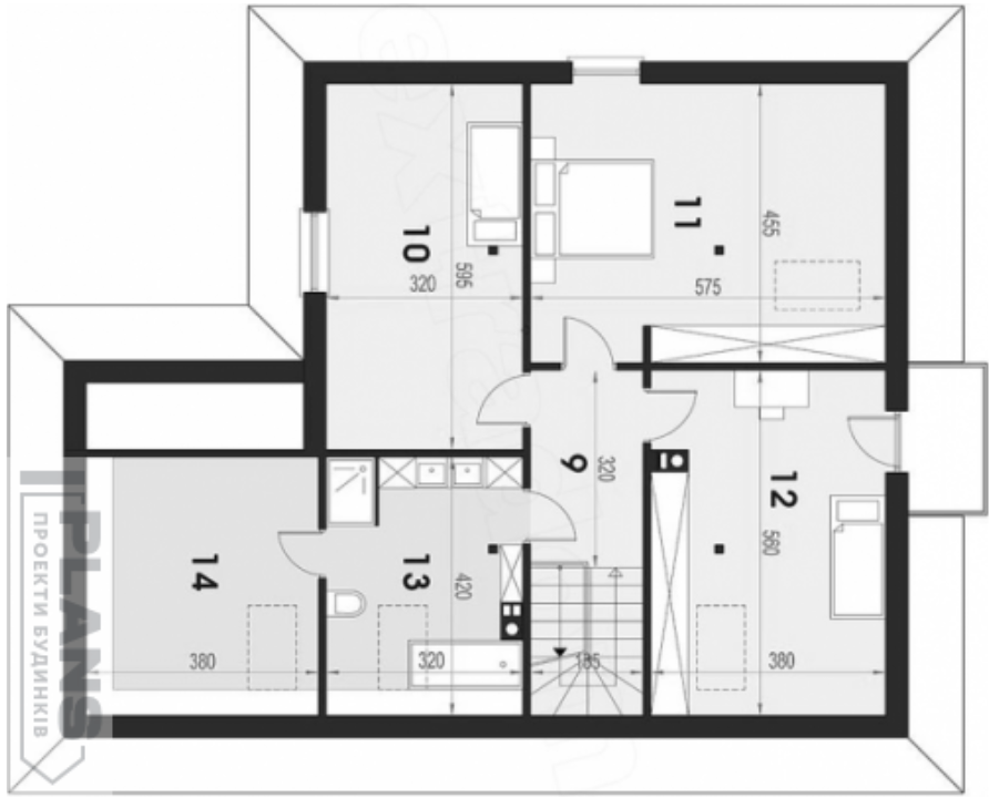
Bản vẽ nhà vườn 2 tầng kiểu Nhật mới nhất năm 2024 :
Theo những tham vấn về công trình thì chúng gồm có 4 phòng ngủ được sắp xếp ở vị trí tầng 2. Và phía bên dưới gồm phòng khách, phòng bếp, phòng ăn, bố trí phòng tắm, phòng giặt và wc hiện đại hợp, nhà xe gara ô tô 7 chỗ, sân trước rộng thoáng.. bám sát với công năng sử dụng hiện đại trẻ trung.

Mặt bằng tầng 1 : Gồm các chức năng đầy đủ khi chúng là không gian sinh hoạt chung với gara, nhà bếp, phòng khách, phòng sinh hoạt chung từ các vị trí thích hợp để, thông thoáng cho gia đình 4 thành viên.

Mặt bằng tầng 2 : Thông qua bản vẽ thể hiện thì chúng có cho mình với 4 phòng ngủ riêng biệt và phần ban công phía sau mà phối cảnh xung quanh từ ngôi nhà mọi người có thể nhận ra vị trí này.
Thiết kế số 2 :
Thông tin sơ bộ về mẫu nhà vườn 2 tầng kiểu Nhật Bản
- Dự án thiết kế : mẫu nhà vườn 2 tầng
- Chủ đầu tư : Ngô Gia sinh năm 1980
- Phong cách xây dựng : “Chúng tôi xin tín nhiệm đơn vị để triển khai cho công trình của gia đình tôi, kiến trúc kiểu nhật có thể phá cách để tọa nên những giá trị mới lạ mà kiến trúc sư có thể sáng tạo để tạo nên không gian này để mang đến vai trò quan trọng từ một ngôi nhà.Theo yêu cầu từ chủ đầu tư.
- Địa chỉ : Quận 2 – thành phố Hồ Chí Minh
- Thời gian thi công : 3 tháng
Phối cảnh nhà vườn 2 tầng kiểu nhật hiện đại :
Sự phá cách trong phong kiểu nhật được cho là yêu cầu từ phía gia chủ nhưng những giá trị của chúng vẫn được lưu giữ ở các vị trí mà chúng cũng là phần không quá khó tư đơn vị chúng tôi. Khi công trình từ phối cảnh mặt tiền đã được triển khai một cách thành công thông qua các tư liệu ngay phía bên dưới và hy vọng chúng sẽ thật sự bổ ích cho việc tham khảo của các gia đình đang có định hướng về một công trình tương tự.

Từ kết cấu cho ta thấy các hình khối như được kết hợp với nhau bằng một sự phù hợp mà chúng cũng được “gọt dũa” một cách mềm mại từ bàn tay của kiến trúc sư. Như khẳng định được vai trò và phong cách mà gia đình đang hướng đến từ sự hiện đại. Sự kết hợp nhịp nhàng giữa các màu sắc như đóng một vai trò then chốt để các vị trí trang trí trở nên nhịp nhàng hơn rất nhiều. Khi các nguồn nguyên vật liệu như kính cường lực, gỗ, gạch ốp tường,…vv như được sinh ra để dành cho nhau.

Với khả năng ứng biến từ diện tích khá rộng nhưng không cho thấy được điểm mù từ công trình mà mọi vị trí đó như được nhấn mạnh thêm rất nhiều. Không có một điểm thừa nào từ công trình mà chúng được kết hợp nhịp nhàng lại với nhau một cách hiệu quả nhất để tạo không gian rộng đẹp và gần gũi. Thiết kế nhiều cửa sổ xung quanh với cửa kính cường lực xanh kết hợp với khung cửa trắng toát lên nét tươi mới cho ngôi nhà.
Thiết kế nhà đẹp từ bản vẽ nhà vườn 2 tầng kiểu nhật với 2 mặt bằng :
Việc sáng tạo nên không gian bên trong ngôi nhà luôn đòi hỏi sự tươi mới, sáng tạo và phù hợp với lối sinh hoạt của các gia đình luôn là một phần quan trọng để chúng có thể tạo nên sức ảnh hưởng riêng biệt. Khi mặt tiền là phần quan trọng cho mọi ngôi nhà còn nội thất được thể hiện theo sự tiện dụng như một phần không thể thiếu để làm nên một công trình hoàn hảo.

Mặt bằng tầng 1 : từ kết cấu thể hiện sự tiện lợi cho lối sinh hoạt của mọi ngôi nhà với kết cấu từ gara, phòng khách nằm cạnh nhà bếp và 1 không gian sinh hoạt chung được nằm ở vị trí cạnh cầu thang.

Mặt bằng tầng 2 : Bám sát theo những yêu cầu mà mặt bằng tiếp theo được triển khai với các chức năng từ phòng ngủ phân bổ từ 4 góc nhà. Chúng khá giống với thiết kế số 1 nhưng được tạo nên từ các diện tích khác nhau.
Đó là 2 thiết kế mà chúng tôi mong muốn gửi đến trong bài viết ngày hôm nay để đáp ứng từ những nguyện vọng từ phía khách hàng và độc giả. Hãy tiếp tục theo dõi và đón đọc các bài viết tiếp theo trong hạng mục nhà vườn đẹp 2024 nhé !
Xem thêm :






























