Thiết kế nội thất cho nhà 2 tầng chỉ với 500 triệu đồng bạn sẽ sở hữu ngay một căn nhà mang phong cách hiện đại, đầy đủ tiện nghi, không quá cầu kỳ và phức tạp giảm được tối đa chi phí xây nhà một cách hiệu quả.
Mẫu nhà 2 tầng này chúng tôi muốn giới thiệu tới các bạn là cách bố trí nội thất độc đáo, mạng lại nét đẹp riêng biệt, thể hiện được gu thẩm mỹ của xu hướng kiến trúc trong năm 2021. Đây sẽ là mẫu nhà đẹp mà nhiều người hằng mong ước.
* Với kinh phí 500 triệu chúng tôi chia ra từng phần như sau:
- Phần thô khoảng: 325 triệu
- Gạch: 17 triệu
- Đá granit: 13 triệu
- Tủ bếp: 30 triệu
- Nhôm kính: 6 triệu
- Giường ngủ: 15 triệu
- Tủ quần áo: 25 triệu
- Sơn nước: 20 triệu
- Giàn cửa sắt: 25 triệu
- Thiết bị vệ sinh, vòi nước: 19 triệu
- Hệ thống đèn chiếu sáng: 5 triệu

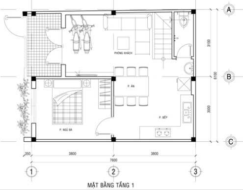
Mặt bằng tầng 1 được thiết kế bên hông nhà dành cho sân để xe, bên còn lại là phòng khách. Ngoài ra có sự liên thông với nhà bếp và phòng ăn tạo được không gian rộng rãi, thoáng mát.

Bố trí tầng 2 có 1 phòng ngủ dành cho bố mẹ và phòng ngủ còn lại dành cho con. 2 phòng ngủ thiết kế có một ban công nhằm lấy ánh sáng từ bên ngoài, phía sau là nhà vệ sinh chung của gia đình và sân phơi đồ.



Thiết kế nội thất hiện đại nhà phố 2 tầng này được tối ưu 1 cách hiệu quả, tùy theo sở thích và điều kiện kinh tế bạn có thể lựa chọn mẫu nội thất phù hợp với nhu cầu sinh sống của gia đình. Với nội thất nhà xinh 2 tầng này được tính toán chi phí hoàn thiện chỉ với 500 triệu đang được rất nhiều quan tâm.





Chúng tôi đánh giá rất cao về mẫu thiết kế nội thất cho nhà 2 tầng với chi phí xây dựng rất phù hợp với nhiều gia đình. Hy vọng rằng với thông tin này bạn sẽ một lượng kiến thức hữu ích cho những dự định sắp tới.
Tin nổi bật => Xây nhà 2 tầng chi phí hết bao nhiêu?


































