Quận 2 được biết đến có vị trí đắc địa, cực kỳ thuận lợi để phát triển lĩnh vực bất động sản. Một trong lĩnh vực bất động sản tại quận 2 được thu hút được rất nhiều sự chú ý từ nhà đầu tư trong linh vực này. Chi phí xây khách sạn tại Quận 2 có mức giá bao nhiêu? Khách sạn có phối cảnh mặt tiền như thế nào? Bố trí không gian ra sao? Tất cả sẽ có trong bài viết đưới dây.
Thu hút, nổi bật với mặt tiền xây khách sạn tại Quận 2
Nếu đã có dịp đặt chân đến Quận 2, chắc chắn bạn sẽ choáng ngợp bởi những tòa nhà địa ốc cao tầng, với sức hút khó có thể cưỡng lại được, xây khách sạn tại Quận 2 sẽ có phối cảnh mặt tiền như thế nào?

1 trong những khách sạn được xây dựng tại Quận 2 sở hữu mặt tiền với diện tích rộng, đủ để khiến tầm mắt của mỗi người đi qua đều phải ngước lên nhìn bởi kích thước lớn, và không quên chụp lại một tấm hình để lưu lại khoảng khắc tuyệt đẹp này.
Có thể nhìn thấy xây khách sạn tại Quận 2 áp dụng lối kiến trúc tân cổ điển. Ở đây kiến trúc sư không sử dụng quá nhiều chi tiết cầu kỳ cho phần trang trí ở mặt tiền bởi lẽ với một kiến trúc có phần quá lớn như thế này, sử dụng nhiều chi tiết sẽ khiến công trình ấy trở nên rối mắt, gây ra cảm giác khó chịu. Với sự tối giản mà kiến trúc tân cổ điển mang lại cho khách sạn tại quận 2 vẫn đủ sang trọng với đường nét đơn giản, sự mạnh mẽ đến từ các cột trụ vuông vực làm nổi bật tạo điểm nhấn cho mặt tiền. Sử dụng thêm hiệu ứng ánh sáng đánh vào cột trụ cùng với ánh sáng từ các phòng nghỉ khách sạn hắt ra tạo nên khung cảnh tuyệt đẹp.

Với tiểu chuẩn 5 sao của mình, xây khách sạn tại Quận 2 sẽ bao gồm tiện ích như: bể bơi, khu phòng tập thể dục thể thao, ăn sáng, thưởng trà,… để giúp khách nghỉ tận hưởng một không gian nghỉ dưỡng cao cấp bậc nhất thế giới hiện nay.

Sở hữu một kiến trúc đơn giản với quy mô xây dựng nhỏ gọn hơn rất nhiều dành cho gia chủ sở hữu một diện tích đất hạn chế tại khu vực quận 2 tham khảo khi vẫn muốn sở hữu một khách sạn của riêng mình
Kiến trúc hiện đại được áp dụng trong không gian này giúp gia chủ có được diện tích tối đa nhất cho các không gian phòng mà mình sở hữu. Màu trắng là tone màu chủ đạo cho toàn bộ ngôi nhà với điểm nhấn màu xanh dương sơn cho khung cửa tạo nên nét đẹp sự hiện đại. Lan can ban công được làm bằng sắt sơn đen tĩnh điện tạo sự bền về chất lượng dưới tác động yếu tố môi trường ở đây, thêm màu xanh từ những chậu cây nhỏ được đặt ban công mang đến ánh nhìn dịu mắt.
Từ vị trí mặt tiền có thể thấy được khách sạn tại Quận 2 bao gồm: 1 tầng hầm để xe cho khách nghỉ, sảnh nhỏ với lối dẫn lên bằng hệ thống bậc tam cấp, sử dụng thêm 1 tầng gác lửng bên trên để thêm vài bàn trà giúp khách thuê nghỉ sở hữu một không gian tiện nghi, ấm cúng.

Một kiểu xây dựng khách sạn tại Quận 2 được rất nhiều du khách lựa chọn nghỉ dưỡng, gia chủ cũng có thể tham khảo cho công trình xây dựng tương lai của mình có cấu trúc là căn vila nghỉ dưỡng dành cho một gia đình hay nhóm từ 5 đến 8 người. Kiến trúc áp dụng thường là hiện đại hoặc tân cổ điển với quy mô xây dựng 3 tầng nhà. Mỗi căn vila đều sở hữu những tiện ích riêng, không khác biệt gì so với ngôi nhà mà bạn đang sinh sống. Điều đặc biệt căn vila này sẽ có không gian vườn cực rộng, cực thoáng để bạn cùng với người thân có thể cùng nhau tham gia những bữa tiệc nướng BBQ bên bếp than hồng rực lửa, trò chuyện nạp lại năng lượng chuẩn bị cho kế hoạch tương lai.
Không gian bên trọng xa hoa, xứng tầm đẳng cấp thiết kế

Bắt đầu khám phá không gian khách sạn tại Quận 2 bằng sảnh lễ tân để thấy được rằng chủ của khách sạn tại đây đã chăm chút từng chút một cho không gian của mình như thế nào?
Sảnh lễ tân trong xây khách sạn tại Quận 2 được bố trí trong không gian sử dụng tone màu trắng giúp cho không gian phòng trở nên rộng rãi, thông thoáng. Nội thất kiến trúc sư lựa chọn có thiết kế nhỏ gọn, đơn giản: quầy lễ tân, bộ bàn ghế bằng chất liệu mây tre đan đơn giản, tiểu cảnh cây xanh cùng với những điểm nhấn nội thất màu xanh mang đến cảm giác tươi mát cho toàn bộ không gian. Dưới cái nắng gắt của thời tiết Sài Gòn bước chân vào không gian này mọi mệt mỏi, cái nhăn mày vì nắng đều sẽ được xua tan nhanh chóng.

Một cách lựa chọn quầy lễ tên với thiết kế đơn giản, phổ biến tại các khách sạn hiện nay, đặc biệt những khách sạn có mặt tiền hạn chế. Không gian quầy lễ tân vô cùng đơn giản với quầy, tủ trang trí phía sau cùng đồ trang trí nhỏ gọn. Không gian này bừng sáng và sang trọng nhờ vào nội thất được ốp gỗ, màu vàng ấm áp giúp cho không gian ấy trở nên gần gũi với vị khách ghé thăm.

Không gian phòng ngủ trong xây khách sạn tại Quận 2 bố trí giống như căn hộ mini với phòng ngủ, nhà vệ sinh, phòng bếp và bàn ăn, mọi thứ gần như nối thông với nhau, không sử dụng cửa ngăn để khách thuê phòng nghỉ cảm thấy không gian thông thoáng.
Không gian phòng ngủ sử dụng màu xanh nước biển nhưng tạo hình giống như bầu trời xanh hay làn nước biển trong xanh mang đến ánh nhìn xanh mát cho người thuê phòng khách sạn. Không gian sử dụng màu sắc vintage mang đến cảm nhác nhẹ nhàng, thư thái.

Một gợi ý trang trí phòng khách sạn tại Quận 2 cho gia chủ tham khảo sử dụng tone màu trầm mang đến cảm giác ấm cúng cho khách thuê. Không gian tối giản hết sức có thể các thiết bị điện tử để người thuê phòng có được một không gian yên tĩnh nhất, dễ dàng đi vào giấc ngủ, và sáng mai thức dậy có được nguồn năng lượng tươi mới. Không gian sử dụng cửa kính cỡ lớn khung thép vững chãi lấy toàn bộ ánh sáng vào bên trong không gian phòng. Ban công với diện tích rộng sử dụng tiểu cảnh cây xanh mang đến cảm nhận tươi mát, không bị nắng gắt chói.
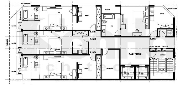
Gợi ý đến quý gia chủ xây khách sạn tại quận 2 mặt bằng tham khảo như sau: Từ vị trí cầu thang máy đi ra, bên tay phải bắt cầu thang bộ và nhà kho các tầng và 4 phòng nghỉ với diện tích khá lớn. Trong mỗi phòng này được bố trí đầy đủ tiện nghi như: giường, tivi, nhà vệ sinh và gia chủ tham khảo cách bố trí bên trên.

Gợi ý về mặt bằng không gian bố trí các phòng khách sạn tại Quận 2 như sau:

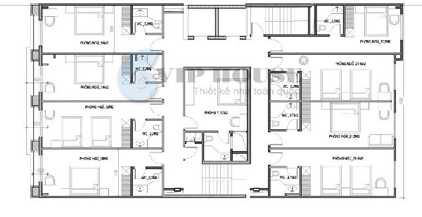
Mặt bằng tham khảo thứ 2 này sẽ dành cho khách sạn theo phong cách tân cổ điển, hay cổ điển với diện tích sàn lớn. 1 phòng ngủ được bố chí chính giữa căn phòng, hai bên được bố trí 4 phòng ngủ, cầu thang được đặt trong 1 góc nhỏ. Mỗi căn phòng sẽ được bố trí giường đơn. Giường đôi phù hợp với nhu cầu từng khách, nhà vệ sinh cùng khu vực ban công khá lớn để ngắn toàn thành phố vào ban đêm.
Chi phí xây khách sạn tại Quận 2 có mức giá bao nhiêu?
Đơn giá cho phần thô xây khách sạn tại Quận 2:
- Đơn giá xây dựng phần thô áp dụng đối với gói đầu tư trung bình khá: 3.600.000 đồng – 3.800.000 đồng.
- Đơn giá xây dựng phần thô áp dụng đối với gói đầu tư khá: 3.900.000 đồng – 4.200.000 đồng.
- Đơn giá xây dựng phần thô áp dụng đối với gói đầu tư cao cấp: 4.400.000 đồng đến 4.550.000 đồng.
Đơn giá cho phần hoàn thiện xây khách sạn tại Quận 2:
- Đơn giá xây dựng khách sạn hoàn thiện áp dụng đối với gói đầu tư trung bình khá: 6.200.000 – 7.500.000 đồng.
- Đơn giá xây dựng hoàn thiện khách sạn 3 sao áp dụng đối với gói đầu tư khá:7.500.000 - 8.500.000 đồng.
- Đơn giá xây dựng khách sạn 3 sao hoàn thiện áp dụng đối với gói đầu tư cao cấp: 9.100.000 – 12.000.000 đồng.
Trên đây chỉ là mức giá tham khảo cho gia chủ, để biết thêm thông tin chi tiết, gia chủ truy cập website: xaydungso.vn để tìm hiểu thêm thông tin liên quan đến lĩnh vực xây dựng, thông tin chi phí xây khách sạn tại Quận 2.


































