Với phần lớn gia đình hiện nay 1 căn nhà 3 ngủ đang trở thành xu hướng tất yếu khi xây nhà. Nhưng cách bố trí cũng như chi phí xây nhà 3 phòng ngủ thế nào mới là hợp lý, không chỉ đẹp về thẩm mỹ, mà còn đẹp cả trong ngân sách của gia chủ.
Đề cấp đến xây nhà 3 phòng ngủ thường nhắc đến những ngôi nhà 2 tầng với 4 thành viên trong gia đình, tiểu biểu cho những mẫu nhà mặt phố hiện nay. Ngoài thiết kế 2 tầng thì mẫu nhà cấp 4 với diện tích tương đối cũng có thể xây dựng được 3 phòng ngủ, đáp ứng nhu cầu hiện nay. Cùng xem chi phí xây nhà 3 phòng ngủ với 2 mẫu nhà: cấp 4 với diện tích là 150m2 và nhà 2 tầng với diện tích mỗi tầng 90m2. Đây được xem là kiểu mẫu tiêu biểu cho mẫu nhà ở quê và mẫu nhà thành phố.
Phương pháp tính chi phí xây nhà 3 phòng ngủ chính xác nhất
Hiện nay có 2 phương pháp tính chi phí xây dựng được các nhà thầu áp dụng, đó là: Thông qua việc lệt kê tất cả các khoảng mục chi phí và tính chi phí dựa trên mét vuông. Với phương pháp thứ nhất khá phức tạp, đòi hỏi chủ đầu tư phải là người có kinh nghiệm trong lĩnh vực này, vậy nên, chúng ta hãy cùng tham khảo cách xác định chi phí dựa theo mét vuông đang phổ biến hiện nay.
Tư vấn cách tính diện tích xây dựng nhà 3 phòng ngủ hiện nay
Theo đó, chi phí xây nhà theo mét vuông = diện tích xây dựng x đơn giá xây dựng/m2
Do vậy, trước khi tính toán chi phí, chủ đầu tư cần xác định chính xác diện tích ngôi nhà 2 tầng mà bạn muốn xây dựng là bao nhiêu. Dưới đây là bảng xác định diện tích xây dựng cho những hạng mục khác nhau:

Đơn giá chi phí xây nhà 3 phòng ngủ hiện nay là bao nhiêu?
Với thông tin từ hàng ngàn nhà thầu khác nhau trên khắp cả nước, Xây Dựng Số đã xác định được mức chi phí xây nhà tính theo mét vuông, bao gồm một số loại sau:
- Đơn giá nhân công giao động từ 1.100.000 – 1.500.000đ/m2
- Đơn giá phần thô và nhân công hoàn thiện giao động từ 3.200.000 – 3.600.000đ/m2
- Đơn giá xây dựng nhà trọn gói bao gồm chi cả chi phí nhân công hoàn thiện:
+ Gói vật tư trung bình có chi phí khoảng 4.500.000VNĐ/m2
+ Gói vật tư trung bình khá có chi phí khoảng 4.800.000VNĐ/m2 - 5.000.000 VNĐ/m2
+ Gói vật tư khá có chi phí khoảng 5.500.000VNĐ/m2
+ Gói vật tư tốt có chi phí khoảng 6.000.000VNĐ/m2
Nhìn vào đây chắc hẳn chủ đầu tư dễ dàng nhận thấy nếu bạn sử dụng vật tư càng chất lượng thì chi phí càng tốn kém. Tuy nhiên, bạn không nên vì thế mà chọn những loại vật liệu có chất lượng kém để tiết kệm ngân sách. Bởi, vật liệu chính là cốt lõi của công trình, cốt lõi có vững chắc thì công trình mới bền đẹp.

Chi phí xây nhà 1 tầng 3 phòng ngủ có diện tích 150m2 mới nhất 2021
Ví dụ: Nếu bạn đang có kế hoạch xây nhà 1 tầng 3 phòng ngủ diện tích 150m2, móng cọc, mái bê tông cốt thép. Vậy, chi phí xây dựng phần thô và trọn gói nhà 1 tầng 3 phòng ngủ 150m2 là bao nhiêu?
Cách tính diện tích nhà 3 phòng ngủ diện tích 150m2 cụ thể:
- Diện tích móng: 150m2 x hệ số 30% = 45m2
- Diện tích tầng 1: 150m2 x hệ số 100% = 150m2
- Diện tích mái bê tông cốt thép: 150m2 x hệ số 50%= 75m2
Như vậy, tổng diện tích nhà 1 tầng 3 phòng ngủ, mái bê tông cốt thép là: 45+150+75 = 270m2
Lưu ý: tổng diện tích xây nhà 1 tầng 3 phòng ngủ tính giá còn phụ thuộc vào từng loại móng, loại mái,...
Chi phí xây nhà 1 tầng 3 phòng ngủ diện tích 150m2, mái bê tông cốt thép là bao nhiêu?
Từ công thức: Chi phí xây nhà = Tổng diện tích x đơn giá
Tham khảo báo giá xây dựng phần thô rẻ thiện nay:
- Đơn giá chi phí xây dựng phần thô: 270m2 x 3.400.000 VNĐ/m2 = 921.400.000VNĐ
- Đơn giá chi phí xây dựng trọn gói: 270m2 x 5.500.000 VNĐ/m2 = 1.485.000.000VNĐ
Như vậy theo công thức trên, chi phí xây nhà 1 tầng 3 phòng ngủ có diện tích 150m2 là 921.400.000VNĐ - 1.485.000.000VNĐ tùy theo gói xây dựng mà chủ đầu tư lựa chọn.
Lưu ý đơn giá này sẽ giao động khác nhau bởi phụ thuộc vào từng địa phương, giá vật tư xây dựng cũng như nhân công. Nhưng chủ đầu tư chỉ cần áp dụng đúng công thức trên là có thể tính được chi phí xây nhà mái bằng hay mái tôn.
Đơn giá thi công thô chưa bao gồm chi phí cho phần thiết bị nội thất bên trong như: gạch lát nhà, gạch ốp nhà vệ sinh, ngói,….
Chi phí xây nhà 2 tầng 3 phòng ngủ diện tích 90m2
Ví dụ: Nếu bạn đang có kế hoạch xây nhà 2 tầng 3 phòng ngủ diện tích 90m2, móng cọc, mái bê tông cốt thép. Vậy, chi phí xây dựng phần thô và trọn gói nhà 2 tầng 3 phòng ngủ 90m2 là bao nhiêu?

Cách tính diện tích nhà 2 tầng có 3 phòng ngủ diện tích 90m2 cụ thể như sau:
- Diện tích móng: 90m2 x hệ số 30% = 27m2
- Diện tích tầng 1: 90m2 x hệ số 100% = 90m2
- Diện tích tầng 2: 90m2 x hệ số 100% = 90m2
- Diện tích mái bê tông cốt thép: 90m2 x hệ số 50% = 45m2
Như vậy, tổng diện tích nhà 2 tầng 3 phòng ngủ 90m2, mái bê tông cốt thép là: 252m2
Lưu ý: tổng diện tích xây nhà 2 tầng 3 phòng ngủ tính giá còn phụ thuộc vào từng loại móng, loại mái,...
Chi phí xây nhà 2 tầng 3 phòng ngủ diện tích 90m2, mái bê tông cốt thép là bao nhiêu?
Từ công thức: Chi phí xây nhà = Tổng diện tích x đơn giá
Tham khảo báo giá xây dựng phần thô rẻ thiện nay:
- Đơn giá chi phí xây dựng phần thô: 252m2 x 3.400.000 VNĐ/m2 = 856.800.000VNĐ
- Đơn giá chi phí xây dựng trọn gói: 252m2 x 5.500.000 VNĐ/m2 = 1.386.000.000VNĐ
Như vậy, chi phí xây nhà 2 tầng 3 phòng ngủ 90m2 là 856.800.000VNĐ - 1.386.000.000VNĐ tùy theo gói xây dựng mà chủ đầu tư lựa chọn.
Lưu ý đơn giá này chỉ mang tính chất tham khảo. Để biết được chính xác chi phí của từng hạng mục, bạn nên gửi bản vẽ thiết kế cho đơn vị thầu chuyên nghiệp để căn cứ vào đó, họ sẽ đưa ra bảng giá chi tiết cụ thể nhất.
Đơn giá thi công thô chưa bao gồm chi phí cho phần thiết bị nội thất bên trong như: gạch lát nhà, gạch ốp nhà vệ sinh, ngói,….
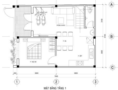
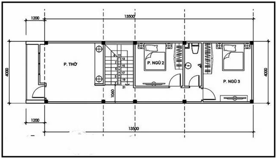
Cách bố trí 3 phòng ngủ của 2 mẫu nhà cũng được bố trí khác nhau
Mẫu nhà cấp 4 với diện tích 150m2 sẽ bố trí như sau: tiền sảnh 22m2, phòng khách 38m2 kết hợp cùng phòng thờ có diện tích7m2, phòng bếp 30m2, phòng ngủ 1 và phòng ngủ 2 có diện tích là 15m2 và một phòng ngủ thứ 3 có diện tích 19m2. Cùng với việc bố trí 3 wc có diện tích lần lượt là: 3.4m2, 3.8m2 và 4.5m2.

Cách bố trí không gian căn nhà cấp 4 3 phòng ngủ diện tích 150m2
Việc bố trí như này là phù hợp với gia đình có 4 thành viên với nhau, ngôi nhà đáp ứng chuẩn 3 phòng ngủ, khi có khách đến chơi và ngủ lại, phòng ngủ vẫn đủ công năng để tiếp đón những vị khách đến chơi nhà.

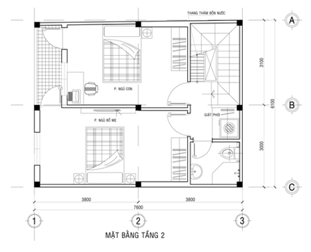
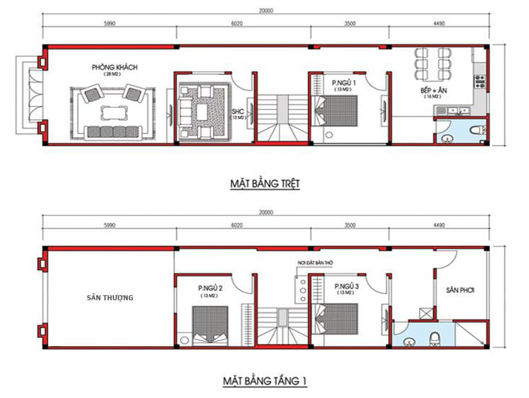
Cách bố trí không gian căn nhà 2 tầng 3 phòng ngủ diện tích 90m2
Mẫu nhà 2 tầng, điện tích 90m2, có cách bố trí khác với mẫu nhà cấp 4 phía trên. Cụ thể là: Tầng 1, sảnh 5m2, phòng khách 25.5m2, phòng bếp 17m2, wc chung chia thành hai khu vực là khu vực tắm và khu vực khô, mỗi bên có diện tích 4.8m2 và phòng ngủ 14m2. Lên khu vực tầng hai là ban công 4.5m2, khu vực phòng thờ 5.5m2, hai phòng ngủ với diện tích lần lượt là 15m2 và 18.5m2, hai nhà vệ sinh có cùng diện tích là 4.8m2, khu vực sân phơi 6.2m2, diện tích còn lại bố trí không gian nho nhỏ sinh hoạt chung tầng 2.
Trên đây là cách bố trí tham khảo cho gia chủ cho từng mẫu nhà 1 tầng và 2 tầng với đủ 3 phòng ngủ. Tùy theo nhu cầu mà gia chủ có thể bố trí lại về diện tích, thêm hoặc bợt những khu vực không gian không cần thiết với nhu cầu gia đình mình. Tuy nhiên vẫn đảm bảo được diện tích sử dụng không gian sinh hoạt chung và không gian sinh hoạt riêng của mỗi người.
Yếu tố ảnh hưởng chi phí xây nhà 3 phòng ngủ
Yếu tố đầu tiên ảnh hưởng chi phí xây dựng nhà 3 phòng ngủ chính là quy mô và diện tích xây dựng. Với cùng một yêu cầu 3 phòng ngủ nhưng với diện tích khác nhau, quy mô nhà cấp 4 và nhà 2 tầng 1 trệt 1 lầu đã cho ra nhưng chi phí thô khác nhau. Vì vậy nếu như cùng diện tích 90m2 thì xây nhà 2 tầng sẽ đắt hơn so với xây nhà cấp 4, tương tự như việc 100m2 sẽ chi phí nhỉnh hơn so với xây nhà 90m2. Gia chủ cũng cần cân nhắc để có thể lựa chọn quy mô và diện tích phù hợp.

Phong cách thiết kế ảnh hưởng rất nhiều đến chi phí xây dựng của ngôi nhà. Với 3 phong cách hiện nay: hiện đại, cổ điển và tân cổ điển, mỗi phong cách đều có vẻ đẹp riêng đi cùng chi phi khác nhau. Những ngôi nhà theo phong cách cổ điển và tân cổ điển có chi phí đắt hơn so với phong cách hiện đại bởi chi phí cho nhân công thực hiện chi tiết hoa văn trang trí của ngôi nhà.
Với hai mẫu nhà được đề cập đến trong bài biết này thì phong cách lựa chọn cho từng mẫu nhà khác nhau. Ví như ngôi nhà cấp 4, 150m2 thường lựa chọn thiết kế theo phong cách hiện đại hoặc phong cách tân cổ điển. Với cả hai phong cách này đều mang đến hiệu quả đó chính là khiến cho ngôi nhà hiện đại, tiện nghi, cùng khoảng sân vườn tạo nên ngôi nhà vườn rất phù hợp với nghỉ ngơi.
Còn với mẫu 2 tầng 1 trệt 1 lầu 90m2 lại được các chuyên gia thiết kế khuyên nên lựa chọn phong cách hiện đại để có thể nâng cao được diện tích sử dụng. Với phong cách này ngôi nhà sẽ không cảm thấy chật hẹp, hay bí bách do thiếu không khí, ánh sáng lưu thông. Với việc bố trí cửa kính to giúp khắc phục hoàn toàn nhược điểm này mang đến không gian vô cùng dễ chịu. Thêm nữa, kiến trúc dạng này thường xuất hiện rất nhiều tại mặt phố, nơi thiếu không gian xanh, nên việc bố trí tiểu cảnh cây xanh xuyên suốt từ trong ra ngoài đã làm nên không gian đáng sống giữa lòng phố thị tấp nập.
Nguyên vật liệu chính là yếu tố quyết định khá lớn chi phí xây dựng ngôi nhà. Về cơ bản những nguyên vật liệu dùng để xây nhà chính là: cát, cát mịn, cát vàng, thép, xi măng, sỏi, gạch ốp lát, thiết bị nhà vệ sinh,… Tuy nhiên điều tạo nên chênh lệch chính chất lượng. Có 3 loại vật liệu sau đây:
- Vật liệu trung bình khá: 5 triệu đồng/m2
- Vật liệu tốt: 5.5 triệu đồng/m2
- Vật liệu cao cấp: 6 triệu đồng/m2
Gia chủ đừng ham rẻ mà lựa chọn những vật liệu giá rẻ gây ảnh hưởng rất nhiều đến chất lượng thi công của công trình.

Thời điểm xây dựng hợp lý và địa điểm xây dựng là yếu tố quyết định đến chi phí xây dựng nhà 3 phòng ngủ. Với rất nhiều người không chú ý đến hai điểm này nhưng nó lại đóng yếu tố vô cùng quan trọng. Thời điểm xây dựng nhà ở được ví như điều quan trọng bậc nhất, xây nhà ảnh hưởng đến vượng khí của gia chủ vì thế phải lựa chọn rất cẩn thận, phù hợp phong thủy. Thời điểm nay cũng tránh những mùa bão lũ lụt để tránh ảnh hưởng đến tiến độ thi công cũng như chất lượng công trình.
Địa điểm xây dựng, điều này ảnh hưởng đến quá trình vận chuyển nguyên vật liệu. Ở những nơi thuận tiện cho giao thông, ngay mặt đường chắc chắn dễ dàng di chuyển và vì thế chi phí di chuyển cũng thấp hơn những nơi có địa hình khó khăn di chuyển, ngõ hẹp hay những nơi vùng sâu vùng xa, miền núi.
Xây nhà 2 tầng thiết kế 3 phòng ngủ rộng thoáng. Nhà là nơi bình yên chúng ta trở về sau những giờ làm việc mệt mỏi; là nơi tìm thấy những yêu thương, sự thân quen của gia đình. Để có được chốn bình yên ấy, nhiều gia chủ đã gặp nhiều băng khoăn trong xây dựng và thiết kế nhà ở của mình.

Phương án bố trí các phòng chức năng
Tầng 1: Một bên là sân và nơi để xe, một bên là phòng khách. Phần còn lại bố trí phòng ăn và bếp. Phòng ngủ của bà hướng ra cửa chính thông thoáng. Cầu thang được đặt sát tường ngay cạnh phòng khách. Thiết kế tận dụng gầm cầu thang làm nhà vệ sinh.

Tầng 2: Bố trí phòng ngủ bố mẹ và phòng ngủ của con. Phòng ngủ của bố mẹ có cửa sổ lớn rộng thoáng, phòng ngủ của con có ban công hướng ra ngoài để lấy sáng. Cả hai phòng dùng chung nhà vệ sinh phía sau. Phòng giặt đặt ngay cạnh cầu thang. Ánh sáng được lấy tối đa từ ô lấy sáng cầu thang.

Tầng mái: là nơi đặt bồn nước và trồng rau sạch.

Nhà 2 tầng 3 phòng ngủ 54m2 đơn giản
Mẫu nhà này với thiết kế 2 tầng được lợp mái tôn nhằm tiết kiệm chi phí xây dựng, tối ưu cho các gia đình

Tầng 1 sẽ bao gồm phòng khách, phòng ngủ, bếp và 1 nhà vệ sinh chung. Phía trước sẽ có một khoảng sân với diện tích 2,5m2 để làm nơi để xe và trang trí các tiểu cảnh. Phòng khách rộng 12m2, phòng ngủ được bố trí cho người cao tuổi có diện tích 8m2.

Tầng 2 sẽ có ban công, 1 phòng thờ kết hợp phòng đọc sách. 2 phòng ngủ được bố trí sau cầu thang dành cho vợ chồng gia chủ và con cái.


Mẫu nhà 2 tầng 3 phòng ngủ 5×11
Thiết kế của mẫu nhà này phù hợp với các gia đình có từ 3 đến 5 thành viên, đảm bảo thuận lợi cho việc sinh hoạt và giữ được sự riêng tư cần thiết. Nhà được thiết kế theo phong cách hiện đại với kiến trúc hình khối, tạo sự chắc chắn và kiên cố

Mặt bằng tầng 1 mẫu nhà này sẽ bao gồm sân trước, phòng khách, nhà bếp và phòng ăn, 1 phòng ngủ và 1 nhà vệ sinh chung.
Tầng 2 gồm có 2 phòng ngủ có phòng tắm riêng, 1 phòng chứa đồ và 1 nhà vệ sinh. Nên thiết kế đơn giản, hạn chế các chi tiết phức tạp tạo cảm giác rộng rãi cho không gian sinh hoạt
Mẫu nhà 2 tầng 3 phòng ngủ 4×16
Ngôi nhà với thiết kế kiến trúc hình khối hiện đại, chắc chắn. Với bề ngang chỉ 4m nên cần chú ý phân chia công năng sử dụng khoa học, tránh gây sự bí bách

Tầng 1 sẽ bao gồm khoảng sân trước, 1 phòng khách, 1 phòng ngủ, phòng bếp và ăn, 1 nhà vệ sinh chung và khu vực cầu thang

Tầng 2 sẽ có 2 phòng ngủ, 1 phòng thờ và 1 nhà vệ sinh chung

Bản vẽ nhà 2 tầng 3 phòng ngủ 5×18
Mẫu nhà này được thiết kế theo không gian mở, giúp tối ưu hóa công năng sử dụng và đảm bảo tính thẩm mỹ. Ngôi nhà sẽ trở nên sang trọng hơn nếu được kết hợp phong cách hiện đại.

Tầng 1 sẽ có 1 phòng khách, 1 phòng sinh hoạt chung, khu vực cầu thang, 1 phòng ngủ và cuối cùng là bếp và phòng ăn
Tầng 2 sẽ gồm sân thượng, 2 phòng ngủ, khu vực cầu thang sẽ nằm giữa 2 phòng ngủ, sau nhà sẽ có 1 sân phơi.
Bản vẽ nhà 2 tẩng 3 phòng ngủ 5×20
Mẫu nhà này sẽ có mặt tiền nhỏ, ngược lại chiều dài căn nhà lại lên đến 20m. Với lô đất này bạn có thể thiết kế theo dạng các khối vuông vắn sẽ tạo sự sang trọng cho ngôi nhà của bạn. Bạn hãy hạn chế tối đa chiều sâu của ngôi nhà bằng cách tăng diện tích sử dụng đồng thời đảm bảo không gian sinh hoạt cho gia đình.

Thiết kế tầng 1 với 1 phòng khách, 1 không gian bếp, 1 phòng ngủ và nhà vệ sinh chung. Tầng 2 bạn hãy khéo léo bố trí 2 phòng ngủ, 1 phòng thờ nhỏ kết hợp cùng ban công và sân phơi
Mẫu nhà mái thái 2 tầng 3 phòng ngủ
Mẫu nhà được thiết kế kiến trúc hình khối hiện đại và khoa học. Thiết kế mái thái mang vẻ sang trọng kết hợp với sự hài hòa của việc thiết kế cảnh quan sân vườn đem lại sự ấn tượng. Đây là mẫu nhà được rất nhiều hộ gia đình lựa chọn hiện nay

Tầng 1 bao gồm phòng khách, phòng ăn và bếp, 1 phòng ngủ và 1 nhà vệ sinh chung. Cầu thang được thiết kế ở góc nhà, sau không gian bếp.

Tầng 2 có 2 phòng ngủ được trang bị nhà vệ sinh khép kín, 1 phòng sinh hoạt chung và 1 nhà vệ sinh chung
Mẫu nhà ống 2 tầng 3 phòng ngủ có garage xe
Mẫu nhà này cần có diện tích đất khá rộng, thiết kế garage giúp giải quyết vấn đề đậu xe cho gia chủ. Bên cạnh đó cũng làm cho ngôi nhà trở nên rộng rãi và sang trọng hơn

Tầng trệt sẽ có thiết kế 1 phòng khách, 1 phòng ngủ, bếp và nhà vệ sinh chung. Không gian bếp nên được bố trí sau cùng của ngôi nhà.

Tầng 2 với 2 phòng ngủ, 1 phòng thờ và một ban công nhỏ để hóng mát, trồng cây mang lại cảm giác tươi mới.
Mẫu nhà 2 tầng 3 phòng ngủ có sân vườn
Nhà có sân vườn là mẫu thiết kế rất được yêu thích bởi không gian xanh mà nó đem lại. Sân vườn có thể trồng cây xanh hoặc trồng rau, đem lại sức sống tươi mới và tôn thêm vẻ đẹp cho ngôi nhà bạn.

Tầng 1 và tầng 2 cần phải bố trí các phòng làm sao tối ưu không gian sống nhất, nhưng cũng phải cho bạn cảm giác thoải mái, rộng rãi khi ở trong ngôi nhà

Thiết kế nhà 2 tầng 1 tum 3 phòng ngủ
Việc thiết kế phần tum sẽ giúp tăng diện tích cho ngôi nhà, tạo nên sự cao ráo và thông thoáng. Tầng tum có thể được kết hợp với sân thượng để làm vườn rau hay cây cảnh.

Với tầng tum gia chủ có thể bố trí thêm 1 phòng ngủ và phòng thờ nhằm tối ưu không gian. Đây sẽ là ý tưởng thú vị và là điểm nhấn cho ngôi nhà
Bản vẽ thiết kế nhà ống 2 tầng 3 phòng ngủ có gác lửng
Kiểu thiết kế này rất phù hợp cho những ngôi nhà ống có diện tích hẹp.

Tầng 1 sẽ có khu vực để xe, 1 phòng khách, khu vực cầu thang và 1 phòng ngủ được đưa ra hẳn phía sau đảm bảo sự yên tĩnh. Tối ưu hóa không gian khi gầm cầu thang được xây 1 nhà vệ sinh.
Tầng lửng có thể bố trí không gian bếp và ăn uống. Cách bố trí này giúp tạo một không gian sinh hoạt riêng cho cả gia đình.

Tầng 2 sẽ có 2 phòng ngủ và 2 nhà vệ sinh, ở giữa sẽ có phòng sinh hoạt chung cho gia đình. Người thiết kế đã khéo léo dành một không gian nhỏ để đặt giếng trời giúp nhận được ánh sáng tự nhiên và không khí được lưu thông tốt hơn.
Hy vọng những mẫu nhà trên sẽ đem lại ý tưởng cho bạn nếu như đang có ý định xây dựng mẫu nhà này. Tùy vào nhu cầu sử dụng, số lượng thành viên và diện tích đất mà gia chủ sẽ có sự lựa chọn phù hợp cho mình.


































