Một trong những câu hỏi khá nhiều gia chủ đang thắc mắc trong thời gian qua chính là chi phí xây nhà 3 tầng 30m2 hết bao nhiêu tiền? Chúng tôi có thể trả lời ngay với các bạn là hoàn toàn có thể xây được tuy nhiên bạn cần có phương án thiết kế và thi công kết cấu khoa học, đảm bảo chất lượng công trình về lâu về dài.
Với diện tích mặt tiền chỉ 3m, chiều sâu 10m2, thiết kế nhà cao tầng vô hình tạo nên khối hình hộp khá cao, cứng nhắc và có phần hơi thô. Tuy nhiên với sự sáng tạo của kiến trúc sư hiện nay mọi nhược điểm của công trình đều được biến hóa thành phương án thiết kế sáng tạo và đương nhiên kết cấu và tính thẩm mỹ của công trình luôn được đặt lên hàng đầu.
1. Đơn giá xây dựng nhà 3 tầng tính trên 1 mét vuông

- Đơn giá nhân công xây dựng từ 1,4 – 1,7 triệu đồng /m2
- Chi phí xây nhà 3 tầng phần thô + nhân công hoàn thiện dao động từ 3,2 – 3,5 triệu đồng /m2
- Chi phí xây dựng nhà 3 tầng theo lựa chọn trọn gói:
- Vật tư trung bình: 5.000.000 đồng/m2
- Vật tư khá : 5.500.000 đồng/m2
- Vật tư tốt: 6.000.000 đồng/m2
Lưu ý đây là đơn giá dành cho nhà 3 tầng phổ biến hiện nay mang tính chất tham khảo. Tùy thuộc vào công trình thực tế, quy mô xây dựng, vị trí địa lý địa chất, vật liệu hoàn thiện….. sẽ có những mức giá khác nhau.
2. Chi phí xây nhà 3 tầng diện tích 30m2

Dưới đây chúng tôi sẽ hướng dẫn cách tính chi phí xây dựng nhà 3 tầng 30m2 bao gồm 1 trệt 2 lầu, mái ngói dùng bê tông cốt thép, nguyên vật liệu trung bình.
2.1 Tính diện tích
- Móng bè: 30 x 50% = 15m2
- Tầng trệt: 30 x 100% = 30m2
- Lầu 1: 30 x 100% = 30m2
- Lầu 2: 30 x 100 % = 30m2
- Mái ngói bê tông cốt thép: 30 x 100% = 30m2
- Tổng diện tích sàn thi công là: 135m2
2.2 Nhân đơn giá
- Phần thô: 135m2 x 3.300.000 = 445,5 triệu đồng
- Trọn gói: 135m2 x 5.000.000 = 675 triệu đồng. Bao gồm cả phần thô và phần ốp lát hoàn thiện chưa tính mua sắm lắp đặt nội thất.
Để có một cái nhìn tổng quan và chi tiết nhất về chi phí xây nhà 3 tầng hết tổng chi phí như thế nào thì các bạn nên tìm đến một công ty về xây dựng (nhà thầu hoặc bên tư vấn thiết kế) uy tín chuyên nghiệp, sở hữu những kiến trúc sư, kỹ sư chuyên môn cao. Tùy thuộc vào ngân sách của gia đình bạn mà kiến trúc sư sẽ tư vấn trao đổi để xây dựng một căn nhà đẹp, sang trọng, đảm bảo chất lượng và phù hợp với điều kiện của gia đình bạn.
3. Phương án thiết kế nhà ống 3 tầng diện tích 30m2 phong cách hiện đại
3.1 Phối cảnh mặt bằng hiện đại và tiện nghi
Mẫu nhà ống 3 tầng hiện đại với những đường nét kiến trúc khoẻ khoắn, hình khối thể hiện sự vững chắc và đầy kiên cố. Hình khối công trình tuy đơn giản, không có quá nhiều sự xuất hiện của những chi tiết đường gờ phào chỉ cầu kỳ, thay vào đó là những khối thiết kế đơn giản, hình vuông, hình chữ nhật. Khối bê tông tường được đổ đua rộng hơn so với thiết kế mặt tiền khoảng gần 1m tạo thêm không gian nới rộng cho công trình.

Phối cảnh mặt tiền nhà 3 tầng 30m2
Đi cùng với hệ thống khối ban công rộng với lan can bằng sắt phun sơn tĩnh điện tinh tế, khối ban công tầng 3 được thiết kế thu hẹp về diện tích nhưng mở rộng khối đua ra trước mặt tiền có thể tận dụng để trồng tiểu cảnh không gian xanh. Từ thân tường tầng 2 kéo dài trên tầng 3 được ốp sàn gỗ nhựa khá hiện đại và đẹp mắt.
Hệ thống cửa ban công mặt tiền trước được thiết kế kết hợp với vách kính để lấy sáng và cân bằng dòng đối lưu cho các không gian khác trong nhà. Ngoài hệ thông giếng trời thì hệ thống của kính chính là cách để lấy sáng, lấy thoáng thông mính và tốt nhất cho công trình nhà đẹp 3 tầng.
Với những gam màu trung tính tưởng chừng như có sự đối lập nhưng khi thiết kế cùng nhau lại tạo nên những hiệu ứng tổng thể chung có sức hút khá lớn. Sự nổi bật của tông màu nâu vân gỗ đi cùng với tông xám của hệ thống cửa cổng, màu trắng trong của kính cường lực và màu sơn ngoại thất trắng của công trình đã mang đến những hiệu ứng rõ nét về không gian đa chiều, sự rộng mở cho mẫu nhà có sự hạn hẹp về diện tích thi công.
3.2 Mặt bằng công năng khoa học
Với diện tích ô đất chéo, phương án thiết kế kiến trúc nhà 3 tầng 30m2 đã khó, phương án tối ưu công năng còn khó khăn hơn. Với hiện trạng ô đất như vậy, án mặt bằng công năng cho công trình như sau:

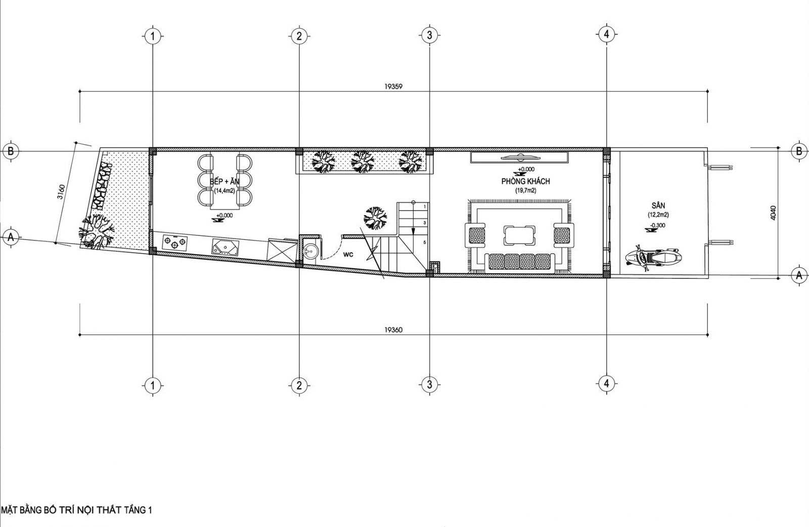
Mặt bằng công năng tầng 1
Tầng 1 thiết kế ngay cổng nhà là sân trước và không gian để xe cho các thành viên trong gia đình, đi sâu vào trong là không gian phòng khách, phòng bếp ăn. Hai không gian được thiết kế liên thông với nhau thuận tiện cho không gian mở và có sự luân chuyển dễ dàng khi di chuyển. Hệ thống giếng trời lấy sáng được đặt ở trung tâm nhà là không gian kết nối phòng khách và phòng bếp, phân bố ánh sáng đồng đều cho không gian sinh hoạt chung này. Giếng trời thiết kế bố trí đối diện cầu thang thông tầng, không gian cầu thang được chiếu sáng.
Phần cuối của ô đất quá nhỏ, kiến trúc sư tận dụng mở thêm hệ thống giếng trời thứ 2, cân bằng và sẽ tác động đến dòng đối lưu từ không gian phía trước của công trình.

Mặt bằng công năng tầng 2
Tầng 2 thiết kế 2 phòng ngủ, đối diện qua cầu thang thông tầng đặt sát tường ở trung tâm của không gian. Phòng ngủ master thiết kế hướng ban công chính, tiếp giáp ngay nhà vệ sinh chung của tầng 2, phía đối diện là phòng ngủ của con.

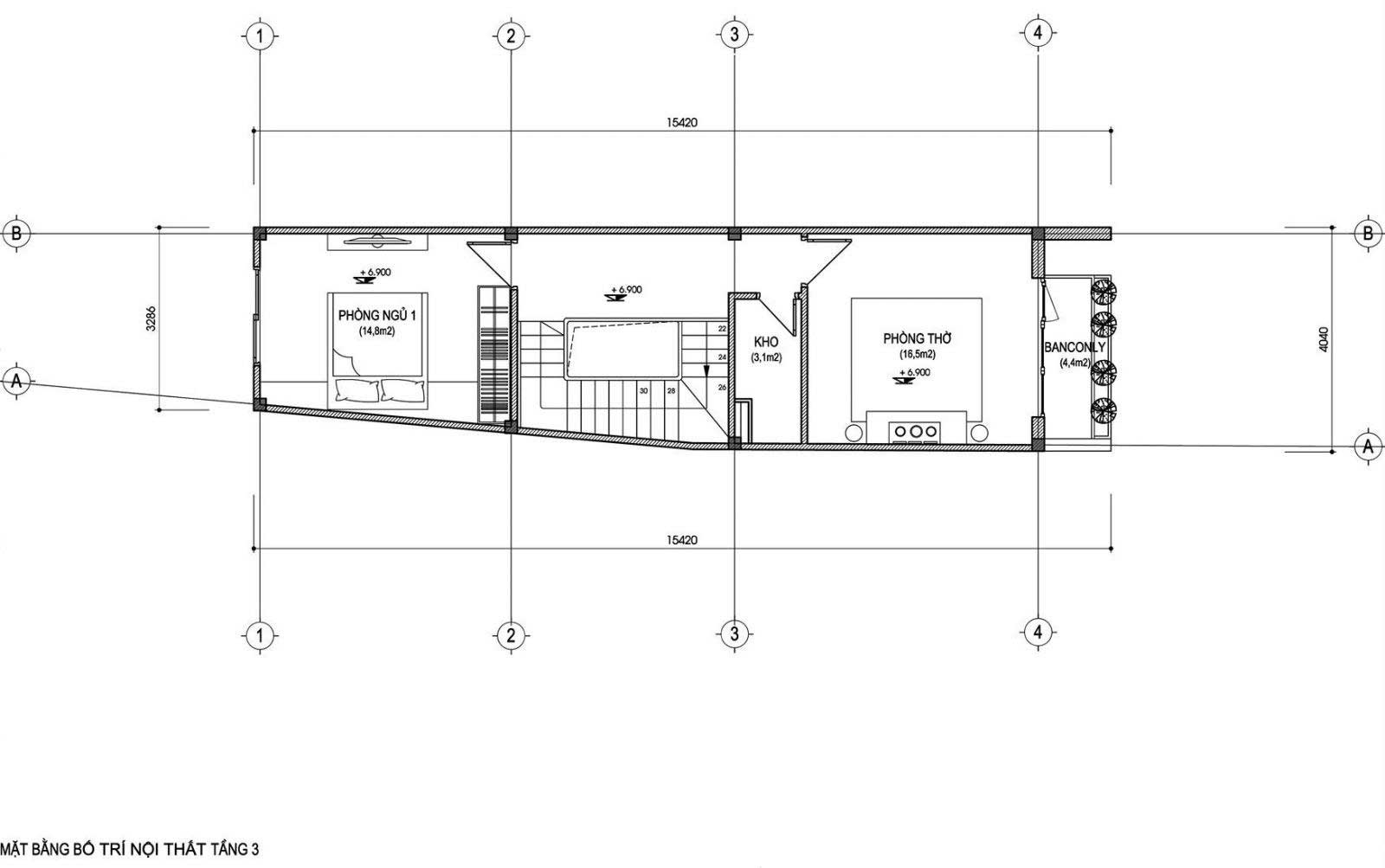
Mặt bằng công năng tầng 3
Tầng 3 thiết kế 1 phòng ngủ và 1 phòng thờ, phòng thờ được ưu tiên thiết kế hướng chính hướng ra ban công, tiếp giáp phòng thờ là một kho nhỏ, tận đụng để chứa đồ. Bên kia cầu thang là không gian phòng ngủ của con.
Về cơ bản mẫu thiết kế nhà đã được kiến trúc sư xử lý hoàn thiện và khoa học, công năng sử dụng được thiết kế tối ưu, thoải mái và rộng rãi. Kiến trúc mặt tiền ấn tượng và có nhiều điểm nhấn.
Xem thêm:
































