Chi phí xây nhà 3 tầng 5x12m hết bao nhiêu tiền? Là những vấn đề thắc mắc được nhiều gia chủ quan tâm khi có ý định xây dựng ngôi nhà mơ ước trên mảnh đất 60m2 (5x12m) của gia đình. Nếu các bạn cũng đang thắc mắc những vấn đề trên khi xây dựng nhà 3 tầng diện tích 5x12m thì hãy theo dõi những chia sẻ dưới đây của chúng tôi để được giải đáp nhé.
Nên xây nhà 3 tầng diện tích 5x12m theo lối kiến trúc nào thì phù hợp?
Việc lựa chọn phong cách thiết kế kiến trúc như thế nào ảnh hưởng rất lớn đến chi phí xây dựng công trình. Vì thế gia chủ nên cân nhắc lựa chọn mẫu nhà phù hợp với sở thích và điều kiện kinh tế của gia đình mình.

(Nguồn ảnh: https://thietkenhadepmoi.com/)
Theo như kinh nghiệm của chúng tôi qua nhiều năm làm việc trong lĩnh vực xây dựng thì nếu các bạn muốn tiết kiệm chi phí thì nên xây nhà 3 tầng diện tích 5x12m theo lối kiến trúc hiện đại. Bởi mẫu nhà này thiên về sự đơn giản hoá các chi tiết nên sẽ có mức chi phí thấp hơn các kiểu nhà khác.
Ngược lại nếu mảnh đất của bạn có không gian thoáng đãng, không tiếp xúc với các công trình bên cạnh thì bạn có thể lựa chọn thiết kế theo phong cách tân cổ điển để thể hiện sự sang trọng và tinh tế. Mặc dù chi phí sẽ cao hơn khi xây dựng theo kiểu hiện đại nhưng vẫn thấp hơn so với việc xây dựng nhà 3 tầng theo phong cách cổ điển.
Nói chung tuỳ vào sở thích, nhu cầu và điều kiện kinh tế của mình mà bạn hãy lựa chọn phong cách thiết kế phù hợp. Chúng tôi chỉ có thể đưa ra lời khuyên cách xây dựng nào là tối ưu chi phí nhất, còn lựa chọn xây theo phong cách nào là phụ thuộc vào bạn, vào kinh phí mà bạn đang có. Về vấn đề này, bạn có thể tìm đến các công ty thiết kế xây dựng uy tín để được tư vấn xây dựng mẫu nhà vừa đẹp vừa tiết kiệm chi phí.
Xây nhà 3 tầng diện tích 5x12m hết bao nhiêu tiền?

Để tính toán được chi phí xây nhà 3 tầng diện tích 5x12m hết bao nhiêu tiền, bạn có thể áp dụng công thức đơn giản sau:
=> Chi phí xây dựng = Tổng diện tích xây dựng x đơn giá thi công/m2
Mẫu công thức này được áp dụng để tính toán chi phí xây dựng của các công trình nhà ở nói chung và chi phí xây nhà 3 tầng diện tích 5x12m nói riêng.
Trong đó:
+ Tổng diện tích xây dựng là tổng diện tích sàn cần thi công bao gồm móng, tầng trệt, lầu, mái, sân vườn, hầm để xe…
Mỗi hạng mục sẽ có công thức áp dụng riêng, cụ thể:
- Móng sẽ được tính từ 50 – 100% diện tích sàn xây dựng tuỳ vào loại móng là đơn, móng băng một phương hay móng băng hai phương.
- Tầng trệt: 100% diện tích sàn xây dựng
- Các tầng lầu: 100% diện tích sàn x số lầu cần xây dựng
- Mái sẽ được tính từ 30-70% diện tích sàn xây dựng, tuỳ vào loại mái thi công là gì? Mái tôn thì 30% diện tích sàn, mái bằng thì 50% diện tích sàn còn mái ngói thì tính là 70% diện tích sàn xây dựng.
- Hầm từ 150-250% diện tích sàn xây dựng
- Sân được tính là 50% diện tích sàn xây dựng
Sau khi tính toán được diện tích của từng hạng mục xây dựng, các bạn hãy tính tổng diện tích các hạng mục trên để có được con số chính xác nhất về diện tích tổng cần xây dựng là bao nhiêu.
+ Đơn giá thi công trên mét vuông
Để có được đơn giá này, bạn hãy liên hệ với các công ty xây dựng uy tín để được báo giá cụ thể dựa trên diện tích xây dựng, phong cách kiến trúc, vị trí xây dựng…của dự án nhà ở của bạn. Bạn có thể tham khảo qua đơn giá xây dựng trung bình trên mét vuông được chúng tôi cập nhật mới nhất hiện nay.
- Đơn giá xây dựng nhà phần thô: từ 3,2 – 4 triệu/m2
- Đơn giá trọn gói: từ 5 – 6,5 triệu/m2 đối với nhà ở thường và 6,5 – 10 triệu/m2 đối với nhà biệt thự
+ Sau khi đã xác định được tổng diện tích cần xây dựng và đơn giá thi công trung bình trên một mét vuông thì bạn có thể áp dụng vào công thức trên để tính toán chi phí xây nhà 3 tầng diện tích 5x12m cho căn nhà của mình là hết bao nhiêu tiền.

Nhà Phố 3 Tầng 5x12m Cùng Vườn Sân Thượng Đẹp Hút Mắt
Nhà phố 3 tầng 5x12m sân thượng đẹp – Sở hữu ngôi nhà phố có sân thượng đẹp sẽ mang đến cho bạn một cuộc sống trọn vẹn hơn. Căn nhà phố 3 tầng hiện đại 5x12m đẹp hút mắt tại Quận 2 này là tổ ấm của gia đình 4 thành viên. Được xây dựng trong thời gian 4 tháng với phong cách thiết kế mở, hiện đại cùng phong thái sang trọng.

Các tiêu chí trong thiết kế của ngôi nhà phố 3 tầng
Chủ nhà mong muốn có một không gian thoáng đãng, tận dụng ánh sáng và gió tự nhiên. Tránh phụ thuộc vào các thiết bị sử dụng điện năng. Có thể dựa vào các yếu tố tự nhiên để điểu chỉnh nhiệt độ và sáng trong nhà.
- Không gian sinh hoạt hướng nội, đơn giản, tạo sự mộc mạc tinh tế cho căn nhà.
- Đảm bảo sự riêng tư trong sinh hoạt của mọi người, mang đến tinh thần thẩm mỹ của chủ nhà.
- Có một khoảng không gian xanh để gia đình nghỉ ngơi thư giãn.

Mặt tiền mẫu thiết kế nhà phố 3 tầng 5x12m đẹp
Mẫu thiết kế nhà 3 tầng là kiến trúc nhà phố khá thịnh hành ở các đô thị hiện nay. Dựa vào hình thái trẻ trung, sang trọng phù hợp với mỹ quan chung được rất nhiều người ưa chuộng.

Căn nhà phố 3 tầng sân thượng này cũng được thiết kế theo phong cách hiện đại, sử dụng hình khối vuông vắn với tông màu trắng chủ đạo thể hiện sự khỏe khoắn. Bạn có thể nhìn thấy lan can bằng vật liệu kính và gỗ trang trí khá bắt mắt, tạo sự rộng thoáng cho mặt tiền. Việc sử dụng hệ thống cửa bằng kính giúp căn nhà phố luôn có sự thông thoáng trong không gian rộng mở.

Gia đình gồm có 4 thành viên, vì vậy gia chủ muốn có một không gian sống vừa thoải mái lại vừa có sự riêng tư nhất định trong sinh hoạt hàng ngày cho mọi người. Từ đó các KTS đã đưa ra phương án thiết kế và mặt bằng như sau:

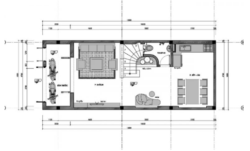
Tầng 1: Với không gian nhỏ phía trước làm khu vực để xe cho gia đình, tiếp đến là phòng khách, khu vực sinh hoạt chung của gia đình với tiểu cảnh, cuối là cùng bếp và nhà vệ sinh chung.

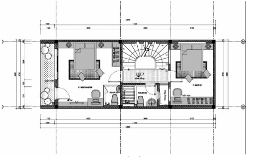
Tầng 2 gồm: Hai phòng ngủ dành cho bố mẹ với phòng vệ sinh riêng, bên cạnh là phòng ngủ của bé, một vệ sinh chung đặt ở gần không gian thông tầng.

Tầng 3: Là không gian phòng thờ, sân phơi, phòng ngủ cho bé và cuối cùng là khu vườn sân thượng rộng được bố trí ngay tại sân trước.

Không gian nội thất ngôi nhà phố 3 tầng 5x12m
Phòng khách hiện đại sử dụng gam màu đen trắng tương phản giữa nội thất và không gian căn phòng, tạo sự rộng rãi mang đến cảm giác chào đón thân thiện. Sắc trắng cũng là một trong những màu sang trọng có thể đáp ứng được yêu cầu khó tính nhất của bất kỳ chủ nhà nào.


Điểm nổi bật của không gian này là mảng tường được trang trí hoa văn tinh tế phía sau, cùng bộ sofa bằng da to rộng, thể hiện sự bề thế và sang trọng của căn phòng.

Căn nhà phố 5x12m sân thượng này được thiết kế theo lối kiến trúc cao cấp, cách bố trí được KTS xử lý khéo léo hợp với phong thủy. Các không gian sinh hoạt đáp ứng được nhu cầu của gia đình, đông thời thể hiện sự liên kết thông qua các chi tiết nội thất, màu sắc và vật dụng trong nhà.

Chủ nhà là người yêu thích thiên nhiên, vì vậy bạn có thể nhận thấy tinh thần này thể hiện ở toàn bộ không gian nhà. Vườn cảnh được bố trí ở phía trước, bên hông nhà, dưới chân cầu thanh, ban công tầng hai và đặc biệt là một khu vườn khá rộng ngay tại sân thượng.

Chủ nhà đã rất đầu tư cho khu vườn cùng rất nhiều loại cây được trồng trên tầng thượng, kết hợp hồ cá nhỏ, giàn cây leo rất sai quả. Khu vườn này vừa có thể làm nơi thưởng trà ngắm cảnh cho gia đình vào những ngày nghỉ, vừa cung cấp nguồn rau sạch cho cả nhà cùng nhiều loại cây ăn trái và rau củ.

Một không gian xanh tạo cho ngôi nhà không bị nhàm chán giữa đô thị tấp nập, với lối tư duy thiết kế và cách bố trí sáng tạo thông minh như vậy đã đáp ứng được yêu cầu từ chủ nhà. Tạo ra một ngôi nhà phố 3 tầng với không gian sân thượng mang vẻ đẹp cuốn hút bất kỳ ai.
Hỗ trợ tìm kiếm đơn vị thiết kế, xây dựng công trình nhà ở uy tín nhất hiện nay
Nếu bạn đã chán ngán cảnh phải tự đi tìm từng đơn vị nhà thầu để xin báo giá mà vẫn không đủ cơ sở để biết được đâu là công ty xây dựng uy tín thì việc tham gia vào sàn đấu thầu Xây Dựng Số là giải pháp tối ưu nhất dành cho những ai đang có ý định xây dựng các công trình kiến trúc nói chung hay những gia chủ có ý định xây nhà 3 tầng diện tích 5x12m nói riêng nhưng chưa tìm được nhà thầu xây dựng phù hợp.
Khi đăng thông tin dự án của mình lên sàn giao dịch thương mại điện tử Xây Dựng Số, bạn sẽ tự động nhận được các báo giá miễn phí cùng toàn bộ hồ sơ năng lực từ các nhà thầu, công ty xây dựng uy tín trên khắp cả nước đã qua quá trình chọn lọc của chúng tôi.
Đồng thời những công ty, đơn vị thầu có đủ năng lực sẽ chủ động liên hệ lại với bạn để tư vấn và đưa ra các giải pháp kết cấu tối ưu, giúp bạn có thể xây dựng công trình của mình với khoản chi phí tiết kiệm nhất.
Các bạn có thể xem xét hồ sơ năng lực dựa trên một vài công trình mà họ đã thiết kế thi công để có thể lựa chọn nhà thầu phù hợp nhất. Việc đăng tìm nhà thầu trên sàn Xây Dựng Số là hoàn toàn miễn phí và chỉ qua vài click chuột nên thay vì tự tìm kiếm thông qua người quen hoặc trên mạng thì sàn Xây Dựng Số là sự lựa chọn tối ưu cả về mặt thời gian lẫn chi phí để có thể giúp bạn tìm ra được nhà thầu xây nhà 3 tầng diện tích 5x12m phù hợp nhất.
Xem thêm:













![[Tư vấn] Chỉ với kinh phí 800 triệu có đủ xây nhà 3 tầng](/img.php?url=https%3A%2F%2Fxaydungso.vn%2F%2Fimg%2Fposts%2Fnha-3-tang-800-trieu0-200x160-2.jpg)




















