Mẫu nhà 2 tầng diện tích 5x15m đang rất được ưa chuộng

Với mẫu thiết kế này chúng tôi đã lựa chọn màu sơn chủ đạo là màu trắng tinh khôi, nhẹ nhàng kết hợp với màu xám hài hòa đã tạo nên một vẻ đẹp thanh nhã mà sang trọng. Mỗi bộ phận sẽ đảm nhiệm một công năng riêng. Chúng ta cùng đi khám phá từng bộ phận của mẫu nhà 2 tầng diện tích 5x15m này

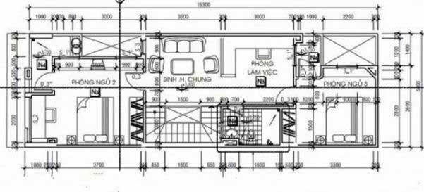
Ở mặt bằng tầng 1 gồm có: Phòng khách, phòng bếp, phòng ăn, phòng ngủ và khu nhà vệ sinh chung. Phòng khách có thể nói là nơi trang hoàng nhất nên chúng tôi đã thiết kế ở đây là một bộ sô pha màu nâu được bố trí sát tường tạo cho căn phòng có một không gian rộng, thoáng đãng. Phòng khách được thiết kế liền kề với phòng bếp, tạo nên sự thuận lợi rất lớn trong quá trình sinh hoạt của cả gia đình.
Khu vực nhà vệ sinh chung được bố trí gần nhà bếp rất thuận lợi. Phòng ngủ được thiết kế cuối cùng tạo nên sự yên tĩnh cho thành viên trong gia đình. Chúng tôi sẽ bố trí những chậu cây cảnh nhỏ trong nhà tạo nên sự gần gũi với thiên nhiên và đồng thời cũng mang đến tính thẩm mĩ rất cao.

Tiếp theo là mặt bằng tầng 2 bao gồm có phòng thờ, 2 phòng ngủ và khu nhà vệ sinh chung. Trên tầng 2 tạo nên một bầu không gian yên tĩnh, trang nghiêm sẽ rất phù hợp để thiết kế phòng thờ, tạo nên sự thành kính của con cháu đối với ông bà tổ tiên.

Hai phòng ngủ được thiết kế đơn giản để tạo nên sự thoải mái sau những giờ làm việc căng thẳng chúng ta có thể thả hồn vào một không gian thoáng đãng. Cửa sổ bằng kính sẽ đón được ánh nắng tự nhiên tránh sự ngột ngạt bí bách. Khu nhà vệ sinh chung được bày trí sạch sẽ, gọn gàng, đầy đủ tiện nghi.

Tiếp đến chúng ta cùng tìm hiểu đôi nét về thiết kế trang trí nội thất đối với mẫu nhà 2 tầng diện tích 5x15m. Bên trong phòng khách chúng ta sẽ thấy nổi bật nhất là bộ ghế sô pha màu nâu xám, trên tường sẽ treo nhiều bức tranh phong cảnh tạo nên sự sang trọng cho ngôi nhà. Trên trần nhà có cây đèn chùm và đèn trang trí tạo nên sự lung linh cho phòng khách.

Không gian phòng bếp với bộ bàn ăn 6 ghế ngồi màu xám mang phong cách hiện đại. Trong phòng ngủ sẽ có giường, tủ quần áo, bàn trang điểm…bằng gỗ mang đến sự chắc chắn bền lâu.
Cách tính chi phí xây nhà 2 tầng 5x15m
Về cách tính chi phí mẫu nhà 2 tầng 5x15m rất đơn giản. Đầu tiên, trước khi tính chi phí các bạn nên chú ý hệ thống bản vẽ thiết kế. Tại sao lại vậy? Vì bản vẽ thiết kế nhà 2 tầng với diện tích 5x15m sẽ bao gồm tất cả hình ảnh về phối cảnh nội ngoại thất, mặt đứng, mặt cắt cùng với rất nhiều thông số xây dựng cụ thể góp phần cung cấp những thông tin cụ thể, chi tiết nhất để chủ đầu tư và đơn vị thi công hiểu rõ công trình của mình.

Để từ đó đưa ra được con số dự toán chi phí cho công trình sao cho hợp lý nhất, từ đó thông báo cho chủ đầu tư biết được rằng chi phí xây nhà 2 tầng 5x15m hết bao nhiêu tiền để họ có sự chuẩn bị kỹ lưỡng hơn về tài chính, giúp cho quá trình xây dựng được diễn ra suôn sẻ hơn.
Mỗi chúng ta đều hiểu để tính được chi phí mẫu nhà 2 tầng 5x15m sẽ phụ thuộc vào nhiều yếu tố tổng thể m2, giá nhân công, tiền nguyên vật liệu… Chúng tôi xin đưa ra công thức mà bạn có thể tham khảo để phần nào dự trù được kinh phí cụ thể.
Đối với công thức chung để tính diện tích xây dựng 1 nhà như sau:
- Trệt ( bao gồm sàn trệt và móng ) tính hệ số 150% giá
- Lầu 1 tính hệ số 100% giá
- Sân thượng, mái tính hệ số ở đây 50% giá
- Riêng về mái nhà: tính 30% nếu mái tôn; 50% nếu mái ngói hệ vì kèo và 70%-100% nếu mái ngói đổ bê tông.
Như vậy để xây dựng 1 nhà 2 tầng với diện tích xây dựng 1 sàn 75m2 ( 2 tầng ) ta tạm tính tổng diện tích xây dựng như sau: Trệt: 75×1,5 + lầu 1: 75×1 + mái: 75×0,5 = 225m2
Đối với nhà ở hiện nay sẽ được tính vật tư như sau:
- Vật tư trung bình: 5.000.000 đồng/m2
- Vật tư khá : 5.500.000 đồng/m2
- Vật tư tốt: 6.000.000 đồng/m2
Như vậy nếu áp dụng công thức trên: 225m2 x nhà 2 tầng dao động 5 – 6 tr lấy 5,5 tr = 225× 5,5 =1.237.500.000 vnđ.
Như vậy là các bạn hoàn toàn có thể tự tính kinh phí dự trù khi xây dựng nhà 2 tầng 5x15m rồi đúng không nào? Nhưng lưu ý nhỏ đây chỉ là đơn giá giá dành cho nhà ở thường phổ biến hiện nay mang tính tham khảo. Tùy thuộc vào công trình thực tế, diện tích xây dựng, vị trí địa lý, vật liệu hoàn thiện….. sẽ có những giá khác nhau. Vì vậy sau khi có bản vẽ thiết kế chi tiết, khảo sát tổng thể mới tính tiền được giá thành cụ thể trên từng ngôi nhà nhất định.
Những lưu ý khi xây nhà 2 tầng 5x15m

Việc làm đầu tiên bạn cần lưu ý khi xây nhà 2 tầng diện tích 5x15m là cần lên ngân sách dự kiến cho toàn bộ công trình. Gia chủ cần ước lượng xem phần thô của ngôi nhà hết bao nhiêu? Phần hoàn thiện ngôi nhà hết bao nhiêu? Và một số chi phí phát sinh chẳng hạn như chúng ta thi công ngôi nhà vào mùa mưa hoặc quá nắng thì tiến độ công trình sẽ chậm lại kéo theo đó là chi phí phát sinh về ăn ở, vật liệu để lâu ngoài trời có thể bị hỏng hóc.
Tiếp theo là việc lựa chọn nhà thầu. Đây cũng là khâu rất quan trọng. Bạn phải tham khảo thật kĩ lưỡng, trước khi thi công bạn cần làm hợp đồng rõ ràng với nhà thầu về giá cả cũng như thời gian thi công đến khi hoàn thiện là bao nhiêu lâu.
Trong quá trình thi công bạn nên chọn một người thân tín có kinh nghiệm về xây dựng để đảm nhiệm công việc giám sát thi công nhằm quản lí nguyên vật liệu tránh thất thoát, tránh trường hợp thợ làm sai so với bản thiết kế.
Việc lựa chọn nội thất bạn cũng nên chọn những đồ có kích thước vừa phải màu sắc nhẹ nhàng, để tạo nên một không gian rộng rãi, thông thoáng cho ngôi nhà. Trên đây là những chia sẻ của chúng tôi về xây nhà 2 tầng diện tích 5x15m. Hi vọng sẽ mang thêm một sự lựa chọn cho quý khách!
Cách tìm nhà thầu xây dựng uy tín chất lượng

Vì vậy việc tìm một địa chỉ uy tín để gửi gắm niềm tin là một điều vô cùng quan trọng. Sứ mệnh của xaydungso.vn là SỐ HÓA NGÀNH XÂY DỰNG. Với khao khát được mang trí tuệ đóng góp và phục vụ sự phát triển của cộng đồng Xây dựng. . Xaydungso.vn và đội ngũ phát triển hệ thống rất mong được sự cổ vũ, động viên của cộng đồng xây dựng. Hãy đến với xaydungso.vn để trải nghiệm rất hân hạnh được đồng hành cùng các bạn trên con đường xây dựng tổ ấm như mơ ước.

































