Bản vẽ biệt thự vườn 1 tầng mái thái là từ khóa đang rất hot trong thời gian gần đây. Bởi lẽ, chi phí không quá cao, giá cả phải chăng, phù hợp với những khu đất rộng với địa thế đẹp, chi phí không quá 1 tỷ. Như vậy bạn đã có thể sở hữu một ngôi biệt thự nhà vườn 1 tầng mái thái hiện đại đẹp.
*Thông tin dự án:
- Chủ đầu tư xây dựng ngôi nhà này là anh Nguyễn Lâm Hùng, trú quán tại Trảng Bàng, Tây Ninh, anh mong muốn xây dựng một biệt thự vườn một tầng mái thái theo phong cách Á Đông.
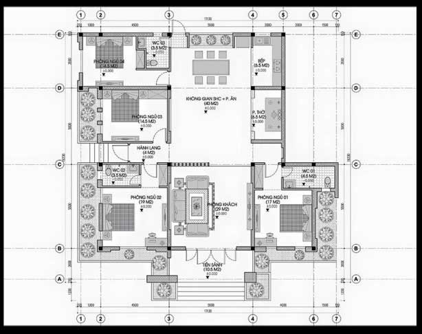
- Diện tích lô đất là 704m2, diện tích thiết kế và xây dựng là 263m2 với đầy đủ các công năng như sau: phòng khách, phòng ăn, phòng bếp, wc chung, 4 phòng bếp, phòng thờ.
Xu hướng bản vẽ thiết kế biệt thự vườn 1 tầng mái thái
Biệt thự nhà vườn tại sao lại gọi là xu hướng mới trong thời buổi hiện đại ngày nay? Bởi lẽ, càng ngày, cuộc sống của con người đang ngày càng phát triển mạnh mẽ, ngoài việc có 1 cuộc sống đầy đủ, sung túc, con người ta cũng hướng đến những giá trị tinh thần cao hơn. Đó là những nơi nghỉ dưỡng cao cấp cung cấp đầy đủ các dịch vụ. Và còn gì thú vị hơn khi mình chính là chủ nhân của ngôi biệt thự nhà vườn 1 tầng nào đó.

Chỉ cần một diện tích rộng tương đối, nằm ở ngoại ô, xa trung tâm thành phố. Có khí hậu trong lành, mát mẻ, rợp bóng cây xanh, cũng có thể là ven hồ, giáp đồi núi. Nơi mà thiên nhiên chiếm lĩnh, giúp chủ nhân quên đi cái xô bồ, ồn ào, tấp nập nơi thị thành. Vị thế đẹp như vậy thì việc xây dựng một ngôi biệt thự nhà vườn 1 tầng mái thái là một phương án hoàn hảo.

Biệt thự vườn là cách gọi nôm na của người Việt mình, thường thì các mẫu biệt thự nhà vườn mái thái phải có cảnh quan sân vườn, cây cảnh… bên cạnh đó thì mật độ xây dựng thấp và thiên về tính chất nghỉ dưỡng thì mới tạm được gọi là biệt thự vườn.

Tại các thành phố lớn việc xây dựng biệt thự vườn sẽ trở nên khó khăn hơn khi mà giá đất quá cao. Và hôm nay, chúng tôi xin gửi tới các bạn một mẫu thiết kế biệt thự nhà vườn 1 tầng mái thái kiểu dáng hiện đại.

Mẫu biệt thự nhà vườn 1 tầng này có điểm nhấn khá đặc biệt với cửa chính của căn nhà lệch so với trục chính của căn nhà. Theo suy đoán chủ quan của chúng tôi thì đây là hướng mà gia chủ mong muốn. Khi bước chân vào căn nhà này các bạn sẽ rất ấn tượng với kiểu dáng độc đáo của mẫu thiết kế nhà này.

Với thiết kế cả căn biệt thự được thiết kế với 4 phòng ngủ, 1 phòng khách, 1 phòng bếp và phòng ăn. Tất cả được thiết kế khoa học, theo hướng hiện đại, với phong cách Á Đông. Từng không gian trong ngôi nhà mang lại một cảm giác sang trọng tuyệt đối.

Điều quan trọng đó là sự kết hợp với vườn cây, tại sao người ta lại nói là biệt thự vườn, cũng bởi vườn sẽ đóng một vai trò quan trọng trong không gian bày trí ngôi nhà. Đó là sự sắp xếp cây xanh mát trong khu vườn, những khu trồng hoa tươi mát, cây ăn quả đủ màu sắc,...ngoài ra còn có thể kết hợp với không gian hòn non bộ tạo tiếng suối chảy róc rách, bộ bàn ghế để ngoài vườn thưởng trà ngắm cảnh. Tất cả tạo nên một ngôi biệt thự nhà vườn vô cùng sang trọng và đẳng cấp.

Với nhiều năm trong lĩnh vực thiết kế, thi công trọn gói nhà, chúng tôi sẽ không ngừng cố gắng để mang đến những sản phẩm tốt nhất. Nếu bạn cần vẽ biệt thự nhà vườn 1 tầng mái thái hiện đại đẹp, đừng quên hãy gọi cho chúng tôi để nhận được sự tư vấn tốt nhất nhé.
Nguồn tin: https://maunhadepmoi.com/
Xem thêm tin:
- Mẫu biệt thự nhà vườn 1 tầng hiện đại chỉ với 500 triệu
- Mẫu biệt thự vườn 1 tầng mái ngói đẹp chỉ với 900 triệu
- Mẫu nhà biệt thự vườn 1 tầng đẹp trên diện tích 10x14m


































