Bản vẽ mẫu thiết kế nhà 1 tầng đẹp 2024 diện tích 8.5×24 mét. Hiện nay thì nhu cầu về thi công – xây dựng nhà ở cấp 4 nông thôn nhiều hơn so với những mẫu nhà 2 tầng – 3 tầng. Đơn giản vì chi phí thiết kế nhà nhỏ cấp 4 không quá cao, cấu tạo cũng đơn giản, thời gian hoàn thành nhanh hơn.
Để tiết kiệm được chi phí xây dựng và có nhiều ý tưởng hơn dự định sắp tới, hôm nay chúng tôi sẽ gửi cho mọi người thông tin chi tiết về bản vẽ phối cảnh và cấu tạo của căn nhà 1 tầng này, hy vọng rằng nó sẽ là tư liệu hữu ích dành cho bạn.
Phối cảnh bản vẽ mẫu nhà cấp 4 1 tầng đẹp ở nông thôn

Theo chúng tôi tìm hiểu thì căn nhà 1 tầng này được xây dựng trên lô đất rộng, kiến trúc được thiết kế theo mẫu bản vẽ hoàn hảo, những chức năng phòng được chia ra theo từng khu vực. Ngoài ra phía ngoài nhà có khoảng sân rộng để thuận tiện trong việc bố trí khu vườn, cây xanh…
Thiết kế nhà cấp 4 đẹp này rất phù hợp với những gia đình muốn sinh sống ở vùng Nông Thôn, nơi đây thuận tiện trong việc bố trí không gian, nhờ vào kiến trúc này bạn sẽ có được những thôn tin đang cần.

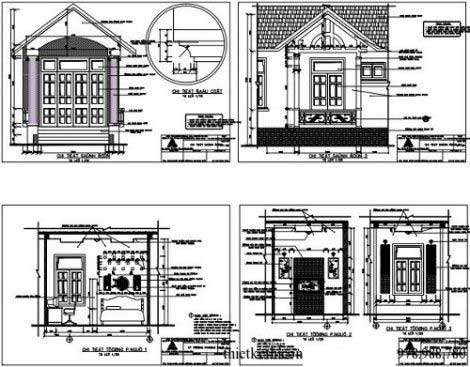
Mặt bên nhà 1 tầng nông thôn

Mặt cắt A-A của nhà 1 tầng đẹp

Mặt cắt chi tiết của sảnh nhà

Kiến trúc mặt trước
♣ Mặt tiền ( cửa đi chính)

Mặt bằng trần nhà 1 tầng

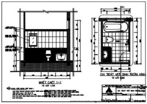
Mặt cắt chi tiết của nhà vệ sinh

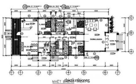
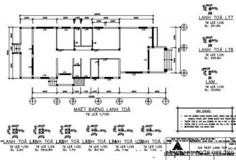
Mặt bằng tầng trệt

Mặt bằng lát gạch

Chi tiết cửa nhà 1 tầng
♣ Bản vẽ phần cấp thoát và điện nước nhà:

Bản vẽ phần cấp thoát và điện nước nhà

Bản vẽ phần cấp thoát và điện nước nhà

Bản vẽ phần cấp thoát và điện nước nhà

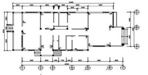
Mặt bằng thoát nước
♣ Bản vẽ kết cấu của nhà 1 tầng:

Bản vẽ mặt bằng móng

Bản vẽ mặt bằng dầm

Bản vẽ mặt bằng móng

Bản vẽ mặt bằng bố trí thép

Bản vẽ mặt cắt móng

Bản vẽ kết cấu của nhà 1 tầng

Bản vẽ chi tiết dầm

Bản vẽ kết cấu thiết kế nhà 1 tầng đẹp

Bản vẽ kết cấu của nhà 1 tầng
Với bản vẽ mẫu thiết kế nhà 1 tầng đẹp được thi công – xây dựng với vi trí đắc địa, nhằm tiết kiệm được chi phí thấp nhất, bạn có thể lựa chọn được cho mình theo kiến trúc nhà cấp 4 ở nông thôn, nhà vườn, kiểu nhà mái thái, mái tôn đơn giản…tùy theo sở thích của mỗi người.




















