Khi gia chủ đang có ý định lựa chọn mẫu biệt thự 4 tầng 8x16m cho công trình tương lai của mình mà vẫn chưa biết phải lựa chọn như thế nào, hãy theo dõi bài viết dưới đây của để tìm mẫu biệt thự 4 tầng 8x16m phù hợp với mục đích, sở thích của từng gia chủ.
Mặt bằng dành cho mẫu biệt thự 4 tầng 8x16m được bố trí như thế nào?

Bố trí mặt bằng tầng 1 của mẫu biệt thự 4 tầng 8x16m bao gồm không gian: Gara ô tô, phòng khách, bếp + bàn ăn, nhà vệ sinh.
Một không gian sân trước với tiểu cảnh cây xanh được bố trí trước khi tiến vào không gian sinh hoạt bên trong nhà vừa tránh được bụi lại có khoảng sân đủ để trẻ con vui chơi. Không gian sinh hoạt bên trong nhà bắt đầu từ cửa chính 4 cánh cỡ lớn tiến vào không gian phòng khách. Từ vị trí phòng khách nối thông ra với khu vực bàn ăn cùng không gian bếp của gia đình. Giữa hai khoảng không gian phòng khách và bàn ăn cùng không gian bếp được thiết kế giếng trời cùng tiểu cảnh cây xanh giúp mang đến ánh sáng, điều hòa không khí bên trong không gian tầng 1. Gara ôtô được bố trí cạnh với phòng khách, có lối đi vào không gian sinh hoạt bên trong. Nhà vệ sinh ở mặt bằng tầng 1 được bố trí cuối nhà, tách biệt với không gian sinh hoạt bên trong và được bố trí cùng với giếng trời phía sau nhà.

Không gian mặt bằng tầng 2 của mẫu biệt thự 4 tầng 8x16m bao gồm: 3 phòng ngủ, 1 phòng sinh hoạt chung, 1 nhà vệ sinh và một ban công rộng ở phía mặt tiền của công trình.

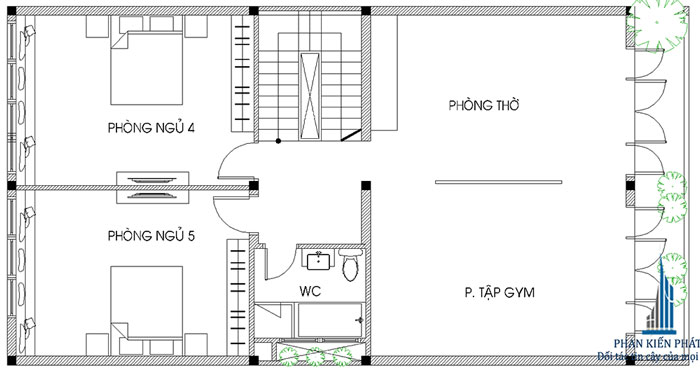
Mặt bằng không gian tầng 3 bao gồm: Phòng thờ, phòng tập gym, 2 phòng ngủ và nhà vệ sinh. Không gian ban công tại tầng 3 được thu gọn lại để diện tích cho không gian sinh hoạt bên tron của mẫu biệt thự 4 tầng 8x16m.

Mặt bằng không gian tầng 4 bao gồm không gian: phòng ngủ, nhà vệ sinh, sân phơi, kho và sân thượng. Tại diện tích sân thượng của của mẫu biệt thự 4 tầng 8x16m này được kiến trúc sư chăm chút từng góc một khi thêm tiểu cảnh cây xanh để tạo nên không gian tràn ngập thiên nhiên, tạo nên không gian thông thoáng cho gia chủ - không gian này được rất nhiều gia chủ xây công trình tại thành phố ưa thích. Với không gian như thế này thường bố trí thêm bàn trà, bàn ăn dài để gia chủ tụ tập bạn bè, người thân vào dịp cuối tuần, hay dịp quan trọng để cùng nhau ăn bữa cơm với không khí vui vẻ, hạnh phúc.
Nội thất nào dành cho không gian dành cho mẫu biệt thự 4 tầng 8x16m

Nội thất dành cho không gian phòng khách của mẫu biệt thự 4 tầng 8x16m áp dụng phong cách kiến trúc hiện đại được gợi ý cho gia chủ tham khảo như sau: Tone màu trắng được sử dụng để tạo nên sự trang nhã, hiện đại. Màu trắng ấy rất dễ phối kết hợp với màu sắc, ví dụ trong bài kết hợp với màu nâu để làm nên một không gian với sắc thái sang trọng. Bộ bàn ghế sofa bọc vải nhung cùng với chiếc bàn gỗ đều màu nâu gây ấn tượng cho bất cứ ai khi tiến vào không gian này. Một tấm thảm đen đặt ngay bên dưới bộ sofa cũng góp phần lớn, nhấn mạnh chiều sâu của không gian.
Không gian phía sau sofa là bức tranh đen trắng ấn tượng, trần thạch cao giật cấp cùng với đèn pha lê, hay chiếc đèn đứng là điểm nhỏ xinh nhưng giúp hoàn thiện không gian phòng khách để tiếp đón vị khách đến chơi nhà.

Không gian bếp ăn trong mẫu biệt thự 4 tầng 8x16m mang đến cảm nhận sự sang trọng, tính hiện đại. Nội thất được làm từ nguyên vật liệu gỗ ép công nghiệp với độ bền cao giúp cho người sở hữu căn bếp này cảm thấy hài lòng và có thể nấu ra những món ăn ngon cho các thành viên trong gia đình cùng thưởng thức.

Không gian phòng ngủ gợi ý trong mẫu biệt thự 4 tầng 8x16m lựa chọn nội thất đơn giản với chiếc giường theo phong cách Nhật Bản kết hợp với tủ kệ đầu giường, tủ quần áo và bàn trang điểm. Kích thước của đồ nội thất trong không gian ngủ này rất nhỏ gọn nhưng có công dụng đáp ứng mọi nhu cầu của thành viên sở hữu không gian. Tạo thêm điểm nhấn, kiến trúc sư sử dụng tường được dán giấy trang trí, tấm thảm.
Đừng bỏ qua phối cảnh mặt tiền của mẫu biệt thự 4 tầng 8x16m để hoàn thiện công trình

Phối cảnh mặt tiền mẫu biệt thự 4 tầng 8x16m gợi ý cho gia chủ tham khảo cho công trình tương lai của mình sử dụng phong cách kiến trúc tân cổ điển. Tân cổ điển là sự kết hợp giữa hai phong cách kiến trúc: cổ điển và hiện đại vì thế nhận được rất nhiều sự chú ý của gia chủ hiện nay. Mẫu biệt thự 4 tầng 8x16m này có hệ thống cổng rào bao quanh cùng với diện tích sân trước lớn mang lại không gian để trẻ con vui đùa thoải mái. Mặt tiền các tầng được chia thành 2 phần diện tích với 1 bên là cửa dẫn ra ban công các tầng và 1 bên là hệ thống cửa sổ với phần chậu hoa đi theo. Hệ thống cột trụ vững chắc với lan can ban công sơn mạn vàng với hoa văn tinh tế, đậm chất cổ điển.

Nét hiện đại song hành cùng với đường nét cổ điển, lấy ví dụ như cột trụ đã được tiết chế lại hoa văn cầu kỳ, hay chậu cây theo cửa sổ của mẫu biệt thự 4 tầng 8x16m có thiết kế đơn giản, không có họa tiết kèm theo. Kiến trúc mái Thái là điểm hoàn thiện cuối cùng để mang đến tổng thể mẫu biệt thự 4 tầng 8x16m hoàn hảo, mang đến kích thước lớn, đồ sộ cho gia chủ sở hữu.

Mẫu biệt thự 4 tầng 8x16m tiếp tục áp dụng phong cách kiến trúc tân cổ điển sẽ giúp công trình của gia chủ nổi bần bật giữa phối cảnh xung quanh.
Không gian này có hệ thống cồng rào và phần sân trước nhỏ hơn so với mẫu biệt thự bên trên nhưng vẫn đủ không gian để trẻ nhỏ vui đùa, cũng đủ không gian để được 1 chiếc oto của gia chủ. Phần cổng sắt có thiết kế khung vòm cùng với họa tiết hoa văn mang đến vẻ đẹp cổ điển, phần tường rào với khung viền trắng và nền ốp đá hoa cương sang trọng. Mặt tiền của không gian bên trong được chia làm hai khu vực: 1 bên là cửa chính và 1 bên là hệ thống cửa sổ hoặc hệ cửa nhỏ của không gian phòng khác của mẫu biệt thự 4 tầng 8x16m.

Với hệ cửa chính sử dụng hệ thống cột trụ vuông hoặc cột trụ tròn đế vuông, nối liền lại với nhau cùng với kiến trúc mái bên trên, ban công bằng sắt sơn đen tĩnh điện tạo nên một tổng thể cổ điển đặc trưng.
Mẫu biệt thự 4 tầng 8x16m chú ý bởi tầng thượng của ngôi nhà có kiến trúc tầng tum. Với kiến trúc tầng tum này, lan can ban công sử dụng họa tiết đặc trưng của mẫu biệt thự châu Âu thế kỷ 17 lại thêm cây hoa hồng leo mang đến cho gia chủ không gian vườn hoa mini quyến rũ. Dưới không gian ấy bàn trà nhỏ màu trắng, mỗi sáng được nhâm nhi ly trà hoa thơm mang đến cảm giác vô cùng thư thái.

Mẫu biệt thự 4 tầng 8x16m thì không thể không nhắc lối kiến trúc hiện đại. Với lối kiến trúc này hình khối được ưu tiên, vật liệu thiết kế cũng là điểm cần chú ý. Nhìn ngay vào phối cảnh mặt tiền bên trên của mẫu thiết kế này ta thấy hiện lên khối hình vuông vức, gây ấn tượng mạnh với người đối diện. Vật liệu sử dụng đa dạng từ gạch xi măng đơn thuận đến sắt dành cho lan can ban công đến hệ cửa khung nhôm kính hay cửa gỗ, phối màu sơn giả gỗ mang đến cảm nhận về sự sang trọng cho thiết kế. Không gian này có sự kết hợp thiên nhiên mang lại tổng thể hài hòa, dịu mát.

Tất cả những gì liên quan đến mẫu biệt thự 4 tầng 8x16m sẽ xuất hiện tại Xây dựng số. Nơi khách hàng gửi gắm niềm tin cho những công trình của mình. Chúng tôi tự hào là một địa chỉ uy tín nhất chuyên tư vấn thiết kế các công trình lớn nhỏ. Với mẫu thiết kế cho biệt thự 4 tầng 8x16m chúng tôi đã có rất nhiều thiết kế mới nhất và bài bản nhất.
Xây dựng số được biết đến là sàn giao dịch và thương mại điện tử liên quan đến lĩnh vực xây dựng hàng đầu tại Việt Nam. Ứng dụng công nghệ 4.0 trong việc tìm kiếm thông tin giúp gia chủ nhanh chóng có được kết quả phù hợp với yêu cầu, mục đích của chính mình.

SÀN GIAO DỊCH THƯƠNG MẠI ĐIỆN TỬ - XÂY DỰNG SỐ
Tìm nhà thầu - Tìm thiết kế theo cách mạng công nghiệp 4.0
Sứ mệnh: Mang đến cho người dân dịch vụ xây dựng uy tín, chất lượng với chi phí thấp nhất
HOTLINE: 03 94 95 68 78
Xem thêm


































