Mẫu biệt thự 4 tầng 90m2 là một trong mẫu biệt thự có được rất nhiều sự chú ý của gia chủ đang có ý định xây dựng công trình tương tự. Phối cảnh mặt tiền, bố trí mặt bằng công năng cùng với việc lựa chọn nội thất như thế nào dành cho mẫu biệt thự 4 tầng 90m2 sẽ tốn rất nhiều thời gian của gia chủ. Hiểu được vấn đề đó, bài viết xin gợi ý để gia chủ có thể tham khảo, nhanh chóng lựa chọn và tiến hành xây dựng công trình phù hợp với yêu cầu.
Mẫu biệt thự 4 tầng 90m2 có phối cảnh mặt tiền như thế nào?

Những mẫu biệt thự 4 tầng luôn là niềm khao khát của mỗi chúng ta, với lối thiết kế độc đáo những mẫu biệt thự luôn là mơ ước của những ai say mê với cái đẹp. Trong nội dung này chúng tôi sẽ giới thiệu đến các bạn những mẫu biệt thự 4 tầng 90m2 đang được ưa chuộng nhất trên thị trường hiện nay. Hãy cùng tham khảo và lưu ngay lại nếu bạn thấy phù hợp cho gia đình mình nhé. Phối cảnh mặt tiền đầu tiên được đưa ra trong bài viết mẫu biệt thự 4 tầng 90m2 đã đủ khiến gia chủ phải quyết tâm sở hữu ngay một công trình tương tự cho mình chưa?

Mẫu biệt thự 4 tầng 90m2 sử dụng lối kiến trúc cổ điển châu Âu thế kỷ 17 vô cùng xa hoa và lộng lẫy. Công trình sững sững đứng giữa phối cảnh xung quanh mà vẫn nổi bật, khiến bao ánh mắt phải dõi theo mỗi lần đi ngang qua công trình kiến trúc này. Được bao bọc xung quanh bởi hệ thống cổng rào màu trắng với cột trụ vững chắc, to lớn cùng với khung sắc sơn đen thể hiện sức mạnh vững vàng vừa mang nét cổ điển lại vừa thể hiện mạnh mẽ trong từng đường nét kiến trúc. Công trình vẫn có diện tích sân khá rộng, thoải mái đế gia chủ có thể đậu đỗ phương tiên của mình trong khu vực sân nhà, lại vừa có diện tích để trẻ nhỏ vui đùa thoải mái.
Không gian tầng 1 của mẫu biệt thự 4 tầng 90m2 gây ấn tượng cực kỳ mạnh mẽ với người đối diện khi ốp đá vàng sang trọng. Màu vàng từ đá ốp gợi liên tưởng đến khối vàng với ánh sáng lấp lánh, thu hút ánh nhìn của tất cả mọi người. Thêm họa tiết nổi bật được chế tác vô cùng cầu kỳ, tinh xảo đến những chi tiết nhỏ nhất, đậm dấu ấn cổ điển cho bất cứ người nhìn nào khi trông thấy kiến trúc này.
Tầng 2, 3 và 4 của công trình có mặt tiền tương tự với nhau với 1 bên là cửa chính dẫn ra ban công bằng sắt được uốn cong mềm mại, và 1 bên là ô cửa sổ với khung sắt gắn bên dưới tạo điểm nhấn. Cuối cùng là kiến trúc mái hình thang với ô cửa kính đi cùng – đặc trưng kiến trúc Pháp cổ điển làm nên tổng thể hoàn chỉnh, thống nhất.

Mẫu biệt thự 4 tầng 90m2 áp dụng phong cách kiến trúc hiện đại cũng là mẫu phối cảnh mặt tiền đáng lưu ý dành cho gia chủ tương lại.
Không gian vô cùng nổi bật khi màn đêm buông xuống bởi chỉ với vài đèn led vàng ở khu vực mặt tiền, nhỏ bé nhưng lại mang lại hiệu quả rất lớn tương tự với hình mẫu bên trên. Mặt tiền tầng 1 được che hoàn toàn bởi hệ thống cổng rào chắc chắn bên ngoài. Tầng 2 của căn nhà có phần ban công trải dài hết mặt tiền vì thế một bàn uống nước nhỏ để gia chủ ngồi nhìn ngắm khung cảnh phía trước, nhâm nhi ly trà vô cùng thư thái. Tương tự mặt tiền tầng 4 được bố trí rộng hơn tạo cảm giác giống như quán café trên cao nhưng chỉ phục vụ duy nhất vị khách là gia chủ của căn nhà.
Mặt tiền này nổi bật hơn khi sơn giả gỗ hay sử dụng gạch hoa văn với tác dụng là lam che nắng. Phần mái chéo được sử dụng cho mẫu biệt thự 4 tầng 90m2 cũng là điểm chốt cuối hoàn hảo cho không gian ngôi nhà.
Không gian bên trong bố trí như thế nào để sở hữu không gian hợp lý, khoa học nhất?
Vì sở hữu diện tích sàn là 90m2, lại xây dựng theo quy mô biệt thự vì thế để có thể tối đa được diện tích sử dụng không gian bên trong dành cho gia chủ đòi hỏi kiến trúc sư phải tính toán kỹ lưỡng để ra được mặt bằng đầy đủ công năng, thuận tiện di chuyển nhất. Dưới đây, bài viết cung cấp gợi ý mặt tiền tham khảo như sau:

Mặt bằng tầng 1 của mẫu biệt thự 4 tầng 90m2 được sử dụng làm gara ô tô, xe máy cho gia chủ. Không gian này còn được bố trí nhà vệ sinh nhỏ để thuận tiện cho chính bản thân gia chủ sử dụng. Với gara này, kiến trúc sư bố trí cửa sau đi ra sảnh phụ phía sau nhà giúp phần nào đó thông thoáng khí, lấy ánh sáng. Kiến trúc sư không sử dụng hết phần diện tích mà chửa ra một sân trước để trẻ nhỏ trong nhà có không gian vui đùa. Sử dụng 2 cầu thang trong cùng 1 không gian: 1 cầu thang đặt ở ví trí trước nhà dẫn lên tầng 2 nơi vị trí phòng khách của gia chủ dành cho vị khách đến chơi nhà, và 1 cầu thang đặt trong gara ô tô để bản thân gia chủ sau khi đậu đỗ xe trong nhà có thể di chuyển trực tiếp lên tầng 2 dễ dàng.

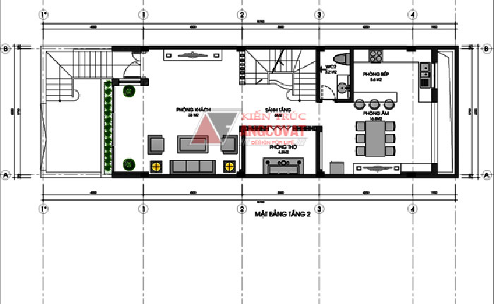
Mặt bằng tầng 2 của mẫu biệt thự 4 tầng 90m2 bao gồm không gian: Phòng khách, phòng thờ, khu vực bàn ăn cùng với không gian bếp, nhà vệ sinh.
Bố trí cụ thể không gian ấy như sau: từ vị trí cầu thang đi vào sau cánh cửa sẽ là không gian phòng khách tương đối rộng, đủ để gia chủ tiếp đón vị khách đến chơi nhà mình. Từ vị trí này đi sâu vào bên trong sẽ bắt gặp: 1 bên là khu vực cầu thang, 1 bên là phòng thờ. Đi tiếp vào bên trong là nhà vệ sinh đặt 1 góc và sau cùng là không bếp + bàn ăn khá thoáng rộng.

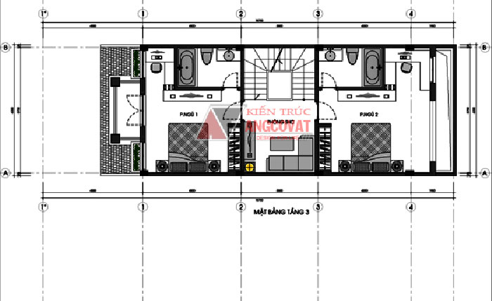
Mặt bằng tầng 3 của mẫu biệt thự 4 tầng 90m2 bao gồm: 2 phòng ngủ và một phòng sinh hoạt chung. Điểm đặc biệt trong không gian này chính là trong hai phòng ngủ đều có nhà vệ sinh bên trong tạo ra không gian riêng tư dành cho thành viên sử dụng. Một phòng ngủ có lối ra ban công tạo ra cảm giác thích thú mối sáng sớm với ánh sáng mặt trời rọi chiếu toàn bộ không gian tạo nên nguồn năng lượng tươi mới chuẩn bị cho ngày làm việc, thích hợp cho cặp vợ chồng sử dụng.

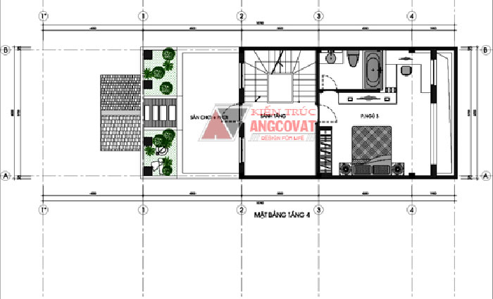
Cuối cùng là mặt bằng không gian tầng 4 với 1 phòng ngủ có nhà vệ sinh bên trong, 1 không gian sân thượng rộng lớn, chiếm gần nửa diện tích 90m2 của mẫu biệt thự 4 tầng 90m2. Phần sân thượng này được gia chủ bố trí tiểu cây xanh tạo nên không gian vườn mini vô cùng thông thoáng, xanh mát. Thường ở những không gian như vậy gia chủ đặt bộ bàn trà nhỏ, hay bàn ăn nhỏ để mỗi cuối tuần, hay dịp đặt biệt nào đó cả gia đình cùng bạn bè, người thân tụ tập ăn uống trong không gian giữa bầu trời rộng thoáng kia.
Lựa chọn nội thất trong mẫu biệt thự 4 tầng 90m2 như thế nào để hoàn thiện tính thẩm mỹ

Nội thất tham khảo cho mẫu biệt thự 4 tầng 90m2 lựa chọn kiến trúc hiện đại như sau: Tone màu trắng cho toàn bộ không gian từ sơn đến nội thất. Điểm nhấn là màu vàng từ gối đặt ở sofa, hay bàn có phần khung ánh vàng, hay bộ bàn ăn hay chiếc đèn nhỏ nhưng có thiết kế mới lạ.

Với phòng ngủ nhằm để tạo nên một không gian ấm áp để gia chủ có được giấc ngủ sâu thì trắng và nâu là sự lựa chọn hoàn hảo. Giường có thiết kế đơn giản nhưng phần đầu được bọc da ấn tượng, sang trọng. Ngoài ra: tủ để đầu giường nhỏ gọn, tivi cùng kệ bên dưới đáp ứng được nhu cầu của gia chủ. Điểm nhấn với bức tranh trừu tượng, tấm thảm lông mịn cùng với chiếc đèn chùm đơn giản nhưng bắt mắt đã hoàn thiện không gian ngủ hiện đại nhưng vô cùng sang trọng cho gia chủ.

Nhà vệ sinh với không gian nhỏ nhưng được bố đầy đủ tiện nghi với 1 bên là khu vực phòng tấm được quây bằng hệ thống kính cường lực và một bên vệ sinh với lavabor đôi cùng bồn câu. Toàn bộ nhà vệ sinh được ốp kinh để dễ dàng lau chùi.

Để xem thêm mẫu biệt thự 4 tầng 90m2, gia chủ truy cập vào website của Xây dựng số. Xây dựng số là nơi gia chủ tìm kiếm mọi thông tin liên quan đến vấn đề xây dựng tại Việt Nam, nơi tìm kiếm đơn vị thiết kế, nhà thầu uy tín với giá thành hợp lý.
SÀN GIAO DỊCH THƯƠNG MẠI ĐIỆN TỬ - XÂY DỰNG SỐ
Tìm nhà thầu - Tìm thiết kế theo cách mạng công nghiệp 4.0
Sứ mệnh: Mang đến cho người dân dịch vụ xây dựng uy tín, chất lượng với chi phí thấp nhất
HOTLINE: 03 94 95 68 78
Xem thêm


































