Mẫu biệt thự 4 tầng 500m2 sở hữu một diện tích lớn cho nên kiến trúc sư nhận công trình như thế này phải có kinh nghiệm dày dặn để có thể sắp xếp không gian, phối cảnh mặt tiền rồi lựa chọn nội thất cho phù hợp. Trong bài viết này cung cấp top mẫu biệt thự 4 tầng 500m2 đẹp đến nao lòng người mà chắc chắn xem xong ai cũng mong muốn sỡ hữu một mẫu biệt thự tương tự cho riêng mình.
Gợi ý phối cảnh mặt tiền nhìn 1 lần là đủ mê đắm cho mẫu biệt thự 4 tầng 500m2
Với một diện tích lớn lên đến 500m2 gia chủ có rất nhiều phương án để có được phối cảnh mặt tiền vừa đẹp vừa độc lạ lại mang đậm cá tính, phong cách riêng của gia chủ sở hữu. Cùng xem top phối cảnh mẫu biệt thự 4 tầng đẹp với diện tích 500m2 như sau:

Không biết các bạn có cảm nhận như thế nào còn mình thật sự bị thu hút bởi ngôi nhà quá hoành tráng này. Đây thật sự là một ngôi nhà mang dáng dấp đẳng cấp chứ không phải nhà biệt thự thông thường. Tổng thể thiết kế trên cả hoàn hảo, một mẫu nhà thật sự đáng mơ ước.
Mẫu biệt thự 4 tầng 500m2 đầu tiên được giới thiệu đầu tiên có kèm thiết kế bể bơi mang đến sự tiện lợi, thoải mái cho chính gia chủ sở hữu mẫu thiết kế này.
Sử dụng phong cách thiết kế hiện đại mang đến cho công trình những nét kiến trúc phóng thoáng, không bó buộc vào bất cứ một khuôn khổ kiến trúc nào. Hình khối là điểm mạnh, gây chú ý cho mọi ánh nhìn đi qua mẫu biệt thự 4 tầng 500m2 này tạo nên một kiến trúc khá đồ sộ. Kiến trúc sư sử dụng 2 mặt gần như là kính thay cho tường gạch để lấy được tối đa được ánh sáng vào bên trong ngôi nhà, giúp tiết kiệm lượng điện năng tiêu thụ. Điểm chú ý của mẫu biệt thự này chính là bể bơi ngoài trời ở khu vực tầng 2 không khác gì những khu du lịch, resort cao cấp hiện nay nhưng chỉ phục duy nhất 1 vị khách duy nhất chính là gia đình của gia chủ.

Mẫu biệt thự 4 tầng 500m2 gợi ý tiếp theo để gia chủ có thêm lựa chọn mang đậm phong cách cổ điển Pháp thế kỷ 17 trước đây. Có thể nhìn thấy những nét đặc trưng rõ nét hiện diện ở trong công trình này là ô cửa sổ vòm lớn nối liền 2 tầng nhà, là những cột trụ tròn đầy nét nữ tính với những nét hoa văn cùng kiến trúc mái đầy tinh xảo. Là ban công uốn cong bằng sắt mạ vàng vừa cổ điển vừa sang trọng hay kiểu kiến trúc mái hình thang với hệ vi kèo mái xanh cổ điển chắc chắn. Tất cả làm nên nét đẹp cổ điển xa hoa và lộng lẫy thu hút mọi ánh nhìn đi ngang và họ phải mất đến vài giây dừng lại ngắm nhìn.

Đã là mẫu biệt thự 4 tầng 500m2 thì không thể bỏ qua phối cảnh sân vườn.
Với mẫu biệt thự này kiến trúc sư sử dụng nét kiến trúc tân cổ điển vì thế vừa nét cổ điển lại vừa có nét hiện đại. Nét cổ điển hiện hiện qua chọn lựa màu sắc như: trắng, vàng, đỏ gạch hay nhưng cột trụ vuông với nét hoạ tiết tinh xảo và kiến trúc mái kiên cố. Nét hiện đại thể hiện khi tối giản nét hoạ tiết hay việc sử dụng đa dạng chất liệu trong việc xây dựng nên mẫu biệt thự này.
Điểm đáng chú ý hơn cả chính là sân vườn bao xung quanh mang đến cho ngôi nhà phối cảnh cực kỳ hài hoà, màu xanh thiên nhiên giúp cho gia chủ sở hữu có được không gian sống xanh, sống trong lành.
Lựa chọn nội thất như thế nào cho từng không gian trong biệt thự 4 tầng 500m2
Với một không gian rộng như mẫu biệt thự 4 tầng 500m2 cần lựa chọn đồ phù hợp để không gian không bị trống nhưng không có nghĩa là đồ nào cũng lựa, hay phải lựa những đồ có kích thước lớn sẽ tạo nên nhức mắt, khó chịu. Hiểu được điều đó chúng tôi xin giới thiệu cách lựa chọn nội thất bên dưới đây.

Phòng khách và bàn ăn cùng bếp trong không gian này được nối thông trên một mặt phẳng để nhấn mạnh vào chiều rộng của mẫu biệt thự 4 tầng 500m2 này. Sử dụng tone màu trắng kết hợp với màu vàng từ đá ốp đã mang đến không gian sang trọng, hiện đại. Bộ ghế bọc da màu trắng vô cùng trang nhã, kết hợp cùng chiếc bàn kính có mạ vàng ở khung cùng với chiếc đèn chùm đậm chất hơi hướng cổ điển. Phần sàn nhà ốp giả gỗ càng khiến không gian này bừng sáng hơn. Trần thạch cao giúp cho không gian ấy hài hoà mang những nét sang trọng hơn.

Hoặc không gian phòng khách dành cho mẫu biệt thự 4 tầng 500m2 theo phong cách hiện đại như gợi ý này cũng được xem là phương án lựa chọn, bố trí nội thất khá lạ mắt. Trong không gian này gia chủ chia thành không gian phòng khách và phòng karaoke. Về bản chất đều để dùng tiếp đón vị khách đến chơi nhà nhưng mỗi một không gian lại dành cho mục đích riêng biệt với nhau. Kiến trúc sư lựa chọn bộ sofa có thiết kế đơn giản màu nâu đầy sang trọng, chiếc tivi, tủ kệ, đàn piano và điểm nhấn là những chiếc đèn thả tròn với thiết kế đầy hiện đại.
Đặc biệt không gian này sử dụng nhiều ô cửa kính để mở không gian cũng như đón nhận được nhiều ánh sáng vào bên trong ngôi nhà.

Về không gian ngủ của mẫu biệt thự 4 tầng 500m2 gợi ý với phong cách tân cổ điển vô cùng sang trọng, ấm áp nhưng không kém phần sang trọng cho gia chủ sở hữu. Không gian này không sử dụng hoạ tiết cầu kỳ mà chỉ đơn giản là dùng những đường chỉ nổi hay phần trần thạch cao giật cấp tạo điểm nhấn cho toàn bộ không gian. Chiếc thảm lông, hay tủ kệ màu nâu nổi bật cũng được xem là điểm nhấn tạo chiều sâu cho không gian, mang vẻ đẹp cổ điển đầy ấn tượng. Không gian này không hề tối mà đủ sáng bởi nhờ vào cửa kính 2 cánh lớn dẫn ra ban công của căn phòng. Tại đây kiến trúc sư khéo leo bố trí chậu hoa để tạo không gian. Rộng rãi, thoáng mát và có điểm nhấn sang trọng chính là ưu điểm của mẫu phòng ngủ hiện đại nhất.
Mặt bằng bố trí không gian mẫu biệt thự 4 tầng 500m2

Mặt bằng tầng 1 của mẫu biệt thự 4 tầng 500m2 sẽ bao gồm: đại sảnh, phòng khách lớn, phòng khách nhỏ cùng nhà vệ sinh. Có thể hình dung về không gian này: bắt đầu từ đại sảnh của ngôi nhà sau cánh cửa hai cánh to lớn đi sang bên trái là phòng khách cỡ lớn nơi gia chủ tiếp đón bất cứ vị khách nào đến chơi nhà mình. Từ vị trí phòng khách này dẫn ra phòng khách nhỏ, và cầu thang lớn dẫn lên các tầng tiếp theo của ngôi nhà. Phòng khách nhỏ có lối cửa 4 cánh với hệ thống bậc tam cấp dẫn vào. Từ vị trí sảnh đi sang bên phải là nhà vệ sinh. Tại mặt bằng tầng 1 có không gian để gia chủ để xe của mình vô cùng thuận tiện.

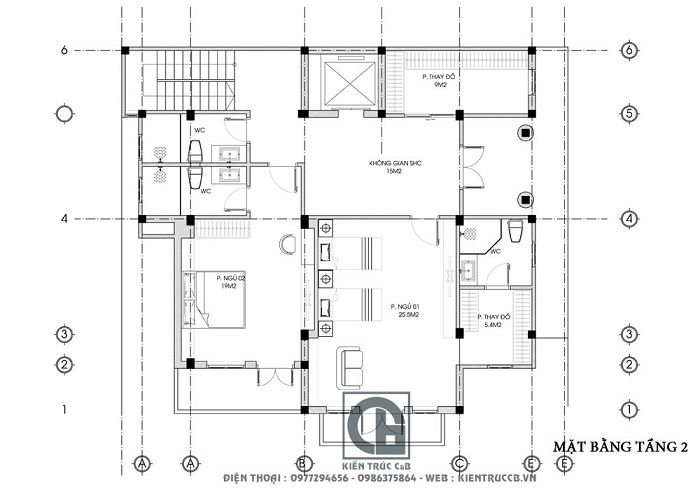
Mặt tiền tầng 2 bố trí 2 phòng ngủ và trong mỗi phòng đều có nhà vệ sinh riêng. Đặc biệt có không gian phòng thay đồ riêng vô cùng thuận tiện.

Không gian tầng 3 được bố trí 3 phòng ngủ và trong không gian này vẫn đi cùng nhà vệ sinh riêng để đảm bảo tối đa sự riêng tư cho người sử dụng căn phòng này. Ở vị trí tầng 3 này vẫn có phòng thay đồ dành riêng cho cho thành viên sử dụng mặt bằng mẫu biệt thự 4 tầng 500m2 này.

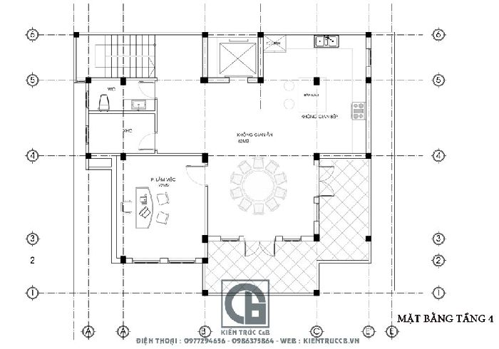
Lên đến vị trí tầng 4 của mẫu biệt thự 4 tầng 500m2 này là không gian bếp cùng với bàn ăn vô cùng rộng rãi, phòng làm việc cùng nhà vệ sinh. Gia chủ đặt vị trí bếp cùng ăn tại vị trí cao nhất trong nhà để không gây ám mùi thức ăn, nấu nướng lên các vị trí khác và đây cũng địa điểm lý tưởng để gia chủ có những bữa cơm với không gian nhìn ngắm ra xung quang với tầm nhìn cao, rộng hơn. Cách bố trí không gian này khá đặc biệt để gia chủ tương lai tham khảo cho mẫu biệt thự 4 tầng 500m2 tương lai của mình.
Tham khảo thêm những cách bố trí mặt bằng, nội thất hay phối cảnh mặt tiền của mẫu biệt thự 4 tầng 500m2 tại xaydungso.vn

Xây dựng số là nơi để gia chủ tương lai đăng tìm đơn vị thiết kế, chủ thầu uy tín với thời gian nhanh nhất, đặc biệt chi phí lại vô cùng hợp lý. Xây dựng số sở hữu đội ngũ chuyên gia hàng đầu về lĩnh vực xây dựng tại Việt Nam hiện nay nên quý khách hàng yên tâm bởi mỗi một đơn vị xây dựng gia nhập sàn giao dịch của chúng tôi đều phải trải qua quá trình thẩm định, đánh giá hết sức nghiêm ngặt, và liên tục được đánh giá.
Đến với Xây dựng số là đến với công trình đẳng cấp, mang đậm dấu ấn cá nhân.


































