Ngày nay như chúng ta biết rằng với sự phát triển mạnh mẽ của một nền kinh tế đang trên đà phát triển. Hòa chung trong sự phát triển ấy nghành kiến trúc Việt Nam đã ghi dấu ấn bằng những khẳng định về sự đa dạng loại hình xây dựng, phong phú về mẫu mã. Đặc biệt tô điểm cho sự thành công này chính là sự góp mặt của những căn biệt thự. Bạn đang quan tâm về một mẫu biệt thự 9x10m thì hãy dành chút thời gian theo dõi vẻ đẹp cuốn hút tự nhiên của những mẫu biệt thự đặc biệt này nhé!
Hình ảnh 3D mẫu biệt thự 9x10 với vẻ đẹp cuốn hút tự nhiên

Mở đầu bộ sưu tập những căn biệt thự 9x10m đẹp nhất hiện nay. Chúng ta cùng đến với một tác phẩm nghệ thuật kiến trúc xây dựng theo lối thiết kế biệt thự cổ điển. Thông thường những căn biệt thự cổ điển sẽ có mức chi phí xây dựng cao hơn so với những căn biệt thự thông thường. Bởi lẽ những đường nét hoa văn của căn biệt thự này đòi hỏi những người thợ lành nghề, chuyên nghiệp,thời gian thi công và hoàn thiện lâu hơn. Nên chi phí xây dựng theo đó mà cao hơn so với các mẫu thiết kế khác. Tuy nhiên đổi lại khi sở hữu được căn biệt thự này bạn và gia đình sẽ có một cuộc sống tiện nghi có phần vương giả quyền quý, khẳng định được vị thế của gia đình mình trong xã hội.

Tiếp đến chúng ta cùng chiêm ngưỡng một mẫu biệt thự làm siêu lòng các chủ đầu tư ở một vẻ đẹp vừa có sự mới mẻ, trẻ trung của phong cách hiện đại, vừa không quên đi những nét hoài cổ của một phong cách quyền quý xa xưa. Đó là những gì mà vẻ ngoài của không gian ngoại thất đã mang đến cho chúng ta khi chiêm ngưỡng căn biệt thự 9x10m tân cổ điển này. Ngôi nhà không quá đồ sộ, hay nguy nga như những căn biệt thự tiền tỷ nhưng sự nhẹ nhàng tinh tế này lại hợp với gu thẩm mỹ của nhiều chủ đầu tư cũng như hợp với mức chi phí xây dựng của nhiều gia chủ trên cả nước. Chỉ cần có trong tay 1 tỷ là bạn hoàn toàn đã có thể sử hữu trọn vẹn căn biệt thự tân cổ điển này.
Cuộc sống của con người đang ngày càng phát triển, những ngôi biệt thự ngoài mang ý nghĩa là một tổ ấm của gia đình nó còn là nơi để cả gia đình thể hiện niềm yêu thích cá nhân, những thú vui tao nhã riêng, để qua đó mang đến cho những người bạn những cái nhìn mới về đẳng cấp cá nhân của mình. Hiểu được những lo lắng và mong muốn của khách hàng, đó là lý do vì sao mà chúng tôi luôn cố gắng để mang đến cho quý khách những mẫu biệt thự đẹp nhất để nâng tầm đẳng cấp cá nhân.

Một phong cách rất được ưa chuộng ở cả thành phố đến nông thôn, đặc biệt với căn biệt thự thự có diện tích mặt tiền là 9m thì việc lựa chọn phong cách biệt thự mái bằng là rất phù hợp. Không gian được thiết kế tối đa, gọn gàng màu sắc trung tính đã mang đến sự trẻ trung cho toàn bộ căn biệt thự. Việc thiết kế thêm một dàn hoa ở khu vực tầng 1 và tầng 3 không chỉ tạo bóng mát mà còn mang nét đẹp thẩm mỹ rất cao. Chính sự cuốn hút của căn biệt thự này đã khiến chúng nhận được sự quan tâm và lựa chọn của rất nhiều chủ đầu tư.

Phối cảnh bản vẽ thiết kế căn biệt thự 9x10m đẹp nhất hiện nay

Một công trình lớn như xây dựng biệt thự buộc dưới mọi hình thức bạn phải lựa chọn được một bản vẽ thiết kế cho căn biệt thự. Nói chúng quan trọng là bởi nếu không có bản vẽ thì bạn không thể nào hình dung được kết cấu của ngôi nhà, từng phòng chức năng có diện tích ra sao? Không có bản vẽ nhà thầu tự xây dựng đôi khi không giống với ý tưởng đưa ra của bạn. Điều này không chỉ gây khó khăn cho bạn mà cho cả chính nhà thầu khi xây dựng mà không có định hướng trước của gia chủ. Khi nhà thầu làm không đúng với ý tưởng của bạn thì lúc này bạn lại không có căn cứ hay cơ sở nào để chỉ ra sự sai sót của phía nhà thầu.

Bạn có thể chọn lựa ngay mẫu thiết kế bản vẽ của chúng tôi làm ý tưởng rồi từ đó tham khảo ý kiến của người thân rồi đi đến quyết định thuê một kiến trúc sư xây dựng họ là người có kinh nghiệm chuyên môn, họ sẽ giúp bạn hoàn thiện ý tưởng ấy một cách hợp lý, cuối cùng bạn chỉ cần mang bản vẽ này cho một nhà thầu uy tín họ sẽ giúp bạn thự hiện được ước mơ.
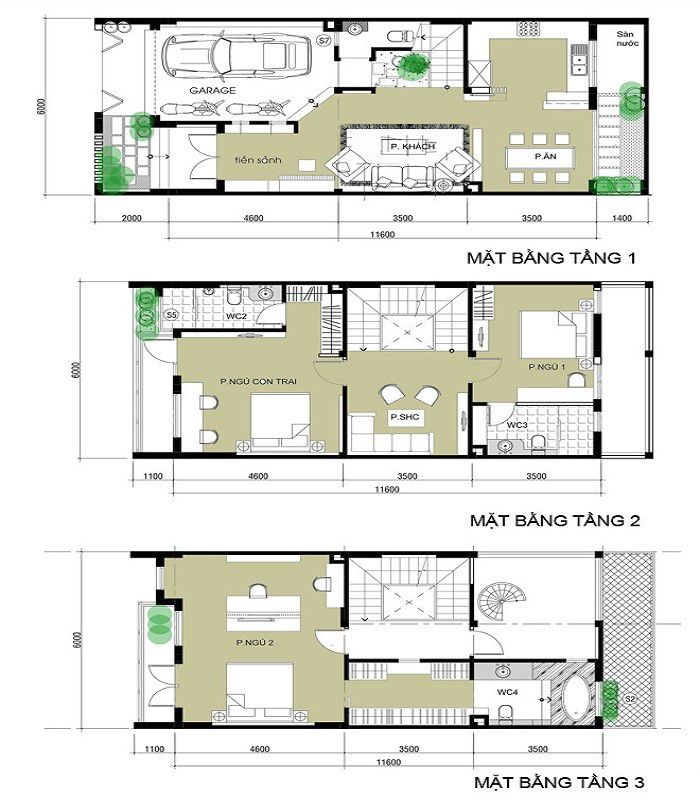
Mặt bằng tổng thể nội thất mẫu biệt thự 9x10m đẹp nhất năm 2021

Trong thiết kế mặt bằng tổng thể nội thất cũng là yếu tố quan trọng, cần thiết cho quy trình xây dựng một căn biệt thự 9x10m. Và khi tạo ra một mặt bằng tổng thể nội thất hợp lý thì bạn cần quan tâm lớn đến quy luật nhấn mạnh để mang đến một không gian nội thất đặc biệt, tạo được điểm nhấn cho bất cứ ai khi đến với căn biệt thự của gia đình mình.

Điều này được thể hiện khi bạn có thể tạo ra một điểm nhấn để nhằm tạo ra hiệu ứng thị giác thu hút sự tập trung cho không gian nội thất của căn biệt thự với bất cứ ai khi đến gia đình bạn. Ví dụ điểm nhấn cho không gian nội thất của phòng khách có thể là một cây đèn chùm chính giữa phòng khách thật đẹp, một mảng tường trang trí nghệ thuật, một vài bức tranh trang trí làm nên sự đặc sắc cho phòng khách của căn biệt thự.

Điểm nhấn cho căn biệt thự được tạo ra bởi sự sắp đặt các yếu tố trong các không gian nội thất một cách hợp lý. Hoặc bạn có thể gây chú ý bằng cách đặt chúng ở vị trí nào đó mà gây được sự chú ý lớn, có thể bằng cách dùng sự tương phản, hay nói một cách dễ hiểu đó là làm chúng nổi bật lên không gian căn biệt thự bằng những đường nét đặc trưng như màu sắc, hình dạng, tỉ lệ của mỗi điểm nhấn đó.

Đối với nội thất phòng ngủ bạn có thể tạo ra điểm nhấn ở phần đầu giường hoặc chỉ bằng một cây đèn ngủ đặt cạnh, trang trí mảng tường đầu giường là cách tốt để có một không gian được nhấn mạnh mỗi khi chúng ta đặt chân về căn phòng ngủ. Đầu giường là nơi có kích thước lớn, các bức họa, tranh 3D dán tường có thể là ý tưởng tạo điểm nhấn tuyệt vời cho căn phòng ngủ.
Với căn phòng bếp bạn tạo điểm nhấn gì để tạo nên không gian bắt mắt cho căn phòng bếp này. Ngoài những nội thất cơ bản như tủ bếp, bộ bàn ăn bạn có thể tạo điểm nhấn cho phòng bếp bằng những bình rượu quý đặt trong một ngăn tủ kính của tủ bếp, một vài lọ cây xanh nhỏ trang trí nơi cửa sổ phòng bếp chính là ý tưởng tuyệt vời cho không gian phòng bếp cũng như khiến nơi đây được chan hòa và gần gũi với thiên nhiên.
Sàn giao dịch thương mại điện tử Xây Dựng Số
Chắc chắn bạn sẽ phải thắc mắc vì sao một sàn giao dịch thương mại trên internet lại có sức thu hút nhiều các chủ đầu tư tìm đến như vậy? Câu trả lời chính bởi bởi những lợi ích mà sàn mang đến cho tất cả những khách hàng khi tìm đến cụ thể đó là khi bạn có nhu cầu sẽ nhận được sự tư vấn nhiệt tình từ các tư vấn viên của sàn.

Hệ thống những nhà thầu mà Xây Dựng Số cung cấp đến khách hàng đều là những đơn vị hàng đầu của mỗi tỉnh thành, họ đã gây dựng được tiếng tăm bằng rất nhiều công trình xây dựng lớn, họ có hồ sơ năng lực minh bạch và thuyết phục khách hàng. Hàng năm các nhà thầu tại sàn Xây Dựng Số đều được đưa ra để đánh giá dưới sự đánh giá trực tiếp của đội ngũ chuyên gia chuyên sâu về xây dựng hàng đầu của sàn và đồng thời các nhà thầu còn nhận cả cả sự đánh giá trực tiếp từ những chủ đầu tư đã từng liên hệ qua sự giới thiệu của sàn mà có những công trình đã hoàn thiện.

Tiếp đến là khi đến với sàn giao dịch Xây Dựng Số còn trực tiếp giúp các chủ đầu tư tiết kiệm được một khoản chi phí xây dựng rất lớn vì vật liệu xây dựng đảm bảo, không phát sinh chi phí, đúng tiến độ thi công như trong bản hợp đồng, đó chính là lí do khiến bạn tiết kiệm được hàng trăm triệu đồng cho công trình xây dựng biệt thự của gia đình mình.
Trên đây là những chia sẻ của chúng tôi về toàn bộ những kiến thức xây dựng mẫu biệt thự 9x10m. Hi vọng với những chia sẻ ngắn gọn, chân thành này của chúng tôi sẽ giúp các chủ đầu tư có được những ý tưởng, kế hoạch cụ thể để sớm sở hữu một căn biệt thự 9x10 như mong muốn cho gia đình mình trong tương lai gần nhất.


































