Tại các thành phố lớn với diện tích ngày càng hẹp thì việc xây nhà nhiều tầng chính là giải pháp tối ưu nhất. Loại hình này đang trở thành xu hướng thiết kế nhà phố hot nhất hiện nay. Tuy nhiên, nhà càng cao thì việc di chuyển lên xuống lại là mối lo ngại của những người lớn tuổi và trẻ nhỏ. Để giải quyết vấn đề này, nhiều gia đình chọn thiết nhà thang máy cho ngôi nhà của mình. Dưới đây, Xây Dựng Số sẽ gửi đến bạn mẫu nhà phố 5 tầng có thang máy với đầy đủ tiện nghi. Hãy tham khảo để rõ hơn nhé!
1. Tham khảo phương án mặt bằng cho nhà 5 tầng có thang máy

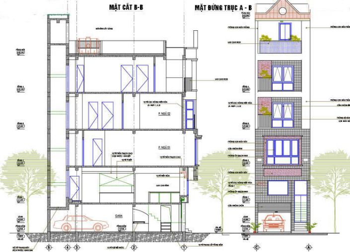
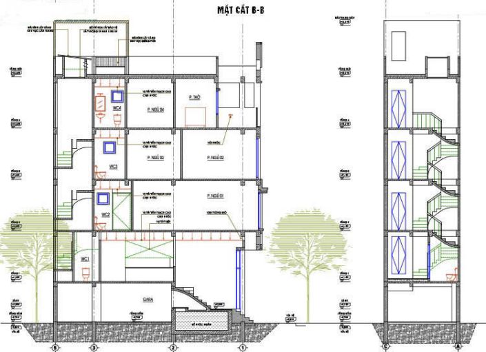
Không gian nhà phố 5 tầng sẽ đảm bảo được nhu nhu cầu sử dụng cho gia đình nhiều thành viên. Thiết kế mặt bằng tầng hầm dùng làm gara, có lối lến tầng 1. Không gian ở đây được bố trí gồm phòng khách rộng rãi, có phòng bếp + bàn ăn, lối đi thang máy và một phòng vệ sinh chung.

Tầng 2 được thiết kế có 1 phòng ngủ, phòng làm việc và phòng tắm, nhà vệ sinh chung. Ngoài ra còn có giếng trời giúp không gian ngôi nhà luôn tràn ngập ánh sáng và gió tự nhiên. Tầng 3 thiết kế có 2 phòng ngủ với diện tích lớn và vừa và một phòng vệ sinh chung, tại đây cũng có khu vực giếng trời.

Tầng 4 bố trí gồm một phòng ngủ, nhà vệ sinh chung, phòng thờ và sân phơi. Phần còn lại là giếng trời và thang máy. Tầng 5 là không gian dành tiêng cho thang máy và phòng kỹ thuật. Ở đây các kiến trúc sư chỉ sử dụng các vách nhẹ để nếu gia đình có thêm thành viên thì việc ngăn ra thành phòng nhỏ cũng dễ dàng cùng một khoảng sân thượng rộng.

2. Chi phí xây nhà 5 tầng có thang máy hiện nay là bao nhiêu?
2.1 Báo giá chi phí xây nhà phố 5 tầng
Đối với việc xây nhà, bạn có thể lựa chọn dịch vụ xây thô và xây trọn gói tùy theo nhu cầu cũng như ngân sách thực tế. Nếu bạn muốn biết chi phí xây nhà thô cho nhà phố 5 tầng có tháng máy hết bao nhiêu? Thì câu trả lời của chúng tôi là, mức chi phí xây thô tiêu chuẩn hiện nay sẽ khoảng 4.000.000/m2
Còn đối với dịch vụ xây nhà phố trọn gói, mức chi phí dao động trong khoảng 5.000.000/m2 – 6.000.000/m2
Ngoài ra, chi phí xây nhà phố 5 tầng có tháng máy còn dựa vào việc bạn lựa chọn hình thức đổ móng và lợp mái như thế nào. Nếu gia chủ chọn mái bằng bê tông cốt thép thì giá thành sẽ khác so với mái tôn hoặc mái ngói. Thêm vào đó, phần móng cọc cũng sẽ có mức giá khác sơ với móng đơn hoặc móng băng...

2.2 Khi nào cần điều chỉnh đơn gia thi công xây dựng nhà phố 5 tầng có thang máy?
Việc điều chỉnh đơn giá thi công thi xây nhà 5 tầng có thang máy thường gặp trong các trường hợp sau: xây nhà phố kết hợp khách sạn và phòng cho thuê, áp dụng khi xây trên 6 sàn trở lên, hay vị trí xây dựng trong hẻm nhỏ, nơi không thể để được vật liệu xây dựng và phải vận chuyển bằng xe nhỏ...
3. Một số mẫu nhà 5 tầng có thang máy đẹp cuốn hút

Mẫu nhà phố 5 tầng này với phần mặt tiền được thiết kế nhẹ nhàng, tinh tế đến từng chi tiết phù hợp với gia chủ thích sự lộng lẫy, sang trọng của phong cách Châu Âu kết hợp với vật liệu hiện đại. Bên cạnh đó, các kiến trúc sư còn chú trọng việc bố trí cây xanh ở ban công và sân thượng nhằm mang lại sự thoáng đãng, gần gũi với thiên nhiên.
Điểm nhấn của mẫu nhà phố này là hệ thống mái vòm tinh xảo ở tầng 5. Về thiết kế ngoại thất, với tông màu trắng chủ đạo, kết hợp việc tạo gờ tinh tế và sắp xếp có chủ ý, các kiến truc sư đã thể hiện rõ sự sang trọng của ngôi nhà thông qua các hình khối và mảng miếng cổ điển kết hợp hiện đại. Phần mặt tiền còn được tạo điểm nhấn qua việc sử dụng gạch ốp cao cấp màu vàng ở tầng 1 và 2 của ngôi nhà. Có thể thấy dù ở bất cứ góc nào ngoại thất ngôi nhà phố 5 tầng có thang máy theo phong cách tân cổ điển này cũng thật cuốn hút và thu hút mọi ánh nhìn.

Toàn bộ phần mặt tiền của mẫu nhà phố 5 tầng hiện đại này được chăm chút rất tỉ mỉ và tinh tế với các mảng tường ốp gạch thẻ tối màu. Ngôi nhà cũng được thiết kế nhiều ban công và lô gia cho tầng 2,4 và 5 để tăng không gian xanh mát. Một trong những điểm nhấn cũng như ý tưởng hay mà các kiến trúc sư đã đưa ra chính là tạo các khối hộp nhô ra so với mặt đất để tăng diện tích sử dụng, đồng thời mang lại ấn tượng cho phần mặt tiền.
Toàn bộ cửa sổ của ngôi nhà đều sử dụng kính cường lực trong suốt để lấy ánh sáng tự nhiên cho không gian trong nhà cũng như giúp gia chủ khéo léo khoe được thiết kế nội thất bên trong như rèm cửa, bàn ghế sofa...

Nhìn vào mẫu nhà phố này, chúng ta có thể thấy kiến trúc mái Thái đã khéo léo khoe vẻ đẹp thanh thoát, ca ráo của ngôi nhà. Từ kiểu nhà phố hiện đại, khỏe khắn và vuông vức, khi kết hợp với kiểu mái Thái lại mang lại khối kiến trúc hoàn hảo. Ngoài ra, việc dùng cửa cuốn rất phù hợp với lối kiến trúc hiện đại này, việc có thể điều chỉnh độ mở của cửa phù hợp để lấy ánh sáng và không khí, tạo sự lưu thông cho gara cũng như tầng trệt của ngôi nhà.

Với những gia chủ yêu thích phong cách thiết kế hiện đại, trẻ trung kết hợp với xu hướng thẩm mỹ kiến trúc hiện nay thì phương án nhà phố 5 tầng này là gợi ý hoàn hảo. Các mảng hình khối kiến trúc ra vào tại mặt tiền sẽ kết hợp cùng với khoảng diện tích trong nhà để tối ưu nhất về tỉ lệ. Qua đó, ngôi nhà như 1 tổng thể kiến trúc có chiều sâu, chắc chắn về hình và có điểm nhấn trong màu sắc.
Tông màu chủ đạo của ngôi nhà là gam nên màu trắng, điểm nhấn ghi xanh xẫm và gạch giả gỗ nâu đất tối màu. Việc kết hợp các màu đen của hệ thống cửa sổ, vách kính khung lõi thép tại mặt tiền các tầng 2,3,4,5 khiến ngôi nhà trở nên nổi bật. Phía dưới tầng 1 là các mảng tường bao quanh cửa kính 4 cánh được ốp đá granit đen ngọc, vân sáng để tạo ra vẻ đẹp bề thế, sang trọng và vững chãi.

Mẫu nhà phố 5 tầng trên với được thiết kế với mái bằng, mang lại sự hiện đại. Bên cạnh đó, phần mái ban công được thiết kế từ kính cường lực đón ánh sáng tối đa cho khu vườn nhỏ trên tầng thượng, nhưng vẫn đảm bảo được yếu tố an ninh tối đa. Màu sơn chủ đạo của toàn bộ mặt tiền là tông màu sáng quen thuộc, thường bắt gặp trong các mẫu nhà trên các con phố. Chất liệu kính cường lực vẫn được ưu tiên sử dụng trong thiết kế ngoại thất, cụ thể là cửa chính tầng 1 và cửa sổ các tầng. Điểm xuyết thêm vào đó là những khung cửa gỗ nâu bao quanh khu ban công nhỏ xinh khéo léo được bố trí trên không gian ban tầng 2 và tầng thượng. Khuôn khổ của loại hình nhà phố này cũng bớt sự gò bó hơn khi có sự xuất hiện của những chậu xây xanh khéo léo được bố trí tại ban công các tầng.
Xây Dựng Số - nơi hiện thực hóa ước mơ của bạn

Thiết kế, xây nhưng nhà phố có thang máy đẹp, đảm bảo khoa học là điều không hề đơn giản, đòi hỏi gia chủ phải tìm đến các đơn vị thi công, xây dựng chuyên nghiệp và uy tín để đội ngũ kiến trúc sư sẽ đưa ra những phương án phù hợp. Thế nhưng, giữa hàng trăm, hàng ngàn công ty, đơn vị xây dựng hiện nay, bạn nên chọn lựa thế nào?
Hãy liên hệ với chung tôi ngay bây giờ. Xây Dựng Số tự hào là sàn thương mại điện tử với hàng ngàn nhà thầu, công ty xây dựng với hồ sơ năng lực minh bạch sẽ giúp Bạn nhanh chóng tìm được đối tác thiết kế, thi công, quản lý xây dựng. Hơn nữa, các nhà thầu luôn được đội ngũ chuyên gia của chúng tôi cũng như các chủ đầu tư đánh giá liên tục. Bên cạnh đó, các nhà thầu, công ty xây dựng báo giá với các giải pháo kết cấu khác nhau sẽ giúp gia chủ tiết kiệm được hàng chục đến hàng trăm triệu đồng cho công tình của mình.
Trên đây là những thông tin về nhà phố 5 tầng có thang máy mà Xây Dựng Số muốn gửi đến bạn đọc. Hi vọng bài viết này sẽ giúp bạn có được phương án cũng như lựa chọn được chủ đầu tư chuyên nghiệp trong việc hoàn thiện ngôi nhà của mình. Chúc các bạn thành công!
Xem thêm


































