Theo nhiều người, thì với diện tích 5m hoàn toàn không thể triển khai được một ngôi nhà với sự toàn diện bởi chúng gặp khá nhiều hạn chế vì diện tích. Mặt khác, chúng khó có thể phân bổ được với các chức năng để sinh hoạt một cách thuận tiện nhất. Nhưng thực sự trong nhiều thay đổi từ việc thích ứng, sự đổi mới của kiến trúc ngày nay việc sở hữu một diện tích 5m mặt tiền hoàn toàn có thể làm được nhiều hơn những gì mà bạn đang mong đợi.

Mẫu nhà 1 trệt 3 lầu diện tích 5x16m hoàn toàn là một phương án khả thi với rất nhiều gia đình đang sinh sống ở thành phố, ngoại ô và cả vùng nông thôn. Kiến trúc được thích ứng một cách hoàn hảo từ kết cấu lên đến 4 mặt bằng với chiều dài quả thật sẽ là ưu điểm ban đầu cho ngôi nhà. Sự đa dạng trong kiến trúc ngày nay cũng là một phần quan trọng để đánh giá chúng nhằm thích ứng với diện tích để tạo nên một không gian hoàn thiện mà những dãn chứng ngay phía dưới sẽ làm cho bạn hài lòng.
Thiết kế nhà ống 1 trệt 3 lầu diện tích 5x16m với mặt phố 5m tiện nghi – hiện đại – toàn diện :

Kiến trúc ngày nay không quan trọng quá nhiều đến diện tích mà cần nhiều hơn từ việc kiến tạo, sắp xếp, cân đối và tạo dựng lên một bố cục hoàn chỉnh. Dựa trên các tiêu chí khác nhau từ chủ đầu tư mà có thể đánh giá chúng dựa vào nhu cầu, lối sử dụng để hoàn thiện cho công trình. Và nếu như, bạn đang gặp những khó khăn trong các ý tưởng xây dựng nhà 1 trệt 3 lầu thì hãy để hồ sơ ngay phía bên dưới giúp bạn hoàn thành điều đó.
Thông tin về mẫu nhà ống 1 trệt 3 diện tích 5x16m
- Dự án thiết kế : mẫu nhà ống 1 trệt 3 lầu 5x16m
- Chủ đầu tư : Trần Tiến Đức sinh năm 1977
- Phong cách xây dựng : “Phong cách hiện đại luôn là lựa chọn ưu tiên của gia đình tôi giúp cuộc sống trở nên đơn giản hơn thuận tiện hơn. Đó có thể là một mặt tiền sáng, sang trọng từ màu sắc được hài hòa, nội thất thể hiện rõ sự tiện nghi với các chức năng từ gian phòng thể hiện rõ phong cách hướng đến.” yêu cầu từ chủ đầu tư.
- Địa chỉ : 105 Phan Văn Khỏe, P5. Quận 6 – thành phố Hồ Chí Minh
- Thời gian thi công: ~ 3 tháng.
A. Phối cảnh nhà phố 1 trệt 3 lầu diện tích 5x16m
Từ phối cảnh mặt tiền ngôi nhà, chúng ta có thể thấy được định hướng từ chủ đầu tư đã được thể hiện rõ nét từ những hình thức trang trí, kiến tạo, phối hợp nhịp nhàng mà kiến trúc sư đang hướng đến. Mặt tiền khá sáng từ hệ thống đèn chiếu như đánh bật lên các công trình liền kề, mà không gian này có thể đánh giá như một công trình đáng sinh sống nhất của các cư dân tại thành phố.

Phong cách thể hiện rõ nét hiện đại từ các hình khối được gia cố một cách hoàn thiện mà có thể thấy mặt bằng tầng 2 và 3 được cho là điểm sáng lớn nhất khi chúng thể hiện được sắc riêng từ màu sơn và lối tạo hình. Các hình thể bên ngoài như ôm trọn kiến trúc bằng một hình khối chữ nhật đã làm cho công trình thêm trọn vẹn hơn. Mà cảnh quan như được phối hợp một cách nhịp nhàng để công trình có thêm nét riêng biệt không bị trùng lặp với các thiết kế mà bạn đã được thấy.

Phối cảnh từ sân trước hoàn toàn có thể làm thuyết phục mọi khách hàng khó tính nhất. Từ sự tối giản trong hình thức trang trí nhưng ngược lại chúng hoàn toàn thể hiện được những giá trị riêng của mình bởi việc phân bổ, sắp xếp các cây xanh xung quanh để ngôi nhà có thể trở nên xanh tươi hơn. Đó là 1 hàng trúc và đối diện là hàng cây xanh và không thể quên sự đóng góp từ hệ thống đền chiếu để chúng được đánh bật lên.

Ngoài ra, phía sân trước còn được kết hợp thêm một mái giả từ các khung gỗ mà phía trên được sử dụng tấm lợp lấy sáng như thích ứng với môi trường xung quanh một cách hoàn thiện. Nhà sử dụng với gam trắng sáng từ khoảng sân trước, cánh cửa từ kính cường lực như giúp chúng thông thoáng hơn rất nhiều mà khi cần sự riêng tư hoàn toàn có thể nhờ đến sự trợ giúp từ màn che.

Đây là cảnh quan từ phía sân thượng của ngôi nhà, nơi cao nhất mà mọi thành viên có thể thư giãn sau mỗi giờ làm việc, học tập căng thẳng bên ngoài. Chúng được hiện lên từ vẻ xanh tươi từ cây xanh, mà chắc chắn khi nhìn vào ngôi nhà bạn sẽ thấy được gia chủ là người yêu thích thực vật như thế nào bởi mọi chi tiết, mọi góc đều có sự hiện diện của chúng một cách đầy đủ. Không phải là các bức tường che chắn mà là một sự đan xen giữa các thanh gỗ làm nên từ phần mái và tường như làm cho chúng thêm thông thoáng hơn rất nhiều.
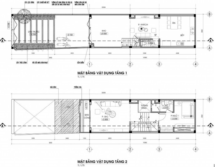
B. Thiết kế nhà ống 1 trệt 3 lầu 5x16m từ bản vẽ xây dựng
Bản vẽ như thể hiện một cách chân thực nhất phía bên trong nội thất của ngôi nhà mà kiến trúc sư đã thêm vào đó là các chi tiết, các chức năng, diện tích và các vật dụng để chúng thêm trọn vẹn hơn. Mà khi bám sát vào bản vẽ, các thợ xây dựng có thể đọc và hiểu được ý mà kiến trúc sư đang truyền đạt vào để trong quá trình thi công có thể thực hiện dễ dàng hơn.

Mặt bằng tầng trệt : Từ sân trước đi vào là một khoảng khá rộng là nơi để các phương tiện giao thông. Với 1 nhà kho chứa các vật dụng, đồ dùng tiện cho mục đích sinh hoạt của gia chủ. Kế tiếp là 1 phòng khách, 1 nhà bếp được kết hợp với 1 bàn ăn với diện tích rộng, 1 nhà vệ sinh và 1 kết cấu từ cầu thang để di chuyển lên các mặt bằng phía trên.
Mặt bằng tầng 1 : Từ hướng mặt tiền là phần ban công của ngôi nhà mà từ mặt tiền mọi người có thể nhận thấy, kế tiếp là phòng sinh hoạt chung nơi chứa các thiết bị công nghệ hay thiết bị điện tử cho các thành viên sử dụng. 1 nhà vệ sinh nằm phía bên trong phòng ngủ số 1.

Mặt bằng tầng 3 : Sử dụng như một không gian sinh hoạt riêng từ diện tích 16m mà mặt bằng này được chia ra thành 3 với 1 phòng ngủ master với các chức năng thiết yếu kèm 1 ban công phía trước, 1 sản trước cầu thang rộng rãi và 1 phòng ngủ số 2 kèm nhà vệ sinh và nhà tắm bên trong riêng biệt.
Mặt bằng tầng 4 : Với mặt bằng tầng 4 thì có thể thấy không gian như được sao chép lại với mặt bằng phía dưới để nâng số phòng ngủ của ngôi nhà lên con số 5 nhằm giải quyết vấn đề mà chủ đầu tư đã cung cấp ngay từ ban đầu vì số lượng lớn thành viên kết hợp sinh sống.
Theo đánh giá chung, thì có thể thấy bản vẽ thể hiện được trọn vẹn các chức năng với một lối sắp xếp hoàn thiện, đầy đủ mà chúng như được đổi mới rất nhiều từ các vị trí để giúp chúng có thể thích ứng với lối sinh hoạt mà chủ đầu tư mong muốn có được cho gia đình mình sử dựng. Đây cũng là một lời gợi ý hoàn toàn phù hợp cho các gia đình, các cá nhân hay tổ chức để kiến tạo nên một ngôi nhà trong tương lai để phục vụ cho việc sinh sống hay kinh doanh.
C. Nội thất nhà 1 trệt 3 lầu diện tích 5x16m hiện đại
Việc thiết kế nội thất nhà 1 trệt 3 lầu cần khá nhiều từ các ý tưởng từ các chuyên gia hay có thể đơn giản hóa từ các gia đình nếu như đã có kinh nghiệm trang trí hay cải tạo nhà cửa. Với rất nhiều gia đình trọn cho mình từ việc thiết kế nội thất trọn gói nhưng ngược lại cũng có rất nhiều các gia đình lựa chọn cho mình bằng hình thức tự thiết kế nội thất.


Ngôi nhà có cho mình với một gam màu sáng, từ cả việc sử dụng gạch dán tường hay sơn đều được thích ứng với không gian tạo độ sáng, tươi mới mà có thể thấy vật dụng bên trong của ngôi nhà được kết hợp vô cùng hợp lý và bắt mắt để chúng được đưa vào 1 khuôn. Thiết kế giúp tiết kiệm diện tích một cách tối đa, xóa tan đi những thiếu sót mà nhà ống thường gặp phải.


Thực sự khi được xem qua với các không gian chức năng từ ngôi nhà 1 trệt 3 lầu từ chủ đầu tư Trần Tiến Đức, có thể khẳng định được giá trị mà chúng đã làm nên từ việc kết hợp các vật dụng nội thất như tôn lên vẻ đẹp, một vẻ đẹp khó lòng mà có thể diễn đạt bằng từ ngữ. Chúng như được sinh ra và dành cho nhau để làm nên một phong cách sống, một sự tiện nghi, hiện đại mà không phải ngôi nhà nào cũng có thể sở hữu cho mình.

Thông qua các tư liệu từ hồ sơ, chắc hẳn bạn đã hiểu được phần nào về những điều mà chúng tôi đã nhắc đến. Mong rằng chúng sẽ là nguồn tư liệu bổ ích dành cho mọi người, đừng quên theo dõi các bài viết tiếp theo của chúng tôi trong hạng mục nhà 1 trệt 3 lầu. Xin chào và hẹn gặp lại!
Xem thêm :



























