Mẫu nhà 2 tầng 7x12m với thiết kế được đánh giá hiện đại, tiện nghi, tối ưu được diện tích sử dụng, rất phù hợp với nhu cầu sống của gia đình nhiều thành viên. Trên diện tích này, gia chủ hoàn toàn có thể tiến hành xây dựng mẫu nhà với thiết kế căn nhà biệt thự. Cùng xem mẫu nhà 2 tầng 7 x 12m trong thực tế như thế nào?
Mẫu nhà 2 tầng 7 x 12m vừa thu hút bên ngoài vừa tiện nghi bên trong
Để có thể đáp ứng được mẫu nhà 2 tầng 7 x 12m vừa thu hút bên ngoài vừa tiện nghi bên trong gia chủ chắc chắn không thể bỏ qua những lưu ý trong bài viết này dành riêng cho mẫu nhà này.

Thứ nhất về mặt tiền của mẫu nhà 2 tầng 7 x 12m để có vẻ ngoài thu hút cần chú ý:
Vì mẫu nhà 2 tầng được xây dựng trên diện tích rộng lên đến 7 x 12m khi tiến hành thiết kế, kiến trúc sư bố trí không gian nhà với không gian sân trước. Với phần không gian sân trước này vừa không gian để xe oto của gia đình vừa nơi gia chủ có thể bố trí thêm cây xanh xung quanh nhà. Điều này mang đến một không gian phía trước nhà thu hút, mang đến không khí trong lành, thoáng mát nhờ vào sự xuất hiện của cây xanh.

Đa số thiết kế mẫu nhà 2 tầng 7 x 12m sử dụng thiết kế chữ L phù hợp với diện tích đất rộng lớn mà gia chủ sở hữu, lại vừa mang đến phần diện tích phía trong nhà được tối ưu diện tích, phục vụ cao nhu cầu mà các thành viên trong gia đình mong muốn.
Nếu như đã tìm hiểu về kiến trúc chữ L thì sẽ có nhược điểm về thông thoáng khí trong nhà. Để khắc phục được tình trạng này, kiến trúc sư đã bố trí tối đa nhất cửa sổ kính lớn từ cửa chính đến ô cửa sổ để khắc phục. Đồng thời trồng cây xanh nhỏ trong nhà để mang đến cho trong lành trong ngôi nhà.

Phần mái nhà cũng được gia chủ lựa chọn kỹ càng, thông thường sử dụng mái Thái cho ngôi nhà. Với thiết kế kỳ công, lớp chồng lớp, đồ sộ bề thế nên được gia chủ lựa chọn cho mẫu nhà 2 tầng 7 x 12m.
Để làm nên một chỉnh thể hoàn hảo thì không thể không nhắc đến tone màu cho những ngôi nhà có thiết kế lớn như thế này. Gia chủ thường sử dụng tone màu sáng, ví dụ như trắng để căn nhà trang nhã, sang trọng, hiện đại.
Hệ thống hàng rào được chú trọng bằng việc sử dụng nguyên vật liệu bằng sắt chủ đạo, mang đến sự thông tháng nhưng đẹp mắt, và an toàn.
Thứ hai về không gian trong mẫu nhà 2 tầng 7 x 12m được gia chủ bố trí như thế nào để tối đa diện tích, đáp ứng nhu cầu ở của nhiều thế hệ sinh sống với nhau?

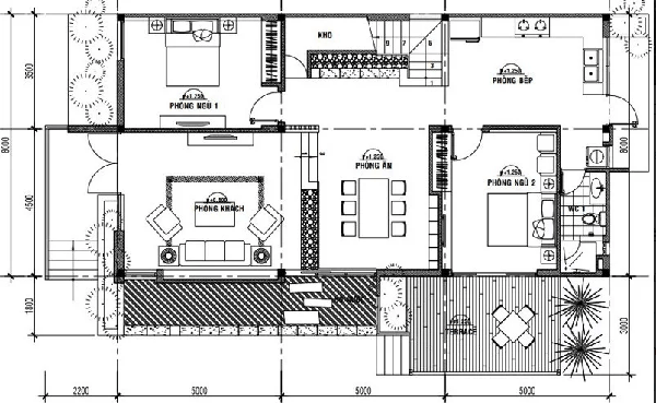
Tầng 1 bố trí với: 1 phòng khách, 2 phòng ngủ, 1 bếp, 1 phòng ăn, và 1 nhà vệ sinh. Ngoài ra bố trí khoảng sân vườn phía sau nhà để gia chủ có không gian xanh yên tĩnh, thữ giãn với bộ bàn ghế nhỏ.

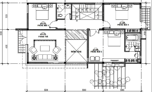
Tầng 2 với: 1 phòng thờ, 3 phòng ngủ trong đó 1 phòng ngủ master được bố trí nhà vệ sinh bên trong để đảm bảo độ riêng tư nhất định và 1 nhà vệ sinh chung giữa 2 phòng ngủ nhỏ hơn.
Top mẫu nhà 2 tầng 7x12m biệt thự tiện nghi nhất hiện nay
Với những lưu ý phía trên thì mẫu nhà 2 tầng 7 x 12m sẽ có mặt tiền như thế nào để xứng với tên top biệt thự tiện nghi nhất hiện nay.

Mẫu nhà 2 tầng 7 x 12m được giới thiệu đầu tiên theo phong cách hiện đại kết hợp với mái Thái giật cấp, hệ thống sân vườn bao quanh nhà.
Đặc trưng phong cách hiện đại với những khối hình vuông vức được xếp lại với nhau tạo nên một chỉnh thể mạnh mẽ, dứt khoát nhưng không hề tạo cảm giác về những khối hình thô ráp tạo nên. Khối hình này được thiết kế tỉ mỉ, sử dụng chất liệu bê tông đổ dua rộng ra bên ngoài để che nắng che mưa và gia chủ có thể trồng cây xanh ngay tại những vị trí dư ra như thế này, nhấn nhá thêm cho vẻ ngoài ấn tượng. Ngoài những mảng tường theo tone màu trắng chủ đạo, gia chủ kết hợp thêm sợ màu xám để nổi bật không gian này, kết hợp ốp gạch màu vàng nhạt, hệ móng được làm cao hơn so với thông thường giúp ngôi nhà cao ráo, thanh thoát hơn.
Hệ thống mái Thái được thiết kế giật cấp, màu xám đi cùng hệ thống cửa kính sơn trắng càng khiến ngôi nhà nổi bật hơn về sự đồ sộ của kiến trúc nhà 2 tầng 7 x 12m.

Mẫu nhà 2 tầng 7 x 12m với phong cách hiện đại, mái Thái. Thay vì sử dụng mái Thái giật cấp thì gia chủ sử dụng mái Thái đơn mang đến cảm giác nhẹ nhàng hơn, không quá to lớn như mẫu thiết kế phía trên.
Gia chủ vẫn sử dụng khối hộp đặc trưng nhưng bố trí theo phương án lệch tầng, mang đến ánh nhìn khác cho ngôi nhà, với 2 tầng riêng biệt. Tầng 1 với điểm nhấn với khối hộp được đặt dôi ra ốp đá granit sẫm màu mang vẻ đẹp sang trọng. Tầng hai hệ thống thành lam tránh nắng vừa có tác dụng tránh ánh nắng vào nhà lại vừa mang đến kiến trúc khỏe khoắn với thanh lam dọc.
Hệ thống cổng rào được được sơn trắng, kết cấu đơn giản mang đến cho ngôi nhà cảm giác thông thoáng, hiện đại.

Mẫu nhà 2 tầng 7 x 12m phong cách hiện đại, mái Thái nhưng với thiết kế mái lệch mang đến ấn tượng không thể rời mắt.

Sử dụng tone trắng với nâu đậm mang đến ấn tượng màu sắc tươi trẻ, cuốn hút cho căn nhà. Đặc biệt tại khu vực tầng hai của căn nhà được bố trí với ban công có diện tích lớn giúp gia chủ biến không gian này giống như một quán café tại gia với cây xanh bao quang, cảm giác vô cùng dễ chịu, thư giãn mà không phải đi đâu xa.
Hệ thống cổng rào được chú ý với ốp đá sẫm mẫu, một bức tranh bằng gạch được rào cạnh cổng chính, phía dưới là tiểu cảnh cây xanh được bố trí. Thêm nữa, cửa cuốn hiện đại biến thành gara oto tiện nghi chính là mẫu biệt thự mini được sử dụng tại không gian phố hiện nay. Đây chính là những mẫu thiết kế thuộc top thiết kế mẫu nhà 2 tầng 7 x 12m biệt thự phố hiện nay.

Thiết kế theo phong cách hiện đại kết hợp với mái bằng sẽ không nằm ngoài xu hướng thiết kế mẫu nhà 2 tầng 7 x 12m hiện nay. Sử dụng thiết kế đối xứng giữa các tầng, cùng với việc sử dụng đa dạng nguyên vật liệu với nhau. Hệ thống cửa kính khung thép được gia chủ sử dụng tối đa để mang mang đến ánh sáng ban ngày cho căn nhà cùng với sự thông thoáng lưu thông không kh. Ban công ngôi nhà sử dụng kính với khung thép vô cùng hiện đại. Nhìn tổng thể những ngôi nhà theo mẫu thiết kế này mang đến cảm giác gọn ngàng, đơn giản.

Áp dụng thiết kế đối xứng giữa các tầng với nhau nhưng mẫu thiết kế này mang đến sự khỏe khoắn nhờ vào: việc sử dụng đá ốp khung khối hộp giữa các tầng. Để tạo điểm nhấn cũng như chiều sâu cho căn nhà, viền khung nhô ra phía trước, bên trong bố trí hệ thống cửa kính khung nhôm sơn đen. Hệ thống ban công bằng sắt sơn đen cũng góp phần nhấn mạnh vào chiều sâu cho căn nhà. Cảm giác khỏe khoắn còn thể hiện ở tường rào căn nhà với khối bê tông cùng cột trụ đổ vô cùng chắc chắn, ốp đá trơn.

Mẫu nhà 2 tầng 7 x 12m theo phong cách hiện đại đã trở nên quá quen thuộc với gia chủ thì hãy tham khảo mẫu thiết kế nhà theo phong cách tân cổ điển xem sao?
Mẫu nhà với thiết kế tân cổ điển sang trọng tiêu biểu hệ thống cột nhà trụ tròn cùng với họa tiết trang trí cầu kỳ mang đến nét đẹp sự uyển chuyển, mềm mại cho kiến trúc tổng thể. Phần mái kết hợp với họa tiết bán nguyệt biểu trưng mỹ thuật tinh hoa của châu Âu đi cùng với mái Thái giật cấp màu xanh đậm là vô cùng phù hợp với mặt tiền cầu kỳ.
Toàn bộ mặt tiền tầng 1 được ốp đá sáng màu bắt mắt, nhìn xa giống như ánh sáng từ vàng đang phản chiếu cùng với tone màu trắng ở tầng 2 giúp ngôi nhà sự sang trọng, bắt mắt.
Hiện đại được thể hiện hệ thống cửa cuốn gara oto đặt cạnh nhà và hệ thống cửa kính sử dụng tầng hai – Sự đa dạng trong nguyên vật liệu thiết kế mang đến sự hài hòa.

Phong cách tân cổ điển, mái Thái giật cấp nhưng mẫu thiết kế nhà 2 tầng 7 x 12 này mang đến sự hiện đại, tinh tế. Kiến trúc đối xứng các tầng, cùng hệ thống cửa kính, tiểu cây xảnh được bố trí giữa các tầng, Hoa tiết đi kèm cũng được lược bỏ, tối giản hết mức kết hợp với tone trắng chủ đạo xuyên suốt mang đến sự nhẹ nhàng. Gia chủ nào sở hữu ngôi nhà là những người có nét tính cách nhẹ nhàng, ôn hòa nhưng vô cùng sang trọng.

Phong cách tân cổ điển với kiến trúc chữ L được áp dụng cho những mẫu nhà 2 tầng 7 x 12m thích hợp với ngôi nhà biệt thự ở vùng ngoại ô thành phố. Sử dụng tone màu trắng, trang nhã kết hợp với mái Thái giật cấp xanh dương đậm cùng hệ thống cột trụ vững chắc làm nên không gian phù hợp với ngoại cảnh yên bình xung quanh. Không gian này thích hợp cho gia chủ nghỉ dưỡng cuối tuần bên gia đình.

Cùng kiến trúc mẫu nhà như trên, những màu sắc sử dụng có phần rực rỡ hơn, mang đến cảm giác ấm cúng của gia đình đang sinh sống. Hệ thống cây xanh được bố trí mọi nơi trong căn nhà mang đến sự gần gũi, hòa quyện giữa không gian sinh sống với thiên nhiên. Đây mẫu nhà 2 tầng 7 x 12m được xây dựng tại khu vực nông thôn hiện nay.


































