Không gian nhà phố nhỏ hẹp và sâu thường mang đến cảm giác bí bách, ngột ngạt. Thêm nữa lại trong một phố thị đầy khói bụi càng khiến ngôi nhà không còn là phần không gian lý tưởng để gia chủ nghỉ ngơi vào sau mỗi ngày làm việc mệt mỏi. Vì thế mẫu nhà 2 tầng có giếng trời với thiết kế nhà ống 2 tầng với giếng trời là lựa chọn hợp lý.
Chiêm ngưỡng mẫu mặt tiền nhà 2 tầng có giếng trời
Để có thể minh họa rõ nét nhất về kiến trúc mặt tiền nhà 2 tầng có giếng trời thì lựa chọn là mẫu thiết kế thuộc hàng top kiến trúc này giúp minh họa rõ nét nhất để người đọc hình dung cụ thể chi tiết. Hãy bắt đầu nhìn vào mặt tiền của ngôi nhà này bởi đây là một trong thiết kế như đã nói ở trên là top mẫu thiết kế ứng dụng nhiều nhất vào thực tế xây nhà 2 tầng có giếng trời hiện nay.
1. Ấn tượng đầu tiên về mặt tiền ngôi nhà này gì?
Chắc chắn đó là phần không gian xanh được phủ kín, bao bọc khu vực mặt tiền của ngôi nhà khiến ngôi nhà như tràn ngập sắc xanh. Hơn nữa với đặc điểm nắng nóng mùa hè gay gắt ở miền bắc hiện nay thì ngôi nhà như này giúp gia chủ cảm thấy dễ chịu hơn rất nhiều mỗi khi trở về nhà sau một ngày làm việc vô cùng mệt mỏi. Không chỉ dừng lại ở đó phần không gian xanh lớn nhất, chiếm một vị trí rất lớn trong ngôi nhà này chính là phần giếng trời được đặt ở vị trí tầng cao nhất hay gọi sân thượng.

Một không gian xanh tràn ngập đúng nghĩa, giúp cho lưu thông khí vào ngôi nhà của chính bạn. Và còn quan trọng hơn ở phần không gian này chính là tạo nên không gian nghỉ ngơi cho gia chủ. Chẳng phải vất vả lên mạng tìm kiếm khu vực nghỉ ngơi thư giãn vào cuối tuần, cũng chẳng phải tranh giành chỗ trống với bất kỳ người nào khách, ngay trong chính ngôi nhà đã có không gian trong lành, yên tính như này thì sao phải tìm kiếm xa xôi.
Phần giếng trời này không chỉ tràn đầy không gian cây xanh, đây là phần được gia chủ sử dụng cùng với những mục đích riêng như giặt và phơi quần áo, hay trở thành không gian với bữa ăn nướng BBQ đạt chuẩn 5 sao trên tầng thượng,….Sơn trắng là tone màu chủ đạo của căn nhà, kết hợp với khung cửa kính cường lực to, với mảng tường gỗ được thiết kế đan xen ở khu vực tầng hai là khu tiểu cảnh loại cây dạng rủ là mang lại sự hiện đại, tinh tế nhưng vô cùng trong xanh.

Nếu như diện tích nhà bạn rộng hơn một chút, chẳng lý nào một thiết kế như trên không khiến bạn hài lòng hơn. Gần như cả một khu vườn xanh được bố trí tại gia đình bạn: từ những bức tường được sử dụng trồng nhiều loại cây khác nhau, đến khu vực các tầng với tiểu cảnh được bố trí gần chiếm toàn bộ không gian mặt tiền đến loại cây được bố trí trong nhà đã làm nên lối kính trúc xanh đang được áp dụng phổ biến hiện nay. Việc sử dụng gỗ từ khu vực cửa nhà đến lam gỗ che nắng khu vực tầng hai ba đã làm nên không gian đầy màu sắc thiên nhiên trong thiết kế.

Một kiểu thiết kế khác với những đường nét đương đại, phá cách khu vực mặt tiền kết hợp khối hộp sắc nét chính là điểm nhấn quan trọng trong thiết này. Không gian xanh được bố trí tại khu vực phía hai bên nhà, phần sân, khu vực ban công tầng hai và phần tiểu cảnh nhỏ tầng 3 giúp cho căn nhà cũng tràn ngập sắc xanh bao phủ. Điểm ấn tượng mạnh với thiết kế chính là phần cửa kính căn nhà đẹp được ốp gạch granit màu sẫm bao xung quanh, hay những phần gạch được ốp viền tạo thành khoảng không gian lạ mắt.
Phần cửa chính, cửa sổ khu vực mặt tiền làm hoàn toàn bằng kính, khung inox trắng cũng được xem là thiết kế tận dụng ánh sang cho không gian ngôi nhà, khiến ngôi nhà trở nên thông thoáng và rộng rãi.Tùy theo nhu cầu sử dụng cũng như sở thích cá nhân mà gia chủ có thể lựa chọn được những mẫu thiết kế nhà 2 tầng có giếng trời ưng ý.
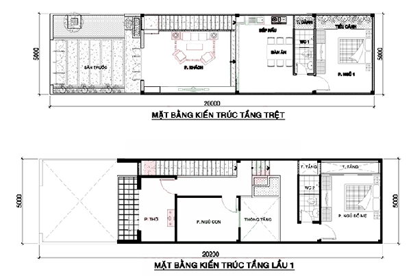
2. Mặt bằng kiến trúc ngôi nhà 2 tầng có giếng trời
Với thiết khoa học, bố trí hợp lý cùng với thiết kế giếng trời xuyên xuốt từ tầng trệt, đến lầu 1 cùng với tiểu cảnh cây xanh đã giúp ngôi nhà tràn ngập ánh sáng mà còn mang đến không gian trong lành trong chính ngôi nhà phố có diện tích hạn chế.

Ở tầng trệt được bố trí không gian sân trước, phòng khách, phòng bếp, ngủ cùng wc. Lên đến tầng lầu 1 là khoảng ban công nhỏ, tiếp đến phòng thời, 2 – 3 phòng ngủ tùy vào nhu cầu gia chủ và wc.
3. Thiết kế giếng trời với 2 tầng đẹp hợp lý
Sau đây chúng tôi sẽ tổng hợp cho các bạn những mẫu thiết kế giếng trời với 2 tầng đẹp, hợp lý và cực kỳ ấn tượng. Đối với các gia đình muốn tạo giếng trời bên trong ngôi nhà của mình có thể tham khảo những mẫu dưới đây nhé. Chắc chắn sẽ có vài mẫu các bạn ưng ý đó. Và nếu có góp ý cho những thiết kế này của chúng tôi hãy nhanh tay bình luận để chúng ta cùng trao đổi về thiết kế giếng trời với 2 tầng đẹp ngay nhé.

Để có thể hình dung rõ hơn về thiết kế giếng trời trong ngôi nhà 2 tầng thì bản vẽ mặt cắt như vật giúp hiểu rõ hơn về cách bố trí. Bản vẽ đóng một vai trò cực kỳ quan trọng đối với cảnh quan chung của 1 ngôi nhà. Nên các bạn hãy lưu ý đối với các bản vẽ này nhé.

Giếng trời với mục đích lưu thông không khí trong nhà giúp cho ngôi nhà trở nên mát mẻ và tạo không gian xanh mát mà giếng trời bố trí ở khu vực cầu thang, nơi lưu thông khí chủ yếu trong ngôi nhà. Hay gia chủ có thể lựa chọn vị trí ở khu vực cuối nhà, giữa nhà tùy thuộc vào nhu cầu sử dụng và tính toán hợp lý hiệu quả nhất đón được gió trời, tạo hiệu quả tối ưu nhất trong việc đón ánh sáng tự nhiên.

Phần tiểu cảnh được sử dụng ngay dưới giếng trời góp phần tạo nên không gian xanh mát trong ngôi nhà. Với thiết giếng trời trong ngôi nhà này thì cây xanh và mặt nước bố trí giúp gia chủ đón được ánh sáng, luồng gió mỗi khi thổi vào nhà thông qua hồ nước giúp không gian nhà trở nên mát hơn và xanh trong hơn rất nhiều.

Nếu không thì một khu vườn nhỏ xinh được bố trí trong nhà liệu có phải là ý tưởng hay và hấp dẫn. Từ những thiết kế mặt tiền ngôi nhà cho thấy diện tích để có thể làm nên một không gian khu vườn là không thể có. Vậy không làm ở mặt đất thì ngay trong không gian nhà bạn chẳng phải hợp lý hay sao.
Không cần quá cầu kỳ, việc tạo nên không gian nhỏ với những cây hoa cây hoa nhỏ kêt hợp với cỏ xanh mướt, phía trên là phần gạch được thiết kế để gia chủ có thể ra đứng giữa không gian vườn của mình mà ngắm nhìn thiên nhiên đang hòa vào ngôi nhà của mình. Đây chắc chắn là khoảng không gian được gia chủ thích nhất trong ngôi nhà và dành phần lớn thời gian để ngắm nhìn.

Một cách bố trí ở khu vực hành lang nối liền từ bếp ra cũng là ý tưởng thú vị bởi lẽ không gian bếp thường là nơi kín và bó hẹp trong không gian nhỏ. Vậy tại sao không phá bỏ khoảng cách không gian ấy bằng việc thiết kế giếng trời để mỗi lần thành viên trong gia đình quây quần bên mâm cơm đều có thể tận hưởng một không gian xanh, vừa có thể thưởng thức món ăn ngon.

Một không gian xanh với giếng trời nằm ngay tại khu vực phòng khách của gia đình. Việc đặt không gian xanh tại vị trí này giúp cho ngôi nhà hòa vào với thiên nhiên, không gian phòng khách tràn ngập ánh sáng với với sắc xanh của hoa cỏ. Những bị khách tới chơi nhà còn có thể ngắm nhìn không gian này với sự thích thú không ngừng.

Nếu như không gian nhà bạn được thiết kế không gian mở giữa phòng khách và bếp thì tại sao không lựa chọn bố trí cả hai không gian xanh vừa ở bếp lại vừa ở phòng khách như thiết kế trên đây. Giếng trời ở trường hợp này cũng được bố trí rộng hơn so với bình thường, kéo dài hơn và hãy thử nhìn hiệu quả mà nó tạo ra.

Đúng vậy chính là không gian tràn ngập săc xanh, vô cùng thoáng rộng và hết sức “chill”. Bạn sẽ chẳng thể nghĩ được tại sao trong chính ngôi nhà nhỏ của mình, giữa lòng thành phố đầy nhộn nhịp ấy, bạn lại có thể tìm thấy không gian yên bình đến thế. Chỉ bấy nhiêu thôi cũng đủ giúp bạn có động lực về nhà sớm hơn mỗi ngày.

Một cách thiết kế nữa cho không gian xanh kết hợp giếng trời là bố trí tại khu vực phía chân cầu thang. Phần lớn các ngôi nhà đều bỏ trống phần diện này mà chưa biết cách khai phá hết.

Thay vì để trống hay bố trí những tủ kệ đựng đồ thì không gian nho nhỏ với cây xanh và tiểu cảnh liên quan nước chắc chắn khiến gia đình bạn có điểm nhấn thú vị. Chỉ cần hòa mình không gian ấy, lắng nghe tiếng nước róc rách chạy giúp mọi căng thẳng đều tan biến.

Ngoài ra có thể bố trí trực tiếp tiểu cảnh trong chính ngôi nhà để giúp ngôi nhà của bạn hòa vào thiên nhiên hơn, đồng nhất với nội thất đang được sử dụng trong ngôi nhà. Đây cũng sẽ là một xu hướng để con người đến gần hơn với thiên nhiên.
Trên đây là những mẫu nhà 2 tầng có giếng trời đẹp nhất mà chúng tôi tổng hợp lại để độc giả có cái nhìn khách quan nhất trong việc lựa chọn mẫu phù hơp với gia đình mình. Nếu phù hợp và ưng mẫu nhà nào hãy liên hệ với chúng tôi ngay nhé!
Bạn muốn xem thêm:
































