Tư vấn thiết kế nhà phố 2 tầng 5x20m, điều mà nhiều người bận tâm là với diện tích lô đất nhỏ như vậy không biết làm cách làm để thiết kế một căn nhà phố đơn giản, nhưng vẫn đủ công năng sử dụng, không gian sống thoải mái…
Để xây dựng mẫu nhà phố hiện đại 2 tầng diện tích nhỏ ở thành phố, hay khu vực nông thôn thị trấn được điều quan trọng là bạn phải nghiên cứu nhu cầu sử dụng, chức năng của mỗi phòng, chia ra từng khu vực để thuận tiện cho việc sinh hoạt của gia đình.

Tư vấn thiết kế nhà phố 2 tầng đẹp.
Để tạo nên một kiến trúc đẹp đòi hỏi kiến trúc sư và chủ nhà bàn bạc để lên phương án thi công phù hợp, tạo sự độc đáo, mới mẽ tùy theo kinh tế và sở thích của mỗi người. Đi theo xu hướng hiện đại, không lỗi thời, tạo lên một phong cách riêng của gia chủ đó mà điều ai ai cũng cần phải nắm rõ.

Mẫu nhà 2 tầng với diện tích nhỏ.
Do đó để quý khách có thể hình dung, hôm nay chúng tôi xin gửi tới mẫu nhà 2 tầng đẹp diện tích 5x20m, căn nhà có thiết kế khá đẹp mắt, đầy đủ công năng sử dụng cho gia đình đông thành viên, kiến trúc tạo sự mới mẽ trong cách bài trí không gian lẫn phân chia khu vực rõ ràng.
♣ Thông tin thiết kế nhà phố nhỏ xinh 2 tầng 5x20m:
- Kiến trúc: Nhà phố 2 tầng mái thái lợp ngói.
- Diện tích đất: 5×20= 100m2
- Diện tích thiết kế – thi công: 5×17,5= 87,5m2
- Chủ đầu tư: Anh Phạm Văn Đồng
- Địa chỉ: 160 Đường Mồi – Thị Xã Dĩ An – Bình Dương
- Báo giá xây nhà trọn gói cơ bản : 3,5 triệu /m2

Mặt bằng phía trước.

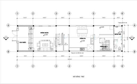
Mặt bằng tầng 1.

Mặt bằng tầng 2.

Mặt cắt của toàn bộ căn nhà,
♣ Công căn sử dụng kiểu nhà đẹp:
- Tầng 1: Không gian tầng này được bố trí 1 phòng khách – 1 phòng ngủ – nhà bếp – nhà vệ sinh. Chúng tôi đã chừa ra 2,5m để làm sân trước.
- Tầng 2: Tầng này có 3 phòng ngủ – nhà vệ sinh – phòng sinh hoạt chung. Phía ngoài ban công có diện tích cũng khá rộng, có thể bố trí thêm cây cảnh, hoa lá….

Phòng khách trang trí không gian hiện đại, tạo sự sinh động.

Nhà bếp thiết kế liên thông với phòng ăn, tạo sự rộng rãi. cách bố trí nội thất khá đẹp.

Nhằm tối ưu cho nhà diện tích nhỏ, nhà vệ sinh được thiết kế để tránh tốn diện tích – một bên là giếng trời.

Khu vực ban công được thiết kế khu tiểu cảnh sinh động, tạo nên không gian thoáng mát.
Với cách tư vấn thiết kế nhà phố 2 tầng này rất phù với gia đình muốn xây dựng cho mình 1 căn nhà có diện tích nhỏ. Dù diện tích không rộng nhưng mẫu nhà phố 2 tầng này vẫn tạo sự thoải mái trong sinh hoạt của gia đình, mang đến không gian sống lý tưởng.
































