Bạn là người chủ gia đình? Bạn đang băn khoăn tìm cho tổ ấm của mình một mẫu nhà sang trọng, hiện đại và tiện nghi nhất? Tuy nhiên thị trường xây dựng hiện nay rất da dạng các loại hình nhà ở. Vậy đâu mới là giải pháp tốt nhất mà quý gia chủ đang tìm kiếm? Chúng tôi xin gửi đến mẫu nhà 3 tầng 6x20m đáp ứng đầy đủ mọi nhu cầu cần thiết mà các quý đối tác đang mong đợi.
Tìm kiếm những phối cảnh đẹp nhất cho mẫu nhà 3 tầng 6x20m
Phối cảnh chính là hiện thực hóa của bản vẽ thiết kế. Bản vẽ chi tiết cụ thể sẽ cho ra những phối cảnh chuẩn tỉ lệ vàng và hoàn hảo nhất có thế. Có thể bạn không thuộc giới chuyên môi nên xem bản vẽ đôi chỗ không hiểu nhưng khi nhìn vào phối cảnh thì chúng ta mới càng thấy rõ hơn cả vẻ đẹp của kiến trúc.

Chẳng hạn như ngôi nhà mà các quý đối tác đang chiêm ngưỡng. Có mấy ai biết được rằng nó đơn giản chỉ được gọi với danh xưng giản dị mẫu nhà 3 tầng đẹp trên diện tích 6x20m. đẹp dù rất sang trọng mà chi phí lại phù hợp bởi sự thiết kế khéo léo. Việc lựa chọn cửa nhôm kính càng làm cho ngôi nhà thêm bền đẹp, sáng sủa và tiết kiệm được khá nhiều so với cửa gỗ. Đặc biệt là kết cấu mái thái phân tầng rất lịch sự đẳng cấp và mang đến cho ngôi nhà sự vững chắc kiên cố. Sự khéo léo còn được thể hiện cả trong việc lựa chọn cây cảnh tô điểm cho ban công. Những tán lá hình quạt xòe bóng mát như chim công đang múa thêm nổi bật trên cái nền sơn trắng kiêu sa.

Một kiến trúc độc đáo đầy tính nghệ thuật với một khooid hình tam giác ôm trọn lấy tầng 3. Một nửa diện tích tầng 3 dành riêng là khu vực “ trồng vườn” vô cùng xanh mát cho bạn thỏa đam mê tận hưởng bầu không khí tự nhiên. Chưa đủ, ở mỗi tầng ban công được thiết kế chờm hẳn ra ngoài để làm bồn cây cảnh tiện lợi. Thêm vaoof đó cửa chính của mỗi tầng đều là mẫu cửa 4 cánh mở lùa nên cả mặt bằng khi mở cửa sẽ rất thoáng sáng và rộng rãi.

Khi bạn đã quá thân quen với mái thái thì tại sao không thử với nhà 3 tầng mái dốc như thế này. Với kiểu mái dốc sẽ giúp thoát nước mưa nhanh nhất trong tất cả các loại mái, hơn nữa lại cô cùng bền chắc vì là kiểu mái đổ bê tông không phải lo lắng về lốc mái hay sụp mái. Ngoài ra mặt tiền của mỗi tầng đều được thiết kế rộng và dùng kính trong suốt làm lan can nên trong nhà sẽ rất sáng sủa dễ chịu.

Một phong cách nhà biệt thự sang trong trong mẫu nhà 3 tầng 6x20m này. Toàn bộ trước và sau công trình được bao phủ bởi lớp sơn màu trắng tinh tế kết hợp cùng màu xanh của cây cối xung quanh mang đến cảm giác quý tộc trong chính nơi ở của bạn. Bên cạnh đó hai chiếc cột chạy thẳng từ tầng 2 lên tầng 3 nâng đỡ cho ngôi nhà thêm vững chắc kiên cố mà không hề bị thô. Đây chính là tài năng khéo léo trong việc thiết kế của kiến trúc sư.
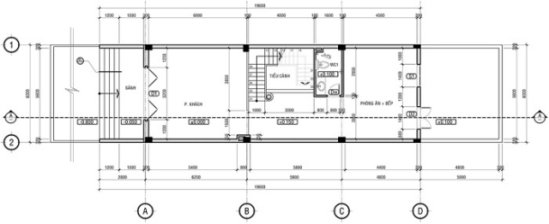
Bản vẽ thiết kế nhà 3 tầng 6x20m chi tiết và đầy đủ nhất
Bản vẽ thiết kế là một phần quan trọng không thể thiếu trong quá trình thi công. Bản vẽ càng cụ thể chi tiết bao nhiêu thì ngôi nhà càng được thi công nhanh chóng và tiết kiệm chi phí bấy nhiêu. Dưới đây là những chia sẻ đầy đủ nhất về mặt bằng 3 tầng nhà ở 6x20m mà quý bạn không thể bỏ qua.

Ngoại thất nhà ống 3 tầng có kết cấu đơn giản nhìn thoáng qua, ngôi nhà như được phân chia thành hai phần khác nhau. Tầng 1 khối có khối vuông bao trọn mặt tiền tầng một và thêm một khối vuông khách chạy thẳng lên tầng 2 và 3. 6 x 20 là diện tích phổ biến của nhà ống 3 tầng hiện nay. Như vậy mặt bằng sẽ dễ dàng phân chia hợp lý đúng kích thước tiêu chuẩn và nhu cầu sử dụng của mỗi phòng. Việc của quý đối tác chính là lên ý tưởng còn thiết kế sao cho phù hợp, tiện ích và tiết kiệm nhất hãy để cho đội ngũ kiến trúc sư đầy kinh nghiệm thiết kế.

Trước tiên là phòng khách có chức năng đáp ứng nhu cầu tiếp khách cũng như thư giãn cho những thành viên nên phòng này sẽ có diện tích rộng nhất ngôi nhà. Tiếp đến là cầu thang được đặt ngay chính giữa ngôi nhà phân chia thành hai khu: phòng khách và phòng bếp ăn. Trong phòng bếp ăn có thêm một nhà vệ sinh chung cho gia đình cũng như khách khứa đến sử dụng. Cuối nhà bếp có cửa ra sân sau rất thoáng đãng, mát mẻ.

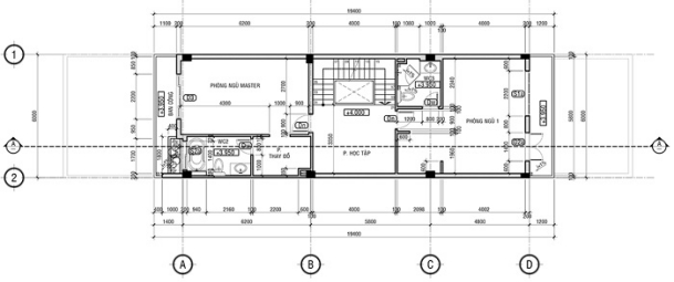
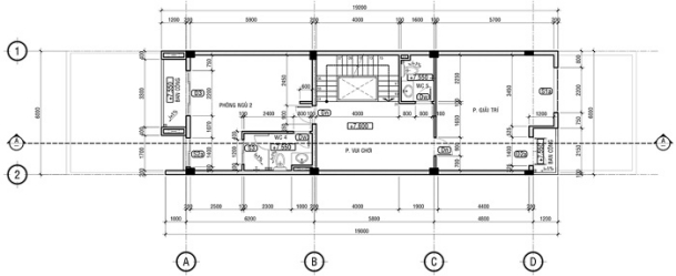
Lên đến mặt bằng tầng 2 thiết kế với 2 phòng ngủ diện tích rộng có có lắp đặt nhà vệ sinh khép kín bên trong. Cả hai căn phòng đều thông thoáng nhờ được đón ánh sáng, gió qua hệ thống ban công và thông tầng phía sau nhà. Ngoài ra ở tầng 2 còn có một phòng thư giãn massgga riêng cho gia đình mà những đứa trẻ rất thích thú. Còn tầng 3 sở hữu sân trước được che mái sẽ làm mát sân và làm chỗ để xe cũng rất tiện lợi. Một gian sang trọng và thoáng sáng nhất được đặt làm phòng thờ riêng với vị trí cao nhất của ngôi nhà. Bên cạnh là một phòng ngủ có nhà vệ sinh riêng. Phần diện tích còn lại gia chủ tận dụng để đặt một nhà kho nhỏ và một sân phơi đồ.

Ngôi nhà này mang sự hài hòa giữa mái bằng và mái thái nên rất kiên cố lại giúp chống nắng và thoát nước rất tốt. Mái thái trước sân để làm mái che cho một khoảng rộng và làm nổi bật, sang trọng cho mặt tiền. Còn phần mái bằng phía sau để sắp đặt bồn nước cũng như năng lượng mặt trời rất an toàn, tiện lợi cho gia đình. Mẫu nhà 3 tầng 6x20m tiện nghi rất phù hợp với những gia đình hai thế hệ bố mẹ và con cái. Diện tích mỗi không gian đều được kiến trúc sư tính toán chi tiết và phân bố khoa học. Từ cách phối cảnh cho ngôi nhà, cách sắp xếp nội thất cho các phòng đều phát huy tối đa công năng sử dụng.
Nội thất một phần quan trọng không thể thiếu của mẫu nhà 3 tầng 6x20m
Một câu hỏi lớn đặt ra cho chúng ta là một ngôi nhà sẽ ra sao nếu như thiếu đi nội thất. Nếu nước sơn, kiến trúc ngoại thất như một lớp áo đẹp bên ngoài thì xin thưa rằng nội thất chính là cái hồn bên trong làm nên sự hoàn chỉnh cần phải có của một ngôi nhà đích thực.

Dù nhà to hay nhỏ, thiết kế theo lối cổ điển hay truyền thống thì phòng khách vẫn là không gian không thể thiếu. Điểm ấn tượng nhất của phòng khách dưới đây chính là mẫu lan can cầu thanh cổ điển tinh xảo được đặt ngay trong không gian đầy tính hiện đại. Bộ ghế sofa nệm trắng đơn giản mà tinh tế. Một chiếc kệ ti vi cũng không có gì đặc sắc. Nhưng khi kết hợp tất cả nó lại ra một phòng khách đẹp, hiện đại và ngăn nắp như thế này.

Thêm một phòng khách mang phong cách hoàng gia sang trọng cho quý cha chủ lựa chọn. Để làm nổi bật không gian nhà mình, màu đỏ mận của bàn ghế xưa nay chưa bao giờ lỗi mốt. Thêm vào đó hai chiếc gương cân xứng ở hai bên thay cho những ánh đèn trang trí để làm cho căn phòng thêm sáng sủa. Ngay dưới chân cầu thang được thiết một vườn cây nhân tạo đẹp như cổ tích khiến bất kì vị khách nào cũng không thể dời mắt khỏi căn phòng này.

Còn đây chính là căn phòng ngủ duyên dáng dành cho những ai yêu thích không gian yên tĩnh. Được thiết kế thêm cửa sổ rộng nhìn ra bên ngoài giúp cho nơi đây thêm sự thoáng mát và sáng sửa. Với những cô gái có tâm hồn tinh tế hẳn sẽ rất thích luôn nhìn cô cửa thả hồn mơ mộng. Đặc biệt là tủ quần áo được thiết kế rất ấn tượng, gia chủ chỉ việc lắp thêm cánh tủ là đã có một chiếc tủ chắc chắn, bền đẹp và gọn gàng ngay trong phòng.

Và đây là một phòng vệ sinh phụ khép kín, toàn bộ vách ngăn làm từ kính trong suốt mà hiện nay được lắp đặt rất nhiều. Mọi đồ dùng trong phòng vệ sinh được đề những ngăn kéo tủ rất cẩn thận, ngăn nắp lại không mất nhiều diện tích. Đây là một thiết kế rất thông minh và tiện ích mà gia đình nào cũng nên sở hữu.
Nhờ có đội ngũ chuyên môn xây dựng tâm huyết, trung thực, giàu kinh nghiệm mà việc xây nhà dựng cửa của các quý gia chủ giờ đây trở nên trở nên rất dễ dàng. Đó cũng là điều mà xaydungso luôn tự hào khi giới thiệu đến các quý đối tác cả trong và ngoài nước. Kính chúc các gia chủ sẽ sở hữu cho mình được ngôi nhà ưng ý nhất.
Xem thêm:
Mẫu nhà 3 tầng diện tích 100m2


































