Xây dựng biệt thự một trong những lĩnh vực xây dựng đang rất được phát triển trong thời gian gần đây và cũng có xu hướng phát triển mạnh trong tương lai. Bạn đang muốn tìm hiểu về mẫu nhà biệt thự đẹp 7x20m với những băn khoăn, lo lắng, điều này rất dễ hiểu bởi công trình biệt thự là một trong những công trình lớn. Hiểu được điều này qua bài viết của chúng tôi hôm nay sẽ cung cấp đến các chủ đầu tư tất tần tật về mẫu nhà biệt thự 7x20m đẹp nhất năm 2021.
Hình ảnh 3D mẫu biệt thự 7x20m đẹp nhất năm 2021

Hiện nay khi nhu cầu xây dựng biệt thự tăng cao thì đáp ứng đã có rất nhiều đơn vị thiết kế thi công cung cấp đến các chủ đầu tư những mẫu mã, kiểu dáng đa dạng, phong phú. Mẫu thiết kế trên đây của chúng tôi là một điển hình cụ thể cho sự đa dạng ấy. Ngôi nhà được thiết kế và tập chung hướng đến một không gian sống chan hòa với thiên nhiên khi khuôn viên xung quanh nhà chú trọng đến sự mộc mạc, gần gũi với thiên nhiên. Bản thân căn nhà 2 tầng 7x20m cũng được thiết kế với rất nhiều ô cửa kính lớn, điều này khiến cho không gian sống không chỉ hiện đại mà còn giúp cho không gian luôn được ngập tràn ánh sáng từ thiên nhiên.

Kiểu dáng mái chữ A chưa bao giờ là lỗi thời và chắc chắn trong tương lai thì kiểu dáng này vẫn thu hút được mọi ánh nhìn từ phía các chủ đầu tư. Bởi lẽ ngôi biệt thự mini này mang đến sự thanh thoát, nhẹ nhàng nhưng khuôn viên hiện đại bên trong thì chắc chắn sẽ khiến cho tất cả các chủ đầu tư phải cảm thấy bô cùng hài lòng. Hơn nữa gam màu trắng sáng chủ đạo càng làm nổi bật được nội thất bên trong của căn biệt thự. Để tiết kiệm không gian sống thì tốt hơn hết bạn nên chọn những món đồ nội thất có diện tích nhỏ hoặc vừa để góp phần mở rộng không gian.

Bạn có nhu cầu xây dựng một căn biệt thự tại thành phố, tận dụng hết quỹ đất là 7x20m cho xây dựng nhà ở mà không cần sân vườn. Để đảm bảo không gian sống trong lành thì ở khuôn viên trong nhà và khu vực lan can, sân thượng được trồng nhiều cây xanh. Ở tầng trệt ngôi nhà được bao bọc bởi một bộ cửa sắt được sơn tĩnh điện với màu nâu trầm sang trọng, bền đẹp cùng thời gian, tại mặt tiền tầng 2 chúng ta thấy điểm nhấn dễ dàng nhận thấy đó chính là lan can kính cường lực trong suốt vừa mở rộng không gian vừa mang đến một vẻ đẹp hiện đại nơi tầng 2 cho căn nhà. Còn khu vực tầng 3 được thiết kế phần hiên rộng để trồng cây xanh, có mái che tiện lợi, bạn có thể đặt một bàn trà nhỏ xinh nơi đây để tranh thủ thư giãn trong khoảng thời gian rảnh rỗi.

Có thể nói phối cảnh bên trên là hình mẫu cũng là ước mơ của những ai mong muốn sở hữu một ngôi nhà hiện đại. Hãy đến với những công trình sau đây mà chúng tôi rất mong quý độc giả tham khảo và lựa chon. Kiểu dáng biệt thự 7x20m theo kiểu kiến trúc hiện đại và đẹp nhất, có thể nói đây là mẫu nhà được ưa chuộng nhất hiện nay. Vâng! Xin thưa với các quý gia chủ dù bạn đang ở đâu thì bóng dáng của những ngôi nhà ông cao tầng cũng luôn xuất hiện. Nó trở thành “đặc sản” của công trình nhà ở trong những năm gần đây và mãi sau này vẫn vậy.
Mặt bằng tổng thể nội thất căn biệt thự 7x20m đẹp nhất năm 2021

Mặt bằng tổng thể trên đây của chúng tôi được lấy từ một căn nhà ống mái bằng. Rất cụ thể, rất chi tiết bạn có thể dễ dàng chiêm ngưỡng được toàn bộ không gian nội thất của căn nhà. Tại tầng trệt của ngôi biệt thự này chúng ta nhận thấy đã phát huy tối đa công năng sử dụng. Để đảm bảo không gian sinh hoạt luôn được thoáng đãng, thoải mái thì mẫu mặt bằng này có sự sắp xếp, lựa chọn những nội thất cơ bản để không gian không bị quá chật trội khi tầng trệt có đến 2 phòng ngủ. Như chúng ta nhận thấy ở mỗi phòng từ phòng khách đến phòng ngủ đều có sự sắp xếp nội thất rất hợp lý, không cần quá nhiều đồ, cũng không cần quá đồ sộ mà chỉ cần đảm bảo sự đầy đủ tiện nghi và diện tích nội thất vừa phải là tự khắc chúng ta có một không gian sống tuyệt vời.

Ở bản vẽ trên đây của chúng tôi bạn có thể thấy được sự chỉnh chu trong tổng thể mặt bằng nội thất căn biệt thự 7x20m. Không chỉ thể hiện sự rõ ràng cho từng phòng chức năng mà mỗi phòng còn được đặt ở những vị trí không chỉ đảm bảo công năng sử dụng mà còn đảm bảo cả yếu tố về phong thủy đây là điều mà bất cứ chủ đầu tư nào cũng quan tâm khi tiến hành xây dựng một công trình lớn như căn biệt thự 7x20m. Cha ông ta xưa nay có câu rằng “ Có thờ có thiêng – Có kiêng có lành” chính vì vậy khi lựa chọn được những vị trí hợp phong thủy sẽ giúp cho bạn và gia đình có cuộc sống yên bình, ấm no nhiều tài lộc...

Phối cảnh bản vẽ cho biệt thự 7x 20m đẹp nhất hiện nay

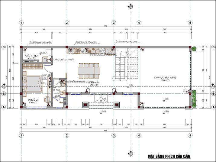
Căn biệt thự khi được xây dựng lên bạn không chỉ phục vụ cho nhu cầu sinh hoạt mà còn cả với mục đích kinh doanh. Điều này chúng ta thấy diễn ra ở hầu hết các ngôi nhà ở thành phố vì mỗi tấc đất ở thành phố đều được tận dụng để kinh doanh với các loại hình thức khác nhau. Bản vẽ của căn biệt thự 7x20m trên đây chính là minh chứng cho việc biệt thự 7x20m hoàn toàn có thể kết hợp vừa sinh hoạt vừa kinh doanh mà vẫn đảm bảo một không gian sống tiện nghi, hiện đại.
Khu vực tầng trệt bạn hoàn toàn có thể tận dụng để kinh doanh theo lĩnh vực mà mình đầu tư, ngoài ra theo kiểu thiết kế nhà ống thì ngoài kinh doanh bạn vẫn có thể thiết kế thêm cả phòng sinh hoạt chung. Khu vực các tầng lầu bạn có thể thiết kế làm khu vực cho không gian riêng tư như phòng ngủ cho các thành viên trong gia đình.

Tùy số lượng thành viên trong gia đình mà bạn lựa chọn số phòng ngủ cho phù hợp. Nếu còn dư phòng ngủ chưa sử dụng đến bạn đừng để không gian đó trống mà hãy để đó là một phòng đọc thư giãn có vẻ như đó là một ý tưởng rất hay. Còn gia đình bạn từ 4 đến 5 thành viên thì khi thiết kế biệt thự 7x20m theo bản vẽ trên đây thì vô cùng hợp lý, đảm bảo công năng sử dụng tuyệt vời.
Lựa chọn Xây Dựng Số để có được một nhà thầu uy tín
Bạn đã có ý tưởng cho một mẫu thiết kế biệt thự 7x20m. Tuy nhiên ý tưởng ấy của bạn cần phải có sự hoàn thiện của một kiến trúc sư tài năng và một nhà thầu thực thi ý tưởng của bạn. Tuy nhiên với sự phát triển mạnh mẽ của thị trường xây dựng hiện nay có rất nhiều đơn vị nhà thầu lớn nhỏ, có những nhà thầu kinh nghiệm lâu năm nhưng lại có những nhà thầu kinh nghiệm còn non trẻ. Hơn nữa đây lại là một công trình lớn vì là xây dựng biệt thự đòi hỏi cả độ kĩ thuật cao, chi phí lớn vì vậy bạn cần có sự lựa chọn kĩ lưỡng, lấy ý kiến từ nhiều nguồn khác nhau rồi mới đi đến quyết định tiến hành thi công. Tuy nhiên khi đến với Xây Dựng Số thì bạn hoàn toàn có thể đặt niềm tin tuyệt đối.

Chúng tôi sàn giao dịch thương mại Xây Dựng Số tự tin khẳng định rằng những đơn vị nhà thầu mà chúng tôi giới thiệu đến các chủ đầu tư đều là những đơn vị nhà thầu uy tín chất lượng, có bề dày về kinh nghiệm nhiều năm trong lĩnh vực xây dựng biệt thự. Tất cả những nhà thầu tại xây dựng số đều là những đơn vị được tuyển chọn thông qua sự kiểm duyệt của đội ngũ chuyên gia của sàn Xây Dựng Số, tất cả những nhà thầu tại đây đều có rất nhiều công trình xây dựng lớn với sự khẳng định tên tuổi nhận được phản hồi tích cực từ rất nhiều chủ đầu tư trên cả nước.
Trong quá trình xây dựng các nhà thầu tại Xây Dựng Số thì thường xuyên được đánh giá năng lực một cách cụ thể, rõ ràng qua đội ngũ chuyên gia kiến trúc sư của chính sàn giao dịch Xây Dựng Số và sự đánh giá năng lực của nhà thầu còn do chính các chủ đầu tư đã từng làm làm việc với các nhà thầu đưa ra lời đánh giá xác thực để bạn có thể đặt niềm tin tuyệt đối vào sàn giao dịch Xây Dựng Số.

Trên đây là những chia sẻ của chúng tôi về mẫu biệt thự 7x20m. Hi vọng với toàn bộ chia sẻ trên đây của chúng tôi sẽ giúp các chủ đầu tư trong việc thực hiện ước mơ xây dựng biệt thự 7x20m của gia đình mình trong tương lai được trọn vẹn, thành công.


































