Với diện tích 150m2, bạn hoàn toàn có thể xây cho gia đình mình một ngôi nhà đẹp và khang trang. Nhà cấp 4 là sự lựa chọn hàng đầu nếu bạn là người thích sự đơn giản nhưng sang trọng. Dưới đây là TOP 4 mẫu nhà cấp 4 diện tích 150m2 không chỉ tiện nghi, thoáng mát mà còn tinh tế mà Xây Dựng Số gửi đến bạn.
Mẫu nhà cấp 4 mái thái 150m2 đẹp

Mẫu nhà cấp 4 150 m2 mái thái thu hút với kiểu mái thả, thiết kế 2 mặt thoáng và bất đối xứng. Thay vì chọn màu mái ngói đỏ chúng tôi thiết kế mẫu nhà mái ngói xanh tím. Về thời gian sử dụng, màu xanh tím sẽ đảm bảo tính mới cũng như màu sắc nguyên bản lâu hơn so với các loại mái ngói sáng màu. Thay vì sử dụng cột vuông trước sảnh chính như thông thường. Kiến trúc sư sử dụng 4 cột trụ tròn nguyên khối. Ngoài ra, phần gạch nâu đen dưới chân cột tạo thế vững chãi. Phần chân tường được lát gạch cũng như đá bậc thang có màu nâu vàng nhạt. Trong khi đó, những bức tường trống được trang trí bằng những đường lõm ngang. Các họa tiết đã mang đến cho mẫu nhà đẹp hiệu quả thẩm mỹ khá cao. Đây là một ngôi nhà không thể bỏ qua nếu bạn đang tìm kiếm một thiết kế hiện đại và sôi động.

Mẫu nhà cấp 4 mái thái đẹp được thiết kế gồm 2 gian chính và phụ. Không gian vì thế được tổ chức khá thông thoáng và khoa học. Phòng khách hiện ra qua cửa chính, ngăn cách với bếp bằng vách ngăn gỗ. Phòng bếp được thiết kế gần phòng khách trong góc. Phòng ăn được thiết kế sát sảnh phụ vừa thông thoáng vừa thiết thực khi gia đình có việc. Từ gian giữa tiếp giáp với phòng khách và phòng ăn. Lần lượt, hành lang đã chuyển vào 3 phòng ngủ. Phòng ngủ lớn có WC riêng ngay gần bàn ăn và phòng khách. 2 phòng ngủ còn lại được thiết kế hướng vào phía trong của lô góc. Phòng vệ sinh chung được bố trí ở giữa 2 phòng ngủ. Cách bố trí không gian rất khéo léo. Tuy cùng một diện tích sàn nhưng các chức năng không gian khác biệt và không bị rối mắt. Chi phí đầu tư cho ngôi nhà này khoảng 1,2 tỷ USD.
Mẫu nhà cấp 4 diện tích 150m2 hiện đại

Thiết kế phối cảnh sẽ thể hiện một không gian sống cao cấp và thoáng mát. Thiết kế kiến trúc để tận dụng cảnh quan thiên nhiên của sân vườn. Tuy nhiên, thay vì mái ngói đỏ thì màu xám ghi vẫn giữ được nét thẩm mỹ theo thời gian. Tổng kinh phí đầu tư của dự án không quá 1,2 tỷ đồng. Mẫu nhà mái thái đẹp đặc biệt có phần cột tròn mềm mại thể hiện sự tinh tế, mềm mại sang trọng. Những đường nét nhẹ nhàng, những chú lùn cũng như mái vòm cong làm cho công trình trở nên tinh tế hơn. Ngôi nhà mang đến sự vững chãi, bề thế, nhẹ nhàng và uyển chuyển xen lẫn. Toàn bộ phần thân của bức tường công trình được trang trí bằng các đường gờ ngang. Đi cùng với thiết kế kiến trúc nhà mái thái được lợp ngói màu xám càng tôn lên sự trẻ trung và thăng tiến của mẫu nhà vườn mới. Công trình kiến trúc nhà vườn cấp 4 tiên tiến được lắp đặt hệ thống cửa nhôm Việt Pháp màu vân gỗ. Thiết kế hệ thống cửa xếp trượt, tôn thêm nét khỏe khoắn, vững chãi và trẻ trung hơn cho mẫu nhà vườn cấp 4 150 m2 hiện đại.

Từ sảnh chính vào mẫu nhà vườn cấp 4 cao cấp là phòng khách. Thiết kế liên thông đưa phòng thờ vào bên trong công trình. Từ gian trung tâm là phòng khách và phòng thờ, kiến trúc sư bên phải là phòng bếp và phòng ngủ 1. Phòng bếp được thiết kế sát tường mang lại sự thông thoáng, hợp phong thủy cho phòng ngủ. Phòng ngủ 1 thiết kế liền kề bố trí phòng thờ. Nhà vệ sinh chung nằm cạnh phòng ngủ 1 và có khu vực bếp cùng bàn trải nghiệm. Gian bên trái còn lại có 2 phòng ngủ. 1 phòng ngủ lớn có vệ sinh khép kín trong phòng ngủ. Xung quanh là 2 phòng ngủ nhỏ. Phần lớn không gian trước sảnh chính, sảnh phụ và cạnh nhà được thiết kế bồn hoa, tiểu cảnh. Sự liên kết chặt chẽ có cảnh quan sân vườn. Các không gian tiềm năng đan xen và hiện diện trong tất cả các không gian của công trình.
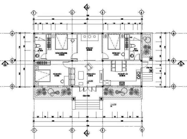
Mẫu nhà cấp 4 diện tích 150m2 chữ L

Mẫu nhà cấp 4 150 m2 này được thiết kế theo kiểu nhà ống. Để đảm bảo được phần lớn ánh sáng cho phần lớn ngôi nhà, các kiến trúc sư đã thiết kế nhà hình chữ L. Với một khoảng lùi nhỏ để làm nơi để xe ô tô, đồng thời tạo sự thông thoáng cho 'không gian. Các ô cửa kính nhỏ được bố trí dọc theo chiều dài của ngôi nhà để đảm bảo ánh sáng ngẫu nhiên có thể xuyên vào tất cả các phòng. Phần mái được thiết kế theo kiểu mái dốc giúp thoát nước mưa nhanh chóng và dễ dàng. Xung quanh mái còn được thiết kế lệch tầng giống như biệt thự tân cổ điển Châu Âu tạo nên sự sang trọng cho ngôi nhà. Bức tường được làm nổi bật bởi những đường nét nhỏ để tránh sự đơn điệu.
Cửa chính và cửa sổ được ốp gỗ hài hòa với kính trong suốt. Chính điểm này vừa giúp không gian thông thoáng vừa tạo nên vẻ đẹp sang trọng, hiện đại. Chân tường được ốp gạch men màu xanh nhạt tạo cảm giác chắc chắn nhưng không quá nặng nề. Chân tảng cao có bậc đã hư hỏng được ốp bằng gạch men sẫm màu.Với diện tích xây dựng 150m2, mẫu nhà cấp 4 3 phòng ngủ đáp ứng nhu cầu sử dụng của gia đình từ 5 đến 6 thành viên. Truyền thống gia đình Việt Nam thường sống với nhiều thế hệ đa dạng, bao gồm ông bà, cha mẹ và con cái. Vì vậy, dù thiết kế nhà cấp 4 nhưng vẫn đảm bảo đáp ứng được nhu cầu công năng. Căn nhà cấp 4 này có chi phí dự kiến khoảng 500 - 600 triệu euro với nội thất cơ bản.

Công năng đất của mẫu nhà cấp 4 gồm sảnh chính. Phòng khách được thiết kế ngay gần sảnh chính. Phòng thờ được ngăn cách sau phòng khách bằng vách trang trí nên không gian thông thoáng. Phòng bếp kết hợp phòng ăn giúp bạn có thể di chuyển, thao tác khi nấu nướng. Phòng ngủ lớn được thiết kế vệ sinh khép kín. 2 phòng ngủ nhỏ có phòng vệ sinh chung và phòng giặt ở phía sau nhà. Vì vậy, thiết thực cho trưng bày cũng như cho cuộc sống.
Mẫu nhà cấp 4 diện tích 150m2 có 3 phòng ngủ sang trọng

Kiến trúc mái thái hiện đại đã trở thành xu hướng thiết kế quen thuộc trong các thiết kế nhà ở nông thôn hiện nay. Kiến trúc nhà mái thái hiện đại có tính thẩm mỹ cao, không chỉ chống nóng, chống thấm mà còn có tuổi thọ lâu dài, do kỹ thuật thi công đổ bê tông cốt thép trước ngói. Linh hoạt trong quan điểm thiết kế kiến trúc, đáp ứng thị hiếu thẩm mỹ của nhiều chủ đầu tư. Kiến trúc sư có thể lên ý tưởng thiết kế, chủ đầu tư có quyền xây dựng không gian sống hiện đại, tiện nghi. Kiến trúc nhà 3 phòng ngủ có góc nhìn đơn giản, thiết kế hiện đại, tươi mới với hình thức vững chãi, bố cục chặt chẽ. Toàn bộ chân tường được ốp đá cao gần 80 tấc, mặt tiền kết hợp với các tiểu cảnh trang trí hiện đại. Sân thượng được lát gạch một màu ghi xám, hiên chính rộng thoáng mát. Mài phụ phía trước mặt tiền được chống đỡ bởi 2 trụ vuông, các đường gờ không tập trung ở thân tường, chỉ đỡ đơn giản ở chân và đầu cột.
Không gian ngoại thất độc đáo và cuốn hút, phong phú và độc đáo với thiết kế sọc ngang, mái hiên, mái thái và các trụ đua mang đến dáng vẻ kiến trúc độc đáo, xóa bỏ sự đơn điệu, nhàm chán và khuôn mẫu của mẫu nhà cấp 4 rộng 150 m2. Kiến trúc mái được thiết kế mái giật cấp nhẹ, mái chữ A, với khối nét rộng, nâng cao độ chắc chắn và diện tích của công trình nhà cấp 4 mái thái đơn giản và khoa học. Sự hời hợt gắn liền với những đường trơn, tức là những đường gờ, phào chỉ xuyên tường. Được đan xen bằng những khối tường gạch giả gỗ tạo nên một không gian kiến trúc ngoại thất ấn tượng.

Kiến trúc mái thái với không gian sân vườn hiện đại, không gian thoáng mát hơn. Thay vì sử dụng gạch đỏ để lát sân, kiến trúc sư đã thiết kế sân bằng gạch lát nền màu ghi xám, ở phần tiếp giáp với tường bao thể hiện sự vững chãi, chắc chắn của công trình nhà cấp 4 mái thái. Tường nhà được tạo điểm nhấn bằng gam màu vàng nâu càng làm tăng thêm nét tinh tế cho nét độc đáo của mẫu nhà cấp 4 đơn giản. Trên màu đỏ tươi truyền thống của mái ngói, màu trắng trang nhã kết hợp với màu vàng đậm, nâu đỏ của mặt tiền và màu nâu sẫm của khung cửa nhôm kính làm nổi bật các chi tiết. Sự đa dạng về màu sắc và đường nét giúp mẫu nhà cấp 4 diện tích 150m2 cuốn hút từ mọi góc nhìn và hiện lên với dáng vẻ hài hòa, tinh tế. Đứng trước mẫu thiết kế nhà cấp 4 mái thái hiện đại cảm thấy hài lòng và ngọt ngào. Chủ đầu tư hoàn toàn đồng ý với phương án thiết kế sơ bộ mà chúng tôi đã trình bày trong buổi làm việc đầu tiên.
Trên đây là mẫu nhà cấp 4 diện tích 150m2 đẹp hiện đại mà Xây Dựng Số gửi đến bạn. Hy vọng bạn sẽ có nhiều ý tưởng hay cho ngôi nhà sắp tới của mình nhé!









