File Cad mẫu nhà đẹp 1 tầng 3 phòng ngủ diện tích 170m2. Được rất nhiều bạn hỏi về mẫu nhà 1 tầng 3 phòng ngủ này, hôm nay mình có sưu tầm thông tin từ diễn đàn kiến trúc xây dựng việt phương án thiết kế nhà đẹp 1 tầng, cùng tham khảo và cho vài ý kiến của riêng bạn nhé!
Về cá nhân của mình thì về đánh giá mẫu nhà đẹp này vẫn chưa được kết hợp tổng thể kết cấu và phong cách hiện đại dành cho nhiều người. Tuy nhiên về mặt khác thì nó thật sự phù hợp với một số người lớn tuổi, không ưa cầu kỳ, thích sự đơn giản và theo lối kiến trúc truyền thống.

Mẫu nhà 1 tầng này nằm trên khu đất 175 m2, về mặt đánh giá tổng thể thì lô đất rất vuông vắn, vị trí đẹp để xây dựng một căn nhà để ở. Do đây là ở vùng nông thôn nên có sự liên kết giữa cây xanh và nền cỏ tươi mát, luôn tạo sự thoáng mát cho căn nhà.
♣ Bản vẽ kiến trúc + kết cấu:

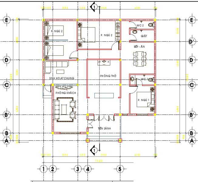
♣ Bản vẽ mặt bằng:
Mẫu nhà đẹp này được kiến trúc sư thiết kế khá vuông vắn với bố trí mặt bằng rộng 13.4m, chiều sâu 13.6m, chia thành 3 gian. Lối đi vào sãnh chính là phòng thờ – phòng khách – bếp + ăn – nhà vệ sinh và 3 phòng ngủ.

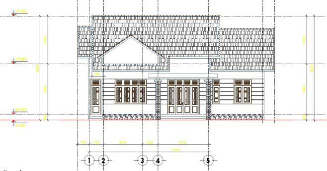
♣ Bản vẽ mặt đứng chính:
Thiết kế chân móng trát giả đá hoặc ốp đá chẻ tự nhiên, Trụ sãnh ốp gạch, tường kẽ roan, sơn…Mái nhà được lợp ngói máy loại 11v/1m2.

Có thể nói đây là bản vẽ mẫu nhà 1 tầng 3 phòng ngủ khá đẹp về kết cấu lẫn bố trí không gian, thiết kế tuy không mang được phong cách hiện đại, nó vẫn toát lên sự độc đáo riêng biệt. Do đó kiểu nhà đơn giản không quá cầu kỳ này chi phí theo đó cũng rẽ hơn rất nhiều.
Tin 24h qua:
- Mẫu nhà cấp 4 mái thái 3 phòng ngủ
- Nhà cấp 4 mái thái 3 phòng ngủ kinh phí 900 triệu
- Mẫu nhà cấp 4 có 3 phòng ngủ diện tích 8.5×12.5m


































