Ngày nay những ngôi nhà Tân cổ điển kết hợp với hiện đại đã trở thành xu hướng trong nhiều năm nay. Rất nhiều người đã chọn cho mình xu hướng nhà này để xây dựng tổ ấm cho mình. Hôm nay, chúng tôi xin được giới thiệu đến các bạn mẫu nhà ống 3 tầng mặt tiền 4m phong cách Tân cổ điển hợp phong thủy. Sự khéo léo trong lối kiến trúc mới, 1 chút của phong cách cổ điển kết hợp với hiện đại tạo nên một phong cách hoàn toàn mới, độc đáo và thu hút hơn rất nhiều. Tinh tế trong thiết kế đã tạo nên một mặt tiền vô cùng ấn tượng tạo nên giá trị cao về nghệ thuật thẩm mỹ.

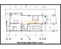
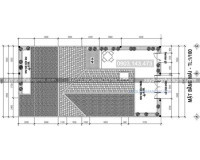
Chủ dự án đầu tư ngôi nhà này là anh Trần Đình Vinh địa chỉ tại quận Thủ Đức thành phố Hồ Chí Minh. Với diện tích lô đất là 68m2, diện tích thiết kế và xây dựng là 52m2 anh mong muốn sở hữu một ngôi nhà ống 3 tầng với phong cách hiện đại, sang trọng. Về công năng sử dụng như sau: Tầng 1 bao gồm phòng ăn và nhà bếp, 1 wc chung, nhà kho, giếng trời. Tầng 2 bao gồm 2 phòng ngủ master khép kín, phòng sinh hoạt chung. Tầng 3 bao gồm 2 phòng ngủ master. Tầng tum bao gồm phòng thờ, phòng giặt, sân phơi.

Nhà ống đẹp phong cách Tân cổ điển không chỉ gây ấn tượng về mặt tiền mà còn tạo nên những giá trị phong thủy truyền thống với sự hiện đại của công năng và nội thất gia đình. Thiết kế phong thủy căn phòng luôn là nỗi lo lắng của nhiều gia đình. Vì thế chúng tôi đã bố trí tại các phi công cát lợi theo bát quái ngũ hành dựa trên phương vị lô đất.

Giá trị phong thủy luôn là yếu tố quan trọng, qua các hình ảnh nội thất và bản vẽ mẫu nhà ống đẹp 3 tầng để lột tả hết những giá trị mà bản thiết kế này mang lại. Trong căn nhà này chúng tôi đã bố trí phong thủy rất phù hợp từ hệ thống các phòng cho đến khu vệ sinh, nhà thờ, sân thượng.
Quy tắc liên hoàn kết nối đã được chúng tôi áp dụng tại ngôi nhà này. Quy tắc đó như thế nào, đó là sự liên kết chặt chẽ của hệ thống các phòng, tạo nên không gian mở thoáng và rộng hơn. Phòng khách lâu nay vẫn là nơi rất quan trọng trong 1 gia đình vì đó là nơi tiếp khách. Riêng phòng bếp và phòng ăn lại là nơi quây quần của cả nhà sau những giờ làm việc nên màu sắc cũng phải phù hợp.



Bố trí giếng trời cuối sảnh để tiếp nhận ánh sáng và không khí tự nhiên được tốt hơn. Sản sinh ra một lượng không khí nhất định sẽ giúp cho toàn ngôi nhà luôn thoáng và thoải mái nhất. Cầu thang được coi là nơi kết nối giữa các môi trường tự nhiên trong nhà. Chúng tôi đã bố trí thêm hàng cây xanh để tăng sức sống cho ngôi nhà. Như vậy toàn bộ tầng 1 thật sự hợp phong thủy từ bố trí công năng cho đến sắp xếp thêm các chi tiết phụ, các bạn có thể lưu ý nhé!
Chúng tôi đã thiết kế toàn bộ các phòng ngủ đều có hệ thống cửa sổ thông thoáng, tại mỗi cửa sổ là cây xanh để trao đổi không khí giúp cho môi trường trong sạch nhất. Phòng sinh hoạt chung luôn nhận được một lượng không khí tự nhiên lớn từ giếng trời và cầu thang. Vì thế mà không hề cảm thấy bí khi ngồi thư giãn tại căn phòng này. Với màu sắc trang trí tươi, sáng đã giúp căn phòng thêm ôn hòa với nhiệt độ luôn phù hợp.






Trang trí nội thất cũng được chúng tôi chú trọng, toàn bộ nội thất với gam màu sáng trắng vừa tạo ra những khoảng không lịch sự, nhã nhặn đồng thời tạo nên sự rộng rãi cho ngôi nhà. Nội thất được sắp xếp gọn gàng, ngăn nắp và có chiều sâu cho không gian. Từ đó mà khơi gợi cảm xúc, có những phút giây thoải mái nhất cho gia đình.
Với việc sử dụng rất nhiều các vật liệu cao cấp để xây dựng ngôi nhà đã cho thấy sự đầu tư bài bản và toát lên nghệ thuật cho bản thiết kế này. Đội ngũ kiến trúc sẽ thổi hồn vào bản vẽ kiến trúc nhiều cái mới mẻ để xứng tầm đẳng cấp cho căn nhà này.
Độc đáo, thu hút và mới lạ, tất cả sẽ góp phần khiến ngôi nhà đẹp nổi bật hơn bao giờ hết. Để được tư vấn chi tiết hơn về những mẫu nhà ống đẹp 3 tầng mặt tiền 4m phong cách Tân cổ điển, quý khách hàng vui lòng liên hệ với chúng tôi, để được kiến trúc sư tư vấn chi tiết và cụ thể hơn. Hy vọng sẽ được đồng hành cùng bạn trên con đường xây dựng tổ ấm cho gia đình mình.
Nguồn tin: https://maunhadepmoi.com/
































