Hiện nay, những mẫu biệt thự hiện đại 2 tầng hiện đại theo lối truyền thống được nhiều gia đình lựa chọn hơn hẳn, bởi xét về chi phí đầu tư những mẫu nhà biệt thự này phù hợp với kinh tế của nhiều gia đình ở thành thị và nông thôn hơn so với những mẫu biệt thự sang trọng, hoành tráng khác. Trong phạm vi bài viết này, chúng tôi xin gửi đến quý bạn đọc một mẫu nhà đẹp 2 tầng mặt tiền 5m độc đáo với mái xéo hiện đại tại Đà Nẵng.

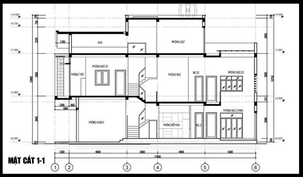
Chủ đầu tư xây dựng ngôi nhà này là anh Lê Thanh Cường, trú quán tại thành phố Đà Nẵng, anh mong muốn thiết kế nhà đẹp 2 tầng mặt tiền 5m độc đáo với mái xéo hiện đại. Diện tích lô đất là 85m2, diện tích thiết kế và xây dựng là 85m2với đầy đủ các công năng như sau: Tầng 1: hiên mặt tiền, phòng khách, phòng ăn, phòng bếp, phòng ngủ, wc chung, nhà kho. Tầng 2 bao gồm 2 phòng ngủ, phòng sinh hoạt chung, wc chung và sân thượng, phòng thờ.

Ngôi nhà biệt thự 2 tầng này là tâm huyết cả đời của vợ chồng anh. Mẫu thiết kế này được đánh giá cao cả về kiến trúc ngoại thất cũng như cảnh quan ngôi nhà. Mỗi chi tiết, yếu tố đều toát lên sự hài hào và độc đáo. Chủ đầu tư đã rất vui mừng và hạnh phúc khi nhận chìa khóa trao tay công trình từ chúng tôi. Niềm vui của khách hàng là niềm hạnh phúc của công ty chúng tôi.
Chúng tôi rất vui mừng khi nhận được điện thoại của anh Cường qua số điện thoại của công ty. Anh biết đến công ty chúng tôi qua tìm hiểu trên mạng và đã cảm thấy uy tín để chia sẻ. Anh đã tâm sự với chúng tôi về mẫu nhà đẹp mong muốn trong tương lai của mình. Anh ưa thích phong cách hiện đại nhưng anh yêu cầu không được thiết kế quá đơn giản, anh muốn mẫu thiết kế có sự cầu kỳ để thể hiện sự khác biệt so với những mẫu nhà khác.


Với mong muốn thiết kế mái xéo hiện đại để tăng phần hiện đại cho ngôi nhà. Chúng tôi đã thiết kế cho gia đình anh Tài là mẫu nhà 2 tầng mái thái dài, các mái chồng xếp lên nhau để tạo sự đồ sộ, sang trọng và cân đối với hình khối rộng lớn cũng như diện tích ô đất. Chóp mái ở trên cao sẽ được thiết kế đi kèm cột thôi lôi chống sét.


Về tổng quan của mẫu thiết kế nhà đẹp 2 tầng mặt tiền 5m độc đáo này ta có thể thấy được hình khối kiến trúc khá đồ sộ, với những đường nét tinh xảo và khỏe khoắn, thể hiện sự bề thế cũng như tính thẩm mỹ cao của mẫu biệt thự hiện đại. Khiến ngôi nhà như đẳng cấp hơn bao giờ hết.




Hình khối ngôi nhà vuông vức kết hợp với những đường trang trí tinh tế tại các trụ cột cúng đã giúp cho mẫu thiết kế nhà 2 tầng này chiếm trọn ánh mắt của người nhìn. Hệ trụ cột chạy thẳng từ tầng 1 lên đến tầng 2 giúp cho ngôi nhà cân đối và cao ráo hơn. Trông bề thế và sang trọng hơn rất nhiều. Chúng tôi đã thiết kế thêm vài chi tiết nhỏ để ngôi nhà thêm độc đáo. Hệ thống cửa cổng kết hợp mái che cùng hệ thống tường rào đẹp mắt đã giúp cho cảnh quan ngoại thất của ngôi nhà vô cùng khang trang. Xung quanh nhà được trang trí thêm các cây cảnh để tăng thêm độ tươi mát cho ngôi nhà.
Không giống như những mẫu thiết kế khác. Ngôi nhà này được trang bị hệ thống mái vô cùng hiện đại. Kiểu mái thái với độ dốc lớn kết hợp với việc sử dụng mai màu nâu đã giúp cho ngôi nhà có nhiều khác biệt so với những mẫu nhà bên cạnh. Chúng ta có thể thấy ô cửa sổ đều có thiết kế mái che lợp ngói, vừa có tác dụng tránh mưa nắng hắt vào nhà, vừa có tác dụng cân đối hình khối và tăng tính thẩm mỹ. Hệ cửa gỗ tự nhiên được lựa chọn bởi anh Tài là người thích chơi đồ gỗ, nên toàn bộ cửa của ngôi nhà đều là cửa gỗ, kiến trúc sư của chúng tôi đã lên phương án thiết kế chống mối mọt cho toàn bộ hệ cửa. Với bộ gỗ hiện đại này cũng phù hợp với ngôi nhà hơn so với các loại khác.





Xung quanh ngôi nhà là hệ thống tiểu cảnh cây xanh trang trí vô cùng đẹp mắt tạo nên sự xanh mướt của ngôi nhà. Từ cửa chính đi vào trong là không gian phòng khách với bộ bàn ghế hiện đại tông sáng, giúp cho phần không gian phòng khách nổi bật hơn hẳn. Nội thất ngôi nhà cũng được chúng tôi chú trọng, với vẻ đẹp riêng trong thiết kế nên nội thất trong nhà cũng phải có dấu ấn riêng. Từ phòng ngủ đến phòng khách, phòng ăn là một không gian vô cùng sang trọng và độc đáo. Nội thất hiện đại với tông màu sáng là chủ yếu càng làm ngôi nhà thêm phần thu hút.
Để có thể sở hữu mẫu nhà nhà đẹp 2 tầng mặt tiền 5m độc đáo, quý khách hàng vui lòng liên hệ trực tiếp với chúng tôi để được tư vấn chi tiết và cụ thể hơn. Hy vọng sẽ được đồng hành cùng bạn trên con đường xây dựng tổ ấm cho gia đình mình.
Nguồn tin: https://maunhadepmoi.com/
































