Hiện nay, ở thành phố và thị xã những mẫu nhà 2 tầng luôn được ưa chuộng. Thế nhưng thiết kế như nào để khác biệt với các mẫu nhà khác mà vẫn phải phù hợp với không gian xây dựng cũng là bài toán khó. Chúng tôi xin giới thiệu đến các bạn mẫu nhà phố 2 tầng 5x15m siêu rẻ tại Vĩnh Phúc.

Mẫu nhà phố 2 tầng giá rẻ ở Vĩnh Phúc
Đây là một công trình với thiết kế độc đáo 2 tầng 5×15 hiện đại của gia đình chị Nguyễn Ngọc Lan, thành phố Vĩnh Yên, tỉnh Vĩnh Phúc. Mẫu nhà đơn giản, sang trọng, là tổ ấm hạnh phúc của gia đình 4 thành viên. Với tổng kinh phí đầu tư hơn 1 tỷ, chị Lan hoàn toàn hài lòng với những gì mình đã nhận được. Kính mời quý bạn đọc cùng chiêm ngưỡng những tinh hoa trong thiết kế của những kiến trúc sư tài ba nhất nhì tại Việt Nam hiện nay.
1. Thông tin sơ bộ về thiết kế:
- Đây là công trình nhà ở dân dụng với mẫu nhà phố 2 tầng được xây dựng ở Đường Mê Linh – Vĩnh Yên – Vĩnh Phúc. Chủ đầu tư là chị Nguyễn Ngọc Lan - chủ shop quần áo tại thành phố Vĩnh Yên. Với diện tích ô đất: 5×15m2 chị muốn xây dựng với kinh phí không quá 1,2 tỷ.
- Mặt bằng thiết kế công năng khá đơn giản. Tầng 1 bao gồm phòng khách, phòng bếp ăn, phòng ngủ 1, wc. Tầng 2 bao gồm 3 phòng ngủ, phòng thờ, phòng sinh hoạt chung, wc chung.
2. Yêu cầu của chủ đầu tư:
- Chia sẻ với chúng tôi, gia đình chị Lan hiện có sở hữu ô đất có mặt tiền 5m, chiều sâu 15m. Chị biết đến công ty chúng tôi qua người thân giới thiệu, nhờ
- chúng tôi lên phương án thiết kế cho chị một ngôi nhà 2 tầng đẹp với những ý tưởng ban đầu về ngôi nhà của mình.
- Đầu tiên về cảnh quan chung, thiết kế nhà có sân trước, sân sau và hành lang nối sân trước với sân sau, có tiểu cảnh trang trí để không gian sống của gia đình chị thông thoáng và thoải mái.Mặt bằng tầng 1 là không gian sinh hoạt chung nhử để xe, tiếp khách, nấu nướng ăn uống, thiết kế 1 phòng ngủ nhỏ cho người giúp việc. Tầng 2 là không gian sinh hoạt riêng của gia đình chị, sẽ thiết kế 3 phòng ngủ, 1 phòng ngủ chính và 2 phòng ngủ phụ. Thiết kế phòng thờ gần ban công để đón nhận nhiều dương khí tốt nhất cho gia đình.
- Màu sơn cho ngôi nhà cũng được chị lưu ý bởi chị yêu thích là tông trầm trung tính, hạn chế màu trắng sáng với kinh phí đầu tư dự kiến là 1.5 tỷ quay đầu lại. Với mong muốn thi công nhanh để cả gia đình chị có thể kịp đón tết Nguyên Đán.
3. Đề xuất phương án thiết kế:
- Cũng như tất cả các công trình khác, ngay sau khi nhận được cuộc gọi của chị Lan đến văn phòng. Cán bộ thiết kế và cán bộ kỹ thuật đã lên Vĩnh Yên, tiến hành khảo sát, đo đạc trắc địa, quan sát thiết kế kiến trúc bên cạnh để lên phương án thiết kế nhà 2 tầng cho chị.
- Chúng tôi đã dễ dàng tìm đến địa điểm đó vì cách Hà Nội không quá xa. Ô đất của gia đình chị tọa lạc ngay trục đường chính Mê Linh, giao thông thuận tiện, hướng chính ngôi nhà hướng Đông Nam, nhận được nhiều gió mát. Mặt tiền khá rộng và chiều sâu khá dài nên việc thiết kế mẫu nhà có sân trước và sân sau không có.
- Nhận thấy mảnh đất của chị có thể thiết kế nhà phố theo nhiều phong cách như hiện đại, tân cổ điển, châu âu… tuy nhiên với với ngân sách như mong muốn chúng tôi lựa chọn phong cách kiến trúc hiện đại tối giản cho mẫu nhà phố 2 tầng 5×15 của chị. Kinh phí sau khi dự toán thì mẫu nhà sẽ hết khoảng 1.2 tỷ, thấp hơn so với dự kiến của gia đình nên chị Lan đã hoàn toàn đồng ý với phương án thiết kế nhà mà chúng tôi đưa ra.
Tham khảo phương án thiết kế mẫu nhà phố 2 tầng 5x15m ở Vĩnh Phúc

Phương án thiết kế nhà phố 2 tầng trên diện tích 5x15m
Ngay từ ban đầu chị Lan đã có những yêu cầu khá cụ thể nên chúng tôi chỉ việc bám sát vào đó thực hiện theo đúng yêu cầu. Với phong cách thiết kế đơn giản và hiện đại đây hứa hẹn sẽ là một ngôi nhà độc đáo và không kém phần thu hút. Với diện tích của gia đình chị, chúng tôi thiết kế hình khối ngôi nhà nhỏ nhắn, đơn giản với những khối vuông cao thoáng. Để kiến trúc thêm khỏe khoắn và bề thế, chúng tôi thiết kế ốp đá tự nhiên granite màu nâu vân trắng xám cho mặt tiền để tăng thêm sự sang trọng, sau đó giúp cho ngôi nhà có sự bề thế và cứng cáp hơn. Mặt tiền tầng 2 khối bê tông lồi cũng được trang trí bằng những mảng gạch màu nâu kết hợp với đường phào chỉ lõm tạo nên sự thu hút khá tinh tế cho mẫu nhà. Phần hiên sảnh hình chữ L ban công được thiết kế lam gỗ chắn nắng và trang trí nghệ thuật đầy tinh tế.
Chúng tôi lựa chọn hệ thống cửa nhựa lõi thép hiện kết hợp với ban công kính cường lực hiện đại sẽ giúp cho ngôi nhà tận dụng được nhiều ánh sáng tự nhiên và có thể đón gió giúp lưu thông không khí tốt nhất có thể cho mẫu nhà ống. Đó là những tổng quan ban đầu về ngôi nhà này.

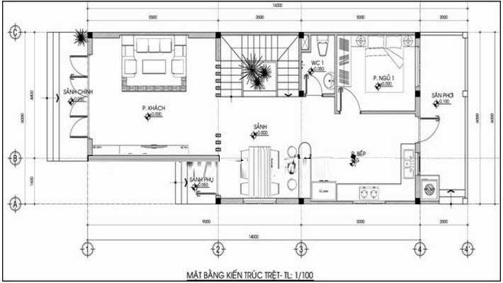
Mặt bằng công năng tầng 1
Chị Lan là một trong những khách hàng khá kỹ tính, chỉn chu. Chị đã vạch ra rất nhiều yêu cầu cũng như mong muốn của gia đình về mẫu nhà phố 2 tầng 5×15. Do đó chúng tôi lại càng ý thức được trách nhiệm cũng như trọng trách mà mình đang mang. Mặt bằng công năng được chúng tôi thiết kế rất chỉnh chu.
Từ sân trước đi vào các không gian được phân bố như sau. Phòng khách, phòng ăn và bếp được thiết kế liên thông với nhau, xu hướng thiết kế không gian mở này sẽ giúp cho mẫu nhà ống 2 tầng thêm thông thoáng và hạn chế sự chật hẹp bí bách. Khu vệ sinh được thiết kế ngày gần gầm cầu thang tầng 1 vừa có tác dụng không trống không gian, vừa có tác dụng mở rộng không gian phía ngoài, đồng thời vừa có tác dụng tăng tính thẩm mỹ cho ngôi nhà.

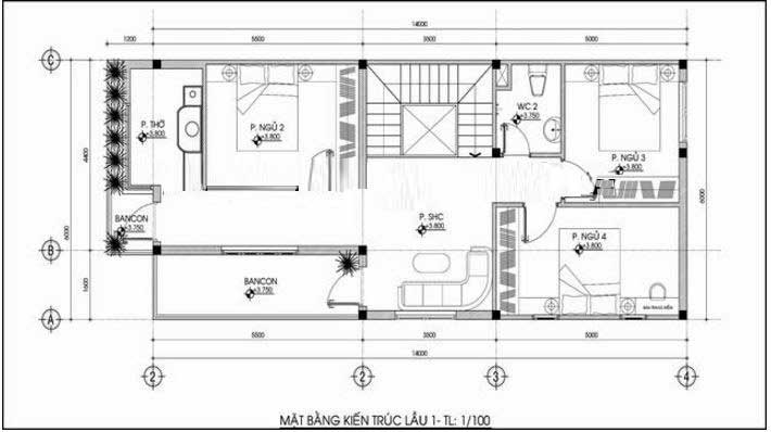
Mặt bằng công năng tầng 2
Đối với công năng tầng 2 như sau: Từ chân cầu thang đi lên tầng 2 là không gian riêng tư của gia đình chị Lan, ngay chân cầu thang tầng 2 là nhà vệ sinh chung với nội thất hiện đại, bên cạnh là phòng ngủ nhỏ của cô con gái học lớp 12 và phòng ngủ của cậu con trai học lớp 10. Khoảng thông tầng được tận dụng làm không gian sinh hoạt chung của 4 thành viên mỗi tối sau khi ăn cơm tối xong.
Hướng ra ban công là phòng ngủ chính master của 2 vợ chồng chị Lan và phòng thờ của gia đình. Sở dĩ phòng thờ luôn được thiết kế hướng ra ban công bới đây là vị trí đẹp được đánh giá có phong thủy tốt. Hơn nữa nếu đặt phòng thờ gần không gian thoáng như cửa sổ, ban công thì việc không gian sẽ không bị bí bách mỗi khi gia đình hướng khói. Phương án này được chị Lan khá hài lòng.
Với số vốn đầu tư hơn 1 tỷ, chị đã có thể sở hữu một mẫu nhà đẹp đáng mơ ước. Thiết kế mẫu nhà phố 2 tầng 5×15 không khó, nhưng thiết kế làm sao cho hài hòa với nhu cầu và điều kiện của chủ đầu tư mới khó. Chị Lan cùng đại gia đình đã rất hài lòng với bản vẽ thiết kế này. Nếu bạn cũng muốn như gia đình chị, hãy liên lạc với chúng tôi, Wedo luôn sẵn lòng phục vụ các bạn với chất lượng tốt nhất, chi phí thấp nhất.
Nguồn tin: https://wedo.vn/
Có thể bạn muốn xem:

































