Trong bài viết hôm nay, chúng tôi xin được giới thiệu đến các bạn nhà phố 3 tầng đẹp 6.5x17m mái lệch phong cách hiện đại tại Cần Thơ của gia đình anh Lê Hồng Phúc. Hãy cùng tìm hiểu và trải nghiệm nhé! Đây là một trong những bản thiết kế khá tâm đắc của chúng tôi khi làm việc tại mảnh đất Cần Thơ. Với những gì sẵn có của vật liệu nơi đây cùng với đội ngũ thiết kế xây dựng lành nghề thật sự đã tạo nên một thiết kế vô cùng độc đáo và ấn tượng. Ngôi nhà này đầy đủ các tiêu chí của một ngôi nhà phố đẹp, ấn tượng hãy cùng tìm hiểu về thiết kế và công năng của ngôi nhà này nhé.
*Thông tin dự án:
- Đây là dự án xây dựng của chủ nhà anh Lê Hồng Phúc trú quán tại Quận Ninh Kiều thành phố Cần Thơ, nơi nổi tiếng với những thiết kế nhà độc và lạ. Với diện tích lô đất 136.5m2, diện tích thiết kế và xây dựng là 110.5m2 anh mong muốn thi công và xây dựng trong vòng 5 tháng theo phong cách hiện đại.
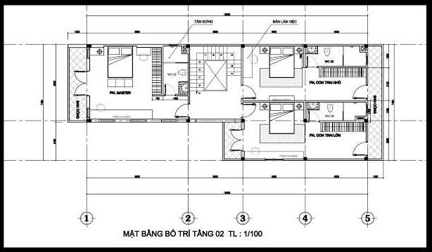
- Về công năng của từng tầng như sau: Tầng 1 bao gồm phòng khách, phòng sinh hoạt chung, phòng ăn và nhà bếp, 1 wc chung cho cả gia đình. Tầng 2 bao gồm 3 phòng ngủ chính master. Tầng 3 bao gồm phòng thờ, phòng gym, nhà kho, phòng ngủ, sân phơi, phòng wc chung.
Khác so với nhiều bản thiết kế khác, chúng tôi đã thiết kế nhà mái lệch theo phong cách hiện đại cho ngôi nhà này. Vừa tạo nên nét đẹp nghệ thuật, vừa tạo nên điểm nhấn riêng cho ngôi nhà này.

Với sự kết hợp giữa nét nhà truyền thống và hiện đại, ngôi nhà như khoác lên mình một tấm áo mới nhưng vẫn giữ được những cốt cách riêng của nó. Từ trên cao nhìn xuống bao quát tổng thể ngôi nhà thật sự thu hút, bởi phương thức trình bày thống nhất, mái lệch phô diễn tất cả những gì đẹp nhất của một nếp nhà Việt.

Thoạt nhìn có thể thấy cửa ngôi nhà rất độc đáo, được thiết kế khá rộng giúp đón sinh khí từ bên ngoài vào nhà, vừa là nơi đón khách của gia chủ. Với ánh sáng tự nhiên từ bên ngoài cánh cửa nhà hắt vào chắc chắn sẽ tạo nên những luồng gió mới tốt đẹp và tươi mát.

Có thể thấy hệ thống mái lệch cùng với không gian ban công thật sự thu hút, nét hiện đại được thể hiện rõ khi nhà thiết kế khéo léo làm hệ thống mái lệch. Tất cả tạo nên một tổng hòa thật sự thu hút. Đây được coi là một lô đất đẹp tại quận Ninh Kiều, vì thế mặt tiền ngôi nhà càng được chú trọng. Với lối thiết kế này chắc chắn sẽ cực kỳ thu hút và nổi bật. Quan sát tổng thể ngôi nhà, có thể thấy các kỹ sư của chúng tôi đã rất khéo léo đan xen những chi tiết trong nhà khá logic, từ hệ thống chậu cây cảnh xung quanh nhà đến những đường nét hoa văn trạm trổ. Ngôi nhà tạo nên sự phóng khoáng trong từng không gian.
Được gia đình anh có tổng 5 thành viên nên anh muốn thiết kế công năng sao cho phù hợp với các thành viên trong gia đình trong nền nhà cũ 136.5m2. Và chúng tôi đã nhận thấy rất nhiều ưu điểm của ngôi nhà này.

Đầu tiên đó là vị trí mặt tiền, ngôi nhà hướng ra hướng Bắc, cạnh với đường giao thông chính tấp nập, sầm uất vừa là lợi thế nhưng cũng có nhược điểm vì gia đình anh không có buôn bán gì. Như ban đầu có thể thấy diện tích xây dựng ¾ diện tích đất, vì thế diện tích còn lại sẽ là hệ thống sân vườn, cây cảnh, sinh hoạt và vui chơi chung cho cả gia đình. Chúng tôi sẽ tạo một không gian xanh vị trí này để bớt đi sự ngột ngạt của đường phố ngay bên cạnh.



Về tiện ích nội thất của gia đình, chúng tôi đã chú tâm đến những gam màu ấm cúng, đáp ứng đầy đủ nhu cầu sinh hoạt của cả gia đình anh. Tầng 1 là nơi sinh hoạt chung vào buổi tối nên càng ấm cúng càng tạo nên không gian đầm ấm hơn.


Có thể thấy công năng được chia rất rõ ràng. Tầng 2 là 3 phòng ngủ khép kín đầy đủ tiện nghi, tầng 3 là nơi giải trí, tập luyện thể dục thể thao cho cả gia đình.





Công năng của gia đình rất rõ ràng, vì thế chúng tôi thiết kế nội thất cũng rất đầu tư. Trước tiên đó là sự đồng nhất về gam màu, làm sao để tạo nên môi trường sống thoải mái và rộng rãi nhất có thể. Gam màu trắng sữa là màu sắc chủ đạo tạo nên không gian lung linh huyền ảo cho cả gia đình.
Qua bài viết này, chắc hẳn mỗi chúng ta đã có những cảm nhận riêng về ngôi nhà phố 3 tầng này rồi đúng không nào? Mỗi người một cảm nhận bởi gu phong cách có thể khác nhau. Vì thế, hãy liên hệ với chúng tôi để có thể tư vấn và giới thiệu cho các bạn kỹ hơn về những mẫu nhà phố 3 tầng đẹp như vậy.
Nguồn tin: https://maunhadepmoi.com/
Tin mới 24h:

































