Sở hữu một mặt tiền 7m gia chủ đã sở hữu trong tay phối cảnh cực kỳ ấn tượng, cực kỳ sáng tạo và chỉ có duy nhất không có cái thứ hai. Với mẫu nhà phố 7x20m gia chủ còn có thể sở hữu bản thiết kế như thế nào cùng theo dõi bài viết này để cùng khám phá và lựa chọn được mẫu nhà phù hợp.
Top thiết kế mẫu nhà phố 7x20 phối cảnh sân vườn siêu sang, hợp nghỉ dưỡng

Với thiết kế sân vườn dành cho mẫu nhà phố 7x20 có phối cảnh sân vườn sẽ được xây dựng tại khu vực ngoại thành phố bởi:
- Diện tích đất đủ rộng để gia chủ bố trí thiết kế nhà và khu vực vườn xung quanh để tạo nên tổng thể hoàn hảo nhất cho mẫu thiết kế sân vườn.
- Xung quanh nhà có đủ không gian yên tĩnh để gia chủ xây dựng ngôi nhà theo hướng nghỉ dưỡng, giống như căn vila tại khu nghỉ dưỡng sang trọng hiện nay.
Những ngôi nhà xây dựng kết hợp kiến trúc sân vườn sẽ lựa chọn thiết nhà 1 tầng kết hợp thiết kế áp mái, nét thiết kế chuẩn của những ngôi nhà châu Âu áp dụng. Cùng xem mặt bằng thiết kế của mẫu nhà này như thế nào:

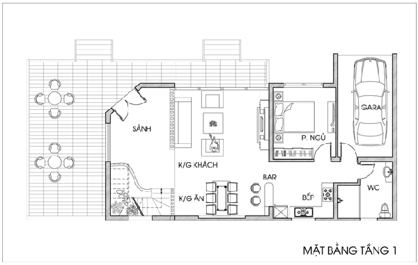
Mặt bằng tầng 1 bao gồm: 1 Phòng khách, 1 phòng ăn kết hợp với quầy bar và bếp, 1 phòng ngủ, 1 nhà vệ sinh và 1 gara oto.
Trước nhà là khu vực sân vườn, tùy theo nhu cầu và sở thích của gia chủ cũng như diện tích đất xung quanh mà lựa chọn bố trí tiểu cảnh phù hợp. Gợi ý cho gia chủ có thể lựa chọn thiết kế như mặt bằng lấy ví dụ với bàn trà uống nước ngoài trời hoặc với những diện tích rộng hơn gia chủ hoàn toàn bố trí bể bơi hoặc sân chơi để cả gia đình cùng nhau hoạt động.
Phòng khách, bàn ăn, khu vực quầy bar và không gian bếp được thiết kế hở để có được không gian rộng thoáng, dễ dàng di chuyển cho gia chủ. Phòng ngủ bố trí ngay sau phòng khách và đối diện với bếp. Nhà vệ sinh bố trí sau cùng với gara oto để không ảnh hưởng đến không gian phía trên.
Đặc biệt mẫu thiết kế này đặt cầu thang tại góc của sảnh vừa có kiến trúc lạ lại, tiết kiệm không gian cho phần bên trong.

Với kiến trúc áp mái, kiến trúc sư bố trí không gian tương tự khu vực dưới tầng 1 để thuận tiện cho đường dây điện, nước mạng của ngôi nhà. Không gian tầng bao gồm: Phòng sinh hoạt chung của cả gia đình kết hợp với quầy bar. Phòng ngủ được bố trí ngay sau phòng sinh hoạt chung. Cuối cùng là phòng vệ sinh. Trên áp mái có sảnh và khu vực cầu thang thông tầng.

Mẫu nhà phố 7x20 thiết kế sân vườn sử dụng kiến trúc tân cổ điển – vẻ đẹp vượt thời gian. Mặt tiền với phần bậc thang để tôn cao lên ngôi nhà, hai bên được ốp đá vô cùng sang trọng. Hết khu vực bậc thang là khu vực sảnh chính của ngôi nhà với kiến trúc hệ cột trụ tròn, chân vuông vức ốp đá kết hợp với mái vòm sang trọng, họa văn là những lớp phào đơn đơn giản nhưng cuốn hút, bên trên là hệ thống mái Thái đồ sộ. ĐIểm nhấn cho ngôi nhà nằm ở cửa kính khung gỗ nổi bật sang trọng trên nên trắng chủ đạo. Dọc theo bề mặt 20m là chậu cây được ốp đá vô cùng sang. Chân nhà được ốp đá để bảo vệ ngôi nhà khỏi những tác động từ bên ngoài.

Sử dụng kiến trúc nổi bật như trên nhưng ngôi nhà này mang đến nhiều màu sắc hơn cho mẫu nhà phố 7x20.
Mặt tiền của ngôi nhà cũng với hệ bậc được ốp đá sang trọng rồi mới đến sảnh chính với hệ thống cột trụ tròn, phần chân nối với hai bên cầu thang kết hợp cùng hệ mái vòm, bên trên sơn vàng nổi bật. Mặt tường của cửa chính được ốp đá nhám kết hợp cửa gỗ sang trọng, cùng với đèn hai bên khi trời tối mang đến màu sắc lung linh, nổi bật cho căn nhà. Cửa sổ mẫu nhà phố này sử dụng song sắt sơn trắng, uốn thành hoa văn mang tính chất cổ điển, bên ngoài là hệ thống cửa kính khung nhôm chắc chắn. Bên dưới khung cửa sổ được thiết kế chậu họa với khung sắt sơn trắng với nét họa tiết đơn giản nhưng đảm bảo yếu tố cổ điển, phù hợp với tổng thể thiết kế của căn nhà. Tường nhà dùng nét phào đơn giản mang đến nét kiến trúc tân cổ điển đầy sang trọng, tỉ mỉ.

Trong mẫu thiết kế nhà phố 7x20 thiết kế sân vườn cuối cùng được giới thiệu với kiến trúc bể bơi cực kỳ sang chảnh, xứng đáng với cái tên vila tại gia chắc chắn sẽ là một mẫu thiết kế mà gia chủ nào cũng mong muốn sở hữu. Tại phần mái nhà, gia chủ sử dụng hệ thống pin năng lượng mặt trời, tiết kiệm nhiều lượng điện năng tiêu thụ cho gia đình.
Top thiết kế mẫu nhà phố 7x20m phối cảnh hiện đại
Nhắc đến mấu thiết kế nhà phố 7x20 với phối cảnh hiện đại là mẫu thiết kế áp dụng rất phổ biến hiện nay tại khu vực thành phố theo đánh giá gia chủ đang sử dụng mẫu nhà này thì tiện nghi, hiện đại từ trong ra ngoài. Trước tiên cùng xem bố trí mặt bằng của ngôi nhà này.

Mặt bằng tầng 1 của ngôi nhà phố 7x20 được chia làm hai diện tích: 1 bên phòng khách được nối thông với bàn ăn và 1 bên là gara oto, khu vực cầu thang, nhà vệ sinh và phòng bếp. Gara oto được bố trí cửa ngách để gia chủ tiện di chuyển vào khu vực phòng khách của căn nhà. Tại mặt bằng tầng 1 được bố trí thêm sân trước, gia chủ của ngôi nhà này sử dụng sân trước để đặt bàn bà cùng với tiểu cây cảnh nhỏ.

Mặt bằng tầng 2 của mẫu nhà phố 7x20 bố trí với 2 phòng ngủ cùng 2 nhà vệ sinh bên trong, khoonng gian phòng thờ. Khu vực cầu thang được bố trí ngăn cách giữa hai phòng với nhau.

Mặt bằng thiết kế phía trên sẽ có một mẫu nhà tham khảo cho gia chủ xây dựng nhà phố 7x20. Với thiết kế theo phong cách hiện đại khối hộp cùng việc sử dụng đa dạng nguyên vật liệu thiết kế đã mang đến ngôi nhà tiện nghi, thông minh, chi phí phù hợp.

Mẫu nhà phố 2 tầng 7x20 có thêm gác lửng tạo nên nét kiến trúc độc đáo cho căn nhà. Mặt tiền của ngôi nhà sử dụng gạch bông vừa làm nên một thiết kế có tính thẩm mỹ lại vừa thông thoáng khí và cũng là hạn chế ánh nắng cho căn nhà. Mẫu thiết kế này rất phù hợp cho căn nhà xây dựng theo hướng tây.
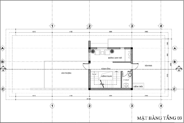
Ngoài ra, một số mẫu nhà phố 2 tầng 7x20 sẽ có thiết kế tầng tum bên trên sân thượng như sau:

Tại vị trí này, gia chủ sẽ tiến hành đặt phòng thờ, phòng giặt cùng khoảng sân rộng được bố trí tiểu cây cảnh xung quanh. Không gian tầng hai sẽ được bố trí với hai phòng ngủ với diện tích lớn hơn một chút.

Mẫu nhà với tầng tum ở vị trí tầng thượng trong mẫu thiết kế nhà phố 7x20 mang đến vẻ đẹp sang trọng nhờ vào việc sử dụng màu sắc. Mặt tiền của ngôi nhà được phân chia làm hai phần, đối chiếu từ ngoài cổng vào đến trong nhà sẽ chung một tổng thể. Bắt đầu từ phía cổng của ngôi nhà với với cột trụ kích thước lệch nhau, sơn trắng kết hợp cổng gỗ khung sắt cực kỳ vững chắc, chiếu lên trên là mặt tiền tầng hai được sơn màu nâu, khung cửa sổ cùng tone màu cổng, và khu vực tầng thượng với thiết kế tum hiện đại. Mặt tiền còn lại với phần cổng rào là bức tranh phong cảnh, lên trên tầng hai ban công lan can kính, bên tron hệ thống cửa kính với phần viền sơn nâu cùng nét phào đơn giản. Lên đến tầng thượng gia chủ bố trí với hệ cửa sổ với nét kiến trúc tương tự tầng hai, không sử dụng ban công bởi sẽ có cửa dẫn ra tum. Sử dụng cửa kính giống bởi cảnh vật sẽ in lên ô cửa kính này và nó đồng với bức tranh phong cảnh ở khu vực cổng rào.

Chỉ gam màu trắng kết hợp với chất liệu bằng ngủ mang đến những ngôi nhà sang trọng nhưng vô cùng hiện đại. Mặt tiền mẫu nhà phố 7x20 này vô cùng đơn giản với điểm nhấn là lam che nắng cùng với gạch vuông sẫm bo viền kết hợp với tum ở vị trí tầng thượng.
Top thiết kế mẫu nhà phố 7x20m kết hợp kinh doanh tiện lợi

Với mẫu nhà phố 7x20 không thể thiếu được mẫu nhà kết hợp với kinh doanh. Ví dụ như mẫu nhà phía trên với hai mặt tiền cùng với thiết kế khối ấn tượng, ngôi nhà trở nên nổi bần bật giữa không gian phố, trở thành địa điểm kinh doanh cực kỳ thu hút khách.

Quán café là thiết kế nổi bật cho mẫu nhà phố 7x20. Nằm giữa con phố tập nập kết hợp cùng thiết kế bắt mắt, ấn tượng cùng không gian rộng rãi, với view thành phố hay view kết hợp tiểu cảnh cây xanh yên tĩnh sẽ mang lại lợi ích kinh doanh cho gia chủ sở hữu.


































