Thiết kế nhà 2 tầng giá 300 triệu có sân vườn Nhỏ Xinh. Để xây dựng một căn nhà phố đẹp hiện đại với chi phí rẻ, đòi hỏi bạn phải có kiến thức sâu về thiết kế – xây dựng, tích hợp thông tin từ người thân – bạn bè để có nhiều kiến thức hơn trong việc xây dựng cho mình 1 căn nhà để ở, đầy đủ công năng sử dụng….
Kiến trúc hoàn hảo hơn nhờ vào cách tính toán kĩ lưỡng từ ngoại thất đến nội thất, tổng quan về công trình. Để có một đánh giá phù hợp với kinh phí bạn muốn chi trả. Chúng tôi khuyên bạn nên nhờ đến sự trợ giúp từ những cty thiết kế – xây dựng nhà để được tư vấn hiệu quả hơn. Ngoài ra nên lựa chọn một công ty uy tín và có nhiều thập niên trong việc xây dựng nhiều công trình.
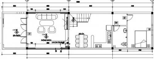
Để mọi người có nhiều thông tin hơn chúng tôi xin gửi tới bản dự toán chi phí thiết kế nhà 2 tầng giá 300 triệu và bản vẽ mặt bằng tầng 1 và 2. Cùng xem qua nhé!

♣ Dự toán chi phí xây nhà đẹp 2 tầng giá 300 triệu:
- Chi phí 180 triệu cho phần xây thô và nhân công.
- Chi phí sơn nước là 15 triệu.
- Chi phí thiết bị vệ sinh, hệ thống nước, điện là 25 triệu.
- Chi phí cửa sổ, cửa đi, tiền làm cầu thang là 15 triệu.
- Chi phí đá granit là 10 triệu.
- Chi phí mua rèm cửa, giường ngủ, ghế sofa, bàn, tủ đựng quần áo, tủ bếp là 50 triệu.
- Để khoảng 5 triệu cho các chi phí phát sinh.
- Theo tính toán thì tổng cộng khoảng 300 triệu cho việc thiết kế nhà 2 tầng.

Việc thiết kế nhà phố nhỏ đẹp mặt bằng tầng 1 chúng tôi đã chừa ra khoảng 2,5m-3m làm sân trước – phòng khách – nhà bếp và 1 phòng ngủ. Ngoài ra nhà vệ sinh được bố trí giữa phòng ngủ và phòng ăn tạo sự thuận tiện trong sinh hoạt của gia đình.

Đối với mặt bằng tầng 2 được bố trí 2 phòng ngủ – nhà vệ sinh chung cho 2 phòng. Trong đó có phòng sinh hoạt chung cho gia đình thiết kế phía ngoài gần ban công. Theo bản vẽ chi tiết cho việc thiết kế nhà 2 tầng giá 300 triệu này khá đẹp để tính chất tổng quan, không gian được tối ưu hóa nhằm tiết kiệm chi phí thấp nhất có thể, nhưng vẫn tạo nên sự hiện đại cho toàn ngôi nhà.
Xem thêm tin nổi bật => Xây nhà 2 tầng chi phí hết bao nhiêu?

























