Gác lửng là tên gọi khác của tầng lửng hay gác xép. Là một phần kiến trúc của ngôi nhà nằm ở phần chính giữa, bên trái hoặc phải của ngôi nhà hoặc tùy theo vị trí mà gia chủ yêu cầu. Nó không được tính vào số tầng của tòa nhà và được xem là một phương án hiệu quả để mở rộng diện tích sinh hoạt còn giúp không gian trở nên thoáng đãng hơn. Ngoài ra các kiến trúc khác hoàn toàn có thể sử dụng kiến trúc này làm điểm nhấn cực kì hiệu quả và nâng cao giá trị thẩm mĩ cho ngôi nhà của bạn.


Hơn thế nữa, gác lửng mang đến cho ngôi nhà rất nhiều công dụng và được sử dụng như phòng ngủ, phòng làm việc, phòng trưng bày tăng thêm độ mới lạ và sang trọng cho mọi thiết kế nhà ở. Nếu như bạn đang muốn sử dụng cấu trúc này trong mẫu nhà ống 1 tầng thì bài viết này sẽ là một lời gợi ý tuyệt vời, hãy cùng đón xem nhé.
Tìm hiểu chi tiết về mẫu nhà ống 1 tầng 1 gác lửng :

1/ Ưu điểm của nhà ống khi được tích hợp gác lửng :
- Gia tăng không gian sống cho ngôi nhà khi được sử dụng một cách hiệu quả đáp ứng mọi nhu cầu khác nhau từ chủ nhà.
- Tạo nên kiến trúc độc đáo, mới lạ, phù hợp với mọi kiến trúc mà không cần phải tháo dỡ, xây lại.
- Có nhiều kiểu dáng khác nhau để gia chủ có thể lựa chọn cho ngôi nhà của mình.
- Sử dụng cho nhiều mục đích khác nhau nhằm tối ưu hóa không gian sử dụng thêm hiện đại.
- Chi phí để cải tạo, xây dựng không quá cao phù hợp cho mọi người mọi nhà.
- Có thể sử dụng trong diện tích nhỏ, yêu cầu chiều cao của ngôi nhà vừa đủ để không gặp khó khăn khi sinh hoạt bên trong.
- Tạo mặt bằng kinh doanh ngay trong nhà không ảnh hưởng đến sự riêng tư của các thành viên, đặc biệt là tiết kiệm chi phí cho việc kinh doanh khi không phải mất tiền thuê nhà hằng tháng.
- Phương án hiệu quả và đang trở thành xu hướng xây dựng trong năm 2021 này.
- ….vv
2/Những hạn chế từ việc sử dụng gác lửng cho ngôi nhà :

Tuy có cho mình với nhiều ưu điểm nhưng không thể phủ nhận rằng gác lửng vẫn có cho mình những hạn chết nhất định như :
- Hạn chế trong một số hình thức trang trí như đèn thả, đèn chùm, trần thạch cao…
- Nhiệt độ ở gác lửng chịu tác động trực tiếp từ mái nhà nên cần sử lý tốt hệ thống mái.
- Giảm đi chiều sâu của ngôi nhà và còn làm ngôi nhà trở nên bí bách khi không có thiết kế phù hợp.
- Đây cũng là “con dao hai lưỡi” trong việc xây dựng kết cấu bên trong của ngôi nhà.
- Cần có sự tư vấn, sáng tạo và thiết kế phù hợp với phong cách đưa ra ban đầu của ngôi nhà.

Phân loại 1 số hình thức của gác lửng theo thiết kế cho mẫu nhà ống :
1/ Thiết kế gác lửng phía trước cho mẫu nhà ống 1 tầng
Một trong những thiết kế được sử dụng nhiều trong cấu trúc của mẫu nhà ống hiện đại và vị trí nằm phía chính giữa ngôi nhà khi bước vào từ cửa chính. Thông thường sẽ được đổ tấm để gia cố một cách chắc chắn, thẩm mỹ và cả tính sáng tạo được gia chủ thể hiện. Có rất nhiều hình thức bài trí khác nhau thông qua các gợi ý từ kiến trúc sư, các địa chỉ tham khảo về kiến trúc mà mọi người có thể sử dụng trong chính ngôi nhà của mình.

Có thể dùng kính cường lực để thấy được góc nhìn bên trên vừa kết hợp sự an toàn cho mọi thành viên mà còn để gia tăng tính thẩm mỹ khi chức năng của chúng dùng để làm phòng trang trí, phòng sách, các mô hình kinh doanh nhỏ. Đối với phòng ngủ, phòng sinh hoạt của các thành viên thì có thể sử dụng rèm kéo để tạo nên sự riêng tư cần có. Và tùy theo các chức năng mà việc trang trí cũng trở nên đa dạng hơn bao giờ hết.
2/ Thiết kế gác lửng phía sau cho mẫu nhà ống 1 tầng
Đây có thể xem như một phần kết cấu sử dụng cho mục đích riêng của gia chủ sử dụng như phòng ngủ, phòng làm việc khi cấu trúc được nằm phía sau. Thông thường chúng được đặt phía trên phòng ngủ, nhà bếp với mục đích chính là gia tăng số phòng sinh hoạt cho các thành viên, mặt khác làm cho không gian tổng thể hoàn thiện hơn cho các không gian hạn hẹp và cụ thể là mẫu nhà ống 1 tầng, nhà cấp 4..vv.

Có thể cải tạo, xây dựng thông qua hình thức đổ tấm hay sử dụng kết cấu từ sắt thép để tạo nên không gian này. Nhiều người còn sử dụng các vật liệu chuyên ngành để cải tạo cho ngôi nhà. Đây không khác gì một căn phòng nằm lửng phía trên. Tuy nhiên cũng cần kèm theo các lưu ý để đảm bảo sự thông thoáng cho không gian phía trong với hệ thông cửa sổ, thông gió hoặc hệ thống cách nhiệt cần được đảm bảo để thuận tiện khi sinh hoạt bên trong.
3/ Thiết kế gác lửng bên hông cho mẫu nhà ống 1 tầng (nằm bên trái hoặc phải)
Mẫu gác lửng hiện đại bên hông nằm ở vị trí bên trái hoặc bên phải của ngôi nhà thường sử dụng như một không gian trang trí, chứa các vật dụng thiết yếu, vật dụng sử dụng trong gia đình. Có rất nhiều gia đình tích hợp không gian này để làm phòng cho khách nghỉ lại, nơi học tập, làm việc rất thuận tiện cho các ngôi nhà có diện tích hạn hẹp.

Tuy mang đến nhiều ưu điểm nhưng cũng cần xem qua cách trang trí sao cho sáng tạo, hợp mắt và thuận tiện nhất cho việc sinh hoạt. Cần lưu ý đến phong thủy nhà ở không làm chúng mất đi ưu điểm mà còn khai thác tối đa không gian này một cách hiệu quả.
Tham khảo qua mẫu thiết kế nhà ống 1 tầng 1 gác lửng đẹp của năm 2021 :
Với nhiều người, phần gác lửng không còn quá xa lạ trong năm mới 2021 này. Chúng mang đến cho kiến trúc ngôi nhà sự mới lạ đan xen là nét thẩm mĩ, tiện nghi và là ngôi nhà đẹp vô cùng hiện đại cho không gian hiện đại 2021 được nhiều người yêu mến. Nếu như yêu thích thiết kế này bạn hoàn toàn có thể sử dụng hoặc lưu lại những “điểm sáng” để cập nhật vào trong ý tưởng xây dựng ngôi nhà mơ ước của mình.

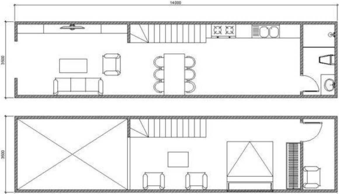
Bản vẽ được thể hiện rõ nét các chức năng sinh hoạt từ cửa chính đi vào là phòng khách được bài trí đơn giản với bộ bàn ghế tiếp khách. Đi vào trong ngôi nhà là phòng ăn được cân đối chính giữa tạo khoảng không rộng cho nhà bếp phía sau phục vụ đầy đủ nhu cầu sinh hoạt giải trí và ăn uống phía dưới.
Mặt cắt thứ 2 là không gian gác lửng phía trên với phòng sinh hoạt cùng một phòng tắm, nhà vệ sinh hoàn toàn tách biệt. Tuy không mang nhiều chức năng với nhiều phòng ốc nhưng thông qua bản vẽ, ngôi nhà được thể hiện sự sang trọng tiện lợi với hình thức vô cùng lạ mắt làm cho người xem đi đến bất ngờ này đến bất ngờ khác. Không gian toát lên sự sang trọng mà mọi người, mọi gia đình đều mong muốn sở hữu.

Phối cảnh bên ngoài cho thấy ngôi nhà có dạng ống được hỗ trợ rõ nét từ hệ thống lấy sáng tự nhiên bằng số lượng lớn từ cửa sổ từ kính cường lực. Giúp ngôi nhà đánh bật lên khi nhìn từ phía ngoài và thu hút mọi ánh nhìn của người đi đường. Gam màu độc lập và chia ra cụ thể giữa sáng và tối hài hòa với cảnh vật xung quanh và không kém phần sang trọng. Tọa lạc trên mảnh đất nhỏ gọn với tiêu chí hoàn toàn phù hợp với nhu cầu sẵn có mang đến một bức tranh hoàn mỹ cho không gian mơ ước của nhiều gia đình.

Bên trong ngôi nhà, sử dụng gam màu trắng tinh tế với sự đối lập giữa màu sắc từ hệ thống sàn nhà, cửa ra vào, kệ treo màu gỗ tự nhiên. Không cần quá cầu kỳ trong hình thức trang trí nội thất nhưng vẫn toát ra vẻ hiện đại vốn là mong muốn của chủ nhà. Thể hiện được cái tôi cá nhân của gia chủ trong không gian sinh sống làm việc và nghỉ ngơi.

Hệ thống bên trong mang đến sự say đắm cho bất kỳ ai khi bước chân vào ngôi nhà với màu sắc hài hòa. Lấy cảm hứng từ thiên nhiên làm chủ đạo nên gia chủ sử dụng ánh sáng tự nhiên để tô điểm cho không gian. Không quên kết hợp màu sắc xanh từ cây trang trí. Hệ thống gác lửng được bắt đầu từ kết cấu của cầu thang với màu đen với độ dốc thoải thuận tiện cho việc di chuyển lên trên.
Đặc biệt là các đường chỉ mềm mại, hài hòa với tông màu trắng làm chủ đạo, ngôi nhà càng trở nên trang nhã hơn bao giờ hết, tinh tế và sẽ không bao giờ bị lỗi thời. Sau thời gian xây dựng, đơn vị thi công đã mang đến cho chủ nhà sự hài lòng hơn bao giờ hết xóa tan đi cảm giác bí bách mà nhà ống mang đến những bất lợi.
Mẫu nhà ống 1 tầng kết hợp 1 gác lửng thuộc quyền sở hữu của gia đình anh Nguyễn Đình Tâm (56 tuổi) địa chỉ : Tổ 23 .đường Trần Quang Khải Phường An Phú, thành phố Dĩ An, Bình dương đã mang đến một sự kết hợp hoàn hảo giữa mẫu nhà ống 1 tầng 1 gác lửng hoàn toàn là sự lựa chọn hợp lý với những ai đang có mong muốn xây dựng một ngôi nhà với công năng và mong muốn thông qua tiêu chí ban đầu.
Với những chia sẻ phía trên, hy vọng sẽ mang đến cho quý khách hàng và độc giả những ý tưởng mới lạ cho ngôi nhà ước mơ của mình về sau. Đừng quên chia sẻ nếu cảm thấy chúng bổ ích nhé !




![Thiết kế - thi công mẫu nhà ống 1 tầng 2 mặt tiền [nhà đẹp 2024]](/img.php?url=https%3A%2F%2Fxaydungso.vn%2F%2Fimg%2Fposts%2Fa54a0-200x160-2.jpg)





























