Diện tích 7x12m được xem như một diện tích không quá nhỏ cũng không phải là quá lớn để thiết kế một ngôi nhà dạng ống mang lại giá trị thiết thực cho mọi thành viên trong gia đình nhằm mục đích sinh sống. Kèm những tính năng hiện diện một cách đầy đủ với các gian phòng sinh hoạt với các chức năng thiết yếu luôn là một phần không thể bỏ qua trong việc xây dựng một ngôi nhà.

Việc cải tạo, tân trang hay xây mới một kiến trúc với kích thước trên không hề khó đối với các chủ đầu tư. Bởi các tư liệu xây dưng dần được phổ biến và tiếp cận một cách đơn giản hơn rất nhiều, ngoài ra bạn cũng có thể nhờ đến kinh nghiệm từ người đi trước hoặc liên hệ trực tiếp với các đơn vị thiết kế thi công nhằm tránh đi các thiếu sót từ các đơn vị có kinh nghiệm và tuổi thọ lâu năm trong lĩnh vực. Các thiết kế dưới đây chắc chắn sẽ mang lại cho mọi người sự hài lòng thông qua phối cảnh đẹp mắt mà bạn có thể dễ dàng “say đắm” !

Xây nhà ống 1 tầng đẹp với diện tích 7x12m với nhiều thiết kế độc đáo :
Với các mẫu thiết kế nhà ống có chiều ngang 7m được xem như một lợi thế mang lại cho chủ nhà rất nhiều những ưu điểm khác nhau, đặc biệt là việc sở hữu phần mặt tiền thông thoáng. Đối với mỗi chiều dài của kiến trúc sẽ là những phong cách thiết kế khác nhau. Hãy cùng chúng tôi xaydungso.vn khám phá những mẫu thiết với những mẫu nhà đầy đủ tiện nghi mà bạn có thể tham khảo cho ý tưởng xây dựng của mình trong thời gian tới.

1. Kiến tạo không gian nhà ống 1 tầng đẹp diện tích 7x12m với kết cấu từ mái thái sang trọng :
Thông tin về mẫu nhà ống 1 tầng diện tích 7x12m mái thái
- Dự án thiết kế : mẫu nhà ống 1 tầng diện tích 7x12m
- Chủ đầu tư: Trần Minh Trí 1975
- Phong cách xây dựng : Xóa bỏ đi bố cụ thông thường và thay thế bằng các tiện ích, mang đến ứng dụng cao cho ngôi nhà. 3 phòng ngủ - 2 nhà vệ sinh – 1 phòng khách – 1 nhà bếp – 1 nhà kho
- Địa chỉ : thành phố Hồ Chí Minh
- Thời gian thi công: ~ 3 tháng.
Việc tạo nên một không gian nhà đẹp cần đến rất nhiều các yếu tố khác nhau mà với bố cục từ hệ thống nhà ống mái thái luôn mang đến cho nhiều người sự ưu ái mà chúng cũng dần thích ứng theo thời gian để trở thành một phần không thể thiếu trong các công trình ngày nay và mẫu nhà phía dưới sẽ là một dẫn chứng cụ thể mà bạn nên tham khảo.
Phối cảnh từ ngôi nhà cho thấy một nét đẹp mang tính hiện đại từ vị trí mặt tiền với các đường nét khỏe khoắn dường như đã tô điểm cho ngôi nhà thêm tinh tế hơn. Với các màu sắc được phân bổ ở các vị trí cụ thể làm đánh bật lên kiến trúc tổng quan mà không hề tạo nên một cảm giác nhàm chán mà ngược lại còn mang đến cho người xem sự thích thú đến lạ thường.

Diện tích rộng trong mặt bằng xây dựng luôn là một lợi thế cho việc tạo nên một ngôi nhà hoàn hảo kèm các công năng sinh hoạt đầy đủ, nhưng ngược lại đó cũng là một trong những thiếu sót nếu như bạn không biết khai thác những lợi thế đó. Luôn tìm ra các giải pháp và cần phải hiểu được ưu nhược điểm của công trình xây dựng, những lưu ý khi thiết kế mẫu nhà một tầng đẹp nhất.

Ngôi nhà sử dụng khá nhiều cửa kính nhằm phục vụ cho việc lấy sáng mà chúng cũng là một vật liệu phần thiết yếu được sử dụng rất nhiều trong các công trình xây dựng. Điểm nhấn chính là các đường nét tạo hình khối từ màu sơn với cửa sổ, các đường chỉ thể hiện việc phân chia các chức năng bên trong. Chúng đã hỗ trợ cho nhau một cách hiệu quả làm nên giá trị thẩm mỹ cho ngôi nhà ống diện tích 7x12. Bên ngoài là hệ thống sân vườn đang được cải tạo nhằm tạo nên một cảnh quan độc đáo, thoáng đãng theo mong muốn của các thành viên trong gia đình .

Dựa theo hình thái mà có thể bám sát vào cấu trúc để tạo nên một bố cục hiện đại tránh đi các thiếu sót mà trong các công trình nhà ống thường thấy. Mẫu nhà được giới thiệu là sự kết hợp giữa mái thái truyền thống và kiến trúc hiện đại, nó cũng gây ấn tượng mạnh đối với nhiều người mà không phải trong các kiến trúc nào cũng có thể hiện diện. Theo các đánh giá mang tính khách quan thì chúng đã làm rất tốt nhiệm vụ của mình vì mỗi một mục đích sẽ tương ứng với những kiểu thiết kế khác nhau.

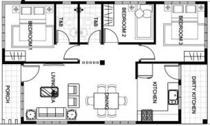
Bố cục từ chức năng bên trong ngôi nhà có thể xem như một diện mạo hoàn toàn mới mà có thể nhiều người vẫn chưa được thấy. Từ của nhà đi vào không gian liền kề là phòng khách và 3 phòng ngủ hiện đại được bố trí xoay quanh và phân chia từ các không gian bằng hành lang rộng. Phần cuối cùng là hệ thống nhà bếp rộng rãi kèm một nhà kho nhằm chứa các vật dụng thiết yếu trong việc sinh hoạt. Và cuối cùng là một phần sân sau dùng cho các nhu cầu từ gia chủ mà họ có thể tùy ý sắp xếp theo sở thích riêng của mình.
2. Thiết kế nhà ống 1 tầng đẹp diện tích 7x12m với kết cấu từ mái thái sang trọng :
Thông tin về mẫu nhà ống 1 tầng diện tích 7x12m hiện đại
- Dự án thiết kế : mẫu nhà ống 1 tầng diện tích 7x12m
- Chủ đầu tư: Phan Văn Thiện sinh năm 1990
- Phong cách xây dựng : Phối cảnh mặt tiền tối giản và tập trung vào không gian nội thất với 3 phòng ngủ - 2 nhà vệ sinh – 1 phòng khách – 1 nhà bếp
- Địa chỉ : Quận Bình Thạnh – thành phố Hồ Chí Minh
- Thời gian thi công: ~ 3 tháng.
Bạn có thể hình dung ra một ngôi nhà đẹp mắt dạng ống với kết cấu một tầng mà nhiều người vẫn luôn tin chọn ở các vùng nông thôn thông qua phối cảnh 3d phía dưới mà chúng tôi cung cấp. Có thể chúng sẽ là một ý tưởng cho một ngôi trong nhà tương lai của chính bạn, bởi lẽ chi phí để thiết kế nên một ngôi nhà không phải là con số nhỏ. Mà những tư liệu này hoàn toàn là miễn phí !

Khoảng sân rộng phía trước ngôi nhà, thì gia chủ đã sắp xếp một hệ thống sân vườn với cảnh quan xanh tươi nhằm hướng đến một sự phóng khoáng trong bố cục tổng quan nhằm tạo nên sự thành công cho cả một công trình. Theo chúng tôi cảm nhận thì việc sắp xếp một bộ bàn phía ngoài sân vườn là một phương án không tồi nhằm mở rộng không gian sinh hoạt phía ngoài để có nhiều sự lựa chọn cho các mục đích sinh hoạt khác nhau.

Kiến trúc nhà mái thái sang trọng hỗ trợ tối đa cho kết cấu dài từ kiên trúc dạng ống mà mọi người thường thấy. Phần mái sử dụng ngói làm vật liệu lợp kèm màu sắc nổi khi đường viền phía dưới là sắc vàng nhẹ nhàng và dẫn đến phía chân tường là màu trắng sáng phá vỡ đi sự đơn điệu từ màu sắc mà nhiều gia đình vẫn kết hợp cho mặt tiền ngôi nhà của mình. Đó còn là kinh nghiêm theo thời gian của đội ngũ xây dựng, thể hiện tài năng sáng tạo của mình để toát lên vẻ đẹp sang trọng, lịch lãm và vô cùng hiện đại mà nhiều gia chủ yêu mến.

Nhà kết hợp khá nhiều cửa sổ nhằm tạo độ thông thoáng cho các căn phòng chức năng, mặt khác khi sinh hoạt bên trong ngôi nhà bạn hoàn toàn có thể hướng mắt ra phía bên ngoài để cảm nhận không gian bên ngoài. Đan xen là hệ thống thông gió làm chức năng điều tiết nhiệt độ và đảm bảo các tiêu chí thiết kế một cách khoa học khi áp dụng bên trong một ngôi nhà. Đây có thể là một công trình đáng mơ ước của rất nhiều hộ gia đình, nhất là những cặp vợ chồng trẻ.

Với bố cục nội thất thông qua bản vẽ thể hiện đầy đủ các chức năng sinh hoạt mà chủ đầu từ yêu cầu với 3 phòng ngủ - 2 nhà vệ sinh – 1 phòng khách – 1 nhà bếp. Đi theo công năng từ thiết kế mở, mà bạn có thể thấy được sự hiện đại đã được tập trung vào bên trong nội thất không hề cần cầu kỳ tốn kém nhưng lại khai thác được tính tiện dụng mang đến với một sự khoa học là điều mà hầu hết chủ đầu tư nào cũng hướng đến cho ngôi nhà của mình.
Dựa theo sự phát triển và áp dụng các ứng dụng thông minh bên trong một ngôi nhà từ lối xây dựng khoa học mang đến nhiều hơn tính tiện dụng trong việc sinh hoạt đã mang đến cho không gian nhà ở một bộ mặt hoàn toàn mới trong năm 2021 này. Theo đó, bạn có thể cân đối lại các kiến trúc cao tầng với giá trị cao nhưng chi phí xây dựng là một vấn đề luôn phải đặt lên hàng đầu. Khi các mẫu nhà ống với cấu trúc 1 tầng vẫn có thể đáp ứng đầy đủ. Mong rằng 2 bản thiết kế này sẽ làm bạn hài lòng và đừng quên tìm hiểu thêm các bài viết trong hạng mục nhà ống đẹp của chúng tôi, xin chào và hẹn gặp lại !
Xem thêm :
Các mẫu nhà cấp 4 đẹp hiện đại
















![[Free thiết kế bản vẽ] mẫu nhà ống 500 triệu cực đẹp năm 2024](/img.php?url=https%3A%2F%2Fxaydungso.vn%2F%2Fimg%2Fposts%2Fa487a0-200x160-2.jpg)








![Mẫu nhà ống 7x12m hiện đại, tiện nghi [Kèm bản vẽ thiết kế]](/img.php?url=https%3A%2F%2Fxaydungso.vn%2F%2Fimg%2Fposts%2Fa584a0-200x160-2.jpg)

![[Top thiết kế nhà đẹp 2024] Nhà ống với mức giá 800 triệu](/img.php?url=https%3A%2F%2Fxaydungso.vn%2F%2Fimg%2Fposts%2Fa604a0-200x160-2.jpg)






