Quận 1 có vị trí thuận lợi, nằm trung tâm thành phố Hồ Chí Minh, có nền kinh tế phát triển, nhịp sống năng động. Những năm gần đây quận 1 nổi lên với những trung tâm thương mại sầm uất, những tụ điểm ăn chơi, giải trí dành cho công dân của thành phố và các tỉnh lân cận. Thuận tiện cho du khách đến với thành phố, xây khách sạn tại Quận 1 đang thu hút được nhiều nhà đầu tư hiện nay. Cùng xem xây khách sạn tại Quận 1 hiện nay như thế nào?
Mặt tiền xây khách sạn tại quận 1 nổi bật giữa không gian phố nhộn nhịp

Nếu nói về độ nổi bật, sang trọng bậc nhất thì kiến trúc tân cổ điển áp dụng cho xây dựng khách sạn tại Quận 1 là phương án thiết kế nhận được ngay cái gật đầu đồng ý của gia chủ sở hữu khách sạn.
Nhìn ngay vào kiến trúc này có thể nhìn thất ngay mặt tiền tầng 1 hiển hiện lên đầy mạnh mẽ khi được ốp đá tự nhiên viền theo cửa chính dẫn vào lối đi đại sảnh. Cửa chính sử dụng kính cường lực vừa có thể lấy được ánh sáng vào ban ngày vào không gian bên trong, tạo không gian mở, khi màn đêm buông xuống, ánh đèn vàng từ bên trong hắt ra, bừng sáng, thu hút ánh nhìn chú ý vị khách đi ngang qua. Nhìn tổng thể sẽ thấy công trình khách sạn tại quận 1 cao ráo, nổi bật nhờ vào phần chân được ốp đá kết hợp cùng hệ thống bậc thầm tam cấp dẫn vào đại sảnh.
Lên đến tầng bên trên của khách sạn tại Quận 1 sẽ được chia thành 3 không gian tương đương với 3 không gian phòng bên trong. Mỗi phòng đều được bố trí ban công nhỏ với hoạ tiết hoa văn nhẹ nhàng nhưng đủ để thể hiện nét cổ điển đặc trưng của những mẫu nhà thế kỷ 17 tại Châu Âu.

Kiến trúc đối xứng trong xây dựng khách sạn tại Quận 1 cũng được xem là kiến trúc đáng lưu ý dành cho các gia chủ tại nơi đây. Nhìn ngay vào khách sạn phía trên sử dụng lối kiến trúc tân cổ điển với những điểm nổi bật như cột trụ vuông vức được làm nổi bật ở vị trí mặt tiền, những đường nét hoạ tiết được làm nổi hay lan can ban công với hoạ tiết đơn giản, cửa vòm cùng với ánh đèn vàng mang đến độ lung linh, huyền ảo cho toàn bộ không gian.
Điều đặc biệt ở không gian này có thể nhắc đến chính là vị trí sảnh chính với hai lối dẫn vào khu vực lễ tân. Để lên được khu vực ấy cần đến hệ thống bậc thang tam cấp giúp toàn bộ công trình trở nên cao ráo hơn. Và phần diện tích bên dưới bậc thang tam cấp ấy chính là hầm đề xe vô cùng tiện lợi dành cho khách nghỉ tại đây. Tại vị trí tầng 1 này được bố trí với không gian café theo hướng cổ điển giúp những người yêu thích kiến trúc này chìm đằm trong không gian với tiếng nhạc du dương, dễ chịu.

Tiếp tục với phong cách kiến trúc tân cổ điển dành cho việc xây dựng khách sạn tại Quận 1 với phối cảnh mặt tiền đơn giản, toát lên vẻ đẹp thanh khiết, nhã nhẵn từ chính chủ sở hữu khách sạn này. Không gian này được chia thành 3 phần, tương ứng từ tầng 1 cho đến tầng 8. Mặt tiền tầng 1 có lối dẫn vào sảnh chính với hệ thống bậc tam cấp, tiểu cảnh cây xanh được bố trí 2 bên và hệ thống cột trụ vững chãi, hai bên là lối dẫn xuống khu vực gara để xe của khách sạn. Toàn bộ mặt tiền tầng 1 sử dụng kính để vị khách từ bên ngoài có thể trông thấy sự xa hoa bên trong khách sạn.
Mặt tiền các tầng phía trên của khách sạn thu hút bởi hình dáng mái vòm được làm nổi bật, đường chỉ phào đơn giản nhưng toát lên thần thái sang trọng, thanh cao. Đặc biệt kiến trúc mái với khối vuông vức làm nổi bật thiết kế đồ sộ của khách sạn tại quận 1.
Chú ý hơn vào phần mái nhìn thấy được kiến trúc sư không sử dụng mái như thông thường mà ở đó bố trí tiểu cảnh cây xanh. Với cách bố trí như thế này vừa đảm bảo cây xanh bắt buộc phải có trong không gian nhà, vừa giúp chống nắng hiệu quả, lại tạo nên một cảnh quan bắt mắt. Rất nhiều gia chủ tận dụng khoảng không gian này để bố trí thành quán café trên cao, được bao bọc bởi hàng cây xanh, thu hút vị khách không chỉ thuê khách sạn nghỉ ngơi mà cả những vị khách chỉ đến vì không gian thông thoáng.

Nếu không thích những khách sạn có kích thước lớn như bên trên thì một khách sạn với thiết kế nhỏ nhắn, xinh xắn này chắc chắn sẽ khiến bạn đổ gục ngay ánh nhìn đầu tiên.
Trong một không gian nhỏ hẹp, kiến trúc sư sử dụng phong cách kiến trúc hiện đại để có thể tối đa nhất diện tích ở mình. Màu trắng chính là tone màu chủ đạo của cả công trình, điểm nhấn trên nền trắng ấy là khung cửa làm bằng gỗ, tiểu cảnh cây xanh, bức tường với chậu hoa nhỏ, và những chiếc đèn tròn màu vàng ấn tượng. Điều làm vị khách hài lòng ở đây chính là bức tường gạch để nguyên, không trát xi và được trông hàng cây xanh rủ xuống tạo nên không gian khá tình. Tại không gian này những bức hình đẹp nhất sẽ được checkin với nhiều sự yêu thích.
Cách bố trí không gian, lựa chọn nội thất phòng khách sạn tại quận 1 nên học tập

Một cách bố trí không gian trong xây khách sạn tại Quận 1 gần gũi, thân thiện với người dùng, hiện đang là xu hướng được yêu thích trong thời gian gần đây. Hướng đến kiến trúc xanh, kiến trúc sư sử dụng gỗ công nghiệp cho toàn bộ không gian. Từ giường sẽ là khung cửa kính cỡ lớn với giường hướng nhìn ra khung cảnh toàn thành phố. Khách thuê nghỉ tại khách sạn tại Quận 1 như thế này có một không gian tràn ngập thiên nhiên bao quanh mình cả sáng, cả tối và thường cảm nhận có giấc ngủ ngon hơn, dễ chìm sâu vào giấc ngủ hơn.

Một không gian phòng khách sạn tại Quận 1 mang đến sự hiện đại vô cùng sẽ là gợi ý tham khảo tiếp theo dành cho gia chủ tương lai. Trong không gian này, kiến trúc sư lựa chọn màu tối, nhưng mang màu sắc lãng mạn rất thích hợp cho các cặp đôi để tận hưởng kỳ nghỉ trăng mật. Phòng khách sạn được bố trí với chiếc giường ngủ tròn, 1 bồn tắm được đặt ngay trong cùng không gian với giường ngủ, 1 bộ bàn ghế trang điểm, đủ để vị khách cảm thấy tiện nghi ngay trong chính ngôi nhà của mình.

Không gian phòng khách sạn tại quận 1 theo phong cách kiến trúc tân cổ điển. Phần đầu giường được ốp đá hoa cương, bọc da đầy sang trọng. Điểm nhấn chiếc thảm, hay nội thất ốp đá, cùng với những chiếc đèn pha lê rức sáng nhưng tất cả tổng hoà với nhau tạo nên không gian ngủ cực yên tĩnh.

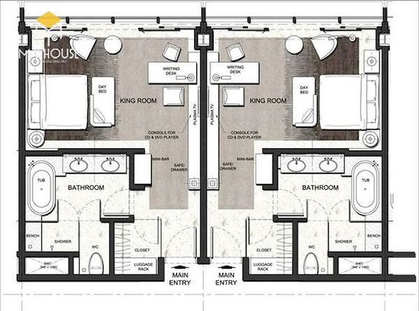
Một trong những gợi ý bố trí không gian phòng trong xây khách sạn tại quận 1 như sau: bao gồm 2 phòng với không gian ngủ và nhà vệ sinh. Cách bố trí này áp dụng cho không gian có diện tích hạn chế và gia chủ có mô hình kinh doanh khách sạn nhỏ.

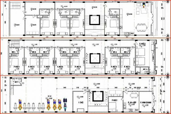
Còn với một khách sạn có diện tích lớn hơn, quy mô xây dựng lớn thì sẽ có mặt bằng tham khảo như sau: với tầng 1 sẽ bao gồm: gara, khu vực quầy lễ tân, phòng bếp + ăn, phòng ngủ gia chủ, và thang máy cùng cầu thang thông tầng. Lên đến khu vực tầng 2 sẽ 8 phòng ngủ và khu vực cầu thang. Và cuối cùng tầng thượng sẽ bố trí 4 phòng ngủ, không gian ăn và nhà kho để đáp ứng nhu cầu.
Xây khách sạn tại quận 1 có mức giá cao?

Tổng kích thước xây dựng = diện tích mặt sàn x số tầng
Chi phí thiết kế = Tổng kích thước xây dựng x đơn giá thiết kế / m2
Chi phí xây dựng khách sạn mini = Tổng kích thước xây dựng x chi phí xây dựng/ m2
Chi phí xây dựng khách sạn tại quận 1: 1 sao đang có mức giá dao động khoảng 5.000.000 đến 6.000.000 VNĐ/m2.
Khách sạn 2 sao thì hiện nay có mức giá dao động khoảng từ 6.500.000 đến 7.000.000 VNĐ/m2
Khách sạn 3 sao hiện nay theo hình thức trọn gói có mức giá khoảng từ 7.500.000 đến 8.500.000 VNĐ/m2.
Chi tiết về mức giá xây khách sạn tại quận 1, gia chủ có thể tiếp tục gặp đội ngũ tư vấn viên chuyên nghiệp tại Sàn giao dịch và thương mại điện tự liên quan xây dựng – Xây dựng số, website chính thức: xaydungso.vn.


































