Xu hướng xây dựng nhà nghỉ ngày càng trở nên phổ biến từ chính gia chủ sở hữu để đáp ứng mục đích kinh doanh. Hiện nay chi phí xây nhà nghỉ 20 phòng có mức giá như thế nào? Bản vẽ chi tiết, bản vẽ phối cảnh 3D gợi cho gia chủ tham khảo sẽ có trong bài viết dưới đây.
Chi phí xây nhà nghỉ 20 phòng
Để gia chủ có thể tính toán được chi phí xây nhà nghỉ 20 phòng của mình, trong bài viết này lấy một ví dụ cụ thể gia chủ tương lai có thể áp dụng được cho công trình của mình, cũng như chuẩn bị kỹ càng nguồn ngân sách phù hợp.
Ví dụ là gia chủ có diện tích sàn 200m2, mặt tiền 10m, tiến hành xây dựng với quy mô 4 tầng đáp ứng tiêu chuẩn nhà nghỉ 2 sao 20 phòng hiện nay. Chi phí xây nhà nghỉ 20 phòng được xác định bằng công thức: Tổng diện tích của nhà nghỉ 20 phòng x đơn giá thi công trên 1m2.
Cụ thể tính như sau:
Tổng diện tích của nhà nghỉ 20 phòng với quy mô xây dựng 4 tầng là: Diện tích phần móng + Diện tích tầng 1 + Diện tích tầng 2 + Diện tích tầng 3 + Diện tích tầng 4
Trong đó: Diện tích phần móng được tính 50% diện tích sàn = 50% x 200m2 = 100m2
Diện tích các tầng bằng 100% diện tích sàn và Diện tích tầng 1 = Diện tích tầng 2 = Diện tích tầng 3 = Diện tích tầng 4 = 200m2.
Áp dụng vào công thức tính tổng diện tích nhà nghỉ 20 phòng bên trên ta có kết quả như sau:
100m2 + 200m2 + 200m2 + 200m2 + 200m2 = 900m2
Đơn giá thi công trên 1m2 tham khảo như sau:
Phần thô: 2.5000.000 đồng/m2 – 2.800.000 đồng /m2 (tùy vào tổng diện tích xây dựng)
Chi phí xây nhà nghỉ 20 phòng phần thô có mức chi phí như sau:
900m2 x 2.500.000 đồng/m2 = 2.250.000.000 đồng
Hoàn thiện: 1.000.000 đồng/m2 – 1.150.000 đồng/m2 – 1.450.000 đồng/m2 – 1.650.000 đồng/m2- 2.250.000 đồng/m2 - 2.850.000 đồng/m2 (tùy mức đầu tư của chủ nhà)
Chi phí xây nhà nghỉ 20 phòng hoàn thiện có mức chi phí như sau:
900m2 x 1.000.000 đồng/m2 = 900.000.000 đồng
Nhân công: 900.000 đồng/m2 - 1.200.000 đồng/m2. (tùy độ phức tạp của bản vẽ)
Chi phí thuê nhân công xây nhà nghỉ 20 phòng có mức chi phí là:
900m2 x 900.000 đồng/m2 = 810.000 đồng
Tùy từng nhu cầu gia chủ, điều kiện kinh tế mà lựa chọn hình thức dịch vụ phù hợp và có sự chuẩn bị ngân sách phù hợp.
Bản vẽ chi tiết gợi ý cho xây nhà nghỉ 20 phòng cho gia chủ tham khảo
Bản vẽ chi tiết gợi ý xây nhà nghỉ 20 phòng cho gia chủ tương lai như sau:

Mặt bằng tầng 1 của nhà nghỉ 2 phòng có cách bố trí như sau: 2/3 diện tích sử dụng để làm khu vực lễ tân, khu bàn café. Tại nơi đây khách đến chờ làm thủ tục checkin có thể ngồi tại khu vực bàn café của nhà nghỉ. 1/3 diện tích còn lại được gia chủ bố trí khu vực thang máy, nhà vệ sinh, kho, khu pha chế và bếp ăn. Hoặc có thể bố trí cầu thang bộ song hành với thang máy để phòng trừ những trường hợp như mất điện, hay xảy ra sự cố cháy nổ không thể sử dụng được thang máy.

Phối cảnh 3D để gia chủ xây dựng nhà nghỉ 20 phòng tham khảo, rất phù hợp cho công trình được xây dựng tại khu vực thành phố có diện tích mặt tiền hạn chế hiện nay thì thiết kế chữ L được xem là giải pháp thông minh. Có thể nhìn thấy ngay trong công trình này quầy lễ tân được đặt cạnh thanh máy, trong 1 khoảng diện tích vừa đủ 2 – 3 người, đằng sau là thang máy, kế tiếp cầu thang bộ và khu vực bên trong. Nội thất sử dụng được ốp đá mặt bàn cùng gỗ công nghiệp nâu trầm tạo nên độ sang trọng, độ bóng cho công trình. Phần sàn nhà cũng được gia chủ sử dụng gạch ốp lát giả gỗ có vân nhưng màu sáng hơn để khi kết hợp với ánh đèn có được hiệu ứng ánh sáng vừa đủ cho không gian.

Một cách bố trí khách cho diện tích mặt tiền rộng hơn dành cho nhà nghỉ 20 phòng. Bố trí không gian với quầy lễ tân ở vị trí thẳng với mặt tiền, hướng ra cửa để thu hút được sự chú ý của vị khách khi bước vào. Trước khi đi đến quầy lễ tân là hai hàng ghế gỗ để vị khách trong lúc chờ thủ tục checkin hay chờ đợi ai đó có thể ngồi nghỉ. Trần sử dụng mẫu trần thạch cao tròn, xoắn ốc kết hợp cầu pha lê bên trên. Không gian của nhà nghỉ 20 phòng này ấm áp, sang trọng bởi nội thất được ốp gỗ và ánh đèn vàng trong không gian.

Cũng trong không gian rộng nhà nghỉ 20 phòng với khu vực tầng 1 sử dụng hình chữ U. Từ phía cửa bước vào sẽ bắt gặp ngay không gian đại sảnh rộng với 1 bên là khu vực lễ tân, và một bên là bàn café, chính giữa là cầu thang rộng dẫn lên cách tầng, bên tay phải cùng với khu vực lễ tân là thang máy và khu vực pha chế của nhà nghỉ.

Gợi ý một phong cách đơn giản, hiện đại cho nhà nghỉ 20 phòng hiện nay với phong cách tối giản. Trong không gian này bao gồm: Quầy lễ tân, tiểu cảnh cây xanh, đồng hồ gắn tường, và chiếc đèn trần có thiết kế hiện đại. Phần tường, trần được ốp giả bê tông mang sắc thái hiện đại, gỗ ép công nghiệp tạo nên phong cách hiện đại, thêm ánh sáng từ chiếc đèn vàng, sắc xanh của thiên nhiên cho thấy sự hài hòa.

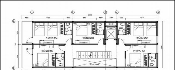
Tiếp tục bản vẽ mặt bằng cho tầng nhà nghỉ 20 phòng, mỗi tầng bao gồm 5 phòng có bố trí giống với bàn vẽ như trên. Từ khu vực thang máy đi ra, nhìn thấy đối diện là cầu thang thông tầng. Phía bên tay trái là hai phòng nghỉ đầu tiên, kế tiếp bên phài lần lượt là 3 phòng nhỉ. Trong mỗi phòng trong nhà nghỉ 20 phòng sẽ có bố trí bao gồm: 1 giường, 1 nhà vệ sinh. Tại mỗi tầng có 2 phòng ngủ góc với diện tích lớn hơn bố trí với 2 giường đơn để phục vụ nhu cầu của khách đến nhà nghỉ.

Một mẫu bố trí phòng ngủ gợi ý cho gia chủ trong nhà nghỉ 20 phòng như sau: Có thể nhìn thấy không gian phòng sơn màu trắng đơn giản, không sử dụng họa tiết gì gây rối mắt người nhìn. Từ vị trí cửa phòng bước vào là nhà vệ sinh, bên tay trái là tủ quần áo gắn tườn, bên dưới có chiếc tủ lạnh nhỏ. Tiến vào bên trong là 1 chiếc giường đôi, 1 bộ bàn ghế nhỏ uống nước, bàn trang điểm, tủ để đầu giường và tivi gắn tường. Trong không gian này kiến trúc sư sử dụng cửa sổ để tạo được độ thông thoáng, nâng được diện tích so với không gian thực tế khác chật.

Hoặc phương án bố trí 2 giường đơn trong nhà nghỉ 20 phòng có cách bố trí, sắp xếp nội thất như sau: 2 giường đơn, tủ để đầu giường, kệ ti vi, tủ để giày, bộ bàn ghế uống nước. Trong không gian này có phần cửa sổ bằng kính rất lớn ở phía đối diện giường ngủ tạo được cảm giác trong không gian rộng rãi. Không gian này hiện đại khi sử dụng ánh sáng trắng cùng gỗ ép công nghiệp bền, có độ thẩm mỹ cao.
Phối cảnh 3D nhà nghỉ 20 phòng

Một gợi ý mặt tiền cho xây dựng nhà nghỉ 20 phòng áp dụng phong cách hiện đại. Khu vực tầng 1 sử dụng cửa cuốn hiện đại, mở ra lối vào khu vực tầng hầm gửi phục vụ cho vị khách của nhà nghỉ. Khu vực mặt tiền các tầng có kiến trúc giống nhau với hệ thống cửa kính và ban công bằng sắt sơn trắng hiện đại, bên ngoài ốp đá xám thu hút. Đặc biệt nhà nghỉ 20 phòng này còn sở hữu một hệ thống tầng tum với tiểu cảnh cây xanh bên trên vừa đáp ứng có không gian xanh trong nhà lại mang đến khu vực tầng bên dưới liền kề không khí mát mẻ. Gia chủ sở hữu hoàn toàn có thể bố trí thành café trên cao cực kỳ thu hút.

Nhà nghỉ 20 phòng áp dụng kiến trúc tân cổ điển cũng làm nên điểm thu hút vị khách ghé thăm. Khoác lên mình màu trắng của sự trang nhã nhưng không kém phần cổ điển. Điểm nhấn là ban công bằng sắt sơn đen với hoa văn cầu kỳ. Khu vực tầng 1 được ốp đá granit cùng hệ bậc tam cấp bắt mắt. Hệ thống khung nổi tạo được nét nhấn nhá cho toàn bộ không gian.
Tùy theo nhu cầu của mỗi gia chủ mà lựa chọn thiết kế khác nhau để thu hút được khách đến với mình.
Xem thêm

































