Những ngôi nhà 4 tầng hiện nay mọc lên rất nhiều đặc biệt là ở khu vực các thành phố lớn. Có rất nhiều chủ đầu tư hiện nay quan tâm, tìm kiếm những mẫu nhà 4 tầng, tìm hiểu về chi phí xây dựng. Trong phạm vi bài viết này của chúng tôi hôm nay giúp các quý khách có được cách tính chi phí xây nhà 4 tầng 80m2 để từ đó các chủ đầu tư có thể nắm bắt được tổng chi phí dự trù của toàn bộ ngôi nhà.
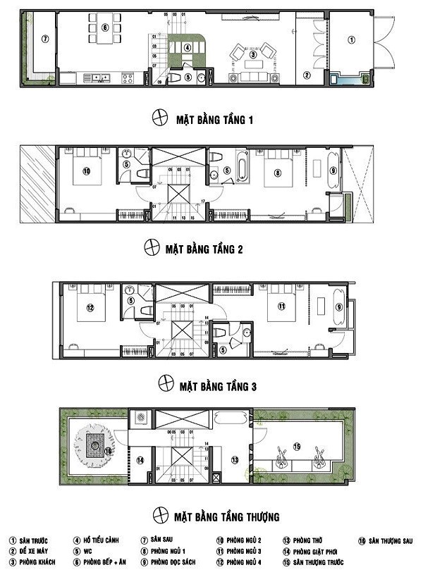
Hình ảnh 3D, phối cảnh bản vẽ, mặt bằng tổng thể nhà 4 tầng 80m2

Với diện tích là 80m2 các chủ đầu tư có thể thỏa thích lựa chọn phong cách cho ngôi nhà của gia đình mình. Không nhất thiết phải bó hẹp trong một khuôn mẫu giống như những ngôi nhà 4 tầng chỉ có diện tích nhỏ như 30m2 hoặc 40m2 thường chỉ có thể lựa chọn kiểu nhà ống mái bằng. Còn đối với nhà 80m2 các chủ đầu tư hoàn toàn có thể lựa chọn phong cách hiện đại mới mẻ, có thể lựa chọn các kiểu dáng như mái lệch, mái bằng thậm chí là những mẫu thiết kế mang phong cách cổ điển hoặc tân cổ điển.
Mẫu thiết kế nhà 4 tầng 80m2 mái lệch đang là xu hướng lựa chọn của nhiều chủ đầu tư. Bởi lẽ ngôi nhà mang đến sự mới lạ, độc đáo không lo lỗi thời bởi sự sáng tạo, hiện đại của phong cách này mang đến. Hệ mái lệch là điểm nhấn của ngôi nhà này, đồng thời còn để lại ấn tượng cho người nhìn bởi một vẻ đẹp rất riêng, rất sang trọng khi có sự xuấn hiện của hệ thống cửa kính, cầu thang, lan can bằng hệ kính cường lực mở rộng không gian, bắt mắt...

Với ngôi nhà có diện tích 80m2 có thể phát huy hết công năng sử dụng, mang đến cho bạn và gia đình một không gian thoáng đãng, thoải mái, bạn hoàn toàn có thể kết hợp với mục đích kinh doanh. Ở ngôi nhà 4 tầng này bạn có thể dành tầng 1 để phục vụ kinh doanh. Các tầng còn lại sẽ phục vụ sinh hoạt. Trong trường hợp không kinh doanh bạn có thể thiết kế với đầy đủ các phòng chức năng ở tất cả các tầng rất thoải mái với 1 phòng khách, 1 phòng thờ, 4 phòng ngủ, 1 phòng bếp – phòng ăn, các nhà vệ sinh chung, phòng đọc...

Mẫu nhà 4 tầng 80m2 theo lối thiết kế mái bằng có lẽ vẫn là sự lựa chọn nhiều nhất tính đến thời điểm hiện tại. Kiểu dáng này mang đến sự thông thoáng, rộng rãi, tiết kiệm không gian, tiết kiệm chi phí khi xây dựng, màu sắc chủ yếu được lựa chọn cho mẫu nhà này là gam màu tươi sáng nhằm mục đích mang đến không gian rộng rãi cho ngôi nhà. Các phòng chức năng được bố trí rất hài hòa, bắt mắt với đầy đủ tiện nghi, hiện đại. Chắc chắn sẽ mang đến cho bạn và gia đình một cuộc sống thực sự viên mãn, hạnh phúc tràn đầy.

Chi phí xây dựng nhà 4 tầng 80m2 hết bao nhiêu tiền?

Để hoàn thiện được một ngôi nhà 4 tầng 80m2 thì bao gồm khá nhiều chi phí và trải qua một thời gian khá dài để hoàn thiện. Với cụ thể các chi phí để hoàn thiện nhà 4 tầng 80m2 bao gồm các chi phí như: Chi tư vấn, giám sát công trình, chi phí thuê thiết kế kiến trúc, nội thất của ngôi nhà. Chi phí hoàn thiện giấy tờ pháp lý, chi phí ép cọc bô tông, chi phí thi công xây dựng nhà từ tầng 1 đến tầng 4. Chi phí dùng cho trang thiết bị, nội và ngoại thất để ngôi nhà 4 tầng diện tích 80m2 trở lên bắt mắt, hiện đại và sang trọng.

Ngoài ra còn có các chi phí hoàn công và chi phí phát sinh trong quá trình xây dựng bạn cần dự trù. Tùy vào nhu cầu và khả năng của mỗi gia đình. Khi xây nhà có thể bao gồm hết những chi phí xây nhà mà chúng tôi kể trên hoặc chỉ một số chi phí mà có sự thay đổi nhất định.

Để dự trù được kinh phí chúng tôi giúp các chủ đầu tư có trong tay phương pháp tính chi phí xây dựng nhà 4 tầng 80m2 theo m2 xây dựng. Có 2 hình thức để các chủ đầu tư lựa chọn đó là thi công nhà 4 tầng theo hình thức xây dựng phần thô và thi công xây dựng hoàn thiện. Trong đó những yếu tố để cấu thành chi phí thi công xây dựng nhà 4 tầng 80m2 bao gồm có: Chi phí dành cho nhân công và những chi phí mua vật tư để xây thô và những chi phí dành cho vật tư hoàn thiện. Ngoài ra còn có cả chi phí quản lý, lợi nhuận...
Trên thị trường xây dựng hiện nay có 2 cách tính phổ biến được cả chủ thầu và gia chủ áp dụng đó là chi phí xây nhà theo m2. Cách thứ 2 là cách tính chi phí xây nhà theo khối lượng và đơn giá theo thời giá thị trường cụ thể là giá cả của nguyên vật liệu hay còn gọi là bóc tách khối lượng.
Để gia chủ có thể tự mình lên dự toán kinh phí xây nhà 4 tầng 80m2 chúng tôi xin được cụ thể cách tính chi phí xây nhà theo m2 xây dựng. Đây là cách dùng phổ biến và rất dễ thực hiện. Diện tích tính giá xây nhà 4 tầng 80m2 theo m2 xây dựng phụ thuộc vào diện tích tính giá và đơn giá xây dựng.
Chi phí xây dựng nhà 4 tầng diện tích 80m2 sẽ bằng với tổng diện tích tính giá xây dựng x đơn giá/m2 của toàn bộ ngôi nhà. Trong đó, diện tích tính giá xây nhà 4 tầng80m2 bao gồm có các hạng mục. Móng cọc được nhân với 50% x diện tích xây dựng. Các tầng từ tầng 1 đến tầng 4 mỗi tầng đều thực hiện = 100% x diện tích xây dựng. Lựa chọn hệ mái bê tông cốt thép cho ngôi nhà = 50% x diện tích xây dựng. Phần sân trước và sân sau = 50% x diện tích xây dựng. Phần này bạn có thể chọn hoặc không tùy thuộc vào kinh phí của gia đình.

Cụ thể trên thị trường hiện nay thì đơn giá xây nhà phần thô hiện nay là: 3.500.000 VNĐ/m2 và đơn giá xây nhà trọn gói là: 5.500.000 VNĐ/m2. (Chi phí này dành cho vật tư loại tốt). Ngoài ra chi phí có sự thay đổi khá lớn khi bạn chọn lựa hình thức xây nhà theo phong cách cổ điển, biệt thự đòi hỏi kĩ thuật cao thì có khi lên đến 10.000.000 VNĐ/m2.
Dưới đây là dự toán chi phí xây nhà 4 tầng 80m2. Phần móng của ngôi nhà 4 tầng diện tích 80m2 = 50% = 40m2. Tầng 1 được tính = 100% = 80m2. Tầng 2 được tính = 100% = 80m2. Tầng 3 được tính với 100% cũng bằng = 80m2. Cuối cùng là tầng 4 = 100% = 80m2. Ngôi nhà 4 tầng này bạn lựa chọn mái ngói sẽ được tính là = 50% = 40m2. Phần sân của của ngôi nhà 50% = 40m2. Như vậy từ đó ta có tổng diện tích được tính theo đơn giá xây dựng của ngôi nhà 4 tầng 80m2 là: 40m2 + 320m2 + 40m2 + 40m2 của tầng hạng mục có tổng ngôi nhà là 440m2 x với đơn giá xây dựng.
Dựa vào đơn giá hiện nay trên thị trường có giá giao động vì còn phụ thuộc vào chất lượng của vật liệu xây dựng mà có giá thành khác nhau. Để tính được chi phí xây dựng ngôi nhà 4 tầng diện tích 80m2 không quá khó khăn bạn chỉ cần lấy chi phí hoàn thiện ngôi nhà 4 tầng 80m2 là 440m2 x 5.500.000 VNĐ theo đơn (đơn giá hoàn thiện sẽ bằng 2 tỷ 400 VNĐ/m2. Chi phí này chưa bao gồm trang trí nội thất cũng như chưa bao gồm các yếu tố ảnh hưởng đến chi phí xây dựng như: vị trí địa hình của lô đất, thời giá nguyên vật liệu, thuê đơn vị nhà thầu...
Xây dựng số - nơi trao gửi ước mơ xây dựng trọn vẹn
Yếu tố nhà thầu cũng có ảnh hưởng khá lớn đến chi phí xây dựng của ngôi nhà 4 tầng diện tích 80m2. Chính vì vậy lựa chọn được một nhà thầu uy tín, chất lượng là việc làm hết sức quan trọng với tất cả các chủ đầu tư.

Việc làm này trở lên dễ dàng khi bạn lựa chọn xây dựng số sàn giao dịch thương mại điện tử chuyên về lĩnh vực xây dựng. Tại đây bạn hoàn toàn được lựa chọn một đơn vị uy tín có đầy đủ hồ sơ năng lực công ty, có bề dày kinh nghiệm, có đội ngũ kiến trúc sư tài giỏi, có đội ngũ nhân công lành nghề... Bạn ở bất cứ tỉnh thành nào trên cả nước đều có thể lựa chọn đơn vị nhà thầu tại xây dựng số.
Trên đây là những chia sẻ của chúng tôi về chi phí xây nhà 4 tầng diện tích 80m2. Hi vọng sẽ giúp được các chủ đầu tư dự trù được kinh phí trong quá trình xây dựng ngôi nhà trong mơ ước của gia đình mình.
Xem thêm

































