Thay vì chọn mô hình nhà 2 tầng, nhiều chủ nhà muốn sở hữu một căn biệt thự có không gian rộng rãi, chức năng sử dụng thoải mái. Do đó, mô hình biệt thự 3 tầng đẹp sẽ là gợi ý hợp lý và tuyệt vời nhất dành cho mọi gia đình đang muốn sở hữu không gian rộng. Bài viết dưới đây chúng tôi sẽ giới thiệu cho bạn bản vẽ thiết kế biệt thự 3 tầng mái thái đẹp, đây chắc chắn sẽ là một kiến trúc để đáp ứng nhu cầu như thế.
Sẽ có 2 lựa chọn chúng tôi giới thiệu cho khách hàng, mỗi kế hoạch sẽ là một không gian khác nhau, với vẻ đẹp và sự độc đáo riêng. Tùy thuộc vào tính cách và sở thích của mỗi người, hãy chọn một mô hình mà bạn thấy phù hợp nhất. Chức năng sử dụng bao gồm 5 phòng ngủ, 1 phòng khách, 3 phòng vệ sinh, 1 phòng bếp và ăn và tầng 3 là sẽ khu vực spa hoặc massage.
Phối cảnh phương án 1:

Mẫu biệt thự 3 tầng mái thái với phương án 1
Đối với những khách hàng đang muốn sở hữu một biệt thự đẹp nổi bật, thiết kế đan xen truyền thống và hiện đại, đây sẽ là một lựa chọn hợp lý và đáng để xem xét. Với tông màu nền bắt mắt, mẫu nhà mang đến sự ấm áp, nhẹ nhàng nhưng cũng đầy tự hào và mạnh mẽ. Kiến trúc của ngôi nhà đồ sộ và cao lớn với mái Thái vững chắc và ấn tượng.
Ngoài những ô cửa nổi bật với màu xanh lá cây, lan can được làm bởi các thanh ngang cũng góp phần tạo nên sự độc đáo và thú vị hơn cho dự án. Không quá cầu kỳ và phức tạp, tất cả các chi tiết trang trí cho biệt thự đều được tối giản với những đường kẻ ngang mang lại sự tinh tế và gần gũi.
Phối cảnh phương án 2:

Mẫu biệt thự 3 tầng mái thái với phương án 2
Khác với lựa chọn đầu tiên, lần này chúng tôi sẽ giới thiệu đến khách hàng của mình một không gian sang trọng và thực sự đẳng cấp. Hiện lên đầy tự hào và vẻ đẹp đầy sự ấn tượng. Mẫu biệt thự 3 tầng đẹp này mang đến sự hiện đại, theo kịp xu hướng thiết kế hiện nay, mái Thái được bố trí ở tầng 3 và mặt tiền của tầng 2 vừa thực hiện chức năng che chắn vừa là điểm nhấn thẩm mỹ cho dự án. Sự hài hòa giữa mảng màu sắc và các chi tiết trang trí làm tăng thêm sự hấp dẫn và ấn tượng của thiết kế này. Cụ thể, mặt tiền bằng đá rất độc đáo, không gian ban công trên tầng hai rất rộng rãi và thoáng mát.

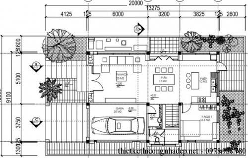
Mặt bằng tầng 1
Mặt bằng tầng 1 sẽ bao gồm khu vực để xe ngay cạnh phòng khách, 1 phòng khách có diện tích lớn, không gian thông thoáng. Tiếp nối phòng khác là khu vực phòng bếp + phòng nấu nướng sinh hoạt chung. 1 phòng ngủ loại nhỏ cũng sẽ được xây dựng tại mặt bằng tầng 1, có thể làm nơi để đồ hoặc chỗ cho người giúp việc.

Mặt bằng tầng 2
Đây sẽ là không gian hoàn toàn riêng tư với 3 phòng ngủ cho các thành viên trong gia đình và 1 không gian làm nơi thờ cúng linh thiêng. Sẽ có 1 phòng vệ sinh chung được bố trí hợp lý phục vụ cho toàn tầng 2.

Mặt bằng tầng 3
Dự trù trường hợp nhà đón khách, mặt bằng tầng 3 sẽ xây thêm 1 phòng ngủ. Các không gian còn lại sẽ được dùng để làm nơi sinh hoạt chung của gia đình. Hoặc thiết kế đáp ứng chức năng mà gia chủ mong muốn như 1 khu vực spa hay phòng massage cho cả gia đình.
Bản vẽ thiết kế biệt thự hiện đại 3 tầng đẹp mà chúng tôi giới thiệu đều có không gian rộng rãi và thoáng mát. Theo đó, cả hai lựa chọn kiến trúc biệt thự đều có điểm nhấn là mái thai1 được thiết kế ấn tượng, xây dựng tỉ mỉ. Khách hàng có thể đưa ra lựa chọn của riêng mình, tùy thuộc vào sở thích và mong muốn của mỗi người.
Mẫu biệt thự 3 tầng này, theo chúng tôi hoàn toàn phù hợp với khách hàng hiện tại vì nó hợp thời trang và có tính thẩm mỹ cao. Cách bố trí các không gian trong biệt thự khá thông minh và hợp lý, mang đến trải nghiệm cuộc sống thuận tiện và dễ dàng.
Nguồn: thietkethicongnhadep.net
































