Ngày nay, có rất nhiều cặp vợ chồng mới cưới mong muốn sở hữu một ngôi nhà riêng tư của chính mình. Nhưng bài toán kinh phí luôn là chủ đề nan giải của hầu hết các cặp vợ chồng, cũng như các hộ gia đình mơ ước xây dựng nhà với giá rẻ. Bởi lẽ đó, những phương án thiết kế nhà cấp 4 có không gian sinh sống tiện nghi với chi phí thấp luôn là chủ đề có nhiều lượt tìm kiếm nhất. Để giúp mọi gia đình Việt Nam có ý tưởng thiết kế xây dựng nhà đẹp với giá phải chăng, chúng tôi xin chia sẽ mẫu nhà cấp 4 có gác lửng 3 phòng ngủ hiện đại với chi phí thấp được nhiều người yêu thích. Nhà cấp 4 đẹp tại đây lựa chọn phong cách hiện đại làm điểm nhấn ấn tượng. Thiết kế có gác lửng tiện nghi, nhằm nới rộng công năng sử dụng cho các thành viên trong một gia đình. Chi phí xây dựng hợp lý, kiến trúc nắm bắt xu hướng mới nhất, công năng bố trí tối ưu và không lo lắng vấn đề lỗi xu thế theo năm tháng là những ưu điểm nổi bật của nhà cấp 4 có gác lửng ngay sau đây.
Nhà cấp 4 xây dựng trên tổng diện tích đất 120m2, khoảng diện tích khá thoải mái trong việc bố trí các khu vực trong ngôi nhà. Qua cuộc trò truyện, các kiến trúc sư đã nắm bắt được nhu cầu cũng như sở thích của chủ đầu tư nên đã ra phương án thiết kế nhà đẹp như sau. Toàn bộ các căn phòng trong ngôi nhà, hướng nhà, màu sắc,… do kiến trúc bố trí tỉ mỉ sao cho phù hợp với mệnh – tuổi phong thủy của chủ đầu tư, nhằm mang lại nhiều điều may mắn khi sinh sống.
Phối cảnh mẫu nhà cấp 4 có gác lửng 3 phòng ngủ ở Vĩnh Phúc

Vì diện tích đất không cho phép để bố trí toàn bộ các công năng trong ngôi nhà, các kts đã đề xuất thiết kế gác lửng để tăng diện tích sử dụng một cách thoải mái nhất cho các thành viên sinh hoạt. Ưu điểm lớn nhất của các ngôi nhà cấp 4 có gác lửng đẹp đó là đáp ứng đầy đủ tiêu chí, mong muốn cho những hộ gia đình đông con. Ngoài tăng diện tích sử dụng và dễ dàng sắp xếp các căn phòng, thì gác lửng còn tăng tính thẩm mỹ cao cho kiến trúc tổng thể bên trong ngôi nhà. Không cần quá sang trọng như những căn nhà cao tầng với kiến trúc đồ sộ, nhà cấp 4 1 tầng phong cách hiện đại này cũng đủ làm nhiều người mơ ước sở hữu.

Mặt tiền sử dụng sơn tường màu xám ghi, kết hợp hài hòa cùng mái thái tạo điểm nhấn ấn tượng cho tổng quan phía trước. Bao xung quanh là hàng rào cao chắc chắn, trang trí đẹp mắt từ các loại cây leo. Nhà thiết kế theo kiểu dáng đơn giản, nhằm giảm thiểu tối đa chi phí xây dựng cho chủ đầu tư. Điều này bạn hoàn toàn có thể đầu tư và chăm chút hơn khi đã có nguồn tài chính ổn định về sau này để hạn chế tối đa các chi phí phát sinh.
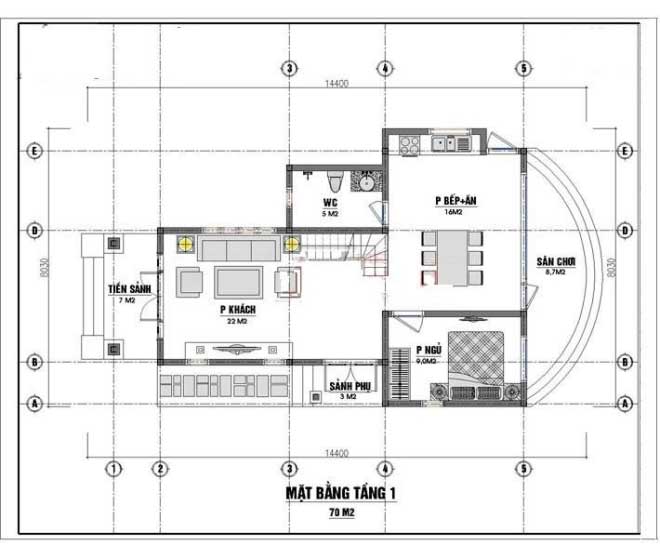
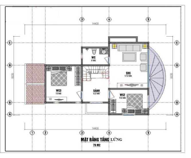
Chi tiết bản vẽ mặt bằng tầng 1 và tầng lững của căn nhà cấp 4 đẹp

Công năng bản vẽ tầng 1 gồm: sân trước và sân sau rộng rãi, phòng khách rộng thoáng, không gian bếp liền kề bàn ăn, phòng ngủ cho bố mẹ, 1 phòng vệ sinh có đầy đủ trang thiết bị cần thiết.

Công năng bản vẽ tầng lửng gồm: 2 phòng ngủ rộng rãi dành cho con, phòng sinh hoạt chung cho cả tầng, ban công nhỏ đón gió.
Đây là một trong những thiết kế đẹp, sở hữu trong mình đầy đủ tiêu chuẩn phù hợp với nhu cầu của nhiều hộ gia đình Việt. Với thiết kế chức năng hợp lý, diện tích sử dụng thoải mái dành cho gia đình có đông thành viên, thông tin chủ đề được sưu tầm nhầm mang tới những kiến trúc đẹp tới người có nhu cầu. Hy vọng qua mẫu thiết kế này bạn sẽ có thêm vài ý tưởng mới dành cho dự định của mình.
Nguồn tin: https://wedo.vn/
Tin mới liên quan:
































