Sau một loạt các thiết kế biệt thự sân vườn ấn tượng, lần này chúng tôi tiếp tục gửi cho khách hàng mẫu biệt thự 4 tầng mái thái hiện đại. Với kiến trúc độc đáo, làm nổi bật một mái nhà khác, đây sẽ là một bản vẽ bắt mắt phù hợp với những gia đình đang tìm kiếm không gian sống sang trọng và đẳng cấp.
Được thiết kế theo kiến trúc mái thái ấn tượng, đây là một trong những biệt thự được đánh giá cao về tính thẩm mỹ và phong cách hiện đại . Hệ thống sân vườn góp phần tạo cảnh quan xanh, mang đến không gian mở thân thiện với môi trường. Một dự án cải tạo trên mặt bằng nhà cũ. Do đó, trong quá trình xây dựng, chỉ một phần của ngôi nhà 4 tầng sẽ được giữ lại để lưu trữ, sẽ có một sân đi lại để kết nối các không gian. Tiếp theo, trước vườn một bể cá sẽ được xây dựng, bên phải được sử dụng để làm nhà để xe và xây dựng những thác nước đẹp, thỏa mãn niềm đam mê của chủ sở hữu.
Phối cảnh các góc mẫu biệt thự 4 tầng mái thái hiện có 3 phòng ngủ

Phối cảnh mặt tiền
Quan sát thiết kế của dự án mặt tiền, có thể thấy ngôi nhà xuất hiện rất hoành tráng và tráng lệ. Ngoài sự chăm sóc chu đáo của mái nhà, các ô cửa cũng được kết hợp hài hòa với màu chủ đạo là tông màu cam mềm mại của ngôi nhà. Không quá cầu kỳ hay phức tạp với các chi tiết, mọi thứ dường như rất đơn giản tạo cảm giác quen thuộc và gần gũi. Sự kết hợp tinh tế giữa thiết kế truyền thống và hiện đại.

Góc nhìn khác
Biệt thự đẹp xuất hiện rất hấp dẫn bởi sự kết hợp hài hòa giữa không gian và cách bố trí hợp lý của mái nhà để tạo sự quyến rũ và tinh tế. Phần bên ngoài của mái được thiết kế để nâng cao tính thẩm mỹ, điểm nhấn của mô hình kiến trúc của biệt thự vườn 4 tầng.

Tổng thể góc nhìn từ trên cao
Từ góc nhìn thứ nhất, khách hàng có thể quan sát tổng thể mái nhà phía trên. Qua đó nhận ra sự tách biệt của từng khu vực, tạo cảm giác chồng chéo của mái Thái rất đẹp và ấn tượng.
Bản vẽ chi tiết mặt bằng các tầng của căn biệt thự nhà vườn 4 tầng đẹp

Mặt bằng tầng hầm
Đây sẽ là một khu vực kho và xây dựng thêm cầu thang để kết nối với tầng đầu tiên.

Mặt bằng tầng 1
Ở tầng trệt, một khu vực để xe sẽ được bố trí hợp lý gần sảnh, tiếp theo là một phòng ngủ nhỏ và nhà bếp + phòng ăn. Để thuận tiện cho việc di chuyển giữa các không gian, hành lang bên trong sẽ được thiết kế ở giữa nhà. Phòng khách là bộ mặt của toàn bộ biệt thự nên rộng rãi và thoáng mát. Điểm nổi bật của khu vực này là bộ ghế sofa lớn ở trung tâm. Tường sẽ được xây dựng trong kính trong suốt, tầm nhìn mở trực tiếp ra vườn. Khu vực bếp được đặt ngay phía sau phòng khách với bàn ăn 8 chỗ cho cả gia đình.

Mặt bằng tầng 2
Phòng ngủ cho bố mẹ và phòng thờ sẽ được bố trí trên mặt bằng của tầng hai. Hai không gian này khá riêng biệt và yên tĩnh, đối với phòng ngủ chính, sẽ có không gian nhà rộng rãi với phòng tiếp đón khách và phòng thay đồ. Phòng tắm cũng sẽ được thiết kế tỉ mỉ, sử dụng các vật liệu hiện đại và tiện lợi nhất như bệ và chậu rửa, xong hơi, phòng tắm đứng.

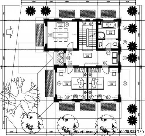
Mặt bằng tầng 3
Cách bố trí công năng của tầng 3 bao gồm 2 phòng ngủ còn lại sẽ nằm ở tầng 3, một phòng đọc sách sẽ được sắp xếp ở đây. Cả hai tầng chia sẻ một WC được sắp xếp hợp lý và thuận tiện.

Mặt bằng tầng áp mái
Sẽ được bố trí một cầu thang để di chuyển, một cầu thang và một sân thượng để tận hưởng gió và không khí trong lành.
Sở hữu một quỹ đất hình thanh, nên mặt tiền sẽ được thiết kế ở phần đáy lớn, theo đó mặt sau là đáy nhỏ. Bởi vì dự án này đòi hỏi rất nhiều kỳ công kiến trúc cho quá trình xây dựng, nên phải mất rất nhiều kinh phí để làm biệt thự này.
Nguồn: thietkethicongnhadep.net
































