So với những mẫu biệt thự 2 tầng theo phong cách Châu Âu, biệt thự 2 tầng Tân cổ điển, thì mẫu biệt thự hiện đại 2 tầng hiện đại 120m theo lối truyền thống được nhiều gia đình lựa chọn hơn hẳn, bởi xét về chi phí đầu tư những mẫu nhà biệt thự này phù hợp với kinh tế của nhiều gia đình ở thành thị và nông thôn hơn so với những mẫu biệt thự sang trọng, hoành tráng khác. Trong phạm vi bài viết này, chúng tôi xin gửi đến quý bạn đọc một mẫu biệt thự 2 tầng mái thái vô cùng hiện đại và đẹp mắt của gia đình anh Tài tại Hưng Yên.
*Yêu cầu tư vấn thiết kế:
Chúng tôi rất vui mừng khi nhận được điện thoại của anh Tài qua số điện thoại của công ty. Anh biết đến công ty chúng tôi qua tìm hiểu trên mạng và đã cảm thấy uy tín để chia sẻ. Anh đã tâm sự với chúng tôi về mẫu nhà mong muốn trong tương lai của mình.
Anh cho biết hiện đang sở hữu ô đất 10x15m khá rộng tại Hưng Yên. Gia đình anh có 6 thành viên và 3 thế hệ cùng sinh sống dưới 1 mái nhà. Mong muốn của anh là thiết kế một mẫu nhà đẹp kiểu biệt thự 2 tầng hiện đại, khang trang, làm tổ ấm cho các con cũng như phụng dưỡng bố mẹ tốt nhất. Ngôi nhà của anh mong muốn thiết kế hiện đại kiểu mái thái. Ngôi nhà sẽ bố trí nhiều cửa sổ cũng như ô thoáng cho mẫu thiết kế nhà thoáng và cao. Anh ưa thích phong cách hiện đại nhưng anh yêu cầu không được thiết kế quá đơn giản, anh muốn mẫu thiết kế có sự cầu kỳ để thể hiện sự khác biệt so với những mẫu nhà khác.
Ngôi nhà phải đầy đủ công năng mong muốn, tầng 1 sẽ thiết kế 2 phòng ngủ cùng những không gian chung như nơi để xe, phòng khách, phòng bếp, phòng ăn. Tầng 2 sẽ thiết kế 2 phòng ngủ, phòng sinh hoạt chung, phòng thờ, ban công và sân phơi. Do anh muốn tận dụng không gian sống sao cho rộng và thoải mái nhất, do đó mỗi tầng chỉ thiết kế một nhà vệ sinh chung cho các thành viên cùng sử dụng. Tuy nhiên nhà vệ sinh phải được thiết kế rộng, nội thất đầy đủ hiện đại, có vách kính và bồn tắm nằm. Để cả gia đình có thể thoải mái thư giãn sau một ngày làm việc và học tập.
Chúng tôi đã rất vui mừng khi anh đã tin tưởng và lựa chọn đơn vị chúng tôi để chia sẻ và thiết kế mẫu nhà cho mình. Chúng tôi đã nhanh chóng ghi lại toàn bộ những mong muốn đó để ban đầu lên ý tưởng cho ngôi nhà của anh. Công ty đã cử cán bộ kỹ thuật và cán bộ thiết kế về Hưng Yên để tư vấn và khảo sát lên phương án thiết kế chi tiết nhất mẫu nhà cho anh.
Tổng quan phương án thiết kế mẫu biệt thự 2 tầng hiện đại 120 tại Hưng Yên
Với mong muốn thiết kế mái thái để tăng phần hiện đại cho ngôi nhà. Chúng tôi đã thiết kế cho gia đình anh Tài là mẫu nhà 2 tầng mái thái dài, các mái chồng xếp lên nhau để tạo sự đồ sộ, sang trọng và cân đối với hình khối rộng lớn cũng như diện tích ô đất. Chóp mái ở trên cao sẽ được thiết kế đi kèm cột thôi lôi chống sét.
Do nền đất khá cứng và chắc, do đó phương án thiết kế móng băng nhanh chóng được lựa chọn, với nền đất cứng thì móng băng sẽ là phương án tối ưu nhất vừa đảm bảo yêu cầu kỹ thuật, vừa đảm bảo kết cấu tải trọng cho cả ngôi nhà. Ngôi nhà được thiết kế hoàn chỉnh từ mẫu cổng cho đến sân trước cũng như không gian trong nhà.

Phối cảnh mẫu biệt thự 2 tầng hiện đại
Về tổng quan của thiết kế biệt thự 2 tầng này ta có thể thấy được hình khối kiến trúc khá đồ sộ, với những đường nét tinh xảo và khỏe khoắn, thể hiện sự bề thế cũng như tính thẩm mỹ cao của mẫu biệt thự hiện đại. Khiến ngôi nhà như đẳng cấp hơn bao giờ hết. Theo quan xát, ta cũng có thể thấy hình khối ngôi nhà vuông vức kết hợp với những đường trang trí tinh tế tại các trụ cột cúng đã giúp cho mẫu thiết kế nhà 2 tầng này chiếm trọn ánh mắt của người nhìn. Hệ trụ cột chạy thẳng từ tầng 1 lên đến tầng 2 giúp cho ngôi nhà cân đối và cao ráo hơn. Trông bề thế và sang trọng hơn rất nhiều.

Mặt tiền hiết kế nhà biệt thự 2 tầng hiện đại của anh Tài
Chúng tôi đã thiết kế thêm vài chi tiết nhỏ để ngôi nhà thêm độc đáo. Hệ thống cửa cổng kết hợp mái che cùng hệ thống tường rào đẹp mắt đã giúp cho cảnh quan ngoại thất của ngôi nhà vô cùng khang trang. Xung quanh nhà được trang trí thêm các cây cảnh để tăng thêm độ tươi mát cho ngôi nhà. Không giống như những mẫu thiết kế khác. Ngôi nhà này được trang bị hệ thống mái vô cùng hiện đại. Kiểu mái thái với độ dốc lớn kết hợp với việc sử dụng mai màu nâu đã giúp cho ngôi nhà có nhiều khác biệt so với những mẫu nhà bên cạnh. Hơn thế nữa màu nâu đậm khi đi cùng với tông màu trung tính của tường như màu be, màu trắng lại càng góp phần vào sự hài hòa và trang nhã của mẫu biệt thự 2 tầng hiện đại này. Khiến cho cả ngôi nhà như sang trọng hơn rất nhiều.

Góc nhìn khác của căn biệt thự 2 tầng đẹp
Chúng ta có thể thấy ô cửa sổ đều có thiết kế mái che lợp ngói, vừa có tác dụng tránh mưa nắng hắt vào nhà, vừa có tác dụng cân đối hình khối và tăng tính thẩm mỹ. Hệ cửa gỗ tự nhiên được lựa chọn bởi anh Tài là người thích chơi đồ gỗ, nên toàn bộ cửa của ngôi nhà đều là cửa gỗ, kiến trúc sư của chúng tôi đã lên phương án thiết kế chống mối mọt cho toàn bộ hệ cửa. Với bộ gỗ hiện đại này cũng phù hợp với ngôi nhà hơn so với các loại khác.
Xung quanh ngôi nhà là hệ thống tiểu cảnh cây xanh trang trí vô cùng đẹp mắt tạo nên sự xanh mướt của ngôi nhà. Từ cửa chính đi vào trong là không gian phòng khách với bộ bàn ghế hiện đại tông sáng, giúp cho phần không gian phòng khách nổi bật hơn hẳn.

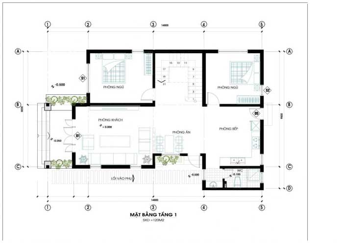
Chi tiết bản vẽ công năng mặt bằng tầng 1
Tầng 1 được chia làm tổng thể 2 không gian riêng biệt là không gian sinh hoạt chung và không gian ngủ nghỉ của gia chủ. Thông với phòng khách là không gian phòng ăn và bếp nấu. Phòng bếp được thiết kế sâu phía bên trong và bên cạnh bếp nấu có một nhà vệ sinh chung cho cả tầng. Như vậy có thể thấy sự sắp xếp khoa học của ngôi nhà sang trọng này.
Không gian ngủ nghỉ của tầng 1 được thiết kế đối diện với không gian sinh hoạt chung, bên cạnh cầu thang bộ được thiết kế 2 phòng ngủ chia đều 2 bên. Một phòng ngủ được thiết kế 16m dành cho bố mẹ anh Tài, một phòng ngủ 13m được thiết kế cho cậu con trai cả đang học đại học của anh. Có vệ sinh chung để mọi người tiện sinh hoạt và tạo khoảng không trang trí nội thất cho các phòng.

Chi tiết bản vẽ công năng mặt bằng tầng 2
Trên tầng 2 của mẫu nhà biệt thự 2 tầng hiện đại là thiết kế 2 phòng ngủ. Phòng ngủ chính rộng 16m, có thiết kế cửa ra ban công dành cho vợ chồng anh Tài, bên kia cầu thang là phòng ngủ nhỏ hơn của cô con gái út đang học lớp 11. Phòng ngủ của cô con gái cũng có cửa ra ban công phía sau, được trang trí tiểu cảnh đẹp mắt.
Bên phải là không gian phòng thờ, thiết kế hướng chính thống với ban công để thông thoáng và tránh sự bí bách khi gia chủ thắp hương. Giữa không gian đệm được sử dụng làm không gian sinh hoạt chung cho các thành viên, từ phòng sinh hoạt chung có lỗi ra ban công trước khá thoáng và rộng. Từ phòng sinh hoạt chung đi thẳng ra là sân phơi quần áo và nhà vệ sinh chung của cả tầng. Nhà vệ sinh được thiết kế khá rộng với nội thất đầy đủ thuộc hạng cao cấp nhất.
Ngôi nhà biệt thự 2 tầng này là tâm huyết cả đời của vợ chồng anh. Một căn nhà như mơ ước đã được hoàn thiện sau 9 tháng với tổng đầu tư gần 3 tỷ đồng. Mẫu thiết kế này được đánh giá cao cả về kiến trúc ngoại thất cũng như cảnh quan sân vườn tiểu cảnh đi cùng. Mỗi chi tiết, yếu tố đều toát lên sự hài hào và độc đáo. Chủ đầu tư đã rất vui mừng và hạnh phúc khi nhận chìa khóa trao tay công trình từ chúng tôi. Niềm vui của khách hàng là niềm hạnh phúc của công ty chúng tôi.
Để có thể sở hữu mẫu nhà biệt thự 2 tầng hiện đại như anh Tài, quý khách hàng vui lòng liên hệ trực tiếp với chúng tôi để được tư vấn chi tiết và cụ thể hơn. Hy vọng sẽ được đồng hành cùng bạn trên con đường xây dựng tổ ấm cho gia đình mình.
Nguồn tin: https://wedo.vn/
Có thể bạn muốn xem thêm:
- Mẫu nhà 2 tầng 100m2 giá rẻ
- Mẫu biệt thự 2 tầng 90m2 có 4 phòng ngủ
- Mẫu nhà 2 tầng lợp ngói đẹp kinh phí đầu tư 800 triệu


































