Không quá cầu kỳ hay phức tạp nhưng mẫu thiết kế biệt thự 2 tầng chúng tôi giới thiệu dưới đây vẫn toát lên được sự hiện đại và sang trọng. Đây sẽ là không gian tiện nghi cho cả gia đình cùng quây quần và hạnh phúc bên nhau.
Được xây dựng theo lối kiến trúc biệt thự 2 tầng mái thái, công trình hiện lên khang trang và bắt mắt giữa không gian. Vì là mẫu nhà được xây dựng trên lô đất có diện tích chiều dài khiêm tốn nên các kiến trúc sư đã tiến hành thiết kế mẫu biệt thự với 2 mặt tiền. Theo đó, phần cửa chính sẽ được bố trí với cửa lên ngay cạnh không gian sinh hoạt chung là phòng khác. Khu vực sân chính của ngôi nhà sẽ chính là phần sân vườn bên mặt tiền phụ. Tiếp đó, để phục vụ cho nhu cầu của gia đình, làm nơi thông thoáng, không gian tiện lợi để uống trà và nghỉ ngơi. Một bộ bàn ghế sẽ được đặt ngay cạnh phòng bếp và thiết kế không gian mở, có thể hướng tầm nhìn ra các phía xung quanh. Phần mái phía trên sẽ được điểm tô bằng các giàn cây leo và đổ bê tông giả gỗ nhằm tạo điểm nhấn.

Phối cảnh biệt thự 2 tầng
Kiến trúc mái thái được khá nhiều gia chủ yêu thích và lựa chọn. Ngoài thực hiện chức năng che nắng mưa, bảo vệ toàn ngôi nhà thì cấu trúc này cũng góp phần gia tăng độ thẩm mỹ cho căn biệt thự. Mặc dù phần mái thái được xây dựng khá đơn giản với 1 mái chính và 1 mái phụ ở khu vực phòng ngủ nhưng vẫn tạo được sức hấp dẫn, thu hút ánh nhìn của người đối diện. Sắc xanh và trắng là tone màu chủ đạo của biệt thự 2 tầng. Bên cạnh đó phần ốp tượng lạ mắt cũng tạo sự mới mẻ, ấn tượng và độc đáo cho công trình.

Mặt bằng tầng 1
Sở hữu quỹ đất 8x15m, nên mặt bằng tầng 1 được bố trí bao gồm các không gian phòng ngủ, phòng khách, phòng bếp +ăn. Phòng ngủ sẽ là không gian đầu tiên khi bước vào nhà. Nhằm tạo không gian riêng tư, yên tĩnh nên 2 phòng ngủ nhỏ sẽ được đặt ở phía cuối nhà cùng với bếp ăn. Ở vị trí này sẽ bố trí thêm cửa hậu để kết nối ra phía ngoài sân vườn. Nhà vệ sinh cũng được sắp xếp thông minh ngay cạnh cửa hậu. Để tạo sự ngăn cách giữa các không gian, phòng khách và phòng ăn sẽ được chia tách bằng vách ngăn gỗ. Tùy gia chủ mà sử dụng phương án thay thế cho phù hợp, ví dụ xây tường kín hoặc làm vách ngăn để tạo sự thông thoáng.

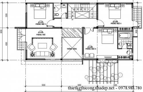
Mặt bằng tầng 2
Không gian tầng 2 hầu như dành riêng để xây dựng phòng ngủ, tạo nên thế giới riêng tư yên tĩnh cho các thành viên. Cụ thể, 3 phòng ngủ có diện tích rộng rãi sẽ được bố trí hợp lý và thông minh. Mỗi phòng sẽ tích hợp phòng vệ sinh riêng rất thuận tiện.
Tại mặt bằng tầng 2, 1 phòng thờ sẽ được xây dựng làm nơi thờ cúng tổ tiên với không gian linh thiêng và trang trọng. Phòng thờ nằm ngay vị trí của phòng khách ở tầng 1. Để tạo sự thuận lợi di chuyển cho gia chủ, cạnh phòng thờ sẽ có khu vực để lưu thông kết nối với khu vực phòng ăn của tầng 1. Thêm vào đó, 1 phòng vệ sinh chung sẽ được xây dựng tại tầng 2, tạo điều kiện tối ưu cho các thành viên sinh hoạt.
Nguồn: thietkethicongnhadep.net

































