Với ưu điểm là lô đất nằm ở mặt tiền đường lớn nên gia chủ muốn thiết kế một căn nhà vừa để ở vừa kết hợp kinh doanh. Nắm bắt được yêu cầu của gia chủ các kiến trúc sư của Xây dựng số đã đưa ra ý tưởng thiết kế độc đáo sau đây, chúng ta hãy cùng khám phá.
* Thông số kỹ thuật của thiết kế:
- Loại hình Nhà ở kết hợp kinh doanh
- Phong cách Hiện đại
- Số tầng 5 tầng
- Mặt tiền 5m
- Diện tích 100m2
* Công Năng:
- Tầng 1: Mặt bằng kinh doanh, kho, bếp, wc
- Tầng lửng: Mặt bằng kinh doanh
- Tầng 2: Phòng khách, phòng bếp, wc
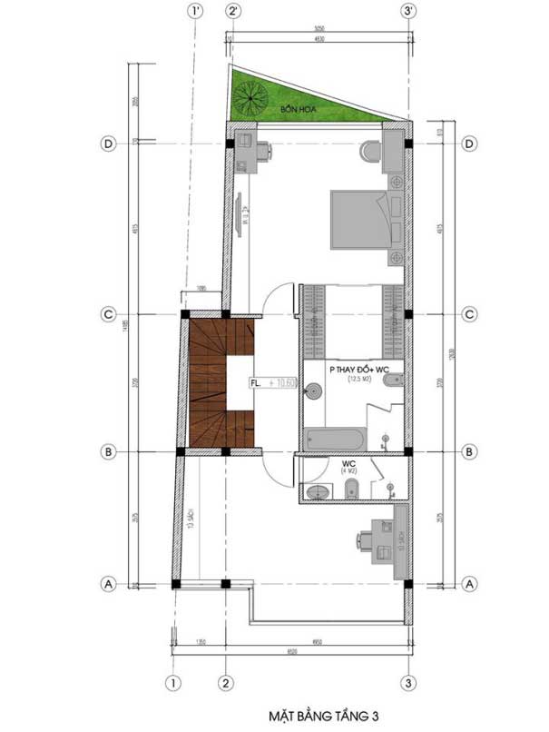
- Tầng 3: Phòng ngủ + phòng thay đồ, wc, phòng đọc sách
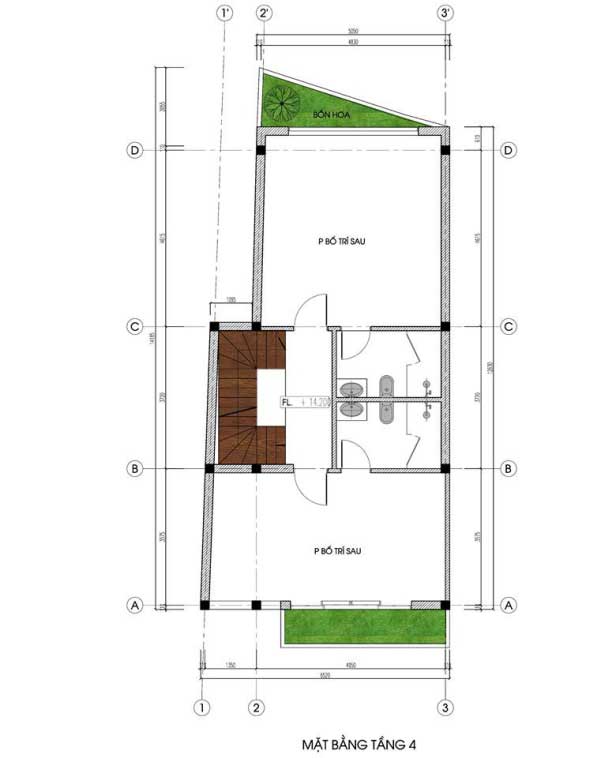
- Tầng 4: 2 phòng ngủ + wc khép kín
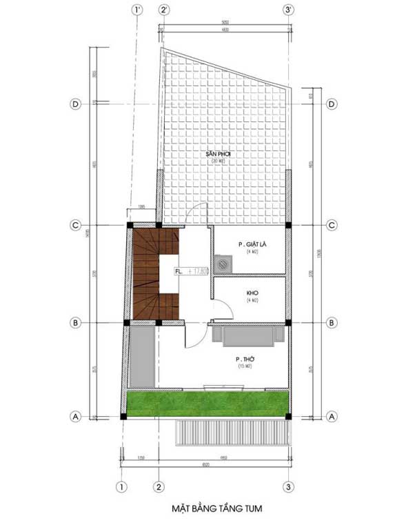
- Tầng 5: Kho, phòng thờ, sân phơi, phòng giặt
Phương án thiết kế mẫu nhà ống đẹp kết hợp kinh doanh
Gia đình gia chỉ có 2 vợ chồng và 2 đứa con vì thế họ muốn thiết kế làm sao để vừa có thể tận dụng tầng 1 để kinh doanh vừa có ít nhất 3 phòng ngủ để
tiện sinh hoạt. Và sau đây là mẫu thiết kế mà kiến trúc sư đưa ra. Ngôi nhà mang phong cách hiện đại, đơn giản nhưng trang nhã và không kém phần sang trọng phù hợp với yêu cầu của gia chủ vừa để ở vừa dễ dàng cho việc trang trí không gian kinh doanh.

Mẫu nhà có hình khối đơn giản, màu sắc trang nhã, hài hòa. Mặt tiền tạo được điểm nhấn bằng những tấm đá tự nhiên màu đen cùng hệ thống gạch ốp tường giả gỗ. Từ tầng 2 đến tầng 4 kiến trúc sư bố trí cá thanh chạy dọc vừa tạo điểm nhấn vừa tạo ra sự thông thoáng. Các tầng đều có hình khối nhô ra để mở rộng không gian. Cả mấy tầng đều bố trí hệ thống cửa bằng nhôm kính rộng rãi vừa tăng sự bề thế vừa tạo sự thông thóang cần thiết.
Chi tiết mặt bằng công năng của ngôi nhà ống 5 tầng đẹp

Nhà được thiết kế 5 tầng ( bao gồm tầng lửng ). Toàn bộ diện tích tầng 1 được để trống để tiện cho việc bố trí mặt bằng kinh doanh theo ý gia chủ. Phía sau là hệ thống bếp, kho, nhà vệ sinh.

Tầng lửng được thiết kế thêm với diện tích bằng ½ diện tích mặt bằng tầng 1 với mục đích là mở rộng diện tích kinh doanh cho gia chủ

Từ tầng 2 trở lên là không gian sinh hoạt cho gia đình. Tầng 2 gồm 1 phòng khách, phòng bếp, phòng ăn và nhà vệ sinh. Các phòng đều rộng và thoáng không hề bí bách như những nhà phố khác.

Tầng 3 gồm 1 phòng ngủ rộng, đối diện với phòng ngủ là phòng đọc sách có nhà vệ sinh khép kín. Sở dĩ không thiết kế phòng vệ sinh trong phòng ngủ vì gia chủ không thích điều này. Tầng 2 chỉ thiết kế 2 phòng vì gia chủ muốn có không gian riêng cho mình.

Tầng 4 gồm 2 phòng ngủ có nhà vệ sinh khép kín. Tầng năm gồm có phòng thờ riêng biệt và rộng đến 20 m2, phòng giặt, kho chứa đồ. Sân phơi rộng rãi vừa là chỗ chứa đồ vừa là sân tập thể dục. Với diện tích 100 m2 các tầng 3,4,5 được thiết kế ít phòng nên rất rộng rãi và thoáng đãng theo đúng yêu cầu của gia chủ.

Mẫu nhà phố để ở kết hợp kinh doanh hiện nay đang rất phổ biến. Hầu hết các gia chủ có nhà mặt tiền đường lớn đều muốn thiết kế theo cách này để vừa tận dụng nơi ở vừa làm nơi kinh doanh. Nếu bạn muốn sở hữu những thiết kế ấn tượng và độc đáo như trên đừng ngần ngại liên hệ với chúng tôi, xây dựng số luôn sẵn sàng tư vấn miễn phí mọi thông tin liên quan cho khách hàng.
Xem thêm tin mới => Mẫu nhà phố 2 tầng kết hợp kinh doanh diện tích 4x25m


































